Bildegalleri
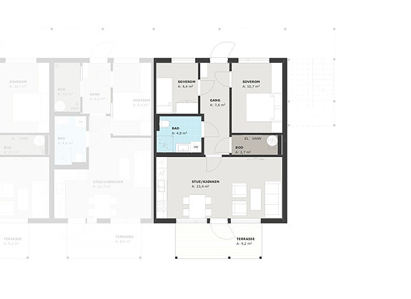
Planløysing leilegheit A1 og B1
Flatene i Naustdal
Leilegheit nr 1
Prisantydning3 190 000 kr
Prosjektets status
Planlegging
April
Salgsstart
April/Mai
Byggestart
Straks 5 av 8 leiligheter er solgt
Overtakelse
14-16 mnd etter byggestart
Nøkkelinfo
- Boligtype
- Leilighet
- Etasje
- 1
- Soverom
- 2
- Internt bruksareal
- 59 m² (BRA-i)
- Bruksareal
- 59 m²
Fasiliteter
Balansert ventilasjon
Balkong/Terrasse
Barnevennlig
Bredbåndstilknytning
Garasje/P-plass
Offentlig vann/kloakk
Utsikt
Turterreng
Visning
Ta kontakt for å avtale visning.Nærområdet

Norgeshus Naustdal Bygg
Annonsene kan være mangelfulle i forhold til lovpålagt opplysningsplikt. Før bindende avtale inngås oppfordres interessenter til å innhente komplett informasjon fra meglerforetaket, selger eller utleier.