Bildegalleri
Doktor Holms vei 9
Doktor Holms vei 9 - Hus 9
Prisantydning21 490 000 kr
Prosjektets status
Planlegging
1. kvartal 2025
Salgsstart
Estimert 2. kvartal 2025
Byggestart
Estimert 4. kvartal 2025
Overtakelse
2. kvartal 2027
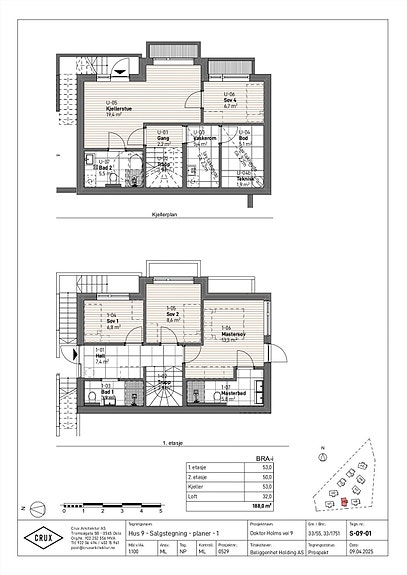
Nøkkelinfo
- Boligtype
- Enebolig
- Soverom
- 5
- Internt bruksareal
- 188 m² (BRA-i)
- Bruksareal
- 188 m²
- Balkong/Terrasse
- 9 m² (TBA)
Fasiliteter
Balkong/Terrasse
Garasje/P-plass
Peis/Ildsted
Utsikt
Turterreng
Beskrivelse
Mer informasjon kommer
NB: Knappen for å vise hele beskrivelsen har kun en visuell effekt.
NB: Knappen for å vise hele beskrivelsen har kun en visuell effekt.
Nyttige lenker
Nærområdet
Sem & Johnsen
Boliger utenom det vanlige
Annonseinformasjon
| FINN-kode | 403195161 |
|---|---|
| Sist endret | 16. des. 2025 12:37 |
| Referanse | 20-25-0438 |
Annonsene kan være mangelfulle i forhold til lovpålagt opplysningsplikt. Før bindende avtale inngås oppfordres interessenter til å innhente komplett informasjon fra meglerforetaket, selger eller utleier.