Bildegalleri
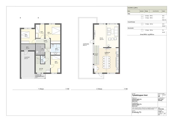
Boligmodell T3 Plantegning
Tybakktoppen Vest
Sentralt Tromøy/Tybakktoppen Vest - Nye selveierleiligheter med god kvalitet og flott planløsning - Etterspurt område
Prosjektets status
Planlegging
-
Salgsstart
-
Byggestart
-
Overtakelse
-
Nøkkelinfo
- Boligtype
- Enebolig
- Soverom
- 4
- Internt bruksareal
- 151 m² (BRA-i)
- Bruksareal
- 177 m²
- Eksternt bruksareal
- 25 m² (BRA-e)
Visning
Beskrivelse
Oppdragsansvarlig
Agder Eiendomsmegling AS / Silje Frøyshol Kristiansen
Selger/Utbygger
Hetland Agder AS
Betegnelse
Gnr. 213 Bnr. 283 i Arendal kommune
Byggeår
2024/2025
Arealer og fordeling per etasje
Boligtype 1:
Totalt BRA: 171,6 m² består av:
- BRA-i (internt bruksareal): 152,4 m²
- BRA-e (eksternt bruksareal): 19,2 m²
Boligtype 2:
Totalt BRA: 167,4 m² består av:
- BRA-i (internt bruksareal): 147,7 m²
- BRA-e (eksternt bruksareal): 19,2 m²
Boligtype 3:
Totalt BRA: 177,5 m² består av:
- BRA-i (internt bruksareal): 151,7 m²
- BRA-e (eksternt bruksareal): 25,8 m²
Boligtype 4:
Totalt BRA: 147,5 m² består av:
- BRA-i (internt bruksareal): 113,4 m²
- BRA-e (eksternt bruksareal): 34,1 m²
Arealer for leilighetene:
Det totale bruksarealet fordeler seg som følger:
Første etasje:
- BRA: 73 m²
- BRA-i: 68 m²
Andre etasje:
- BRA: 73 m²
- BRA-i: 68 m²
Loft:
- BRA: 43,6 m²
- BRA-i: 40,7 m²
Leilighetene leveres med en isolert bod på 5 kvm.
Vedlagte plantegninger er ikke målbare, og alle oppgitte arealer er beregnet av utbygger Hetland Agder AS. Avvik kan forekomme.
Beliggenhet
Velkommen til boligdrømmen! Skap ditt nye hjem på Tybakktoppen Vest, et svært familievennlig boligområde beliggende sentralt på attraktive Tromøy.
Her skal det bygges 30 moderne eneboliger med gjennomtenkte planløsninger og flotte uteområder som kan tilpasses de fleste, og 24 leiligheter, hvor 3 eneboliger og 7 leiligheter allerede er solgt.
Tybakktoppen Vest er et nytt felt med solrik og tilbaketrukket beliggenhet på Tromøy med kort gangavstand til skole, barnehager, bussforbindelse og flotte turområder langs sjø og i skogsterreng. Området er svært sentralt med Tromøytunet senter like ved, hvor du finner matbutikk, apotek, legekontor, frisør, kafé m.m. Med bil tar det ca. 10 min til Arendal sentrum.
Området har en beliggenhet som er perfekt for deg som vil bo i naturskjønne omgivelser, men samtidig ønsker å leve et aktivt liv med korte avstander til alt du trenger i hverdagen!
Boligene i prosjektet vil få en stilfull og moderne utførelse, med innholdsrike og gjennomtenkte planløsninger med vekt på tidsriktige og fine farge- og materialvalg. Ved kjøp av ny bolig vil det være muligheter for andre tilvalg, helt etter dine ønsker.
Tromøya har utallige kvaliteter. Foruten å være den største øya på Sørlandet, er Tromøya kjent som en naturperle av de sjeldne. Den enestående vakre naturen og det fantastiske utvalget av turstier er blant de store skattene du finner på Tromøya. Et eksepsjonelt godt oppvekstmiljø og et variert servicetilbud er også blant de fantastiske kvalitetene øya har å by på.
Vi har gleden av å tilby et nytt og moderne boligfelt sentralt på Tromøya, kun en drøy kilometer fra den imponerende Tromøybroa. Vi ønsker å skape et boligfelt med fokus på trivsel i de naturskjønne omgivelsene, og ser frem til å utvikle Tybakktoppen sammen med våre kunder og det engasjerte lokalsamfunnet rundt oss.
Sjekk link til Boligvelger for å velge din favoritt.
https://www.tybakktoppen-vest.no/
Beskrivelse av nærområdet / fasiliteter
Tybakktoppen ligger svært sentralt på Tromøy med gangsvstand til Roligheten skole (1-10. trinn) med Sfo og idrettsanlegg, og kort gangsavstand til barnehage (ca. 250 meter). Det er bussforbindelse like i nærheten og Tromøytunet nærsenterbyr på matbutikk, apotek, café og frisør. Området byr på de vakreste turområder like uten for stuedøren, og du finner Raet nasjonalpark ca. 15 minutter gangavstand fra feltet. Tromøy er den største øya på Sørlandet og er en del av det store norske raet, Raet nasjonsalpark, som strekker seg langs kysten av Skagerrak, hvor det dannes rullesteinsstrender. Øya er rikfoldig i forhold til naturlandskap med både sjø og skog, og her er flere aktivitetssentre som Cancvas Hove som byr på aktiviteter på land og til vanns. Her kan du også bo i kuletelt og nyte en bedre middag i restauranten. Studio Spornes byr på herlig musikkfestival om sommeren.
Nyoppført bolig
Det er mange fordeler ved å kjøpe en helt ny bolig, og følelsen av å flytte inn i et helt nytt og skreddersydd hjem er litt luksus i seg selv.
Med ny bolig følger 5 års nybolig garanti og dagens tekniske standard, som i praksis betyr ingen behov for oppgraderinger på mange år, sunnere inneklima og lave energikostnader.
Du har også fine tilpasningsmuligheter, og kan være med på å forme din egen bolig etter dine personlige ønsker rundt materialvalg og løsninger.
Kort fortalt
- 30 eneboliger, tomannsbolig og 24 leiligheter i firemannsboliger skal bygges på feltet.
- Moderne, prosjekterte boliger og leiligheter.
- Solrike uteplasser.
- Stue og kjøkken i åpen løsning.
- Stilrent kjøkken levert av Strai med hvitevarer.
- Delikate, helflisete baderom.
- Garasje eller carport.
- Mulighet for lader for elbil.
- God lagringsplass i boder.
Om prosjektet
I familievennlige og sentrale omgivelser på Tybakktoppen bygges det nå flere nye boliger. Kanskje en av dem er ditt nye hjem? Området passer ypperlig for alle aldersgrupper med kort gangsavstand til bussforbindelse, skole, barnehager og gode servicetilbud.
Leilighetene bygges i samme stil, alle med moderne arkitektur, god planløsning og smakfull innredning. Det leveres blant annet kvalitetskjøkken med integrerte hvitevarer, delikate bad, balansert ventilasjon med varmegjenvinning m.m. I tillegg vil det være mulighet for montering av peisovn.
Leilighetene i 1. etasje vil ha alt på en flate, mens leilighetene i 2. etasje kan gå over to plan dersom man ønsker å innrede loftet.
I første etasje får hver leilighet entré/gang, bad/vaskerom, to soverom og stue med kjøkken. Leiligheten i 2. etasje får samme planløsning som kan endres dersom man også ønsker å innrede loftet. Da vil man kunne få 3 soverom, og loftstue samt et gjestetoalett/eventuelt bad på loft.
Alle leilighetene får egen platting på 10 kvm, og leilighetene i første etasje vil få eksklusiv bruksrett til hage i front av veranda. Hver leilighet har egen sportsbod, samt parkering til 1 bil på oppmerket område.
Leveransebeskrivelse
Velkommen til et hjem der moderne eleganse møter funksjonalitet. Dette unike eiendomsprosjektet er preget av materialer av god kvalitet og gjennomtenkte, tidløse interiørløsninger som skaper en varm atmosfære, og gir en innbydende følelse.
Utbygger har prioritert fleksibilitet i interiørvalgene, slik at du som kunde kan sette din personlige signatur på hjemmet og skape et rom som er helt unikt og tilpasset dine preferanser.
Denne leveransebeskrivelsen er utarbeidet av Hetland Agder AS, skal vedlegges endelig avtale, og gjelder foran tegninger.
Leveransebeskrivelsen gir en oversikt over materialer, utstyr og tjenester som inngår i boligleveransen. For enkelte boliger kan det være avvik fra standarden, og i slike tilfeller gjelder spesifikasjonene i tilbudsdokumentet og den inngåtte kontrakten med tilhørende dokumenter. Alle materialer og komponenter er nøye utvalgt for å sikre god kvalitet og oppfyllelse av krav i henhold til gjeldende byggeforskrifter (TEK 17). Arbeid innen spesialiserte fagfelt som mur, elektro, rørleggerarbeid og maling utføres av erfarne og sertifiserte underentreprenører for å sikre høyt faglig nivå. Målet med leveransen er å levere en innflyttingsklar bolig av solid standard, klar til bruk ved overtakelse.
Utbygger forbeholder seg retten til å foreta forandringer i materialvalg, samt valg av leverandører og konstruksjoner, forutsatt at opprinnelig funksjon, kvalitet og estetikk opprettholdes.
Det er til enhver tid gjeldende forskrifter som blir benyttet ved utførelse av boligen. Boligene prosjekteres og oppføres etter gjeldende TEK 17 standard.
Murerarbeider:
Støpt plate på mark.
Gulver isoleres med 300 mm og pusses.
Nødvendige fundamenter utføres.
Støpt inngangsparti leveres i henhold til tegninger.
Trearbeider:
Yttervegger:
Utføres i (148 + 48 mm.) bindingsverk.
På utsiden benyttes 19X148 royalimpregnert liggende kledning.
Innvendig platekles veggene med malte gipsplater.
Innervegger:
Innvendig vegger utføres i 98mm isolert reisverk og platekles med malte gipsplater.
Vegg på bad leveres med rupanel, gipsplater og 30x60 flis.
Tak / Taktekking:
Det benyttes prefabrikkerte takstoler.
Isolasjon 300 mm.
Taktekking lufting undertak 18 mm trefiberplater samt diffusjonsåpen duk. Innvendig tak/himling platekles med gips.
Skarpnes takstein dobbelkrom av type sort Edel.
Takrenner / Beslag:
Leveres som stålrenner. Farge sort.
Snøfangere og stigetrinn leveres.
Dører:
Ytterdører type Gilje/Nordan leveres iht. tegning malt sort fra fabrikk.
Balkong / terrassedør iht. tegning malt sort fra fabrikk.
Innerdører type P1 slett hvit S0502Y leveres.
Vinduer:
Vinduer fra Uldal leveres malt sort utvendig/innvendig fra fabrikk.
Listverk:
Utvendig belistning utføres iht. tegning.
Innvendig belistning leveres som 15x60 mm slett list på dører. Listefritt i tak og rundt vinduer.
Innvendig listverk leveres ferdig malt.
Takrenner / Beslag:
Leveres som stålrenner. Farge sort.
Snøfangere og stigetrinn leveres.
Ventilasjon:
Balansert ventilasjon med varmegjenvinning er medregnet i leveransen.
Elektrikerarbeider:
Installasjon utføres av lokal autorisert installatør som sørger for fagmessig utførelse etter gjeldende forskrifter for elektriske lavspenningsinstallasjoner.
Arbeidet omfatter all fast installasjon fra og med sikringsskap/grensesnittskap.
Overbelastningsvern monteres i sikringsskap, og det benyttes jordfeilautomater på kurssikringer.
Det monteres overspenningsvern i sikringsskap.
Installasjonen dimensjoneres slik at elektriske varmeovner kan tilkoples stikkontakter og gi full oppvarming i stue, soverom, kjøkken og gang/hall (varmeovner er ikke medregnet).
Varmekabler gulv med elektronisk gulvføler leveres i bad/vask og entre.
Brytere og stikkontakter leveres i hvit utførelse. Alle stikkontakter leveres som doble barnevernede, bortsett fra stikkontakter for stasjonære apparater som oppvaskmaskin kjøleskap, komfyr og lignende.
Brannmeldere tilkoplet strømnettet leveres i henhold til TEK 17.
Antall el. pkt. iht. gjeldene forskrift.
1 stk. utvendig grensesnittskap.
Ringeanlegg.
Jording/bunnledning.
Trekkerør til fremtidig elbil lader er medregnet.
Utvendig belysning er medregnet med 2 stk. lamper.
Innvendige pkt. for belysning er medregnet. Innvendige lamper er ikke medregnet.
Rørleggerarbeid:
Rørleggerarbeidet utføres av lokal autorisert håndverker som leverer materiell av høy kvalitet og sørger for gode løsninger. Alle vannledninger leveres i rør, spillvannsledninger og deler i plast (ABS/PP). Sanitærutstyr i hvit utførelse og armaturer leveres fra anerkjente produsenter.
Boligtype 1:
Kjøkken:
Kjøkken type Strai er medregnet for brutto kr 170 000,- inkl. hvitevarer og montering
Gulv:
1 stavs eikeparkett monteres på gulv der hvor flis ikke er beskrevet.
Trapp:
Leveres fra Nor-trapp. Hvit utførelse.
Elektrikerarbeider:
12 stk spotter med 3stk dimmere er medregnet .
Bad:
Veggmontert klosett.
Oppvarming:
Det leveres varmekabler i bad/vask og varmefolie entre.
Stålpipe og peisovn type Nordpeis Duo 5 leveres iht. tegninger.
Platting/hage:
Platting foran inngangsparti leveres med støpt dekke.
Adkomst til garasje/car-port og inngangsparti gruses.
Ferdigplen etableres iht. situasjonsplan inntil 120 kvm.
Garasje:
Frittstående iht. tegninger.
Støpt gulv uinnredet.
Hørmann stålport leveres.
Boligtype 2:
Kjøkken:
Kjøkken type Strai er medregnet for brutto kr 200 000,- inkl. hvitevarer og montering
Gulv:
1 stavs eikeparkett monteres på gulv der hvor flis ikke er beskrevet.
Trapp:
Leveres fra Nor-trapp. Hvit utførelse.
Elektrikerarbeider:
12 stk spotter med 3stk dimmere er medregnet .
Bad:
Veggmontert klosett på bad. Gulvmontert i wc.
Oppvarming:
Det leveres varmekabler i bad/vask og varmefolie entre.
Stålpipe og peisovn type Nordpeis Duo 5 leveres iht. tegninger.
Platting/hage:
Platting foran inngangsparti leveres med støpt dekke.
Adkomst til garasje/car-port og inngangsparti gruses.
Ferdigplen etableres iht. situasjonsplan inntil 120 kvm.
Garasje:
Frittstående iht. tegninger.
Støpt gulv uinnredet.
Hørmann stålport leveres
Boligtype 3 og 4:
Kjøkken:
Kjøkken type Strai er medregnet for brutto kr 160 000,- inkl. hvitevarer og montering
Gulv:
1 stavs eikeparkett monteres på gulv der hvor flis ikke er beskrevet. Det er flis på bad, vaskerom og wc.
Trapp:
Leveres fra Nor-trapp. Hvit utførelse.
Elektrikerarbeider:
10 stk spotter med 3 stk dimmere er medregnet .
Bad:
Veggmontert klosett på bad og wc.
Oppvarming:
Det leveres varmekabler i bad/vask og varmefolie entre.
Stålpipe og peisovn type Nordpeis Duo 5 leveres iht. tegninger.
Platting/hage:
Platting foran inngangsparti leveres med støpt dekke.
Adkomst til garasje/car-port og inngangsparti gruses.
Ferdigplen etableres iht. situasjonsplan inntil 120 kvm.
Garasje/carport:
Gruset gulv uinnredet.
Leilighetene:
Kjøkken:
Kjøkken type Strai er medregnet for brutto kr 100 000,- inkl. hvitevarer og montering.
Gulv:
Klikkvinylgulv leveres på gulv.
Flis på gulv i bad/vask og hall.
Garderobeskap:
Ikke medregnet, kan leveres som tilvalg.
Bad / Vask:
1 stk. ett-greps dusjbatteri m/ garnityr. Sort eller krom. 150 mm. slange, type termostat.
90x90 dusjhjørne er medregnet.
Baderomsinnredning 120 cm. På wc-rom leveres 60 cm innredning. Hvit/Grå/Sort type Foss pro46 med porselensservant.
Speil med sidelys.
1 stk. ettgreps servantbatteri m/ pop Up ventil. Sort eller krom.
1 stk. klosett
Kran for vaskemaskin.
1 stk. avløp m/trakt for vaskemaskin.
1 stk. VV bereder 200l.
Flis på gulv og vegg bad/vaskerom. Kostpris flis kr 400,- inkl. mva pr kvm.
Kjøkken:
1 stk. ettgreps kjøkkenbatteri m/svingbar tut. Sort eller krom.
1 st. T-rør for tilkopling av oppvaskmaskin.
Tilkopling av benkebeslag og oppvaskmaskin.
Vannstoppventil oppvaskmaskin.
Utvendig:
1 stk. hagevanningskran frostfri.
Forsikring:
Bygget er forsikret i byggeperioden.
Utbygger
Hetland Agder AS.
Bygninger
30 eneboliger, 24 leiligheter i firemannsbolig og en tomannsbolig.
Byggemåte
Boligene oppføres av Hetland Agder AS etter Tek 17 standard.
Generell beskrivelse av byggemåte:
Byggene har støpt plate på grunn, isolert med 30 cm isolasjon. Yttervegger utføres i bindingsverk kledd med royalimpregnert kledning. Terrasse leveres tett med impregnert dekke og spilerekker i henhold til tegning, protanbelegg samt opplekting for terrassebord er medregnet. Vinduer fra Uldal leveres i malt grå. Tak består av prefabrikerte takstoler, kledd med sort dobbelkrummet Skarpnes takstein.Takrenner og nedløp i sortfarget stål. Stigetrinn og snøfangere blir montert. Ytterdører fra Gilje/Nordan leveres i grå utførsel. Utvendig belistning utføres iht. tegning.
Innhold
Bolig 1:
1. etasje: Entré, gang, bad, soverom, stue og kjøkken.
Underetasje: Gangrom, 3 soverom, garderoberom, vaskerom, bad.
Bolig 2:
1. etasje: Entré/gang, bad, soverom, stue og kjøkken.
Underetasje: Gangrom, 3 soverom, garderoberom, vaskerom, bad.
Bolig 3:
1. etasje: Entré/gangrom, wc, 4 soverom, bad og bod.
2. etasje: Trapperom, stue og kjøkken.
Bolig 4:
1. etasje: Entré/gangrom, 3 soverom, bad, wc/vaskerom, bod.
2. etasje: Trapperom, stue og kjøkken.
Leiligheter:
1. etasje: Entré, gangrom, bad, 2 soverom, stue og kjøkken.
2. etasje: Entré, gangrom, bad, 2 soverom, stue og kjøkken.
Loft: Innredes etter avtale.
Oppvarming
Elektrisk med varmekabler i gulv på baderom, vaskerom og entre. Peisovn etter nærmere spesifikasjoner i leveransebeskrivelse. Det medfølger ingen øvrige varmekilder.
Parkering / Garasje
Samtlige eneboliger vil få garasje/carport til en eller to biler. Garasjer leveres med leddheisport med elektrisk portåpner. Videre kan det tilbys kobling for elbil lading mot pristillegg. En parkeringsplass følger hver leilighet.
Adkomst
Fra Arendal følg Kystveien/RV 410 mot Trømøy, følg veine rett frem i 1. rundkjøring. Følg veien videre og ta så til venstre før avkjørsel mot Tromøytunet senter, og hold så til høyre. Følg veien videre til du kommer til feltet på høyre side. Velkommen!
Beskrivelse av tomt
Den totale tomtestørrelse er i dag på 29 310,8 kvm. Tomten vil bli fradelt slik at hver enebolig eier egen tomt med eget bruksnummer. Kommunen vil måle opp eksakte arealer for hver tomt. Hver tomt har fått anført stipulert areal, avvik kan forekomme ved endelig oppmåling.
Fellesareal/privat adkomstvei vil forvaltes av et veilag hvor alle eierne er medlemmer.
Det tas forbehold om at kommunen godkjenner fradeling. Dersom kommunen ikke godkjenner fradeling vil tomten blir seksjonert opp. Det vil da bli opprettet et sameie hvor hvert hus vil få eget seksjonsnummer med tilhørende tomt som tilleggsarealer.
Endelig utomhusplan er ikke ferdigbehandlet. Selger forbeholder seg retten til å bestemme endelig utforming og materialvalg. Fellesområder vil grovplaneres. Veier, biloppstillingsplass, adkomst /innkjørsel til boligen og eventuelt garasje/carport leveres med grus- iht. situasjonsplan. Resterende arealer inntil 120 kvm etableres med ferdigplen. Noen tomter leveres med forstøtningsmur i naturstein, eller betong.
Det blir satt opp sikringsgjerder der dette er nødvendig.
Mindre endringer i utenomhusplanen gir ikke kjøper rett til prisavslag, erstatning eller heving.
Grunnarbeider leveres med byggegrube med pukk klargjøres for murarbeider.
For leiligheter: Tomten blir levert med ferdigplen iht. situasjonsplan. Beleggsningstein foran inngangsparti 1. etasje. Adkomstvei og parkeringsplass asfalteres. Stier fra parkering til inngangsparti gruses.
Tinglyste rettigheter og forpliktelser
Kommunen har legalpant som sikkerhet for betaling av kommunale avgifter. Legalpant er pant som følger av loven, og som ikke tinglyses. Legalpant følger derfor eiendommen ved salg. På eiendommen kan det være tinglyst erklæringer som f eks rett for kommunen til å vedlikeholde rørsystemer for vann- og kloakk. Disse erklæringene vil følge eiendommen ved salg. Kontakt megler for nærmere informasjon.
Øvrige sameiere har panterett i seksjonen for krav mot sameieren som følge av sameieforholdet, jf. eierseksjonsloven § 31. Pantekravet kan ikke overstige 2G (Folketrygdens grunnbeløp). Sameiet kan vedtektsfeste ytterligere panterett for sameiet. Vedtektsfestet pant tinglyses i seksjonene.
Servitutter / rettigheter
Eiendommen overdras fri for pengeheftelser, med unntak av eventuelle erklæringer, avtaler, servitutter og panteheftelser som fremgår av salgsoppgaven og skal følge med eiendommen ved salg. Kjøpers bank vil få prioritet etter disse.
1848/900038-2/36 Erklæring/avtale
11.05.1848 FESTEKONTRAKT
FESTE- / GRUNNAVGIFT OPPGITT I ANNET EN NORSKE KRONER
FESTERETTEN GJELDER OGSÅ FESTERENS ETTERKOMMERE
GJELDER EN TOMT AV DETTE BRUK
RETTIGHETSHAVER: BENT BENTSEN
Overført fra: 4203-213/1
Gjelder denne registerenheten med flere
2021/1128827-1/200 Bestemmelse om jordkabel/jordkabelanlegg
13.09.2021 21:00 Rettighetshaver:GLITRE NETT AS
Org.nr: 982974011
Adkomstrett for drift og vedlikehold av anlegg/ledninger/kabler
Bestemmelse om bebyggelse i nærhet av anlegg
Bestemmelse om (begrensning av) endring i terrenget i nærheten av anlegg
Registrert feil type bestemmelse
Rettet etter tingl. §18
14.09.2021 Arkivref. 21/43920-1
2021/1311732-1/200 Bestemmelse om veg
20.10.2021 21:00 Rettighetshaver:ARENDAL KOMMUNE
Org.nr: 940493021
Bestemmelse om vedlikehold
2021/1311732-2/200 Bestemmelse om bebyggelse
20.10.2021 21:00 Rettighetshaver:ARENDAL KOMMUNE
Org.nr: 940493021
Ikke tillatt å bygge nærmere rør eller ledning enn 4,5 m
2023/901899-1/200 Erklæring/avtale
23.08.2023 21:00 Rettighetshaver:ARENDAL KOMMUNE
Org.nr: 940493021
Rett til å etablere ledningsnett med tilhørende infrastruktur
Bestemmelse om vedlikehold av anlegg/ledninger
Bestemmelse om bebyggelse i nærheten av anlegg/ledninger/kabler
2023/901951-1/200 Bestemmelse om veg
23.08.2023 21:00 rettighetshaver:Knr:4203 Gnr:213 Bnr:220
2023/901951-2/200 Bestemmelse om vannledning
23.08.2023 21:00 rettighetshaver:Knr:4203 Gnr:213 Bnr:220
Vei / Vann / Avløp
Eiendommen blir tilknyttet offentlig vei-, vann- og avløpsnett og utbygger dekker alle kostnader til tilknytning, ifølge selger.
Ferdigattest eller midl. brukstillatelse
Ferdigattest eller midlertidig brukstillatelse skal foreligge skriftlig før overtagelse kan finne sted. I motsatt fall anbefaler megler at overtagelse utsettes og at kjøper ikke overtar.
Når overtagelse skjer ved midlertidig brukstillatelse anbefales kjøper å holde tilbake ett forholdsmessig beløp som sikkerhet for at ferdigattest fremskaffes. Det er opp til kjøper om de vil rådføre seg med eksterne fagmenn vedrørende størrelsen på beløpet og verdien på gjenstående arbeider. Tilbakehold må kjøper protokollføre på overtagelsesprotokollen eller på annen måte skriftlig varsle eiendomsmegler og selger før hjemmelsovergang.
Verdi ved skattefastsetting
Verdien ved skattefastsetting er p.t. ikke fastsatt. Verdien ved skattefastsetting fastsettes av Ligningskontoret etter beregningsmodell som tar hensyn til om boligen er en såkalt "primærbolig" (der boligeieren er folkeregistrert bosatt) eller "sekundærbolig" (alle boliger man eier, men ikke bor fast i). Interessenter oppfordres til å sjekke www.skatteetaten.no eller kontakte ansvarlig megler for nærmere informasjon om verdien ved skattefastsetting.
Reguleringsforhold
Regulert område til boligbebyggelse.
Det er planlagt oppføring av rekkeboliger på feltet i regi av Arendal Boligbyggelag - se skraverte boliger på situasjonsplanen.
Beskrivelse av sameiet
Forretningsfører
5 leiligheter er solgt, som er fordelt på to stk firemannsboliger. Kjøper aksepterer at selger står fritt til å velge forretningsfører etter eget skjønn.
Det er utarbeidet utkast til vedtekter for sameiet som følger vedlagt. Vedtektene er å betrakte som foreløpige og det tas forbehold om endringer i forbindelse med innsendelse av endelig seksjoneringsbegjæring, prosjektendringer, mv. Utbygger forbeholder seg retten til å foreta alle slike endringer. Det tas forbehold om endringer i vedtektene.
Kjøperne vil etter at de fleste leiligheter og fellesarealet er overtatt bli informert fra Hetland Agder AS om overtagelse av den alminnelige driften av sameiet. Herunder må det blant eierne velges et styre i sameiet for å ivareta sameiets rettigheter og forpliktelser.
Sameiet vil være regnskapspliktig og sameiet skal/bør registreres i foretaksregisteret.
Størrelsen på fellesutgiftene er ikke endelig fastsatt, men stipulerte fellesutgifter skal dekke eierseksjonssameiets ordinære driftsutgifter og avhenger av ytelsene sameiet rekvirerer. Fellesutgiftene fordeles dels etter sameiebrøk, dels etter nytte. Dette er nærmere regulert i utkast til vedtekter for sameiet. Basert på utkast til budsjett for sameiet er fellesutgifter stipulert til ca. kr. 20, per BRA m2 pr. måned ved overtagelsestidspunktet. Avhengig av boenhetenes størrelse. Det bemerkes at tallet vil bli endelig justert.
En sameier eier en andel i eiendommen, med tilknyttet enerett til bruk av sin bruksenhet, jf. eierseksjonsloven § 25.
Ingen kan erverve mer enn to boligseksjoner i et sameie, jf. eierseksjonsloven § 23 første ledd. Dersom et erverv har funnet sted i strid med eierseksjonslovens regler kan Kartverket nekte overskjøting.
Dersom overskjøting blir nektet, er kjøper likevel forpliktet til å gjennomføre handelen med selger, og oppgjør til selger vil finne sted tross manglende overskjøting.
Interessenter oppfordres til å sette seg inn i sameiets vedtekter, husordensregler, regnskap, budsjett, årsberetning m.m. Se særlig om vedtekter og husordensregler knyttet til husdyrhold, dugnader, trappevask o.l.
Oppgjør
BETALINGSBETINGELSER:
Med mindre annet er avtalt forutsettes det at kjøper innbetaler 10 % ved kontrakts underskrift, og ved garantistillelse iht. bustadoppføringslova §12. Beløpet innbetales meglers klientkonto og er avtalt å være depositum i samsvar med bustadoppføringslovens § 46 (2). Dersom selger stiller garanti iht bustadoppføringslova § 47, blir depositumet å anse som forskudd og kan utbetales til selger. Depositumet skal være fri egenkapital og det kan ikke tas pant i kjøpt eiendom for beløpet. Når selger har stilt lovpålagt sikkerhet for beløpet vil selger få instruksjonsrett over beløpet på meglers klientkonto. Opptjente renter tilfaller etter dette selger. Betalingsforpliktelsen inntrer uansett ikke før tilfredsstillende garanti er stilt. Kjøpesum og omkostninger skal være innbetalt meglerforetakets klientkonto senest to dager før overtagelse. Dersom utbygger stiller garanti iht. bustadsoppføringslovas § 47 kan sluttoppgjøret også utbetales til selger før tinglysing av skjøte. Renter opptjent på klientkonto tilfaller kjøper inntil skjøte er tinglyst eller selger stiller forskuddsgaranti iht. bustadoppføringslovens § 47.
Salgsbetingelser - garantier:
Boligene selges til forbrukerkjøper etter bustadoppføringslovas bestemmelser. Utbygger stiller garanti iht. §12 i bustadoppføringslova.
Dersom utbygger stiller garanti iht. bustadsoppføringslovas § 47 kan eventuell innbetalt del av kjøpesummen/forskudd utbetales til selger før overtagelse og tinglysing av skjøte. Renter opptjent på klientkonto tilfaller kjøper inntil skjøte er tinglyst eller selger stiller forskuddsgaranti iht. bustadoppføringslovens § 47.
Kjøpekontrakt
Selger vil benytte egen standard kjøpekontrakt. Det forutsettes at kjøpetilbud legges inn på grunnlag av denne kjøpekontrakten, og en eventuell aksept gis under samme forutsetning. Standard kjøpekontrakt er vedlegg til salgsoppgaven. Salg til kjøpere som ikke er forbrukere faller utenfor bustadoppføringslova. For andre enn forbrukere vil det gjelde særskilte betingelser. Kontakt selger for kopi av kjøpekontrakt basert på bestemmelsene i avhendingslova, som benyttes ved salg til næringsdrivende/ikke forbruker.
Finansiering
Kontakt megler for avklaring av finansielle forhold, herunder lån til kjøp av eiendom. Privatmegleren har avtale med Nordea om formidling av lån og andre finansielle tjenester. Privatmegleren mottar godtgjørelse for dette.
Adgang til utleie
Leilighetene eller eneboligene kan i sin helhet fritt leies ut til boligformål.
Det vil normalt være anledning til utleie av hele eiendommen eller enkeltrom, så fremt arealet er godkjent for varig opphold iht. plan- og bygningsloven og har forsvarlig radonnivå. Det henvises til gjeldende skatteregler.
Konsesjon / Odel
Det er ikke krav til konsesjon ved erverv av eiendommen. Det hefter ikke odel på eiendommen.
Sikkerhetsstillelse
Alle eiendomsmeglingsforetak har lovpålagt forsikring av klientmidler begrenset oppad til kr 45 mill. Enkeltsaker er forsikret inntil kr 15 mill. Dersom kjøpers låneinstitusjon krever tilleggsforsikring ved omsetning over 15 millioner, må kjøper selv eller dennes låneinstitusjon dekke utgiftene forbundet med dette.
Planlagt overtagelse
Etter nærmere avtale.
Selgers forbehold
Selger tar forbehold om:
- At det er gitt igangsettingstillatelse, rammetillatelse, andre nødvendige godkjenninger fra offentlige myndigheter og åpning av byggelån.
Selger må senest innen 12 måneder fra budaksept gi skriftlig underretning til kjøper dersom ovennevnte forbehold påberopes og kjøpekontrakten kanselleres. Avtalen er bindende i 12 måneder fra budaksept. Utbyggermå fatte byggebeslutning innen disse 12 månedene for at avtalen skal gjennomføres. Ved selgers kansellering av kjøpekontrakten, vil kjøper få alle innbetalte beløp tilbakebetalt med tillegg av påløpte renter på meglers
klientkonto. Ut over dette har partene ingen krav mot hverandre.
Alle opplysninger i denne beskrivelse er gitt med forbehold om rett til endringer som er hensiktsmessige og nødvendige, eller som følge av offentlige pålegg, uten at den generelle standarden forringes. I fall det forekommer avvik mellom denne beskrivelsen og plantegningen eller informasjon beskrevet i salgsmateriell, er det denne beskrivelsen som gjelder.
Tegninger og skisser i tegnings- og salgsmaterialet eller salgsprospekt er ment som illustrasjoner før bygget er ferdig og kan inneholde elementer som ikke inngår i leveransen, for eksempel garderobeskap, møblering, fargevalg og dør- og vindusform. Videre kan enkelte bygningsmessige detaljer som for eksempel fasadedetaljer, fellesarealer, materialvalg, blomsterkasser/arrangement, beplantning, fargesetting etc. avvike fra nevnte tegninger, skisser og illustrasjoner.
Vindusplasseringer, terrasse- og rekkverksløsninger i tilknytning til den enkelte leilighet kan avvike noe fra de generelle planer som følge av arkitektoniske eller konstruksjonsmessige hensyn i prosjektet.
Utforming av kjøkken på plantegninger er kun illustrativt.
Generelle beskrivelser av prosjektet i salgs- og markedsføringsmateriell vil ikke passe for alle enhetene. Kjøper oppfordres derfor særskilt til å vurdere solforhold, utsikt, beliggenhet i forhold til terreng og omkringliggende bygningsmasse m.v. før et eventuelt bud inngis.
Selger forbeholder seg retten til den endelige utformingen av utomhusplanen for prosjektet. Kjøper aksepterer at evt. avvik fra fremlagte opplysninger ikke kan danne grunnlag for prisavslag og/eller heving av kjøpet. Kjøper gjøres oppmerksom på at det i nye bygg kan oppstå noe svinnriss i mur og betong, sprekker i skjøter på treverk, fuger som sprekker opp, tapet, maling m.v. og i materialoverganger. Kjøper kan ikke kreve utbedret eller
gjøre gjeldende misligholdsbeføyelser for slike forhold, med mindre arbeidet ikke er fagmessig utført.
Det tas forbehold om at sjakter og føringsveier for VVSinstallasjoner kan bli endret.
Inntil hele byggeprosjektet er ferdigstilt, har selger rett til å ha stående anleggsmaskiner og utstyr, eventuelle brakker m.v., samt ha stående skilt på den solgte eiendom. Det må også påregnes byggestøy i denne perioden. Eventuelle skader som dette måtte påføre eiendommen, skal selger
snarest utbedre.
Forkjøpsrett
Ikke aktuelt.
Solgt ihht bustadoppføringsloven
Boligene selges i henhold til Bustadoppføringslova som regulerer kjøpers (forbrukers) rettigheter og plikter ved avtale om oppføring av bolig og kjøp av fast eiendom der bygningen ikke er fullført når avtalen inngås. Ved salg til aksjeselskap legges Avhendingslovens bestemmelser til grunn. For øvrig gjelder Lov om eierseksjoner for eierseksjonssameiet og driften av dette.
Garantier
Det stilles garantier i henhold til Bustadoppføringslovas bestemmelser. Garanti etter § 12 vil bli stilt i forbindelse med avtaleinngåelse. Garantien skal være pålydende 3% av kjøpesummen i byggetiden og 5% i 5 år etter overlevering av boligene til kjøper. Garanti etter § 47 forutsettes stilt om selger ønsker utbetalt forskudd/delinnbetaling/sluttoppgjør før hjemmelsovergang. Eventuelle påkrevde endringer av garantier ved eventuelle videresalg/transporter utføres ikke og bekostes ikke av selger.
Forsikring
Frem til overtagelse vil eiendommen være forsikret av selger. Etter overtagelse vil eiendommen forsikres gjennom sameiets fellesforsikring. Kjøper må selv besørge innboforsikring og forsikring av eventuelle særskilte påkostninger.
Budgiving
Boligene selges til fastpris.
Alle bud/kjøpetilbud på eiendommen skal være skriftlig og sendes meglerforetaket pr. fax, mail, sms eller via vår "gi bud"-knapp på våre nettsider. Knappen finner du også på Privatmeglerens hjemmeside for prosjektet, se på den enkelte bolig.
Bud/kjøpetilbud må ikke ha kortere akseptfrist enn til kl. 12.00 første virkedag etter siste annonserte visning. Lørdag regnes ikke som virkedag. Bud/kjøpetilbud med kortere frist enn dette kan ikke formidles av megler. Nærmere info om budgiving finner du på egen side sammen med kjøpetilbud/budskjema.
Som budgiver hos Privatmegleren kan du kreve budjournal fremlagt så snart handel er gjennomført.
Innhold i budjournal er lovregulert, og innebærer at budgivere må akseptere at opplysninger om budet kan bli fremlagt for selger, kjøper og øvrige budgivere. Budgiver som ikke blir kjøper, kan kreve kopi av anonymisert budjournal.
Lov om hvitvasking
Megler er underlagt lov om hvitvasking som innebærer plikt til å melde ifra til Økokrim om mistenkelige transaksjoner
Meglers vederlag og utlegg
Dersom eiendommen ikke omsettes, faktureres selger kr 45 000,-.
Nyttige lenker
Nærområdet

PrivatMegleren Arendal
Annonseinformasjon
| FINN-kode | 402397128 |
|---|---|
| Sist endret | 17. sep. 2025 16:48 |
| Referanse | 307240157 |
Annonsene kan være mangelfulle i forhold til lovpålagt opplysningsplikt. Før bindende avtale inngås oppfordres interessenter til å innhente komplett informasjon fra meglerforetaket, selger eller utleier.