Bildegalleri

Haga Kvartal Blokk Q

Skoletomta

Prisantydning4 350 000 kr
Totalpris
4 363 766 kr
Omkostninger
13 766 kr
Felleskost/mnd.
2 560 kr
  • Planlegging

    1.kvartal 2025

  • Salgsstart

    09.04.2025

  • Byggestart

    1.kvartal 2026

  • Overtakelse

    -

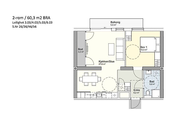
Nøkkelinfo

Boligtype
Leilighet
Etasje
6
Soverom
1
Rom
2
Internt bruksareal
60 m² (BRA-i)
Bruksareal
63 m²
Eksternt bruksareal
3 m² (BRA-e)

Les mer om bruksareal her

Fasiliteter

Balkong/Terrasse
Bredbåndstilknytning
Garasje/P-plass
Heis
Kabel-TV
Utsikt
Turterreng

Visning

Ta kontakt for å avtale visning.Visningspåmelding

Beskrivelse

Ansvarlig megler

Per Ø. Bolstad

Nærområdet

Annonseinformasjon

FINN-kode402325497
Sist endret06. okt. 2025 06:17
Referanse7041250374

Rapporter annonse

Annonsene kan være mangelfulle i forhold til lovpålagt opplysningsplikt. Før bindende avtale inngås oppfordres interessenter til å innhente komplett informasjon fra meglerforetaket, selger eller utleier.