Bildegalleri
Haga Kvartal Blokk Q
Skoletomta
Prisantydning4 150 000 kr
Prosjektets status
Planlegging
1.kvartal 2025
Salgsstart
09.04.2025
Byggestart
1.kvartal 2026
Overtakelse
-
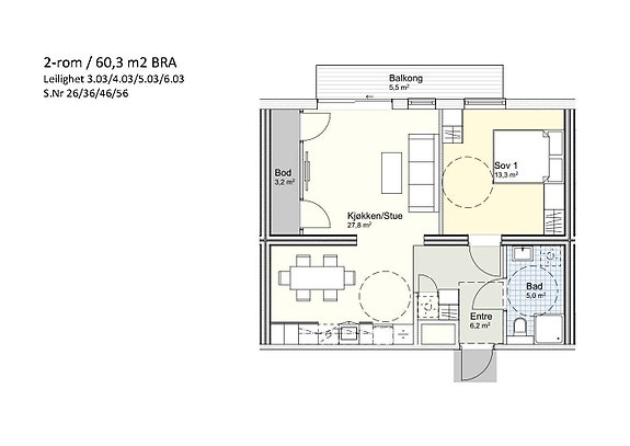
Nøkkelinfo
- Boligtype
- Leilighet
- Etasje
- 5
- Soverom
- 1
- Rom
- 2
- Internt bruksareal
- 60 m² (BRA-i)
- Bruksareal
- 63 m²
- Eksternt bruksareal
- 3 m² (BRA-e)
Fasiliteter
Balkong/Terrasse
Bredbåndstilknytning
Garasje/P-plass
Heis
Kabel-TV
Utsikt
Turterreng
Beskrivelse
Ansvarlig megler
Per Ø. Bolstad
NB: Knappen for å vise hele beskrivelsen har kun en visuell effekt.
NB: Knappen for å vise hele beskrivelsen har kun en visuell effekt.
Nyttige lenker
Nærområdet
EiendomsMegler 1 Dahl Drammen
et foretak i SpareBank 1 Sør-Norge konsernet
Annonseinformasjon
| FINN-kode | 402325487 |
|---|---|
| Sist endret | 06. okt. 2025 06:17 |
| Referanse | 7041250364 |
Annonsene kan være mangelfulle i forhold til lovpålagt opplysningsplikt. Før bindende avtale inngås oppfordres interessenter til å innhente komplett informasjon fra meglerforetaket, selger eller utleier.