Bildegalleri
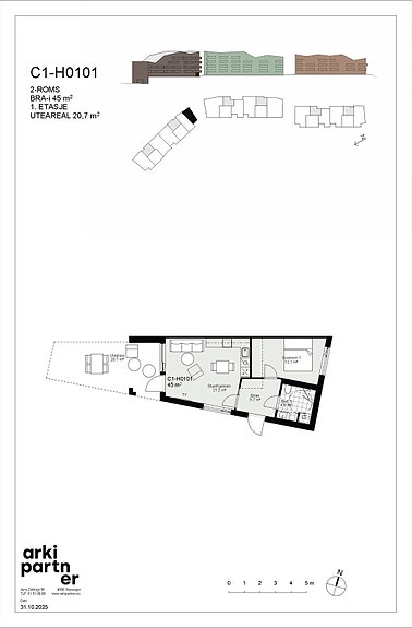
Plantegning C1-H101
Horisont/Vedafjell trinn 1
Langaberget 2
Prisantydning3 500 000 kr
Prosjektets status
Planlegging
Vinter 2023
Salgsstart
20. august 2024
Byggestart
3 kvartal 2025
Overtakelse
1. kvartal 2027
Nøkkelinfo
- Boligtype
- Leilighet
- Etasje
- 1
- Soverom
- 1
- Rom
- 2
- Internt bruksareal
- 45 m² (BRA-i)
- Bruksareal
- 50 m²
- Eksternt bruksareal
- 5 m² (BRA-e)
- Balkong/Terrasse
- 21 m² (TBA)
Fasiliteter
Balkong/Terrasse
Bredbåndstilknytning
Garasje/P-plass
Heis
Kabel-TV
Utsikt
Turterreng
Visning
Dersom du planlegger å delta på visning bes du om å melde deg på visningen i forkant til megler. Trykk på påmeldingsknappen i annonsen eller kontakt megler. Frist for påmelding er visningsdagen innen kl. 12.00. Visninger uten påmelding, vil ikke bli avholdt.
VisningspåmeldingBeskrivelse
Ansvarlig megler
Cecilie Grimsrud
NB: Knappen for å vise hele beskrivelsen har kun en visuell effekt.
NB: Knappen for å vise hele beskrivelsen har kun en visuell effekt.
Nærområdet
Eiendomsmegler Norge Nybygg Rogaland
Det viktigste stedet i Norge er der du bor
Annonseinformasjon
| FINN-kode | 399427070 |
|---|---|
| Sist endret | 17. nov. 2025 13:25 |
| Referanse | 33250013 |
Annonsene kan være mangelfulle i forhold til lovpålagt opplysningsplikt. Før bindende avtale inngås oppfordres interessenter til å innhente komplett informasjon fra meglerforetaket, selger eller utleier.

