Bildegalleri
Ager Borettslag - oppgang H - Leilighet 7063 (siste versjon)
Frysjaparken - Fjorten
Andelsleilighet: Leilighet 5 (7063)
Prosjektets status
Planlegging
-
Salgsstart
-
Byggestart
-
Overtakelse
Innflyttningsklare
Nøkkelinfo
- Boligtype
- Leilighet
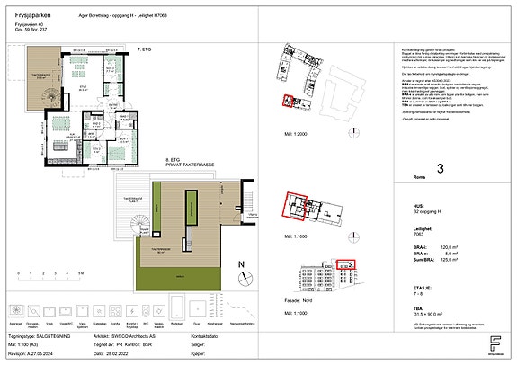
- Etasje
- 7
- Soverom
- 3
- Rom
- 4
- Internt bruksareal
- 120 m² (BRA-i)
- Bruksareal
- 0 m²
- Eksternt bruksareal
- 5 m² (BRA-e)
Beskrivelse
Matrikkel
Gnr. 59 bnr. 237, andelsnr. 140 i Oslo kommune
Prisinformasjon
Ordinærpris
Totalpris: 18 981 253,-
Innskudd: 14 050 000,-
Fellesgjeld: 4 850 000,-
Omkostninger: 81 253,-
Fellesutgifter år 1-5: 26 285,-
Fellesutgifter etter år 6: 30 123,-
Adresse
Leilighet 5 (7063)
0884
Oslo
Om prosjektet
Prosjektet består av 14 særegne toppleiligheter med stilfull arkitektur, gjennomgående gode løsninger og materialer fra øverste hylle.
Hver leilighet har sin egen identitet, og ingen er like. Samtlige boliger har likevel et fellestrekk: store og solrike takterrasser. Flere av leilighetene har pergola, utekjøkken og flott utsyn over byen og marka!
Toppleilighetene er fordelt på borettslagene Stilla og Ager i Frysjaparken.
Frysjaparken er nabolaget for deg som setter pris på kort avstand til bylivet i sentrum, samtidig som du ønsker deg et grønt nærmiljø og kort vei til aktiviteter og turopplevelser. Her kan du flytte inn i et moderne nabolag hvor det urbane og landlige møtes, med en rekke attraktive fasiliteter som gjør hverdagen din litt enklere.
Borettslagene har IN-ordning (individuell nedbetaling av fellesgjeld). IN-ordningen åpner for at den enkelte andelseier helt eller delvis kan nedbetale boligens andel av fellesgjeld. En innbetaling innenfor IN-ordningen gir andelseieren reduserte månedlige felleskostnader tilsvarende reduksjonen i renter og avdrag på borettslagets fellesgjeld.
Om området
Beliggenheten er unik - med marka og Akerselva som nærmeste nabo, samtidig som byen ikke er langt unna - her får du enkelt både storbypuls og hvilepuls. Du kommer deg raskt og enkelt til og fra sentrum med kollektivtransport. Ruters busser har stoppested like i nærheten, og fra Kjelsås går det både tog og trikk.
Området blir et levende nabolag med butikker, kaféer, grønne møteplasser, turmuligheter og godt kollektivtilbud.
Slik blir boligene
Arkitektens intensjon har vært å skape moderne, lyse og funksjonelle toppleiligheter i grønne omgivelser. Det er fokusert på at boligene utføres i materialer av høy kvalitet, og at alle leilighetene får hver sin unike egenart og identitet. De private takterrassene blir fantastiske med flere soner for hyggelige kvelder med venner og familie, eller for avslapping på solfylte dager.
Størrelsen varierer fra 93 kvm til 141 kvm. Alle de 14 toppleilighetene får store, solrike og private takterrasser, hvor de fleste får pergola og utekjøkken.
Toppleilighetene får rause vindusflater og god takhøyde - noe som gir godt med lysinnslipp. Interiørarkitekten har ikke spart på noe, og alle toppleilighetene blir levert med flotte kvaliteter og utsøkte detaljer som vindusinnramming i eik. Sofistikert, harmonisk og tidløst.
Toppen av lykke, på toppen av Frysjaparken:
Alle leiligheter får private takterrasser
Gode planløsninger med svært romslige stue- og kjøkkensoner
Plassbygde bad med store fliser og innredning fra HTH
1-stavs eikeparkett på gulv
Kjøkkeninnredning fra HTH, en helt ny modell på markedet
Helintegrerte hvitevarer av god kvalitet
Sparklet og malt himling
Skreddersydd lysplan til hver leilighet
Dimmere og stikkontakter i Elko Plus
Parkering
Parkeringsplasser selges separat.
Det vil opprettes en egen garasjeseksjon for et visst antall parkeringsplasser. Disse vil være omsettelige internt i borettslaget. Kjøpesummen for disse vil måtte betales ved enten egenkapital eller lån tatt opp av kjøper.
Alle garasjeplasser i både Stilla og Ager Borettslag leveres med ladeboks.
Prisen for garasjeplass er kr 600.000,- inkl. ladeboks.
Borettslagenes parkeringsbehov dekkes i felles parkeringskjeller med innkjøring fra Frysjaveien og gjennom «Stilla» sin parkeringskjeller for både leilighetene i Stilla og i Ager.
Det leveres en sportsbod på ca. 5 m² for alle leiligheter. Bodene er hovedsakelig plassert i forbindelse med parkeringsetasje eller underetasjer, men andre plasseringer kan forekomme.
Det er avsatt egne arealer til sykkelparkering i kjeller, i tillegg til utendørs sykkelparkering.
Kvalitet, standard og tilvalg
Lys og romslighet er viktige faktorer for deg som skal bo i leilighet. Derfor har alle de 14 toppleilighetene gjennomgående god takhøyde og rause vindusflater. Dette gir masse lysinnslipp og en åpen og luftig opplevelse av boligen.
Interiørarkitekten har ikke spart på noe, og alle boligene får solide kvaliteter både innvendig og utvendig. Fargepaletten er naturlig og harmonisk med lyse toner som møter mørkt treverk. Uttrykket blir sofistikert og tidløst.
Alle leilighetene får gode planløsninger med svært romslige stue- og kjøkkensoner. Både innredning, overflater og særegne detaljer gir boligene en enestående atmosfære og standard. Toppleilighetene er spekket med topp kvaliteter. Plassbygde bad, kjøkken med helintegrerte hvitevarer fra Miele, én-stavs eikeparkett og skreddersydd lysplan. For å nevne noe.
I tillegg har vi fra starten samarbeidet med egenlysdesigner, Stokkan Lys, for å få optimal og helhetlig belsyning både innvendig og utvendig. Lyspakken er individuelt tilpasset hver leilighet, og gir moderne belysning som skaper en lun atmosfære. Det er valgt kvalitetsprodukter med rene linjer og minimalistisk design.
12 av 14 leiligheter er godt utstyrt med toppmoderne utekjøkken og pergola. Utekjøkkenet kommer med utslagsvask, innlagt vann, og strømuttak. Flere får pergolaer, blomsterkasser og beplanting som skaper gode og lune soner. De aller fleste av leilighetene får takterrasser eller balkonger i flere himmelretninger slik at at du kan nyte solen hele dagen.
Det blir utarbeidet en tilvalgsliste med oversikt over mulige endringer av parkett, innvendige dører, skapfronter på kjøkken, hvitevarer, fliser på bad, elektro m.m. Det vises til denne tilvalgslisten for nærmere opplysninger. Det kan ikke bestilles tilvalg/endringer etter at tilvalgsfristen har utløpt.
Energimerking
Det utstedes endelig energiattest for den enkelte bolig som overleveres kjøper senest ved overtakelse.
Ager Borettslag og Stilla Borettslag som helhet er gjennomsnittlig energimerket grønn C. Energikarakteren vil kunne variere fra leilighet til leilighet i bygget.
Innflytting
Leilighetene er innflyttningsklare
Fellesgjeld/lånevilkår
Fellesgjelden i dette prosjektet er et annuitetslån over 40 år med 5 års avdragsfrihet. Dette lånet løper med flytende rente som i dag har rentesats 5%. Boligens felleskostnader er derfor beregnet med driftskostnader og rentekostnader på fellesgjelden etter denne satsen. Når fellesgjelden nedbetales fra år 6 må felleskostnadene forventes å øke. Prislisten for prosjektet viser hva dette er beregnet til (kontakt prosjektselger for fullstendig prisliste). For øvrig må endringer i den flytende rentesatsen forventes å medføre endringer i felleskostnadene.
Et annuitetslån er et lån som nedbetales med like store terminbeløp, helt til lånet er innfridd. I begynnelsen er derfor avdragsdelen liten, mens rentedelen er stor. Etter hvert som lånet reduseres stiger avdragsandelen og renteandelen blir mindre.
Det er mulig å innfri fellesgjelden helt eller delvis, gjennom OBOS IN-ordning.
Nærområdet

OBOS BBL
Annonseinformasjon
| FINN-kode | 398598781 |
|---|---|
| Sist endret | 15. sep. 2025 08:26 |
| Referanse | 810230301 |
Annonsene kan være mangelfulle i forhold til lovpålagt opplysningsplikt. Før bindende avtale inngås oppfordres interessenter til å innhente komplett informasjon fra meglerforetaket, selger eller utleier.