Bildegalleri
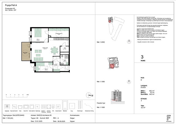
Plantegning - leil. 2023
Frysjatunet salgstrinn 4
Andelsleilighet: Frysjatunet salgstrinn 4
Prosjektets status
Planlegging
-
Salgsstart
-
Byggestart
- byggingen er i gang
Overtakelse
- Estimert fra 4 kvartal 2027
Nøkkelinfo
- Boligtype
- Leilighet
- Etasje
- 2
- Soverom
- 2
- Rom
- 3
- Internt bruksareal
- 89 m² (BRA-i)
- Bruksareal
- 94 m²
- Eksternt bruksareal
- 5 m² (BRA-e)
Visning
Ta kontakt for å avtale visning.Beskrivelse
Matrikkel
Gnr. 59 bnr. 736, leilighetsnr. 2023 i Oslo kommune
Prisinformasjon
Ordinærpris
Totalpris: 8 777 868,-
Innskudd: 4 350 000,-
Fellesgjeld: 4 350 000,-
Omkostninger: 77 868,-
Fellesutgifter år 1-5: 21 425,-
Fellesutgifter etter år 6: 25 349,-
Adresse
Frysjatunet salgstrinn 4 - 2023
0884
OSLO
Om prosjektet
Et spennende og nytt prosjekt i det populære og voksende nabolaget Frysjaparken.
Første, andre og tredje salgstrinn var en stor suksess og nå er salgstrinn 4 lansert, med 25 nye leiligheter fordelt i Hus D.
Prosjektet vil totalt bestå av totalt 162 moderne leiligheter og noen næringslokaler. Det fjerde salgstrinnet tilbyr 2- til 4-roms leiligheter i størrelser fra 40 m² til 114 m² BRA-i. Vi fortsetter også suksessen med to ulike konsepter: PRIMÆR og MER - mer informasjon om disse finner du i prospektet.
Det er mulig å innfri fellesgjelden helt eller delvis, gjennom OBOS IN-ordning.
Prosjektet er sentralt og idyllisk plassert mellom Korsvoll og Kjelsås. Her bor du med en unik beliggenhet i overgangen mellom marka og byen som gjør at du har tilgang til det beste fra to verdener - det urbane ned nærhet til sentrum, og det landlige ned blant annet utallige tur- sykkel- og skiløyper. Området byr også på mange ulike aktivitets- og kulturtilbud.
Se alt om prosjektet, kjøp etc på https://www.obos.no/ny-bolig/nye-nabolag/frysja/
Stabilt bomiljø i borettslag
En av de største fordelene med borettslag er at utleiemulighetene er begrenset. Prinsippet om at du som eier leiligheten også bor i den, gjør borettslag til en god boform. Det skaper stabile bomiljøer og gode nabolag. Beboerne har egeninteresse av å ta vare på sin egen bolig og området rundt. Ofte har de også et langtidsperspektiv på hvor lenge de blir boende. Utleie er likevel mulig også i borettslag: Hovedregelen for utleie i et borettslag er at du må ha bodd i boligen i minst ett av de siste to årene, og da kan du ikke leie ut lenger enn i tre år. Du må også få en godkjenning fra styret.
Om området
Frysjaparken er et moderne og attraktivt nabolag bestående av fem ulike borettslag og sameier: Frysjalia Borettslag, Kikut Sameie, Stilla Borettslag, Ager Borettslag, og nå Frysjatunet Borettslag. Hvert av disse er bygget rundt sitt eget åpne og hyggelige gårdsrom, og alle er forbundet gjennom gangstier, torg og grønne parkdrag som skaper en sammenhengende og trivelig atmosfære og ikke minst bomiljø.
Rett ved Frysjatunet Borettslag finner du et praktisk nærsenter som inkluderer blant annet Meny, blomsterbutikk, frisør, apotek og Jønk Burger. I umiddelbar nærhet finner du også en koselig kafé, restaurant, en søndagsåpen Joker-butikk, og et treningssenter - alt lett tilgjengelig for beboerne.
Frysjaparken kan i tillegg friste med en sushirestaurant, veterinær og det planlegges flere tjenester. Dette er et nabolag som kombinerer praktisk hverdagsliv med gode tilbud for en sosial og aktiv livsstil.
Torget som ligger i tilknytning til nærsenteret er et samlingspunkt for nabolaget. Her har du alle næringstilbudene rundt deg - samtidig er det tilrettelagt med sittebenker, utvendige sjakkbrett samt kort vei til lekearealer som gjør dette til en fin møteplass for både voksne og barn.
Om du behøver noe mer enn det nærsenteret kan tilby, er turen ned til Oslo sentrum kort. Du kan benytte de flotte sykkelstiene langs Akerselva - eller ta buss, trikk eller tog som du har like i nærheten. Ruters busser har flere stopp i Frysjaveien, og fra Kjelsås går det både tog og trikk.
For den treningsglade er mulighetene uendelige. Lange joggeturer langs lysløypene i høstmørket, strandvolleyball om sommeren, og skiturer så godt som rett fra døra om vinteren. Frysjaparken ligger ved inngangen til Nordmarka som er et eldorado av grusveier helt uten biltrafikk, flere idylliske innsjøer og skogsstier.
Kanskje du foretrekker en rusletur på en av de mange stiene langs Akerselva? Eller en utflukt til en av de mange turisthyttene i nærheten? I området finnes det flere idrettslag- og foreninger med organisert trening for store og små. Kjelsås idrettslag er kjent for å være et flere idrettslag med et godt lokalt tilbud til barn, ungdom og voksne. Idrettslagene tilbyr et bredt utvalg av idretter herunder bl.a. allidrett, alpint, basket, fotball, håndball, langrenn, paraidrett, 60 pluss og idrettskolen.
Slik blir boligene
Frysjatunet vil deles inn i ulike konsepter som er skapt for å kunne møte ulike behov og preferanser. Det fjerde salgstrinnet vil bestå av leiligheter med konsept-PRIMÆR og konsept-MER.
Konsept-PRIMÆR:
Leilighetene i dette konseptet vil passe for folk flest. Her får du en base med myke og nøytrale farger som gir spillerom for innslag av andre farger og materialer etter egne preferanser.
Konsept-MER:
Leilighetene i dette konseptet er laget for deg som ønsker litt MER. Her får du en avstemt og behagelig fargepalett som er inspirert av naturen.
Leilighetene i MER har en god intern beliggenhet. Her får du blant annet høyere standard på kjøkken, flere oppgraderinger på bad, oppgraderte innvendige dører, samt downlights i entrè.
Felles for konsept MER og PRIMÆR er at gulvet kommer i 1-stavs parkett i hvitlasert eik. Takhøyden på ca. 2,60 meter skaper en god og luftig atmosfære i hele leiligheten.
Kjøkkenet får stilren HTH kvalitetsinnredning som er både funksjonell og tidløs. HTH Focus på konsept MER og HTH Stockholm på PRIMÆR. Soverommene er romslige og tilbaketrukne, og badet kommer med moderne fasiliteter som gjør hverdagen enklere.
Leilighetenes gode planløsning gir gode muligheter for oppbevaring, i tillegg får hver leilighet en egen sportsbod i kjelleren.
Leilighetene kommer med en flott balkong eller markterrasse.
Tilvalg baderom i hus D har gått ut. Øvrige tilvalgsfrister går ut 27.02.26
Tilvalg
Tilvalg for baderom er utgått i samtlige hus/trinn.
Øvrige/resterende tilvalg er nå i sluttfasen og kan stenge fortløpende.
Ta derfor kontakt med oss så raskt som mulig dersom du ønsker endringer, da tilgjengelige tilvalg kan variere og i enkelte tilfeller allerede være avsluttet.
Fellesarealer
På Frysjatunet ønsker vi å tilrettelegge for at de som bor i borettslaget enkelt kan benytte seg av alt det flotte området har å by på.
Det etableres egne områder for sykkelparkering i garasjeanlegget.
Det leveres et felles hobbyrom for reparasjon av sykler med blant annet fastmontert stativ med tilhørende pumpe og diverse enkelt verktøy.
For den skiglade leveres det smørebod for prepping av ski.
For de med hund leveres det hundedusj som er praktisk etter en lang tur i marka.
Takterrasser: På Frysjatunet skapes det flotte oppholdsarealer ute på takene. Det blir både private takterrasser til enkelte leiligheter og flere felles taterrasser som alle de som bor i borettslaget kan benytte seg av. Det fremkommer i utomhusplanen hvilke takterrasser som blir felles og hvilke som blir private. De felles takterrassene vil få ulike soner med blandt annet benker/sittegrupper, pergola, solsenger og plantekasser. På takflatene hvor det ikke er terrassedel legges det matter av sedum som gir et frodig og grønt preg.
Som andelseier i Frysjatunet borettslag får du tilgang til "Røverhulen" som blir Frysjatunets eget felleslokale. Rommet er fleksibelt og leveres med blant annet kjøkken, Wc-rom, samt god plass til å innrede både stort spisebord og annen møblering etter borettslagets eget ønske og behov. I tillegg vil det være et hyggelig uteområde tilknyttet "Røverhulen" bestående både av terrasse og plenarealer.
Fellesrommet blir godt egnet til bursdager, selskaper og andre sosiale arrangementer for beboere i borettslaget. Rommet vil også være nyttig for borettslagets styre til for eksempel styremøter.
Parkering
Flere av leilighetene har garasjeplass i felles parkeringsanlegg. Parkeringsanlegget har direkte adkomst fra Frysjaveien og det er direkte heis derfra til alle leilighetsetasjene. Det fremkommer av prislisten hvilke leiligheter som selges med garasjeplass, og hvilke leiligheter som kan kjøpe garasjeplass separat. Alle garasjeplassene leveres klargjort for elbillader.
Oppvarming
Oppvarming er basert på bruk av panelovner og vannbåren gulvvarme på bad. Den vannbårne varmen leveres via en varmepumpe hvor energien er hentet fra en etablert geobrønnpark i Frysjaparken.
Energimerking
Frysjatunet Borettslaget som helhet er gjennomsnittelig energimerket C. Det utstedes en endelig energiattest for hver enkelt leilighet som overleveres kjøper senest ved overtagelse.
Innflytting
Prosjektet ferdigstilles fra fjerde kvartal 2027, men dette tidspunktet er foreløpig og ikke bindende, og det utløser ikke krav på dagmulkt.
Fellesgjeld/lånevilkår
Fellesgjelden i dette prosjektet er et annuitetslån over 40 år med 5 års avdragsfrihet. Dette lånet løper med flytende rente som i dag har rentesats 5,45 %. Boligens felleskostnader er derfor beregnet med driftskostnader og rentekostnader på fellesgjelden etter denne satsen. Når fellesgjelden nedbetales fra år 6 må felleskostnadene forventes å øke. Prislisten for prosjektet viser hva dette er beregnet til (kontakt prosjektselger for fullstendig prisliste). For øvrig må endringer i den flytende rentesatsen forventes å medføre endringer i felleskostnadene. Et annuitetslån er et lån som nedbetales med like store terminbeløp, helt til lånet er innfridd. I begynnelsen er derfor avdragsdelen liten, mens rentedelen er stor. Etter hvert som lånet reduseres stiger avdragsandelen og renteandelen blir mindre.
Det er mulig å innfri fellesgjelden helt eller delvis, gjennom OBOS IN-ordning.
Nærområdet

OBOS BBL
Annonseinformasjon
| FINN-kode | 397367018 |
|---|---|
| Sist endret | 08. mai 2026 09:02 |
| Referanse | 810250070 |
Annonsene kan være mangelfulle i forhold til lovpålagt opplysningsplikt. Før bindende avtale inngås oppfordres interessenter til å innhente komplett informasjon fra meglerforetaket, selger eller utleier.