Bildegalleri
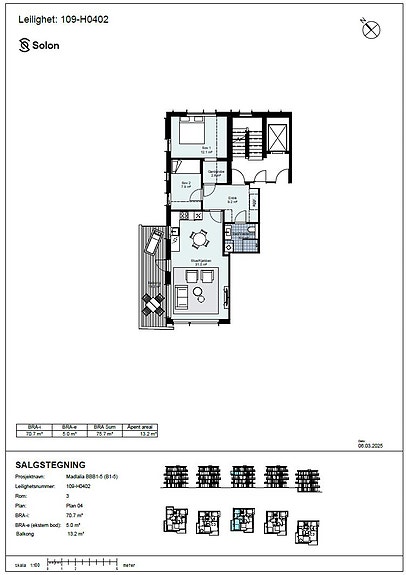
Plantegning
Madlalia - Trinn 1
Staudelia 109
Prisantydning8 500 000 kr
Prosjektets status
Planlegging
Ferdig
Salgsstart
21.januar 2025
Byggestart
Sommeren 2025
Overtakelse
Forventet ferdigstilt januar 2028
Nøkkelinfo
- Boligtype
- Leilighet
- Etasje
- 4
- Soverom
- 2
- Rom
- 3
- Internt bruksareal
- 70 m² (BRA-i)
- Bruksareal
- 75 m²
- Eksternt bruksareal
- 5 m² (BRA-e)
- Balkong/Terrasse
- 13 m² (TBA)
Fasiliteter
Balkong/Terrasse
Bredbåndstilknytning
Garasje/P-plass
Heis
Kabel-TV
Utsikt
Turterreng
Visning
onsdag, 28. januar
16:00 – 17:00
Velkommen til påmeldingsvisning. For visning utover det som er annonsert kontakt megler.
VisningspåmeldingBeskrivelse
Mer informasjon kommer
NB: Knappen for å vise hele beskrivelsen har kun en visuell effekt.
NB: Knappen for å vise hele beskrivelsen har kun en visuell effekt.
Nærområdet
EiendomsMegler 1 Nybygg Forus
En del av Sparebank 1 Sør-Norge
Annonseinformasjon
| FINN-kode | 396713431 |
|---|---|
| Sist endret | 14. nov. 2025 10:49 |
| Referanse | 2207250019 |
Annonsene kan være mangelfulle i forhold til lovpålagt opplysningsplikt. Før bindende avtale inngås oppfordres interessenter til å innhente komplett informasjon fra meglerforetaket, selger eller utleier.

