Bildegalleri
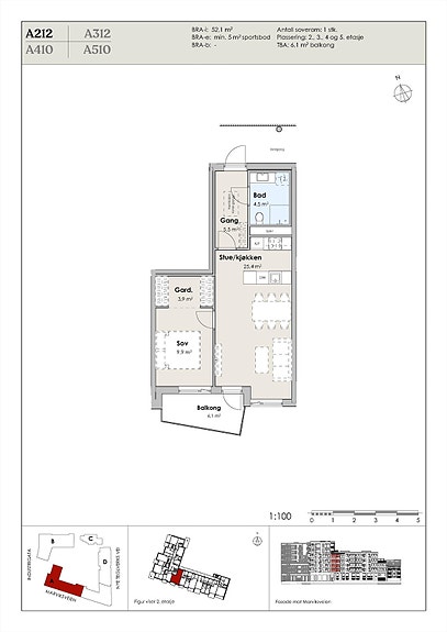
Plantegning A212
Inaktiv
Lund / Marvika
Lund atrium
56 nye selveierleiligheter i varierte størrelser | Parkering i kjeller | Det beste av by og Lund
Prisantydning4 150 000 kr
Prosjektets status
Planlegging
Ferdig
Salgsstart
Ferdig
Byggestart
Q4 2026
Overtakelse
Q1 - 2028
Nøkkelinfo
- Boligtype
- Leilighet
- Etasje
- 2
- Soverom
- 1
- Rom
- 2
- Internt bruksareal
- 52 m² (BRA-i)
- Bruksareal
- 57 m²
- Eksternt bruksareal
- 5 m² (BRA-e)
- Balkong/Terrasse
- 6 m² (TBA)
- Energimerking
Fasiliteter
Balkong/Terrasse
Bredbåndstilknytning
Garasje/P-plass
Heis
Utsikt
Vaktmester-/vektertjeneste
Turterreng
Beskrivelse
Ansvarlig megler
Christian Forum
NB: Knappen for å vise hele beskrivelsen har kun en visuell effekt.
NB: Knappen for å vise hele beskrivelsen har kun en visuell effekt.
Nærområdet
DNB Eiendom AS
Verdifulle salg
Annonseinformasjon
| FINN-kode | 396270752 |
|---|---|
| Sist endret | 27. mars 2026 14:38 |
| Referanse | 653240020 |
Annonsene kan være mangelfulle i forhold til lovpålagt opplysningsplikt. Før bindende avtale inngås oppfordres interessenter til å innhente komplett informasjon fra meglerforetaket, selger eller utleier.