Bildegalleri
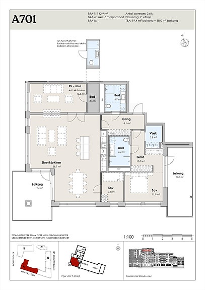
Plantegning A701
Lund / Marvika
Lund atrium
56 nye selveierleiligheter i varierte størrelser | Parkering i kjeller | Det beste av by og Lund
Prisantydning13 900 000 kr
Prosjektets status
Planlegging
Q4 - 2024
Salgsstart
Q1 -2025
Byggestart
Q3 - 2025
Overtakelse
Q3 - 2027
Nøkkelinfo
- Boligtype
- Leilighet
- Etasje
- 7
- Soverom
- 3
- Rom
- 4
- Internt bruksareal
- 142 m² (BRA-i)
- Bruksareal
- 147 m²
- Eksternt bruksareal
- 5 m² (BRA-e)
- Balkong/Terrasse
- 30 m² (TBA)
- Energimerking
- G - Mørkegrønn
Fasiliteter
Balkong/Terrasse
Bredbåndstilknytning
Garasje/P-plass
Heis
Utsikt
Vaktmester-/vektertjeneste
Turterreng
Beskrivelse
Lekker og romslig hjørneleilighet i 7.etg. Boligen har to soverom med hvert sitt bad, samt eget vaskerom med gjestetoalett. Stue/kjøkken har skjermet kjøkkensone med utgang til østvendt frokostbalkong med morgen- og formiddagssol. Romslig hovedbalkong på hjørnet mot sør-vest ut fra stue/kjøkken med ettermiddags- og kveldssol. Luftig utsikt til Marvika torv og nedover Lund.
Ansvarlig megler
Christian Forum
NB: Knappen for å vise hele beskrivelsen har kun en visuell effekt.
NB: Knappen for å vise hele beskrivelsen har kun en visuell effekt.
Nærområdet
DNB Eiendom AS
Fra hjem til hjem
Annonseinformasjon
| FINN-kode | 396270746 |
|---|---|
| Sist endret | 22. des. 2025 10:18 |
| Referanse | 653220116 |
Annonsene kan være mangelfulle i forhold til lovpålagt opplysningsplikt. Før bindende avtale inngås oppfordres interessenter til å innhente komplett informasjon fra meglerforetaket, selger eller utleier.