Bildegalleri
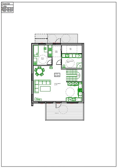
1. etasje
Solgt
Lafteråsen - tomt 5
Lafteråsen - Tomt 5
Lafteråsen - Tomt 5
Prisantydning7 200 000 kr
Prosjektets status
Planlegging
Planlagt
Salgsstart
Februar 2025
Byggestart
Høsten 2025
Overtakelse
April/Mai 2026
Nøkkelinfo
- Boligtype
- Tomannsbolig
- Etasje
- 2
- Soverom
- 4
- Rom
- 6
- Internt bruksareal
- 164 m² (BRA-i)
- Bruksareal
- 164 m²
Fasiliteter
Balkong/Terrasse
Bredbåndstilknytning
Garasje/P-plass
Kabel-TV
Peis/Ildsted
Utsikt
Turterreng
Beskrivelse
Ansvarlig megler
Ann-Kristin Salvesen
NB: Knappen for å vise hele beskrivelsen har kun en visuell effekt.
NB: Knappen for å vise hele beskrivelsen har kun en visuell effekt.
Nyttige lenker
Nærområdet
Annonseinformasjon
| FINN-kode | 395735935 |
|---|---|
| Sist endret | 18. nov. 2025 10:51 |
| Referanse | 513250021 |
Annonsene kan være mangelfulle i forhold til lovpålagt opplysningsplikt. Før bindende avtale inngås oppfordres interessenter til å innhente komplett informasjon fra meglerforetaket, selger eller utleier.