Bildegalleri

Weidemanns vei

23

Prisantydning8 300 000 kr
Totalpris
8 348 110 kr
Omkostninger
48 110 kr
Felleskost/mnd.
3 443 kr
  • Planlegging

    Kommer for salg

  • Salgsstart

    Februar 2025

  • Byggestart

    Februar 2026

  • Overtakelse

    Høst 2027

Nøkkelinfo

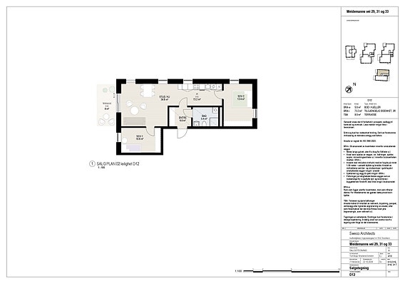
Boligtype
Leilighet
Etasje
2
Soverom
2
Internt bruksareal
73 m² (BRA-i)
Bruksareal
78 m²
Eksternt bruksareal
5 m² (BRA-e)

Les mer om bruksareal her

Visning

Ta kontakt for å avtale visning.Visningspåmelding

Beskrivelse

Oppvarming

Vannbåren gulvvarme

Beliggenhet

En leilighet med eksklusiv komfort, utsikt og kveldssol - og byens kulturelle tilbud rett rundt hjørnet. Står dette på ønskelisten din? Nå åpner vi dørene til en sjelden mulighet på Rosenborg.

bUnike leiligheter for de kresne/b
Det er sjelden at det bygges nytt på Rosenborg- og Møllenbergområdet. For deg som vil bo nær bykjernen og samtidig ha høy bostandard, får du nå en gyllen mulighet til å realisere drømmen.

Tre nybygg skal gli inn i det historiske området, mens et vernet bygg beholder sin opprinnelige fasade. Boligene tilfører et friskt pust i et historisk nabolag, samtidig som utbyggeren passer på å ta vare på sjelen i området. Nettopp derfor er arkitekturen er inspirert av de tradisjonelle trehusene. Nybyggene blir blir kledd med skråtak, treverk og de karakteristiske «trondheimsfargene», som man kjenner igjen fra trehusene både på Rosenborg og ellers i Trondheim.

Innvendig varierer leilighetene i størrelse fra 44 til 223 kvm. Her får du ekstra god takhøyde, og de store vindusflatene gir deg massevis av dagslys. Romslige balkonger og terrasser inviterer deg til å nyte ettermiddagssola og utsikten over byen, fjorden eller de sjarmerende trehusene.

Hvis du liker deg i høyden, kan en av toppleilighetene være noe for deg. De går over to etasjer, og har ekstra store terrasser og eksklusive materialer - som fiskebeinsparkett i eik og kjøkkenbenker i stein. Utbyggerens kvalitetsfokus gjenspeiles selvfølgelig også i de øvrige leilighetene. De største leilighetene kan også tilpasses med gasspeis og vinrom, som en del av tilvalgsprosessen.

Detaljene som gjør leiligheten komplett
Hvilke drømmer har du for ditt neste hjem? Et sted hvor du kan nyte utsikten over byens glitrende lys, mens du varmer deg foran en gasspeis? Eller kanskje et vinrom hvor favorittene dine får sin velfortjente plass? I Weidemanns vei handler det om å skape et hjem som passer akkurat deg. Flere av leilighetene kan tilpasses med detaljer som gjør livet litt bedre. For Nidelven Eiendom er både helheten og de små tingene viktige - alt for å skape hjem hvor folk virkelig trives. Med rom for både personlige ønsker og praktiske løsninger er leilighetene i Weidemanns vei mer enn et sted å bo - de er hjem som reflekterer hvem du er og hvordan du vil leve.

Ta del i alt sentrum har å by på
Ferske croissanter til frokost, en shoppingrunde på formiddagen og en konsert på kvelden? Fra Weidemanns vei ligger utallige muligheter rett utenfor ytterdøra, og du kan velge fritt etter appetitt, dagsform og innfall.

Med kort vei til kulturopplevelser og byliv kan du bruke tiden på det som betyr mest for deg. Både Solsiden, Olavshallen, Britannia og Nye Hjorten Teater venter på å gi hverdagen din krydder og liv - i godt selskap med byens entourage av berikende opplevelser. Byens beste restauranter og vinbarer står også alltid klare til å ta deg vel imot. Og du slipper å ta bilen hjem.

Ferdigattest

Utbygger plikter å fremskaffe ferdigattest når eiendommen er ferdigstilt.

Hvitevarer / tilbehør

Hvitevarene og brunevarer medfølger ikke i handelen med mindre det tydelig fremgår av salgsoppgaven.

Ligningsverdi (formuesverdi)

Formuesverdi fastsettes av skatteetaten etter ferdigstillelse.

Nærområdet

Annonseinformasjon

FINN-kode395407173
Sist endret28. jan. 2026 11:01
Referanse492510026

Rapporter annonse

Annonsene kan være mangelfulle i forhold til lovpålagt opplysningsplikt. Før bindende avtale inngås oppfordres interessenter til å innhente komplett informasjon fra meglerforetaket, selger eller utleier.