Bildegalleri
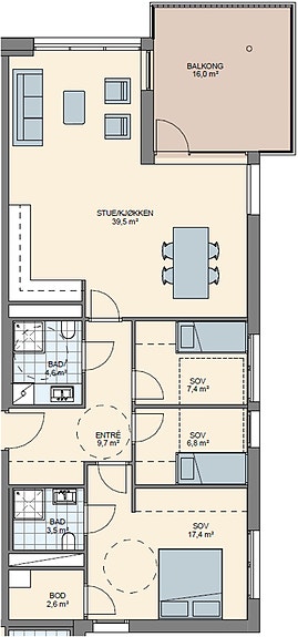
Plantegning H-0603
Inaktiv
Brevik
Trosvik Brygge
Strømtangvegen 21 og 23
Prisantydning4 250 000 kr
Prosjektets status
Planlegging
2024/2025
Salgsstart
Våren 2025
Byggestart
Ved 50% solgte enheter
Overtakelse
4. kvartal 2027
Nøkkelinfo
- Boligtype
- Leilighet
- Etasje
- 6
- Soverom
- 3
- Rom
- 4
- Internt bruksareal
- 98 m² (BRA-i)
- Bruksareal
- 103 m²
- Eksternt bruksareal
- 5 m² (BRA-e)
- Balkong/Terrasse
- 16 m² (TBA)
Fasiliteter
Balkong/Terrasse
Garasje/P-plass
Heis
Kabel-TV
Utsikt
Turterreng
Visning
Velkommen til visning! Meld deg gjerne på, men det er fullt mulig å komme uten påmelding også. Kontorbygget som står der leilighetene skal bygges gir en unik mulighet til å se den faktiske utsikten og hvordan solforholdene er i både 1. og 2. etasje på byggetrinn 1, 2 og 3. Benytt anledningen før bygget rives!
Ønsker du kun å bli holdt orientert, kan du fra eiendommens hjemmeside få varsel om solgtpris, eller kontakte megler.
VisningspåmeldingBeskrivelse
Ansvarlig megler
Kjersti F. Rønningsland
Eiendomsmegler
NB: Knappen for å vise hele beskrivelsen har kun en visuell effekt.
NB: Knappen for å vise hele beskrivelsen har kun en visuell effekt.
Nyttige lenker
Nærområdet
Krogsveen Bamble og Porsgrunn
Velkommen til en enklere boligreise.
Annonseinformasjon
| FINN-kode | 395396337 |
|---|---|
| Sist endret | 12. nov. 2025 09:46 |
| Referanse | KR28.24101 |
Annonsene kan være mangelfulle i forhold til lovpålagt opplysningsplikt. Før bindende avtale inngås oppfordres interessenter til å innhente komplett informasjon fra meglerforetaket, selger eller utleier.