Bildegalleri

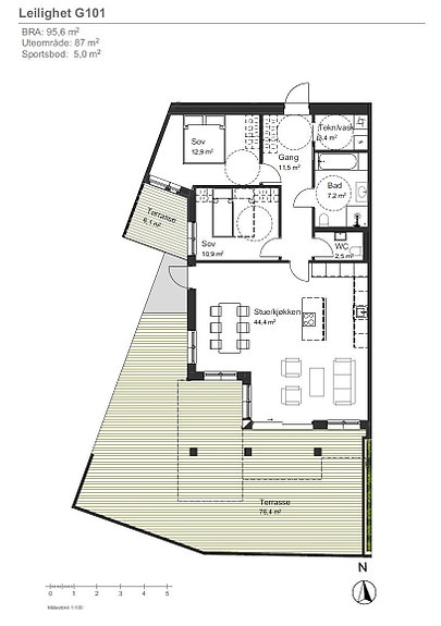
Plantegning - G101
FARØY BRYGGE - FARØYVEIEN 2
Farøy Brygge - Farøyveien 2-4-6
Prisantydning8 600 000 kr
Prosjektets status
Planlegging
2024/25
Salgsstart
1. kvartal 2025
Byggestart
2. kvartal 2025
Overtakelse
Fra 4. kvartal 2026
Nøkkelinfo
- Boligtype
- Leilighet
- Etasje
- 1
- Soverom
- 2
- Rom
- 3
- Internt bruksareal
- 96 m² (BRA-i)
- Bruksareal
- 102 m²
- Eksternt bruksareal
- 6 m² (BRA-e)
- Balkong/Terrasse
- 84 m² (TBA)
Fasiliteter
Balkong/Terrasse
Bredbåndstilknytning
Garasje/P-plass
Heis
Peis/Ildsted
Utsikt
Beskrivelse
Mer informasjon kommer
NB: Knappen for å vise hele beskrivelsen har kun en visuell effekt.
NB: Knappen for å vise hele beskrivelsen har kun en visuell effekt.
Nærområdet
EiendomsMegler 1 Nybygg Sør
En del av Sparebank 1 Sør-Norge
Annonseinformasjon
| FINN-kode | 393473411 |
|---|---|
| Sist endret | 12. sep. 2025 12:48 |
| Referanse | 2608240102 |
Annonsene kan være mangelfulle i forhold til lovpålagt opplysningsplikt. Før bindende avtale inngås oppfordres interessenter til å innhente komplett informasjon fra meglerforetaket, selger eller utleier.


