Bildegalleri
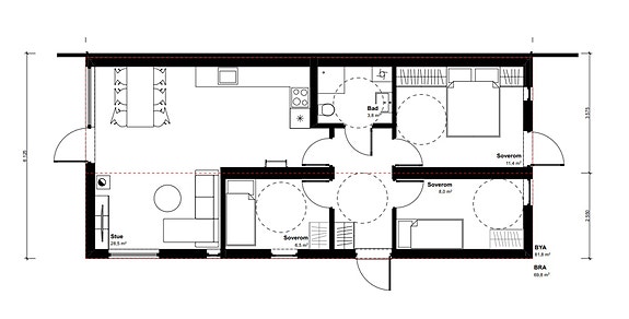
Plantegning - Marios
Auli Eplehager
Auli Eplehager - Astris - M05
Prosjektets status
Planlegging
-
Salgsstart
-
Byggestart
Sommer/høst 2025
Overtakelse
3. kvartal 2026
Nøkkelinfo
- Boligtype
- Enebolig
- Soverom
- 3
- Internt bruksareal
- 70 m² (BRA-i)
- Bruksareal
- 75 m²
- Eksternt bruksareal
- 5 m² (BRA-e)
Beskrivelse
Velkommen hjem!
I Auli Eplehager planlegges nå små og koselige eneboliger. De er moderne, lettstelte og praktiske, noe som gjør at boligene egner seg for alle aldersgrupper - og kanskje spesielt for de som verken er klar for eller ønsker leilighet!
Nå har du muligheten til å sikre deg en av de siste enhetene som er igjen i prosjektet. Dette er et helt nytt og gjennomarbeidet boligområde med fokus på ro, trygghet og naturskjønne omgivelser.
Prosjektet består av totalt 13 stilrene og funksjonelle eneboliger, alle med livsløpsstandard og alt på én flate - perfekt for både unge, barnefamilier, godt voksne og alle som ønsker et lettstelt hjem uten trapper eller dørlister (livsløpsstandard).
Hver enhet får privat hage, carport og sportsbod, og det opparbeides det ny internvei til kommunal standard med gatebelysning i Verkensvegen - og med kun 1 km til Auli togstasjon, har du også enkel tilgang til Oslo og Gardermoen.
Nøkkelinfo
- Energiklasse B - mulighet for grønt boliglån med lavere boliglånsrente!
- Alt på ett plan - livsløpsstandard og trinnfri adkomst
- Verkensvegen oppgraderes til kommunal standard med gatebelysning
- Kun 1 km. til togstasjon
- Gulvvarme i alle rom - inkludert i leveransen
- Opplegg for vedfyring - kan leveres med vedovn (tilvalg)
- Lave dokumentavgift (av tomteverdi)
- Lavere bokostnader og energieffektive løsninger
- Kledning i brent treverk - gir lang levetid og minimalt vedlikehold
- Balansert ventilasjon og moderne, stilrene overflater
- Egen uisolert sportsbod på ca. 5 kvm
- Carport og gårdsplass til bil
- Egen hage - perfekt for rekreasjon, lek og dyrking
- Tilvalgspakker: oppgradert kjøkken, vedovn, parkett, fliser, varmepumpe m.m.
- Klart for innflytting uten behov for oppussing
Et smartere hjem - med mindre bekymringer
Å bo i en liten enebolig som Marios eller Astris gir deg et smartere og mer fleksibelt liv til å gjøre det du har lyst til. Med et areal på alt fra 45 til 70 kvadratmeter, tilbyr disse små, kompakte boligene både økonomiske og praktiske fordeler. Med et begrenset fotavtrykk og nøye gjennomtenkt planløsning, får du:
1. Lavere boligkostnader
Reduserte kostnader til kjøp, strøm, oppvarming og vedlikehold gir deg større økonomisk frihet.
2. Mindre vedlikehold
Med færre rom og flater, og vedlikeholdsvennlig brent trekledning, får du mer tid til å nyte livet og mindre tid brukt på arbeid rundt huset. Huset leveres med brent kledning som har lengre levetid og krever mindre vedlikehold.
3. Miljøvennlig og bærekraftig
Mindre areal, lavere energibruk og smart bruk av plass gir et mer bærekraftig fotavtrykk.
4. Bedre bokomfort
Gulvvarme i alle rom, balansert ventilasjon og store vinduer gir deg et lunt, behagelig og friskt inneklima - hele året.
5. Skreddersøm og frihet
Med mulighet for hems, vedfyring og oppgraderte innredningspakker kan du tilpasse hjemmet til dine behov og ønsker.
Astris - 45 kvm - A08 og A09
Astris er et ideelt minihus med to soverom og livsløpstandard - en perfekt løsning for deg som ønsker å bo moderne, bærekraftig og økonomisk. Huset har en flate på ca. 45 kvm som er inndelt i stue/kjøkken, to soverom, bad og en praktisk entré/gang. Takhøyden på inntil ca. 2,94 meter i stuen/kjøkkenet gir sammen med store vinduer en åpen og innbydende atmosfære.
Astris har en god standard og inkludert i leveransen er både gulvvarme, balansert ventilasjon og stilrene overflater. Kjøkken er inkludert til en verdi av kr 45 000,- og bad til en verdi av kr 30 000,-. Praktisk oppbevaringsplass medfølger i en uisolert utebod på ca. 2,5 kvm.
Marios - 70 kvm - M01, M02, M03, M05 og M07
Marios er et familievennlig minihus med livsløpstandard. Huset har en flate på ca. 70 kvm som er inndelt i stue/kjøkken, tre soverom, bad og entré/gang. I tillegg er det mulighet for hems. Takhøyden på inntil ca. 3,35 meter i stuen/kjøkkenet gir sammen med store vinduer en åpen og innbydende atmosfære.
Marios har en god standard og inkludert i leveransen er både gulvvarme, balansert ventilasjon og stilrene overflater. Kjøkken er inkludert til en verdi av kr 55 000,- og bad til en verdi av kr 30 000,-. Praktisk oppbevaringsplass medfølger i en uisolert utebod på ca. 5 kvm.
Oppdragsansvarlig/Megler
NERO Eiendomsmegling AS
Org.nr. 985 403 368
PrivatMegleren Lillestrøm
Jernbanegata 8, 2004 Lillestrøm
Ansvarlig megler: Lasse Saltkjel
Selger
Minihus Auli AS
Org.nr. 932 723 182
Byggeår
2025/2026
Arealer
Astris: Totalt BRA 50 kvm består av:
- BRA-i (internt bruksareal): 45 kvm
- BRA-e (eksternt bruksareal): 5 kvm
Planløsning: Gang/entré, to soverom, bad og stue/kjøkken
Marios: Totalt BRA 75 kvm består av:
- BRA-i (internt bruksareal): 70 kvm
- BRA-e (eksternt bruksareal): 5 kvm
Planløsning: Gang/entré, tre soverom, bad og stue/kjøkken
Vedlagte plantegninger er ikke målbare. Arealene er basert på tilgjengelig tegningsmateriell fra utbygger og er satt iht. NS3940. Det gjøres oppmerksom på at boenhetens totale BRA er større enn summen av arealene fra hvert enkelt rom. Dette skyldes at boenhetens totale BRA også inneholder/medtar arealer for innvendige vegger. Se prislisten for detaljert oversikt over de enkelte boligene.
Tomt/Matrikkelnummer/Betegnelse
Nåværende tomtebetegnelse på hele området er Gnr. 199, Bnr. 86, 88, 89, 90, 95 og 104 i Nes kommune. Endelig gnr/bnr er ikke fastsatt. Eiendommen skal fradeles/sammenslås på et senere tidspunkt. Sameiets tomt skal opprettes med egen matrikkel og eiendommen vil bli seksjonert. Eiendommen vil få eiet tomt. Uteareal blir seksjonert og lagt til som tilleggsdel. Tomtenes areal er ennå ikke fastsatt, men estimert og vil kunne avvike fra situasjonsplan i salgsoppgave. Endelig adresse foreligger ikke på salgstidspunktet, men vil bli fastsatt før overtagelse.
Beliggenhet
Eiendommen ligger idyllisk plassert i et fredelig og familievennlig boligområde på Auli i Nes kommune. Området er kjent for sitt rolige preg, omkranset av naturskjønne omgivelser som byr på et rikt utvalg av tur- og rekreasjonsmuligheter. Fra eiendommen har man kort avstand til flere flotte turstier som strekker seg gjennom skog og mark, perfekt for deg som setter pris på friluftsliv og naturopplevelser i hverdagen.
På Haga er det båtutsetningsplass og noen båtplasser. På Glomma er det flott både å fiske og bade om sommeren. Det er flere småvann i nærområde som og egner seg til bading og fisking. Det er kort vei til lysløype og ellers fine tur og rekreasjonsområder.
Auli byr på et godt utvalg av fritidstilbud med idrettsanlegg, lekeplasser og grønne fellesområder. Med kort vei til Hvam Idrettslag og Nes Golfklubb er det gode muligheter for både sport og aktiviteter året rundt. Auli har også et aktivt nærmiljø og et sammensveiset lokalsamfunn med ulike arrangementer og sammenkomster.
Området er kjent for sitt landlige preg kombinert med gode kommunikasjonsmuligheter, noe som gjør det populært blant både familier, pendlere og friluftsinteresserte. Et harmonisk hjem med nærhet til alt man trenger i hverdagen, samtidig som man kan trekke seg tilbake til et stille og fredelig nærmiljø.
Servicefasiliteter
Dagligvarehandelen kan gjøres på hyggelige og lokale Auli-senteret som tilbyr flere servicetilbud som Kiwi, Coop Extra, post, bank, frisør, kafé m.m. For et bredere utvalg, kan man ta turen til Amfi Årnes, Strømmen Storsenter eller Jessheim Storsenter som ligger innen god rekkevidde.
Offentlig kommunikasjon
Det ligger bussholdplass i umiddelbar nærhet ved Hagavegen. Den lokale togstasjonen, Auli stasjon som ligger omtrent 1 km unna, og få minutters bil- eller sykkeltur, gir gode forbindelser til Oslo sentrum på omtrent 40 minutter. For deg som pendler med bil, er det omtrent 40 minutters kjøring til Oslo sentrum (ca. 45 km) og cirka 30 minutters kjøring til Oslo Lufthavn Gardermoen (ca. 33 km). Dette gjør det enkelt å pendle til og fra storbyen, samtidig som man kan nyte de rolige omgivelsene Nes har å by på.
Skole og barnehage
Eiendommen sogner til Auli skolekrets, med Auli skole (1.-7. trinn) og Runni skole (8.-10. trinn). Det finnes barnehage på både Auli- og Hagafeltet.
Bebyggelsen
Auli Eplehager vil bestå av totalt 13 minihus med carport og utvendig sportsbod. For øvrig består området av frittliggende småhus- og villabebyggelse.
Byggemåte
Boligene er konstruert iht. TEK17 og elektroleveranse leveres iht. NEK400. Det fundamenteres på antatt faste masser. Det leveres trebjelkelag som isoleres med 250mm steinull og krysslektet med 50mm isolasjon. Det er sperretakskonstruksjon i saltaksform som isoleres med 250mm steinull, takduk og utvendig tekket med Ruukki Classic takplater (eller liknende). Ytterveggskonstruksjon i trebindingsverk med 150mm isolasjon og krysslektet med 50mm isolasjon, utvendig kledd med stående kledning. Vedlikeholdsvennlige PVC-vinduer med trelags glass.
Innvendig standard
Boligene vil ha en moderne og god standard som utgangspunkt, og kjøper vil få mulighet til å kunne gjøre individuelle tilpassinger for å sette sitt personlige preg. Rommene vil fremstå som lyse og trivelige, og vil få et lunt laminatgulv i alle oppholdsrom. På baderommet blir det vinylgulv, Fibo Trespo baderomsplater og komplett baderomspakke fra IKEA. Det leveres gulvvarme i alle gulv i hele boligen. Alle rom vil få LED-downlights i himling, med unntak av soverom hvor det leveres lampepunkt. Kjøkkeninnredningen er fra IKEA og leveres komplett utstyrt med kombinert kjøle- og fryseskap, stekeovn, platetopp og oppvaskmaskin.
For fullstendig og komplett leveransebeskrivelse, henvises det til vedlegg i salgsoppgaven.
Planløsning: Inngangsparti/gang, kjøkken/stue, bad og to soverom.
Astris
Entré: Astris har en romslig, avlang entré/gang med god plass for garderobeløsning. Som standard blir det laminatgulv med varmefolie og gips på øvrige overflater som males i ønsket farge. Tilvalg gir mulighet for andre overflater som vinyl, parkett, kryssfiner og leire. Listefri overgang mellom vegger og tak komplementerer husets moderne stil.
Stue/kjøkken: Stue og kjøkken ligger i åpen løsning - et luftig og innbydende allrom hvor store vindusflater og takvinduer trekker både lys og omgivelser inn i rommet. Takhøyden strekker seg opp mot ca. 3,35 meter.
Rommet er nærmere 21 kvm stort og har plass til spisebord. Legg merke til muligheten for å velge til en spesiallaget sittebenk i vinduet og Ikea oppbevaringsløsninger for et ekstra smart og elegant stueområde. Ellers har stuen utgang til tiltenkte utefasiliteter, hvor vi som leverandører være behjelpelige med å skape et flott utemiljø.
Kjøkkeninnredningen monteres i L-form for optimal arbeidsflate og oppbevaringsplass. Inkludert i leveransen er innredning fra Ikea til en verdi på kr 45 000,-. Her kan du få med både over- og underskap, benkeplate med nedfelt vask, samt integrerte hvitevarer i form av induksjonstopp, stekeovn, oppvaskmaskin, kjøleskap og ventilator med kullfilter. Alt over gitt sum er å anse som tilvalg. LED stripe under overskapene medfølger.
Stuen/kjøkkenet leveres med laminatgulv, gulvvarme, malte gipsvegger og malt gipstak med LED-lys. Fargen på maling er valgfritt, og gips kan endres til kryssfiner eller leire ved tilvalg. Gulvet kan for øvrig også endres til vinyl eller eikeparkett.
Bad/wc/vaskerom: Badet har et delikat uttrykk og leveres som standard med gulvvarme, vinylbelegg, malt gipstak og FIBO trespo eller vannfast kryssfiner på veggene. Som tilvalg kan det endres til flis på gulv og vegger.
Inkludert i leveranse til en totalverdi på kr 30 000,- er baderomsinnredning fra Ikea med servant, ett-greps blandebatteri og underskap. Innredning kan endres etter nærmere avtale.
I tillegg medfølger speil med integrert lys, stikkontakt ved speilet, vegghengt toalett med softclose, dusjvegger i glass eller dusjkabinett, samt opplegg for vaskemaskin. Badet får fuktstyrt avtrekksvifte og varmtvannsbereder på 80 liter. Alt over gitt sum er å anse som tilvalg.
Soverom og garderobe: Astris har to soverom, som begge har plass til garderobeskap. Rommene leveres med LED-spotter i taket, og det største rommet har glassfasade langs kortveggen med egen utgang til tiltenkte utefasiliteter. Overflater i begge soverom leveres som i stue/kjøkken.
Skulle det være behov for mer plass, kan det bestilles hems som tilvalg. Videre blir det oppført en isolert utebod på ca. 2,5 kvm med mulighet for innlagt strøm.
Marios
Entré: Marios har en praktisk entré med avsatt plass til garderobe like innenfor døren. Som standard blir det laminatgulv med varmefolie og gips på øvrige overflater som males i ønsket farge. Tilvalg gir mulighet for andre overflater som vinyl, parkett, kryssfiner og leire. Listefri overgang mellom vegger og tak komplementerer husets moderne stil.
Stue/kjøkken: Stue og kjøkken ligger i åpen løsning - et lyst og innbydende allrom med takhøyde opp mot ca. 3,35 meter. Store vinduer gir rikelig med naturlig lys og flott kontakt mot naturen utenfor. Rommet er ca. 28 kvm stort og har overraskende god plass for møblement. Ellers har stuen utgang til tiltenkte utefasiliteter. Her kan vi som leverandører være behjelpelige med å skape et flott utemiljø.
Kjøkkeninnredningen monteres i L-form for optimal arbeidsflate og oppbevaringsplass. Inkludert i leveransen er innredning fra Ikea til en verdi på kr 55 000,-. Her kan du få med både over- og underskap, benkeplate med nedfelt vask, samt integrerte hvitevarer i form av induksjonstopp, stekeovn, oppvaskmaskin, kjøleskap og ventilator med kullfilter. LED stripe under overskapene medfølger og. Alt over gitt sum er å anse som tilvalg.
Stuen/kjøkkenet leveres med laminatgulv, gulvvarme, malte gipsvegger og malt gipstak med LED-lys. Fargen på maling er valgfritt, og gips kan endres til kryssfiner eller leire ved tilvalg. Gulvet kan for øvrig også endres til vinyl eller eikeparkett.
Bad/wc/vaskerom: Badet har et delikat uttrykk og leveres som standard med gulvvarme, vinylbelegg, malt gipstak og FIBO trespo eller vannfast kryssfiner på veggene. Som tilvalg kan det endres til flis på gulv og vegger.
Inkludert i leveranse til en totalverdi på kr 30 000,- er baderomsinnredning fra Ikea med servant, ett-greps blandebatteri og underskap i hvit utførelse. Innredning kan endres etter nærmere avtale.
I tillegg medfølger speil med integrert lys, stikkontakt ved speilet, vegghengt toalett med softclose, dusjvegger i glass eller dusjkabinett, samt opplegg for vaskemaskin. Badet får fuktstyrt avtrekksvifte og varmtvannsbereder på 80 liter. Alt over gitt sum er å anse som tilvalg.
Soverom og garderobe: Marios har tre soverom, som alle har plass til garderobeskap. Det største rommet er på ca. 11 kvm og leveres med LED-spotter i taket og egen utgang til tiltenkte utefasiliteter. Skulle det være behov for mer plass, kan det bestilles hems som tilvalg. Hemsen vil ha to takvinduer og ha adkomst via veggmontert stige fra kjøkkenet. Overflater i soverommene leveres som i stue/kjøkken.
Utvendig standard
Astris:
Huset er 13,5 meter langt og 4 meter bredt. Kledning er stående, brent trekledning i enten 12 eller 9 cm tykkelse. Den leveres beiset eller ferdig malt. Utvendig målt yttervegger har U-verdi 0,22 og utvendig målt tak og gulv har U-verdi 0,18. Boligen leveres med vannbestandig stikkontakt, vegglampe ved inngangspartiet og vinterklargjort, utendørs vannkran. Elbillader kan velges ved tilvalg.
Marios:
Huset er 13,15 meter langt og 6 meter bredt. Kledning er stående, brent trekledning i enten 12 eller 9 cm tykkelse. Den leveres beiset eller ferdig malt. Utvendig målt yttervegger har U-verdi 0,22 og utvendig målt tak og gulv har U-verdi 0,18. Boligen leveres med vannbestandig stikkontakt, vegglampe ved inngangspartiet og vinterklargjort, utendørs vannkran. Elbillader kan velges ved tilvalg.
Minihus.no
Vi i minihus er dedikerte til å fremme et sunt, bærekraftig og økologisk boalternativ - hjem som møter dagens og fremtidens behov. Våre kjerneverdier er kvalitet, integritet og samarbeid. Vi setter alltid kundenes behov i sentrum og strekker oss langt for å levere hjem av høyeste kvalitet. Boligene leveres med garanitstillelse iht. bustadoppføringslova.
Våre hus har en energiklassifisering som kvalifiserer til Grønt Boliglån som har bedre betingelser enn tradisjonelt boliglån. Minihus kvalifiserer til boliglån på lik linje som et tradisjonelt hus. Derfor kan du bruke oppsparte BSU-midler til å kjøpe minihus. Minihusene kvalifiserer også til husbankfinansiering.
Ta kontakt for å finne ut hvordan vi kan hjelpe deg å realisere drømmen om et minihus!
Tilvalgspakke - Harmoni
Tilleggspakke med praktiske oppgraderinger og en moderne, stilren finish - uten at det går på bekostning av budsjettet. Pakken kombinerer funksjonalitet og estetikk, og skaper en behagelig atmosfære i hele boligen.
Astris
- Vinylgulv i alle rom - slitesterkt og behagelig
- Oppgradert Ikea kjøkken til en verdi på kr 55 000,-
- Et Ikea garderobeskap, PAX Auli eller Bergsbo, til hovedsoverom og til gang
- RAIS Q-tee 2 svart vedovn med høy sokkel
Marios
- Vinylgulv i alle rom - slitesterkt og behagelig
- Oppgradert Ikea kjøkken til en verdi på kr 65 000,-
- Et Ikea garderobeskap, PAX Auli eller Bergsbo, til hovedsoverom og til gang
- RAIS Q-tee 2 svart vedovn med høy sokkel
Se vedlagte brosyre i salgsoppgave for mer informasjon.
Tilvalgspakke - Eleganse eller komfort
Vår mest eksklusive tilleggspakke for deg som ønsker det aller beste - et hjem som utstråler komfort og eksklusivitet. Denne pakken er fylt med høyeste kvalitet på materialer, detaljer og tekniske løsninger. Fra flotte fliser på baderommet til eksklusive parkettgulv og varmepumpe.
Astris:
- Fliser på både vegger og gulv i baderommet
- Baderomsutstyr over kr 40 000,- for et luksuriøst og funksjonelt bad
- Eikeparkett i alle rom utenom bad, for et stilfullt og eksklusivt uttrykk
- Oppgradert Ikea kjøkken til en verdi på kr 65 000,- (kan brukes til eks. fronter, ekstra funksjoner eller hvitevarer)
- Spesiallaget sittebenk i vinduet og IKEA oppbevaringsløsninger for et smart og elegant stueområde
- Varmepumpe og peis for energieffektivitet og koselig atmosfære
- Ikea garderobeskap til to soverom og til gang
- Hems og stige
Marios:
- Fliser på både vegger og gulv i baderommet
- Baderomsutstyr over kr 40 000,- for et luksuriøst og funksjonelt bad
- Eikeparkett i alle rom utenom bad, for et stilfullt og eksklusivt uttrykk
- Oppgradert Ikea kjøkken til en verdi på kr 75 000,- (kan brukes til eks. fronter, ekstra funksjoner eller hvitevarer)
- Varmepumpe og peis for energieffektivitet og koselig atmosfære
- Ikea garderobeskap til to soverom og til gang
- Hems og stige
Se vedlagte brosyre i salgsoppgave for mer informasjon.
Energimerking
Alle nye boliger over 50 kvm skal energimerkes. Energimerking utføres av selger og vil bli utført i forbindelse med detaljprosjekteringen. Energimerkingen vil foreligge på et senere tidspunkt, men den foreløpige energimerkingen tilsier at boligene vil få energiklasse B.
Oppvarming - Teknisk
Boligene varmes opp med varmefolie i alle rom. Som tilvalg kan man sette inn panelovner, ildsted i stuen og/eller varmepumpe.
Den elektriske leveransen prosjekteres av Totalservice AS og leveres iht. NEK 400. Det leveres skjult anlegg, LED belysning, balansert vemntilasjonsanlegg og varmtvannsbereder på 80 liter som plasseres i skap på bad over wc.
Parkering
Hver bolig får en carport med bod på egen tomt, samt mulighet for å plassere bil i egen gårdsplass. Øvrig parkering p etter områdets gjeldende bestemmelser.
Carport og bod leveres uten strøm. Både strøm og elbillader kan leveres som tilvalg.
Beskrivelse av tomt
Tomten leveres med plenjord som blir tilsådd med plenfrø. Det bemerkes at kjøper fra overtagelsen må vanne og vedlikeholde såingen slik at plenen får etablert seg. Kjøper vil måtte påregne å gjødsle og tilså også ved et senere behov. Innkjøringsveien leveres som gruset. Det presiseres at det ikke leveres markterrasse eller hekk som vist på illustrasjon.
Tinglyste rettigheter og forpliktelser
Eiendommen overdras fri for pengeheftelser, med unntak av eventuelle erklæringer, avtaler, servitutter og panteheftelser som fremgår av salgsoppgaven og skal følge med eiendommen ved salg. Kjøpers bank vil få prioritet etter disse. Følgende servitutter er tinglyst på eiendommens grunnboksblad:
Grunndata:
1991/7840-1/9 Registrering av grunn
Tinglyst 20.12.1991
Denne matrikkelenhet opprettet fra:Knr:3228 Gnr:199 Bnr:10
2020/427497-1/200 Omnummerering ved kommuneendring
Tinglyst 01.01.2020 00:00
2024/275065-1/200 Omnummerering ved kommuneendring
Tinglyst 01.01.2024 00:00
Vi gjør videre oppmerksom på at det i henhold til eierseksjonsloven ikke er anledning å erverve mer enn to seksjoner i sameiet.
Vei / Vann / Avløp
Eiendommen er tilknyttet offentlig avløpsnett og privat vannforsyning fra Auli vannverk. Vi gjør oppmerksom på at private ledninger vedlikeholdes for eiers regning. For private fellesledninger er det normalt tilknyttet solidarisk vedlikeholdsplikt. Det er privat vei til offentlig vei.
Ferdigattest eller midl. brukstillatelse
Ved overtagelse skal det som minimum foreligge midlertidig brukstillatelse. Den midlertidige brukstillatelsen skal avløses av en ferdigattest når alle eventuelle gjenstående arbeider er ferdigstilt av utbygger. Det er selgers ansvar å fremskaffe dette innen overtakelse.
Verdi ved skattefastsetting
Formuesverdien er ikke fastsatt. Formuesverdien fastsettes av skatteetaten etter en beregningsmodell om boligen er primær eller sekundær. Formuesverdien for primærbolig utgjør 25% av beregnet markedsverdi opp til kr. 10 000 000,- og 70% for den delen som overstiger dette, og 100% av sekundærbolig for 2023 og 2024. Det gjøres oppmerksom på at kjøper selv må sende inn opplysninger om adresse, areal, boligtype og byggeår til skattemyndighetene. Det tas forbehold om endring av satser.
Reguleringsforhold
Eiendommen er regulert til minihus jf. reguleringsplan "Nordre Auli" fra Nes kommune.
Beskrivelse av sameiet
Boligene vil bli organisert som et eierseksjonssameie, der navnet på sameiet trolig blir Auli Eplehager sameie eller tilsvarende. En sameier eier en andel i eiendommen, med tilknyttet enerett til bruk av sin bruksenhet, jf. eierseksjonsloven § 25.
Det vil bli etablert et styre for sameiet, men det legges opp til at sameiet ikke vil styre noe annet enn fellesområdet tilhørende de 13 seksjonene. Hvordan sameiet skal driftes vil likevel være opp til sameierne i fellesskap. Et potensielt scenario er at sameiet, på vegne av alle 13 seksjonseiere, fremforhandler en tv-avtale og håndterer de kommunale avgiftene. Sameiet må i fellesskap bestemme hvordan for eksempel snømåking og vedlikehold av fellesarealer skal foretas, og det vil være naturlig at det innbetales en andel månedlig eller kvartalsvis for denne driften.
Fellesarealer skal være åpne for allmenn ferdsel og det vil bli tinglyst rettighet som regulerer dette. Det vil bli levert en enkel lekeplass på fellesarealet.
Da sameiet anses å være relativt lite, vil utbygger ikke engasjere forretningsfører for sameiet. Dersom sameiet ikke ønsker å føre regnskap/oversikt i egenregi, må sameiet selv innhente annen bistand til dette.
Hver og en sameier vil ha fullt vedlikeholdsansvar for sin bolig og tomtedel, men sameiet vil i fellesskap ha vedlikeholdsansvar for fellesområder, veivedlikehold (sammen med øvrige beboere i Verkensvegen) etc. Med veivedlikehold menes strømkostnader til gatebelysning, brøyting, strøing med mer.
Kommunale avgifter
Kommunale avgifter er ikke fastsatt på annonseringstidspunktet. Basert på erfaringstall estimeres de kommunale avgiftene til ca kr. 10-20 000,- per år for en bolig av denne størrelsen. Det gjøres for øvrig oppmerksom på at dette er et estimat, og at selger tar forbehold om størrelsesordenen på disse summene.
Eiendomsskatt
Det er eiendomsskatt for private husholdninger i Nes kommune. Fra takstverdien trekkes det en reduksjonsfaktor på 30%, som er en lovbestemt reduksjon som skal bidra til at grunnlaget for eiendomsskatten ikke overstiger omsetningsverdien for eiendommen. Kommunestyret har i tillegg vedtatt en lokal reduksjonsfaktor på 20%, som gjelder alle skattepliktige eiendommer i kommunen.
For ytterligere informasjon om eiendomsskatt, henvises det til Nes kommune sine hjemmesider.
Andre faste løpende kostnader
Foruten eventuelle lån og kommunale avgifter, vil strøm, medieabonnementer, villa- og innboforsikring etc. være faste løpende kostnader.
Finansiering
Kontakt megler for avklaring av finansielle forhold, herunder lån til kjøp av eiendom. Privatmegleren har avtale med Nordea om formidling av lån og andre finansielle tjenester. Privatmegleren mottar godtgjørelse for dette.
Sluttoppgjør
Sluttoppgjør (resterende kjøpesum, tilvalg og omkostninger) skal innbetales til meglers klientkonto senest 3 virkedager før overtagelse.
Betaling for endring og tilvalg
Betaling for endrings- eller tilleggsarbeider som er avtalt direkte mellom kjøper og selger, skjer i forbindelse med sluttoppgjøret.
Kostnader ved avbestilling
Kjøper har rett til å avbestille leveransen før overtagelse har funnet sted, jf. buofl.§§ 52-54. Ved avbestilling vil selger ha krav på full erstatning for sitt økonomiske tap iht. buofl. kapittel VI. Kontakt megler for nærmere informasjon dersom avbestilling vurderes. Bestilte endrings- og tilleggsarbeider betales i slike tilfeller i sin helhet.
Transport av kontrakt / videresalg før overtagelse
Transport av kontrakt/videresalg før overtagelse krever selgers samtykke før salgsprosessen igangsettes. Samtykke kan nektes på fritt grunnlag, og selger kan også stille betingelser for et eventuelt samtykke. Ved utbyggers eventuelle skriftlige samtykke påløper et administrasjonsgebyr på kr. 20 000,- inkl. mva. og et transportgebyr til selger på kr. 45 000,- inkl. mva.
Kredittvurdering
Selger forbeholder seg retten til å foreta kredittvurdering av kjøpere. Selger forbeholder seg retten til å kreve dokumentasjon av kjøpers finansiering. Eiendomsmeglere ble fra 6. mars 2009 underlagt bestemmelsene i Hvitvaskingsloven. Dette innebærer blant annet at eiendomsmegleren har plikt til å melde fra til Økokrim om eventuelle mistenkelige transaksjoner.
Adgang til utleie
Det er ikke kjent at det foreligger offentligrettslige hindre for at hele eller deler av eiendommen kan leies ut.
Konsesjon / Odel
Verken odel eller konsesjon er relevant for denne eiendommen.
Sikkerhetsstillelse
Alle eiendomsmeglingsforetak har lovpålagt forsikring av klientmidler begrenset oppad til kr. 45 000 000,-. Enkeltsaker er forsikret inntil kr. 15 000 000,-. Dersom kjøpers låneinstitusjon krever tilleggsforsikring ved omsetning over kr. 15 000 000,-, må kjøper selv eller dennes låneinstitusjon dekke utgiftene forbundet med dette.
Planlagt overtagelse
Boligene planlegges ferdigstitl i løpet av 1.-2. kvartal 2026, men det bemerkes at dette er et foreløpig estimat og er ikke dagmulktsutløsende. Når kommunal godkjenning foreligger, vil hver kjøper varsles med en overtagelsesperiode på tre måneder. Overtagelsen skal ligge innenfor denne perioden, og kjøper vil senere, i god tid før, varsles om endelig overtagelsesdato.Fra arbeidet igangsettes, legges det opp til en bygge-/leveransetid på ca. 9-12 måneder.
Selgers forbehold
Selger tar følgende forbehold før bygging kan startes:
- Solgt 11 av 13 enheter
- Offentlig godkjenning av prosjektet inklusive igangsettingstillatelse
- Forbehold om utbetalt byggelån
Kjøper må være innforstått med den usikkerhet som foreligger med hensyn til fremdrift og overtagelse, og kan ikke påberope seg overskridelser av de her angitte estimerte overtagelsestidspunkt som avtalt frist for ferdigstillelse/overtagelse. En forsinkelse i forhold til disse estimatene vil således ikke kunne danne grunnlag for krav om dagmulkt eller annen erstatning.
Tegninger og bilder i illustrasjonsbok er kun illustrasjoner og kan avvike i forhold til plan- og fasadetegninger som vedlegges kontrakt, herunder teknisk beskrivelse. Alle illustrasjoner, skisser, møblerte plantegninger med mer er kun ment å danne et inntrykk av den ferdige bebyggelsen, og kan således ikke anses som endelig leveranse. Inntegnet utstyr/ inventar medfølger ikke, så som for eksempel møbler og garderobeskap, og det vil derfor fremkomme elementer i presentasjonsmaterialet som ikke inngår i leveransen. Beplanting og blomster, innredninger, tepper, møbler, markiser, og annet tilbehør utover det som er beskrevet ovenfor, leveres ikke. Det tas forbehold om at sjakter og føringsveier for tekniske installasjoner ikke er ferdig inntegnet. Innkassinger vil ha varierende størrelse avhengig avboligtype og etasjeplan.
Generelle beskrivelser av prosjektet i salgs- og markedsføringsmateriell vil ikke passe for alle boligene i prosjektet. Interessent oppfordres derfor særskilt til å vurdere dette (solforhold, utsikt, beliggenhet i forhold terreng og omkringliggende bygningsmasse med mer) før budgivning. Alle opplysninger er gitt med forbehold om rett til endringer som er hensiktsmessige og/eller nødvendige, likevel slik at den generelle standard og utførelse ikke forringes eller endres vesentlig. Kjøper aksepterer uten prisjustering at selger har rett til å foreta slike endringer. Eksempel på slike endringer kan være innkassinger og nedforinger av teknisk anlegg, mindre endringer av boligens areal og lignende.
Utbygger forbeholder seg retten til å foreta nødvendige endringer som følge av offentlige pålegg eller tilpasninger i forhold til tekniske løsninger. Videre forbeholder utbygger seg rett til å bestemme endelig utforming av utomhusarealer, materialvalg og fargevalg samt innvendige og utvendige fellesarealer, uten at kjøper har rett til å kreve endringer av avtalt pris. Dette gir ikke utbygger rett til å foreta endringer som er av en slik art at boligens standard objektivt sett forringes eller objektivt svekker boligens bruksverdi. Utbygger skal så langt det er praktisk mulig informere kjøper om slike endringer. Det kan være avvik mellom de plantegninger og skisser som er presentert i prospektet, og den endelige leveransen.
Tilvalg
Mot vederlag har kjøper rett til å få utført endrings- og tilleggsarbeider. Rettigheten begrenses oppad til 15% av avtalt vederlag. Til orientering opplyses det at bustadoppføringslovas § 9, andre avsnitt inneholder bestemmelse om at ønsker om endringer og tilvalg kan avvises når disse vil føre til ulemper for entreprenør/selger som ikke står i forhold til forbrukerens interesse. Dersom det likevel er mulig å få utført de ønskede endringer, vil det kunne påløpe ekstra kostnader.
Endringene innebærer at beskrivelsen av salgsobjektet justeres i henhold til de avtalte endringer og tilvalg. Det er også etter endringene selger som er ansvarlig for hele leveransen av boligen, og kjøper kan forholde seg til selger ved eventuell forsinkelse eller mangler knyttet til endringene. Kjøper er ansvarlig for å betale hele kjøpesummen, inkludert betaling for endringene, til eiendomsmeglers klientkonto. Endringsavtaler skal være skriftlige.
Det gjøres oppmerksom på at dersom planløsningen endres, eller endringer medfører at nye byggetegninger må foreligge, vil det påløpe et gebyr til tegner/arkitekt for dette.
Solgt ihht bustadoppføringsloven
Boligene selges i henhold til Bustadoppføringslova som regulerer kjøpers (forbrukers) rettigheter og plikter ved avtale om oppføring av bolig og kjøp av fast eiendom der bygningen ikke er fullført når avtalen inngås. Ved salg til aksjeselskap legges Avhendingslovens bestemmelser til grunn. For øvrig gjelder Lov om eierseksjoner for eierseksjonssameiet og driften av dette.
Garantier
Selger er etter Bustadoppføringslova § 12 pliktig til å stille garanti på 3 % av kjøpesummen i byggetiden og 5 % av kjøpesummen i 5 år etter overlevering. Garantien vil bli stilt straks forbeholdene om realisering faller bort. Til det er dokumentert at det foreligger garanti i samsvar med paragrafen her, har forbrukeren rett til å holde tilbake alt vederlag.
Overføring av innbetalt beløp til selger er avhengig av selgers garantistillelse i.h.t. Bustadoppføringslova § 47.
Kjøpekontrakter
Avtale om kjøp av leilighet forutsettes inngått iht. kjøpstilbud og kjøpekontraktsformular. Kjøpekontrakt signeres i utgangspunktet digitalt i rimelig tid etter aksept av kjøpstilbud. Fysisk kontraktsmøte kan avholdes etter nærmere avtale.
Budregler
Boligene selges til fast pris. Signert kjøpstilbud leveres til megler sammen med rett kopi av legitimasjon, eller elektronisk gjennom "gi bud" knappen på meglers annonser. Kravet til legitimasjon er oppfylt for budgivere som benytter elektronisk bud med e-signatur, eksempelvis BankID.
Forsikring
Bygg og eiendom vil være forsikret av utbygger frem til overtagelse, deretter tegnes fullverdiforsikring av hver enkelt seksjonseier. Kjøper må også selv tegne innbo- og løsøreforsikring.
Finansiering
Kjøper er innforstått med at irreversibelt finansieringsbevis for hele kjøpesummen skal forelegges megler når avtale om kjøp inngås iht. Bustadoppføringslovas §46 2.ledd, og at disse opplysningene kan bli videre formidlet til utbyggers byggelånsbank. Handelen er juridisk bindende for begge parter ved aksept. Dersom kjøper ikke overholder sin forpliktelse med tilfredsstillende finansieringsbevis, er kjøper allikevel bundet og selger vil kunne påberope avtalen som vesentlig misligholdt og heve avtalen. Kjøper samtykker til at omkostninger knyttet til heving og dekningssalg i så fall dekkes av kjøper.
Lov om hvitvasking og meglers vederlag
Megler er underlagt lov om hvitvasking som innebærer plikt til å melde ifra til Økokrim om mistenkelige transaksjoner
eglers vederlag per solgte enhet utgjør kr. 47.500,- inkl. mva. Meglerprovisjon og utlegg betales av utbygger.
Ønsker du å bo smartere - og samtidig eie ditt eget hjem med moderne komfort og høy kvalitet?
Velkommen hjem til Auli Eplehager!
Vil du vite mer eller avtale visning?
Kontakt eiendomsmegler Lasse Saltkjel på lsa(att)privatmegleren.no
Eller kontakt utbygger direkte på www.minihus.no for mer informasjon.
Nærområdet

PrivatMegleren Nyeboliger Romerike
Annonseinformasjon
| FINN-kode | 384535437 |
|---|---|
| Sist endret | 13. jan. 2026 11:20 |
| Referanse | 275240009 |
Annonsene kan være mangelfulle i forhold til lovpålagt opplysningsplikt. Før bindende avtale inngås oppfordres interessenter til å innhente komplett informasjon fra meglerforetaket, selger eller utleier.
