Bildegalleri

D704
Inaktiv
Nøsted Brygge
Nøsted Brygge Sameie
Toppleilighet med balkong og takterrasse 14 + 77 m² | Sol hele dagen | 3 soverom & 2 bad | Takbod |Garasje
Prisantydning16 790 000 kr
Prosjektets status
Planlegging
Ferdig
Salgsstart
Ferdig
Byggestart
Byggingen er godt igang
Overtakelse
Estimert sommeren 2025
Nøkkelinfo
- Boligtype
- Leilighet
- Etasje
- 7
- Soverom
- 3
- Rom
- 4
- Internt bruksareal
- 149 m² (BRA-i)
- Bruksareal
- 154 m²
- Eksternt bruksareal
- 5 m² (BRA-e)
- Balkong/Terrasse
- 91 m² (TBA)
Fasiliteter
Balkong/Terrasse
Bredbåndstilknytning
Garasje/P-plass
Heis
Utsikt
Vaktmester-/vektertjeneste
Turterreng
Visning
Ta kontakt med megler for avtale om visning. Her har kan vi vise frem deler av den gode standarden som blir levert, samt at vi har en flott modell av hele bygget. Vel møtt!
Dersom du planlegger å delta på visning bes du om å melde deg på visningen i forkant til megler. Trykk på påmeldingsknappen i annonsen eller kontakt megler. Frist for påmelding er visningsdagen innen kl. 12.00. Visninger uten påmelding, vil ikke bli avholdt.
VisningspåmeldingBeskrivelse
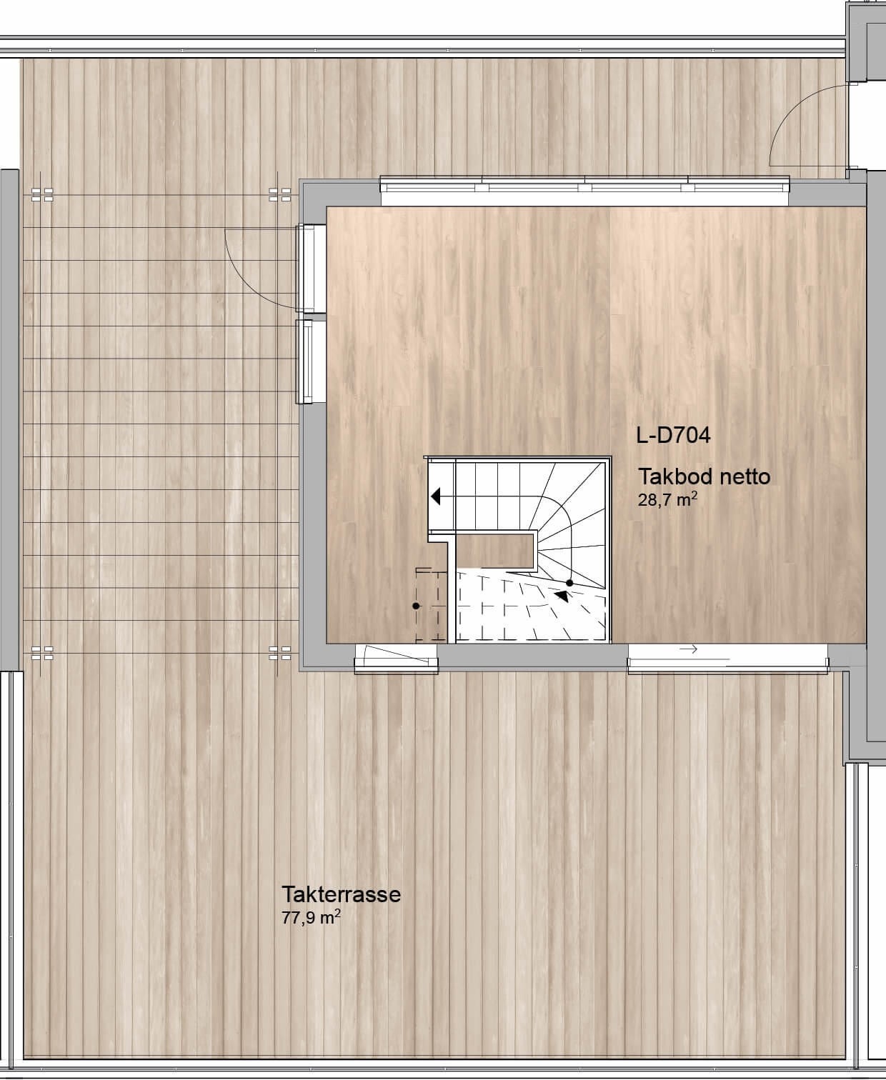
Premiumleilighet med gode, gjennomtenkte planløsninger. Her får du en lys og trivelig hverdag. Tre soverom og to bad. Master bedroom med god garderobeplass og en suite bad. Stor, åpen kjøkken/stue 47 m² med adkomst til egen balkong 14 m². Trapp til egen stor takterrasse 77 m². Her opplever du nærheten til sjøen, og kan nyte solrike dager og en helt unik fjordutsikt. Stor, praktisk takbod/mezzanin 28 m².
NB: Knappen for å vise hele beskrivelsen har kun en visuell effekt.
NB: Knappen for å vise hele beskrivelsen har kun en visuell effekt.
Nyttige lenker
Nærområdet
EiendomsMegler 1 Drammen
Annonseinformasjon
| FINN-kode | 381276985 |
|---|---|
| Sist endret | 03. apr. 2025 12:22 |
| Referanse | 7011240143 |
Annonsene kan være mangelfulle i forhold til lovpålagt opplysningsplikt. Før bindende avtale inngås oppfordres interessenter til å innhente komplett informasjon fra meglerforetaket, selger eller utleier.

