Bildegalleri
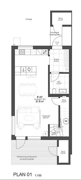
F-17 plan 1
Lyttestasjonen
Lyttestasjonen F-17
Prisantydning8 590 000 kr
Prosjektets status
Planlegging
2024
Salgsstart
November 2024
Byggestart
Q3 2025
Overtakelse
Q4 2026
Nøkkelinfo
- Boligtype
- Tomannsbolig
- Soverom
- 4
- Rom
- 6
- Internt bruksareal
- 129 m² (BRA-i)
- Bruksareal
- 134 m²
- Eksternt bruksareal
- 5 m² (BRA-e)
- Balkong/Terrasse
- 25 m² (TBA)
Fasiliteter
Balkong/Terrasse
Bredbåndstilknytning
Garasje/P-plass
Kabel-TV
Peis/Ildsted
Utsikt
Turterreng
Beskrivelse
Ansvarlig megler
Tom Z. Bliksmark
NB: Knappen for å vise hele beskrivelsen har kun en visuell effekt.
NB: Knappen for å vise hele beskrivelsen har kun en visuell effekt.
Nyttige lenker
Nærområdet
Sem & Johnsen
Boliger utenom det vanlige
Annonseinformasjon
| FINN-kode | 375663454 |
|---|---|
| Sist endret | 15. des. 2025 10:01 |
| Referanse | 21-24-0506 |
Annonsene kan være mangelfulle i forhold til lovpålagt opplysningsplikt. Før bindende avtale inngås oppfordres interessenter til å innhente komplett informasjon fra meglerforetaket, selger eller utleier.