Bildegalleri
B102.jpg
Inaktiv
Ankerløkka Park Bygg 1
Ankerløkka B102
Prisantydning2 990 000 kr
Prosjektets status
Planlegging
2024
Salgsstart
Oktober 2024
Byggestart
Q1 2026
Overtakelse
Q1/Q2 2028
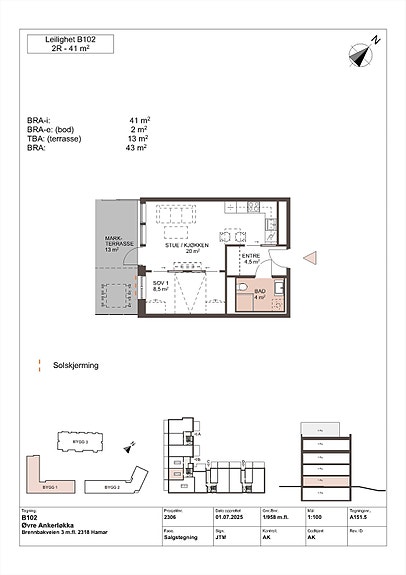
Nøkkelinfo
- Boligtype
- Leilighet
- Etasje
- 1
- Soverom
- 1
- Rom
- 2
- Internt bruksareal
- 41 m² (BRA-i)
- Bruksareal
- 43 m²
- Eksternt bruksareal
- 2 m² (BRA-e)
- Balkong/Terrasse
- 13 m² (TBA)
Fasiliteter
Balkong/Terrasse
Bredbåndstilknytning
Garasje/P-plass
Heis
Turterreng
Visning
Visninger avholdes på vårt visningssenter med adresse Rektor Jørgensens gate 2.
VisningspåmeldingBeskrivelse
Ansvarlig megler
Tom Z. Bliksmark
NB: Knappen for å vise hele beskrivelsen har kun en visuell effekt.
NB: Knappen for å vise hele beskrivelsen har kun en visuell effekt.
Nyttige lenker
Nærområdet
Sem & Johnsen
Annonseinformasjon
| FINN-kode | 373112772 |
|---|---|
| Sist endret | 22. okt. 2025 15:36 |
| Referanse | 20-24-0690 |
Annonsene kan være mangelfulle i forhold til lovpålagt opplysningsplikt. Før bindende avtale inngås oppfordres interessenter til å innhente komplett informasjon fra meglerforetaket, selger eller utleier.