Bildegalleri

Lysverket Moss

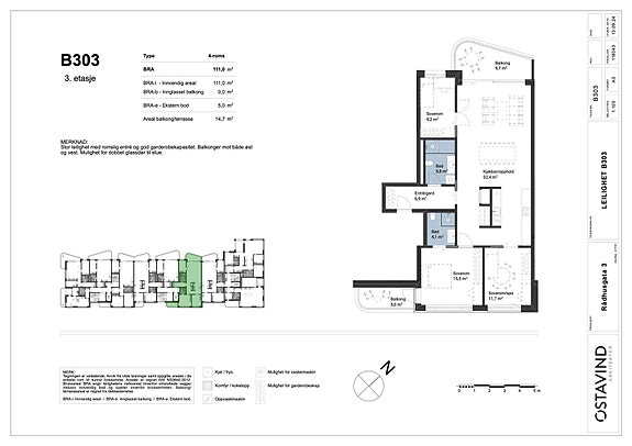
B303

Prisantydning8 990 000 kr
Totalpris
9 021 276 kr
Omkostninger
31 276 kr
Felleskost/mnd.
5 403 kr
  • Planlegging

    Høsten 2024

  • Salgsstart

    Salgsstart 10/10

  • Byggestart

    4. kvartal 2025

  • Overtakelse

    Første halvår 2027

Nøkkelinfo

Boligtype
Leilighet
Etasje
3
Soverom
3
Internt bruksareal
111 m² (BRA-i)
Bruksareal
111 m²
Eksternt bruksareal
5 m² (BRA-e)
Balkong/Terrasse
14 m² (TBA)

Les mer om bruksareal her

Visning

Ta kontakt for å avtale visning.Visningspåmelding

Beskrivelse

Oppvarming

Leilighetene vil få vannbåren varme i stue, bad, gang og kjøkken. Soverom vil få panelovner.

Beliggenhet

Rådhusgata 3 er perfekt plassert i Moss sentrum, med alt man trenger i umiddelbar nærhet. Snakk om å bo sentralt!
Kaffen kan du ta på flere av sentrums caféer og det samme med lunsjen. Ønsker du å kose deg litt ekstra er det diverse restauranter og utesteder å finne i kort gåavstand, alt etter smak og prisklasse. Kino, treningssenter og bibliotek ligger i nærheten, det samme med alt av klesbutikker og andre sentrumsfasiliteter.
Med barn eller barnebarn ligger det både skøytebane og lekeplass i kort avstand rett ved og er du glad i kunst og kultur har Moss kulturhus et bredt tilbud av konserter, foredrag og underholdning.

For deg som pendler, eller liker å ta turen både sørover og nordover, er det greit å vite at det kun er få minutter til fots til både togstasjon, busstasjon og ferjeforbindelsen Moss-Horten.

Kombinasjonen av sentral beliggenhet og god standard gjør leiligheten perfekt for flere av livets faser - unge som eldre.

Velkommen til Rådhusgata 3!

Parkeringsforhold

Kan kjøpe 1stk parkering kr. 400.000,*

Sentrale lover

Det opplyses om at ingen kan eie mer enn to boligseksjoner i sameiet, jfr. Lov om eierseksjoner §23

Nærområdet

Annonseinformasjon

FINN-kode373056062
Sist endret03. nov. 2025 12:03
Referanse3-24-10232

Rapporter annonse

Annonsene kan være mangelfulle i forhold til lovpålagt opplysningsplikt. Før bindende avtale inngås oppfordres interessenter til å innhente komplett informasjon fra meglerforetaket, selger eller utleier.