Bildegalleri

Storgata 23
Topp moderne selveierleilighet i 3. etasje - Høy standard - Innglasset balkong - Utleiedel - Parkering
Prosjektets status
Planlegging
Byggestart umiddelbart etter salg.
Salgsstart
September 2024
Byggestart
2024
Overtakelse
2025
Nøkkelinfo
- Boligtype
- Leilighet
- Soverom
- 5
- Rom
- 6
- Primærrom
- 0 m²
- Bruksareal
- 230 m²
- Eksternt bruksareal
- 52 m² (BRA-e)
- Innglasset balkong
- 17 m² (BRA-b)
- Balkong/Terrasse
- 4 m² (TBA)
Fasiliteter
Beskrivelse
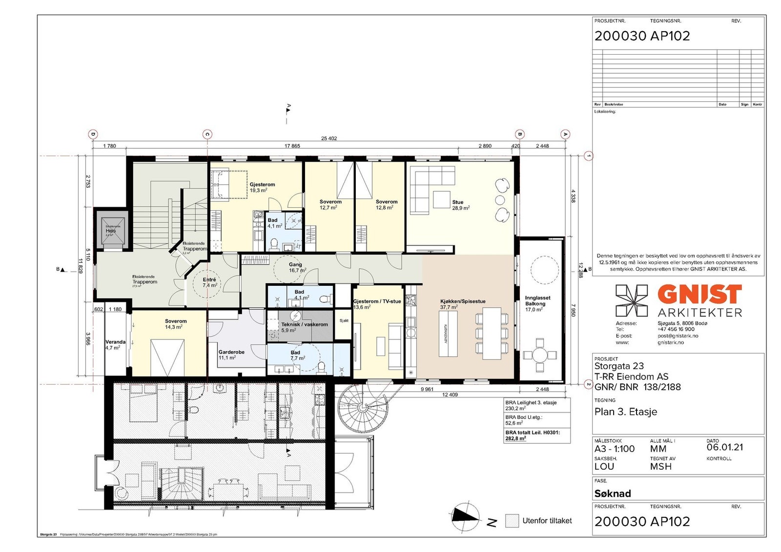
Topp moderne leilighet i 3. etasje. Utbygger har sammen med Gnist arkitekter lagt vekt på høy kvalitet og smarte løsninger så vel som en praktisk planløsning i disse urbane og svært romslige sentrumsleilighetene. Denne flotte leiligheten på 230 kvm inneholder entré, stue, kjøkken, TV-stue, 3 soverom, garderobe, 2 bad og innglasset balkong. I tillegg er det lagt opp til hybel med eget kjøkken og bad, med felles inngang fra entré. I tillegg medfølger det en stor bod i underetasjen på 52,6 kvm- perfekt for ekstra lagringsplass. Fast parkeringsplass.
Leilighetene bygges ihht TEK17 og vil overleveres nøkkelferdig med gjennomgående høy standard på alle flater. Alt fra felles trapperom/adkomst til utvendig fasade vil bli totalrenovert samtidig som leilighetene bygges.
For komplett leveransebeskrivelse se vedlegg.
Leilighetene ligger midt i hjertet av Bodø sentrum. Med gåavstand til alt sentrum har å by på, og gode bussforbindelser til alle bydeler, er det meste lett tilgjengelig.
Beskrivelse
Topp moderne leilighet i 3. etasje. Utbygger har sammen med Gnist arkitekter lagt vekt på høy kvalitet og smarte løsninger så vel som en praktisk planløsning i disse urbane og svært romslige sentrumsleilighetene. Denne flotte leiligheten på 230 kvm inneholder entré, stue, kjøkken, TV-stue, 3 soverom, garderobe, 2 bad og innglasset balkong. I tillegg er det lagt opp til hybel med eget kjøkken og bad, med felles inngang fra entré. I tillegg medfølger det en stor bod i underetasjen på 52,6 kvm- perfekt for ekstra lagringsplass.
Leilighetene bygges ihht TEK17 og vil overleveres nøkkelferdig med gjennomgående høy standard på alle flater. Alt fra felles trapperom/adkomst til utvendig fasade vil bli totalrenovert samtidig som leilighetene bygges.
For komplett leveransebeskrivelse se vedlegg.
Leilighetene ligger midt i hjertet av Bodø sentrum. Med gåavstand til alt sentrum har å by på, og gode bussforbindelser til alle bydeler, er det meste lett tilgjengelig.
Standard
Leilighetene bygges ihht TEK17 og vil overleveres nøkkelferdig med gjennomgående høy standard på alle flater. Alt fra felles trapperom/adkomst til utvendig fasade vil bli totalrenovert samtidig som leilighetene bygges. Utbygger har sammen med Gnist arkitekter lagt vekt på høy kvalitet og smarte løsning så vel som en praktisk planløsning i disse urbane og svært romslige sentrumsleilighetene.
For komplett leveransebeskrivelse se vedlegg.
Entré
Entréen har gulv med keramiske fliser fra Fagflis, 60x60 cm Cinza. Vegger med malt gipsplater, sparklet og malt i fargekoden NCS S0502-Y (Bomull).
Kjøkken
Kjøkkenet har gulv med 1-stavs eikeparkett, Boen Eik Pop hvit. Vegger er kledd med gipsplater, ferdig sparklet og malt i fargekode NCS S0502-Y (bomull). Kjøkkenet får en lekker kjøkkeninnredning fra Sigdal. Den praktiske kjøkkeninnredningen sørger for rikelig med lagringsplass i skuffer og skap.
Stue
Stuen har gulv med 1-stavs eikeparkett, Boen Eik Pop hvit. Vegger er kledd med gipsplater, ferdig sparklet og malt i fargekoden NCS S0502-Y (bomull). Det vil bli store vindusflater i stue som gir rikelig med naturlig lys. Dette, kombinert med de lyse overflatene sørger for en luftig atmosfære.
Bad
Flislagt baderom med varmekabler. Baderommet har keramiske fliser fra Fagflis på 60x60 cm, Cinza.
Soverom
Soverommet har gulv med 1-stavs eikeparkett, Boen Eik Pop hvit. Vegger er kledd med gipsplater, sparklet og malt i fargekode NCS S0502-Y (bomull).
Generell informasjon om prosjektet
________________________________________________________________________
Beskrivelse av prosjektet
Beliggenhet
Standard
Parkering
Nyttige lenker
Nærområdet
Advanti & Partners Bodø
Annonseinformasjon
| FINN-kode | 369884458 |
|---|---|
| Sist endret | 16. des. 2024 13:17 |
| Referanse | 93241101 |
Annonsene kan være mangelfulle i forhold til lovpålagt opplysningsplikt. Før bindende avtale inngås oppfordres interessenter til å innhente komplett informasjon fra meglerforetaket, selger eller utleier.







