Bildegalleri
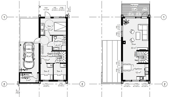
Plantegning 1. og 2. etasje
Skoran BFS2-4
Skoran
Prisantydning4 440 000 kr
Prosjektets status
Planlegging
-
Salgsstart
Selges nå
Byggestart
Antatt 1. kvartal 2025
Overtakelse
Antatt 1. kvartal 2026
Nøkkelinfo
- Boligtype
- Enebolig
- Soverom
- 3
- Internt bruksareal
- 96 m² (BRA-i)
- Bruksareal
- 96 m²
Beskrivelse
Mer informasjon kommer
NB: Knappen for å vise hele beskrivelsen har kun en visuell effekt.
NB: Knappen for å vise hele beskrivelsen har kun en visuell effekt.
Nyttige lenker
Nærområdet
Aktiv Jæren
Annonseinformasjon
| FINN-kode | 367969112 |
|---|---|
| Sist endret | 09. sep. 2025 08:55 |
| Referanse | 1403240281 |
Annonsene kan være mangelfulle i forhold til lovpålagt opplysningsplikt. Før bindende avtale inngås oppfordres interessenter til å innhente komplett informasjon fra meglerforetaket, selger eller utleier.
