Bildegalleri

Solgt
Ullernkammen 8
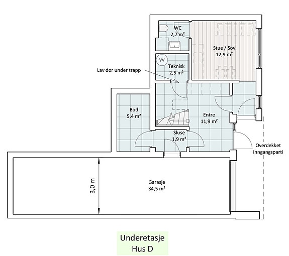
Hus D
Prisantydning16 900 000 kr
Prosjektets status
Planlegging
Utarbeidelse av salgsmateriell
Salgsstart
Høst 2024
Byggestart
Høst 2024
Overtakelse
1.kvartal 2026
Nøkkelinfo
- Boligtype
- Enebolig
- Soverom
- 4
- Internt bruksareal
- 185 m² (BRA-i)
- Bruksareal
- 185 m²
- Balkong/Terrasse
- 42 m² (TBA)
Beskrivelse
Totalt BRA:185,1 m²
Underetasje, 76,8 m² BRA-i :
Entre, bod, teknisk rom, wc, stue/ alternativt soverom, garasje
1.etasje, 53,7 m² BRA-i :
Gang, 2 bad, 2 soverom, hovedsoverom med garderoberom
2.etasje, 54,6 m² BRA-i:
Stue/ kjøkken med utgang til balkong på 12 m²
Takterrasse: 30 m²
NB: Knappen for å vise hele beskrivelsen har kun en visuell effekt.
NB: Knappen for å vise hele beskrivelsen har kun en visuell effekt.
Nyttige lenker
Nærområdet
TINHOLT Eiendomsmegling
Du vil kjenne forskjellen
Annonseinformasjon
| FINN-kode | 366657564 |
|---|---|
| Sist endret | 04. okt. 2024 14:41 |
| Referanse | 201241034 |
Annonsene kan være mangelfulle i forhold til lovpålagt opplysningsplikt. Før bindende avtale inngås oppfordres interessenter til å innhente komplett informasjon fra meglerforetaket, selger eller utleier.








