Bildegalleri

Horisont/Vedafjell trinn 1

Lekker gjennomgående 4-roms selveierleilighet på toppen av Skaarlia | Sør/​vestvendt balkong | Heis | Parkering

Prisantydning7 100 000 kr
Totalpris
7 114 450 kr
Omkostninger
14 450 kr
  • Planlegging

    Vinter 2023

  • Salgsstart

    20. august 2024

  • Byggestart

    3 kvartal 2025

  • Overtakelse

    1. kvartal 2027

Nøkkelinfo

Boligtype
Leilighet
Etasje
1
Soverom
3
Rom
4
Internt bruksareal
98 m² (BRA-i)
Bruksareal
103 m²
Eksternt bruksareal
5 m² (BRA-e)
Balkong/Terrasse
39 m² (TBA)

Les mer om bruksareal her

Fasiliteter

Balkong/Terrasse
Bredbåndstilknytning
Garasje/P-plass
Heis
Kabel-TV
Utsikt
Turterreng

Visning

Dersom du planlegger å delta på visning bes du om å melde deg på visningen i forkant til megler. Trykk på påmeldingsknappen i annonsen eller kontakt megler. Frist for påmelding er visningsdagen innen kl. 12.00. Visninger uten påmelding, vil ikke bli avholdt.
Visningspåmelding

Beskrivelse

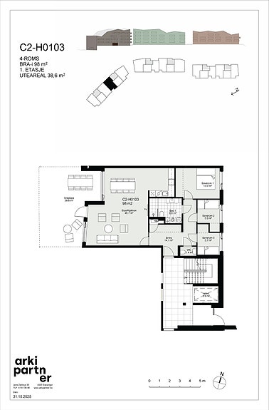
Vi har gleden av å presentere leilighet C2-H0103 - en smart og gjennomgående 4-roms leilighet beliggende i 1. etasje. Leiligheten inneholder entré med god plass for stor garderobeløsning, en åpen stue- kjøkkenløsning med utgang til sør/vestvendt uteplass på hele 38 m2.
Kjøkkenet leveres fra kvalitetsleverandøren HTH.
Videre er det bad, fliselagt med 60x60 fliser, gulvvarme og lekker baderomsinnredning. Leiligheten inneholder hele tre soverom, hvorav hovedroverom har romslig avsatt plass til garderobe. Byggingen er igang og prosjektet ferdigstilles sommeren 2027.
Tilvalgsprosessen er allerede igangsatt og de som ønsker, blir tilbudt hjelp av interiørkonsulent til sammensetning av farger etc.

Ansvarlig megler

Cecilie Grimsrud

Nærområdet

Annonseinformasjon

FINN-kode366095779
Sist endret21. jan. 2026 10:11
Referanse33230286

Rapporter annonse

Annonsene kan være mangelfulle i forhold til lovpålagt opplysningsplikt. Før bindende avtale inngås oppfordres interessenter til å innhente komplett informasjon fra meglerforetaket, selger eller utleier.