Bildegalleri
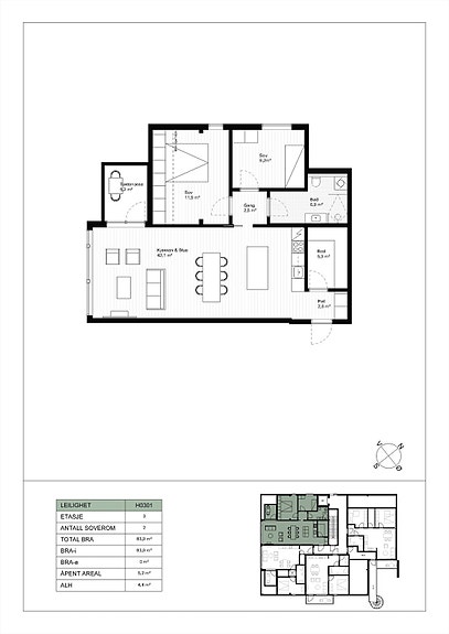
Plantegning
Torgvegen 8
Stor 3-roms leilighet i 3. etasje med takterrasse mot sør-vest og tilgang til carport
Prisantydning5 200 000 kr
Prosjektets status
Planlegging
Ferdig planlagt
Salgsstart
Klart til salg
Byggestart
Ferdig bygget
Overtakelse
Klart til innflytting
Nøkkelinfo
- Boligtype
- Leilighet
- Etasje
- 3
- Soverom
- 2
- Rom
- 3
- Internt bruksareal
- 84 m² (BRA-i)
- Bruksareal
- 84 m²
- Balkong/Terrasse
- 5 m² (TBA)
Fasiliteter
Balkong/Terrasse
Garasje/P-plass
Heis
Beskrivelse
Flott, stor leilighet i 3. etasje med god planløsning og utgang til egen takterrasse mot sør-vest. Leiligheten inneholder hall, stor bod, soveromsgang, 2 soverom, bad med opplegg til vaskemaskin, stue og kjøkken i åpen løsning med utgang til takterrasse. Leiligheten disponerer også carport og ekstern bod.
NB: Knappen for å vise hele beskrivelsen har kun en visuell effekt.
NB: Knappen for å vise hele beskrivelsen har kun en visuell effekt.
Nyttige lenker
Nærområdet
EiendomsMegler 1 Hadeland
Vi loser deg trygt gjennom hele boligsalget
Annonseinformasjon
| FINN-kode | 358146033 |
|---|---|
| Sist endret | 28. nov. 2025 12:13 |
| Referanse | 1211230224 |
Annonsene kan være mangelfulle i forhold til lovpålagt opplysningsplikt. Før bindende avtale inngås oppfordres interessenter til å innhente komplett informasjon fra meglerforetaket, selger eller utleier.

