Bildegalleri
Hus B - Med hybel (tilvalgsmulighet)
Prosjekterte eneboliger på Ullern
Enebolig Vesteråsveien 11
Prosjektets status
Planlegging
-
Salgsstart
-
Byggestart
- Startet
Overtakelse
-Estimert Q3/4 2026
Nøkkelinfo
- Boligtype
- Enebolig
- Soverom
- 4
- Internt bruksareal
- 214 m² (BRA-i)
- Bruksareal
- 214 m²
- Balkong/Terrasse
- 23 m² (TBA)
Visning
Beskrivelse
Oppdragsansvarlig
Oslofjorden Eiendomsmegling AS / Eirik Lande
Selger/Utbygger
Vesteråsveien AS v. Dag Kaas
Betegnelse
Gnr. 28 Bnr. 385 i Oslo kommune
Eiendommen vil bli seksjonert før overtagelse.
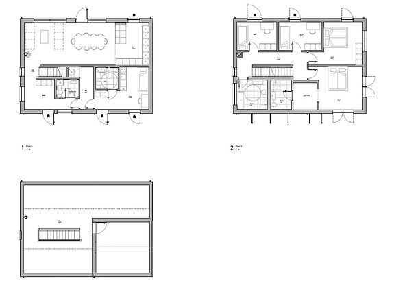
Arealer og fordeling per etasje
Totalt BRA 214 kvm består av:
- BRA-i (internt bruksareal): 214,20 kvm
- BRA-e (eksternt bruksareal):
- TBA (terrasse-/balkongareal) 23,40 kvm
Det totale bruksarealet fordeler seg som følger:
Første etasje:
- BRA-i: 93,6 m²
Andre etasje:
- BRA-i: 93,6 m²
Tredje etasje:
- BRA-i: 27 m²
- TBA: 23,4 m²
- ALH: 19,2 m²
- GUA: 46,2 m²
Beliggenhet
Eiendommen ligger i et attraktivt boligområde på Ullern med kort vei inn til sentrum, eller til flotte tur- og friluftsområder som gir gode rekreasjonsmuligheter både sommer og vinter. Ullern ligger sørvest i Oslo, mellom Lysakerelven og Maridalen, og består av rolige villastrøk, supplert med leiligheter. Det er gangavstand til skoler, barnehager og et godt kollektivtilbud.
For den aktivitetslystne kan Ullern Idrettsforening tilby bandy, basketball, fotball, håndball og gymnastikk. Ullern Tennisklubb ligger idyllisk til på Blokkajordet ved Ullern Kirke og har et høyst moderne tennisanlegg til helårsbruk. I tillegg er det kort vei til lekeplass, idrettshall og treningssenter m.m.
Langs Lysakerelven er det fine gangveier som fører til Lysaker brygge med flott utsyn over Oslofjorden, eller opp helt opp til Bogstadvannet og et forfriskende bad. Man kan også gå på ski via Maridalen opp til Bogstad og videre inn i marka. Etter nyåpningen i 2009 kan Oslo Golfklubb på Bogstad tilby en av Europas beste golfbaner.
Idylliske Vækerø park (ca. 3,8 km) er en godt bevart hemmelighet for de som er kjent i området. Her er det grønne og flott beplantede lunger, gressplen og stier, samt benker, brygger og mulighet for bading. I vestre ende av parken ligger pent opparbeidede Sollerudstranda som også har en fin gresslette med mulighet for ballspill.
Dagligvarehandelen kan gjøres ved bl.a. Rema 1000 og Ullern Dagligvare. Ønsker du ytterligere tilbud er det kort vei til CC Vest på Lilleaker. Senteret har en miks av kjedebutikker og selvstendige spesialforretninger som fremstår som moderne og trendsettende i en avslappende atmosfære. Røa senter, Majorstuen og de øvrige handlegatene i Oslo sentrum ligger også godt innen rekkevidde.
Området gir mulighet for offentlig kommunikasjon via buss og T-bane. Nærmeste bussholdeplass er Ullerntoppen som ligger ca. 450 meter fra boligen. Med bil fra Gregers Grams vei 25 tar det ca. 10 min til Skøyen, 12 min til Majorstuen, 16 min til Oslo S og 50 min til Oslo lufthavn.
Fra eiendommen er det gangavstand til Lysejordet skole. For elever i ungdomstrinnene er det kort vei til Bjørnsletta skole. Det finnes flere videregående skoler i nærliggende områder, bl.a. Ullern videregående, samt et godt utvalg av både private og kommunale barnehager. Oslo International School har beliggenhet på Bekkestua.
Bygninger
5 eneboliger og felles garasjekjeller.
Byggemåte
Byggene fundamenteres på avrettet fjell eller komprimert pukk. Garasjekjeller utføres i sprøytebetong. Isolert plate med armering og radonsperre, støpes/flytsparkles. Støttemurer o.l vil bli etablert der det er krav eller der entreprenøren finner det hensiktsmessig.
Stående luftet kledning av malmfuru, vindtetting, thermomur, isolert bindingsverk med 200 mm mineralull, innvendig utforing med 50mm mineralull, 13 mm gipsplater innvendig.
Takkonstruksjonen dimensjoneres etter teknisk forskrift og lokale snølastbestemmelser. Isolasjonsmengde på de forskjellige takkonstruksjonene kan variere avhengig av bygningens samlede netto energibehov. Yttertak tekkes med stålplater.
Etasjeskille består av bjelkelag m/isolasjon og gulvplater. Bjelkelag dimensjoneres etter bjelkelagstabeller utarbeidet av NBI i henhold til tekniske forskrifter.
Isolert bindingsverk i tre/stål leveres kledd med gipsplater. Dragere kan leveres som synlige bjelker. Vegger med fliser vil ha underliggende membranplate.
Plattinger kan leveres i tilvalgsprosessen, det vil da leveres i impregnert trevirke på såle av pukk eller trykkfast isolasjon om det er behov. Rekkverk leveres kun ved forskriftskrav.
Alle beslag, takrenner, nedløpsrør o.l leveres i grå. Nedløpsrør avsluttes med utkast over planert terreng eller føres ned i oppstikk fra drensledning til grunn.
Innhold
Svært gjennomtenkte og familievennlige planløsninger over tre plan.
Boligene har noe ulik planløsning for å optimalisere lysforhold, men likt innhold.
De inneholder:
1. etasje: Stor entrè, med god plass til garderobe, vaskerom/bad og bod i tilknytning til gangen. Åpen og romslig stue, spisestue og kjøkken. Det er mulig å gjøre om deler av etasjen til en hybel med egen inngang og bad.
2. etasje: Totalt 4 soverom og 2 bad i etasjen. Det ene soverommet er en master med walk-in og bad i tilknyttning.
3. etasje: Dette rommet er betegnet som bod i Oslo kommune, men kan fint brukes etter eget ønske. For eksempel TV-stue/hjemmekontor. Rommet er ikke beregnet som "rom for varig opphold" på grunn av takhøyden. Fra rommet er det utgang til takterrassen. Det er forventet at på det høyeste vil rommet ha en takhøyde på ca. 2,2 m.
Hybel som tilvalg:
Det er tilrettelagt for å opprette hybelløsning med egen inngang og bad i 1. etasje. Dette er en tilvalgsmulighet.
Standard
Gulv
Leveres iht romskjema. Lys 1-stavs eikeparkett med matt lakk og fliser fra Colorker tiles i 60x60 format.
Dersom det leveres fliser så kan høydeavvik forekomme uten å være en mangel. Fug og silikoner leveres i farge tilnærmet lik flis.
Lister
Gulvlister leveres i eik overflate, utforinger og gerikter rundt vinduer og dører leveres i glatt stilren utførelse og hvitmalt. Fotlister leveres i størrelse 12x58. Hvitmalte listverk leveres fabrikkmalt med synlig stift - det tas førbehold om at det ikke gis garanti mot kvistgulning på fabrikkmalte produkter. Vinduer utføres listefritt, der dette er mulig. Foringer til vinduer og dører i gips, sparkles og males som tilstøtende vegg/tak.
Vegger
Vegger leveres med gipsplater, skjøtesparkel, grunnet og malt iht NS3420 K2. Farger iht. fargeskjema.
Tak
Himlinger leveres kledd med gipsplater som skjøtesparkel, grunnes og males med to strøk iht NS3420 K2. I enkelte rom kan det forekomme helt eller delvis nedforede platehimlinger og innkassinger for å skjule rørføringer etc.
Dører og tilhørende
Innerdørene leveres med ett speil i fargen hvit, med NCS-koden S0502-Y.
Dørlister og utforing leveres fabrikmalt i NCS S0502-Y.
Håndtak i børstet utførelse.
Terskler i eik.
Hovedinngangsdør leveres i lys utførelse, og med innfelt glassfelt.
Dørene leveres med flat terskel for luftespalte.
Hovedinngangsdør leveres i lys utførelse.
Belysning
Belysning i henhold til NEK 400. Det leveres også 10 spotlights som standard, som plasseres etter kundens ønske og fordelt over 2 soner. Elektrisk belysning utover dette avklares med elektrikeren i tilvalgsmøtet.
Elektrisk installasjon blir utført etter gjeldende forskrifter og i henhold til NEK:400. Anlegget leveres skjult der det ikke er vegger som har lyd/brannkrav.
Trapp
Trapp leveres med lakkerte trinn og håndløper i ask. Det vil vare vegg til vegg trapp. Trinn leveres åpne med barnesikring i øverste etasje og lukkede i kjeller. Fester til håndlist og spiler i returgelender i stål.
*Vi forbeholder oss retten til å erstatte den angitte produktet med en tilsvarende vare dersom den angitte produktet ikke er tilgjengelig på bestillingstidspunktet.
Bad
Badet vil bli belagt med fliser i størrelsen 60 x 60 cm på gulv og vegger. I tillegg vil det være installert varmekabler med en termostat/regulator i alle baderommene. Himlingen i badet vil bli sparklet og malt med våtromsmaling.
Baderomsmøbelet leveres komplett med underskap, servant og speil, som vil bli tilpasset størrelsen på badet. Baderomsmøbler med en bredde på 80 cm til 100 cm blir levert med nedfelt servant. For WC-rom leveres det en fritthengende servant.
Alle bad vil ha dusjarmatur med regnfall og hånddusj. Diskløsningen kan variere og inkluderer innsvingbare dører, foldedører eller faste, rette dusjvegger, avhengig av planløsning Dersom det er angitt på tegningen, vil badekar bli levert som en del av baderomsutstyret. Toalettene blir utstyrt med innebygget sisterne, hvor det er teknisk mulig, samt en betjeningsplate.
For belysning blir det installert hvite LED downlights i taket, og det er mulighet for å regulere lysstyrken med en dimmer. Det leveres speil fra glassmester over baderomsmøbler.
For ytterligere detaljer og spesifikasjoner, henvises det til produktlisten.
Rør- og kanalføringer vil i hovedsak bli skjult bak himling der det er mulig. Innkassinger eller lokale nedsenkninger er ikke vist på tegning.
Farger
Standardmalingen for boligen inkluderer Jotun Sommersne som hovedfarge på veggene, og hvitmaling for himlingen. En helt lys, greige farge. Ikke beige, ikke grå, men noe midt i mellom. Varm og lun i tonen.
For soverommene har du muligheten til å velge mellom to forskjellige veggfarger: Sheer Grey og Duggblå. Her kan du også velge å matche himlingen med veggfargen som standard.
Sheer Grey er en farge som ofte refereres til som greige - en kombinasjon av grått og beige. Den har en rød undertone som gir varme, men også noen svarte hint for å dempe utrykket. Resultatet er den velkjente dempede, greige følelsen; ikke for varm, ikke for å kald. Bare deilig greige!
Duggblå er en gråaktig, lun blåtone som passer godt til et soverom, og passer godt sammen med Sheer grey, klassisk hvit og sommersne. Det gir boligen en fin helhet.
Dersom du ønsker å legge til ekstra personlig preg på boligen din, er det mulighet for tilvalg, inkludert fondvegger og andre farger. Dette gir deg friheten til å skape et hjem som reflekterer din egen smak og stil.
Alle malte flater, leveres ihht. standardleveranse eller fargeskjema ved tilvalg. Som standard leveres alle vegger i en farge - fondvegger mm. kan velges som tilvalg. Himling leveres hvitmalt (matt) som standard. Det gjøres oppmerksom på at eventuell synlige gipsskruer, svinnsprekker i betong og oppsprekking i materialer og treverk på grunn av normal opptørking/krymp av materialer ikke kan anses som reklamasjonsberettiget. I nye bygg vil det normalt oppstå svinnriss og sprekker ved skjøter og sammenføyninger, grunnet uttørking av materialer på intill +/-10mm. Det gjøres oppmerksom på at sprekker i materialoverganger og mellom tak og vegg, trappesjakter, hjørner og rundt vinduer ikke kan forlanges utbedret. Ett år etter overtagelse vil utførende utbygger gjennomføre en ett-års befaring hvor eventuelle skader/feil rettes. Disse forholdene vil ikke være av en slik karakter at de betraktes som en reklamasjon.
Kjøkken
Boligen leveres med et eksklusivt, snekkerbygd kjøkken der skapsinndelingen følger plantegningen. Kjøkkenet får et unikt preg i eik med en kompakt benkeplate som gir et tidløst og solid uttrykk. Alle hvitevarer leveres fra Siemens, kjent for høy kvalitet og brukervennlighet.
Som kjøper vil du, innenfor en tidsbestemt periode, kunne gjøre personlige tilpasninger gjennom en egen tilvalgsprosess hos entreprenøren. Dette gir deg muligheten til å skreddersy ditt kjøkken etter egne ønsker og behov.
Øvrig om standard
Det leveres ingen garderobeskap.
Vinduer og terrasse-/balkongdører leveres ferdigbehandlet med samme farge på begge sider. Alle vinduer og terrasse-/balkongdører leveres iht krav fra TEK 17.
Innvendige vannledninger legges skjult som rør-i-rør i godkjent fordelerskap, og avløpsrør legges i PP-plast. Rørfordelingskap kan plasseres utenom våtrom/teknisk rom dersom rørlegger finner det hensiktsmessig for anlegget. Stoppekran(er), eventuell reduksjonsventil, bunnledninger for vann og avløp med oppstikk til utstyrsenheter og nødvendige rør for sammenkobling av utstyr, samt fremføring og frostsikring av vann- og avløpsledninger til offentlig nett, er en del av leveransen.
Det leveres rør og veggboks for TV-uttak. Installasjon av kabel fra bredbåndsleverandør besørges av kjøper.
Se materialbeskrivelse og leveransebeskrivelse i salgsoppgaven for flere detaljer.
Tilvalg
Kjøper vil få anledning til å gjøre tilvalg innenfor entreprenørens alternativer mot tillegg i pris. Endringer vil dog være begrenset til visse deler av leveransen, og endringer vil ikke tillates på øvrige forhold. Følgende deler av leveransen vil være åpne for endringer: Parkett, kjøkken, fliser, elektro, dører, baderomsinnredning, peis, utekran, farger mm. Det skal avholdes tilvalgsmøte hvor tilvalgsmuligheter og frister vil komme frem. Oversikt over endringsalternativer og hvilke kostnader som vil påløpe, må avklares av entreprenør direkte med kjøper, før tilleggsarbeidene aksepteres. Tilvalg forutsettes innenfor benyttede leverandører i prosjektet og basert på prisliste/tilbud fra entreprenør. Utbygger kan ta inntil 20% påslag på entreprenørens tilbud til kjøper, dette er for å dekke renter på merkostnadene utbygger vil få entreprenør til overlevering av boligene, samt garanti på produkter, mm. Endringer kan ikke gjennomføres dersom det berører rammetillatelsen eller gir forsinkelser i prosjektet. Tilvalg og endringer er forbeholdt godkjenning fra entreprenør. Videre informasjon i materialbeskrivelsen.
Følgende deler av leveransen vil være åpne for endringer: Parkett, kjøkken, fliser, elektro, dører, baderomsinnredning, peis, trapp mm. Det skal avholdes tilvalgsmøte hvor tilvalgsmuligheter og frister vil fremkomme. Se
leveransebeskrivelse for mer info.
Kjøper vil få gode muligheter for individuell tilpassing av boligen. Tilvalgsproduktene kan bestilles i er en lang rekke forskjellige design, materialer, farger og egenskaper.
Hybel:
Det er tilrettelagt for å opprette hybelløsning med egen inngang og bad i 1. etasje. Dette er en tilvalgsmulighet.
Elektrisk:
Det vil bli utarbeidet en egen belysningsplan for boligene under elektrotilvalg. Individuelle behov kan dekkes via tilvalget. Mer informasjon om elektrotilvalg kommer i tilvalgsprosessen.
Bad:
Bad og WC kan tilpasses med en lang rekke forskjellige design, farger, overflater og tilbehør. Dette gjøres i samråd med & veiledning fra tilvalgskonsulent.
Nettbutikk & showroom:
Alle kjøpere vil få tilgang til en nettbutikk hvor de selv kan velge tilvalgsproduktene. I portalen vil kunde finne utfyllende informasjon og priser på alle produkter samt kunne føre dialog med tilvalgskonsulent. Det vil også vare mulig å se tilvalgsprodukter i entreprenørens showroom samt booke ekstra tid med tilvalgskonsulent for veiledning.
Utstyr
Det leveres seriekoblete røykvarslere til hver etasje.
Det leveres 200L varmtvannsbereder i boligen.
Oppvarming
Det er varmekabler/-matter i gulv på bad. Varmekilder i øvrige rom leveres etter energibehov og suppleres da med panelovner.
Peis leveres av Loge AS fra HITZ - model "SIGA"
Parkering / Garasje
Parkeringskjeller.
Beskrivelse av tomt
Arealet utvendig blir opparbeidet og vil i hovedsak bestå av tilsådde arealer evt ferdigplen der det er hensiktsmessig. Kjøper må selv pleie å vedlikeholde tilsådde arealer etter overtagelse og ivareta gode vekstforhold. Det leveres ikke busker, trær eller planter.
Tinglyste rettigheter og forpliktelser
Kommunen har legalpant som sikkerhet for betaling av kommunale avgifter. Legalpant er pant som følger av loven, og som ikke tinglyses. Legalpant følger derfor eiendommen ved salg. På eiendommen kan det være tinglyst erklæringer som f eks rett for kommunen til å vedlikeholde rørsystemer for vann- og kloakk. Disse erklæringene vil følge eiendommen ved salg. Kontakt megler for nærmere informasjon.
Øvrige sameiere har panterett i seksjonen for krav mot sameieren som følge av sameieforholdet, jf. eierseksjonsloven § 31. Pantekravet kan ikke overstige 2G (Folketrygdens grunnbeløp). Sameiet kan vedtektsfeste ytterligere panterett for sameiet. Vedtektsfestet pant tinglyses i seksjonene.
Servitutter / rettigheter
Eiendommen overdras fri for pengeheftelser, med unntak av eventuelle erklæringer, avtaler, servitutter og panteheftelser som fremgår av salgsoppgaven og skal følge med eiendommen ved salg. Kjøpers bank vil få prioritet etter disse.
1942/6651-1/105 Bestemmelse om bebyggelse
27.06.1942
Bestemmelse om benyttelse
Bestemmelse om gjerde
Bestemmelse om veg
Med flere bestemmelser
1949/4491-1/105 Bestemmelse om bebyggelse
23.04.1949
Bestemmelse om benyttelse
Bestemmelse om gjerde
Bestemmelse om veg
Med flere bestemmelser
1953/1875-1/105 Bestemmelse om veg
10.02.1953
Bestemmelse om gjerde
Bestemmelse om kloakkledning
1953/2280-1/105 Erklæring/avtale
19.02.1953
VEDTAK AV OSLO KOMMUNES VANN- OG KLOAKKREGLEMENT
1961/11615-1/105 Erklæring/avtale
19.09.1961
Midlertidig dispensasjon fra Bygningsloven vedr PEISESTUE I KJELLER
Kan ikke slettes uten samtykke fra bygningsrådet
1965/4238-1/105 Erklæring/avtale
25.03.1965
Midlertidig dispensasjon fra Bygningsloven vedr KJELLERSTUE
Kan ikke slettes uten samtykke fra bygningsrådet
1942/4568-1/105 Registrering av grunn
30.04.1942 Denne matrikkelenhet opprettet fra:Knr:0301 Gnr:28 Bnr:309
Vei / Vann / Avløp
Vesteråsveien er kommunal vei.
Offentlig vann og avløp via private stikkledninger.
Ferdigattest eller midl. brukstillatelse
Overtagelse kan tidligst skje når det foreligger midlertidig brukstillatelse. Selger fremskaffer ferdigattest ved endelig ferdigstillelse av prosjektet.
Ved overtakelse skal det dokumenteres at alle innbetalinger, inkludert eventuelle tilleggsleveranser, er betalt før utlevering av nøkkel til boligen finner sted.
Det gjøres oppmerksom på at det etter oppgjørs- og overtakelsesdato fortsatt kan foregå byggearbeider på eiendommen, herunder arbeid med ferdigstillelse av de øvrige boligene, fellesarealer, tekniske installasjoner og utomhusarbeider.
Kjøper kan ikke nekte å overta boligen mot midlertidig brukstillatelse selv om det gjenstår arbeider som nevnt foran eller arbeid gjenstår på fellesområdene. Det samme gjelder dersom tinglysing av hjemmelsovergang ikke kan gjennomføres på overtakelsesdagen.
Verdi ved skattefastsetting
Verdien ved skattefastsetting er p.t. ikke fastsatt. Verdien ved skattefastsetting fastsettes av Ligningskontoret etter beregningsmodell som tar hensyn til om boligen er en såkalt "primærbolig" (der boligeieren er folkeregistrert bosatt) eller "sekundærbolig" (alle boliger man eier, men ikke bor fast i). Interessenter oppfordres til å sjekke www.skatteetaten.no eller kontakte ansvarlig megler for nærmere informasjon om verdien ved skattefastsetting.
Reguleringsforhold
Byggeområde for boliger. Maks BYA 24%. Felt C.
S-3812, 18.10.00. se reg.bestemmelser.
S-3812:
Vedtaksdato: 18.10.2000
Vedtatt av: Bystyret, egengodkjenning
Vedtaksdokumenter: 199606022
Lovverk: PBL 1985
Høydereferanse: Oslo lokal
Merknader:
Knytning(er) mot andre planer: 602296, 3106
22843:
Vedtaksdato: 16.11.1943
Vedtatt av: Reguleringsrådet
Vedtaksdokumenter: 194300963
Lovverk: BL 1924
Høydereferanse: Oslo lokal
38538:
Vedtaksdato: 05.07.1938
Vedtatt av: Reguleringsrådet
Vedtaksdokumenter: 193802424
Lovverk: BL 1924
Høydereferanse: Oslo lokal
Merknader: Finner ikke stemplet plankart i arkivet.14/1-94
Byggesaker i nærområdet:
- Vesteråsveien 16 - 18 - Oppføring av 23 boliger med parkeringskjeller.
- Gregers Grams vei 8 - Riving av enebolig.
- Vesteråsveien 9 C - Oppføring av enebolig.
- Gregers Grams vei 6 B - Underbygg.
Det foreligger rammetillatelse på prosjektet og rammetillatelse på å rive eksisterende bygg på eiendommen.
Beskrivelse av sameiet
En sameier eier en andel i eiendommen, med tilknyttet enerett til bruk av sin bruksenhet, jf. eierseksjonsloven § 25.
Ingen kan erverve mer enn to boligseksjoner i et sameie, jf. eierseksjonsloven § 23 første ledd. Dersom et erverv har funnet sted i strid med eierseksjonslovens regler kan Kartverket nekte overskjøting.
Dersom overskjøting blir nektet, er kjøper likevel forpliktet til å gjennomføre handelen med selger, og oppgjør til selger vil finne sted tross manglende overskjøting.
Interessenter oppfordres til å sette seg inn i sameiets vedtekter, husordensregler, regnskap, budsjett, årsberetning m.m. Se særlig om vedtekter og husordensregler knyttet til husdyrhold, dugnader, trappevask o.l.
Andre faste løpende kostnader
Felleskostnader vedtas av sameiet. Kommunale avgifter blir fakturert angjeldende andel direkte til hver sameier.
Fellesutgifter skal dekke sameiets driftsutgifter, og vil blant annet avhenge av ytelsene sameiet rekvirerer. Fellesutgiftene fordeles i henhold til sameiets vedtekter, som i utgangspunktet angir fordeling etter sameierbrøken. Sameiet skal beslutte hvor mange ytelser som skal rekvireres.
Kjøper er selv ansvarlig for å bestille renovasjonsabonnement etter overtagelse. Selger avsetter plass til renovasjonsbeholderen på eiendommen og er vist på utomhusplanen, og det tas forbehold om eventuelle endringer av organiseringen ihht praktiske løsninger og kommunens krav. Renovasjonsareal er felles for sameiet og vil kunne ta deler av vedtekstfestet areal. Renovasjonspriser ihht satser og beregninger i Oslo kommune. Renovasjonsgebyret faktureres fire ganger i året. https://www.oslo.kommune.no/avfall-og-gjenvinning/gebyr-og-priser/
Det er eiendomsskatt i Oslo kommune. Bunnfradraget i Oslo er i 2023 på 4 millioner kroner for bolig og fritidsboliger. Skattesatsen i 2023 er 3 promille av eiendomsskattegrunnlaget. For mer informasjon se: https://www.oslo.kommune.no/skatt-og-naring/skatt-ogavgift/eiendomsskatt/hvor-mye-skal-du-betale-i-eiendomsskatt/.
Faktura for eiendomsskatt sendes den som er registrert eier av eiendommen på faktureringstidspunktet. Ved eierskifte må kjøper og selger gjøre opp betalingen av eiendomsskatten seg imellom.
Kommunale avgifter faktureres hver sameier direkte. Det er feiing, renovasjon, vann og avløp.
Vann og avløp etter bruksareal:
https://www.oslo.kommune.no/vann-og-avlop/tilknytningsgebyr-arsgebyr-og-vannmaler/vann-og-avlopsgebyrer/#toc-2
Priseksempel:
Beregning av vann- og avløpsgebyr for en bolig med 100 m2 bruksareal
(100 m² x1,3) á 25,08 kroner = 3 260,40 kroner
(100 m² x1,3) á 25,08 kroner = 3 260,40 kroner
Abonnementsgebyr: 448,00 kroner
Sum: 6 968,80 kroner
25 % mva. = 1 742,20 kroner
Totalt inkl. mva = 8 711,00 kroner.
Øvrige kostnader som f.eks. strøm, Internett, alarm, kabel-TV, innboforsikring, kommer i tillegg.
Kostnadene vil variere ut fra valg av leverandør og avtaletype.
Andel fellesgjeld / formue
Det er ingen fellesformue eller fellesgjeld i sameiet.
Oppgjør
Med mindre annet er avtalt forutsettes det at kjøper innbetaler 10 % av kjøpesummen ved garantistillelse iht. Bustadoppføringsloven §12. Den del av kjøpesummen som forfaller til betaling ved kontraktsinngåelsen og for øvrig før overtagelse vil bli innsatt på meglers klientkonto. Depositum går over til å være forskudd som kan utbetales selger mot at selger stiller tilfredsstillende selvskyldnergaranti iht. bustadoppføringslova § 47. Dersom selvskyldnergaranti ikke etableres vil oppgjør med selger først finne sted etter at kjøper har fått tinglyst skjøte. Forskuddet skal være fri egenkapital og det kan ikke tas pant i kjøpt eiendom for forskuddsbeløpet.
Når selger har stillet lovpålagt sikkerhet for beløpet vil selger få instruksjonsrett over beløpet på meglers klientkonto. Opptjente renter tilfaller etter dette selger.
Betalingsforpliktelsen inntrer uansett ikke før tilfredsstillende garanti er stilt. Kjøpesum og omkostninger skal være innbetalt meglerforetakets klientkonto innen overtagelse.
Forsinkes betalingen med mer enn 30 dager, har selger rett til å heve kjøpet og foreta et dekningssalg iht. Buofl. Selger vil holde kjøper ansvarlig for selgers eventuelle økonomiske tap som følge av kjøpers mislighold. Selger har rett til dekning av sitt tilgodehavende i kjøpers eventuelle innbetalinger, herunder også for renter og andre omkostninger som påløper på grunn av kjøpers mislighold.
Avbestilling
Kjøper har avbestillingsrett etter buofl. § 52 etter at bindene avtale er inngått gjennom bud og budaksept. Ved kjøpers avbestilling reguleres erstatningen av buofl. § 53, slik at selger skal ha erstattet hele sitt økonomiske tap som følge av avbestillingen. Kjøper gjøres oppmerksom på at det økonomiske tapet kan bli betydelig, bl.a. avhengig av markedsutviklingen. Bestilte endrings- og tilleggsarbeider må uansett betales i sin helhet. Skjer avbestillingen før igangsetting, settes avbestillingsgebyret til 10 % av kjøpesummen. Ved avbestilling etter at bygging er igangsatt vil selger ha krav på full erstatning for sitt økonomiske tap i henhold til bustadoppføringslova kapittel VI
Videresalg og endring i eierskap /navneendring
Kjøpekontrakten gjelder individuelt for kjøper. Videresalg/ transport av kjøpekontrakt før overtakelse krever selgers samtykke og godkjenning av ny kjøper. Ved selgers skriftlige samtykke påløper et gebyr på kr 150.000, - inkl. mva. til selger. Ny kjøper vil være bundet av evt. tilvalg og endringer.
Det forutsettes at skjøtet tinglyses i kjøpers navn iht. kjøpekontrakten. Ved endring av hjemmelsforhold internt i familien før overtakelse, påløper et gebyr på kr 15.000, - inkl. mva. til selger. Endring krever selgers samtykke
Finansiering
Kontakt megler for avklaring av finansielle forhold, herunder lån til kjøp av eiendom. Privatmegleren har avtale med Nordea om formidling av lån og andre finansielle tjenester. Privatmegleren mottar godtgjørelse for dette.
Annen nyttig informasjon
Leveransebeskrivelsen er utarbeidet for å orientere om bygningens viktigste bestanddeler og funksjoner. Skulle det forekomme avvik mellom beskrivelse og tegninger vil beskrivelsen være gjellende. Enkelte illustrasjoner i tegningsmaterialet kan vise forhold som ikke er i samsvar med leveranse, som feks møblering, fargevalg, dør og vindusform, bygningsmessige detaljer, fasadedetaljer, detaljer på fellesarealer, materialvalg, utomhusområder, beplantning, etc. Endringer i produkter og/eller leverandører kan ved behov forekomme ifm detaljprosjektering.
Innvendig netto takhøyde er ca 240cm. Rom med downlights og/eller tekniske føringer kan imidlertid ha nedforet gipshimling, eventuelt innkassing av tekniske føringer, og dermed lavere netto takhøyde. Både nedforet gipshimling og eventuelle innkassinger vil være sparklet og malt. Det kan forekomme nivåforskjeller/terskler fra rom med fliser til rom med parkett, mellom flis og parkett uten terskel og fra innvendige arealer til balkonger/markterrasse. Boligen bygges etter energikravet i gjeldende teknisk forskrift. Boligene blir levert som precut eller prefabrikkerte elementer.
Alle opplysninger i denne beskrivelse er gitt med forbehold om rett til endringer som er hensiktsmessige og nødvendige, uten å forringe den generelle standard.
Ved overtagelse vil kjøper få utlevert forvaltning, drift og vedlikeholds dokumentasjon (FDV). Det presiseres at vedlikehold og bruk av produktene må følge denne dokumentasjonen for å opprettholde garanti.
Adgang til utleie
Bolig i eierseksjonssameie kan som hovedregel fritt leies ut. Det kan imidlertid følge av sameiets vedtekter at leietager skal godkjennes av styret, jf. eierseksjonsloven § 24 tredje ledd. Styret må ha "saklig grunn" for ikke å godkjenne leietager.
Eiendommen kan i sin helhet fritt leies ut til boligformål.
Det vil normalt være anledning til utleie av hele eiendommen eller enkeltrom, så fremt arealet er godkjent for varig opphold iht. plan- og bygningsloven og har forsvarlig radonnivå.
Konsesjon / Odel
Nei / Nei
Sikkerhetsstillelse
Alle eiendomsmeglingsforetak har lovpålagt forsikring av klientmidler begrenset oppad til kr 45 mill. Enkeltsaker er forsikret inntil kr 15 mill. Dersom kjøpers låneinstitusjon krever tilleggsforsikring ved omsetning over 15 millioner, må kjøper selv eller dennes låneinstitusjon dekke utgiftene forbundet med dette.
Planlagt overtagelse
Forventet overtagelse er estimert til 12-16 måneder etter oppstart av grunnarbeidene noe som tilsvarer ca Q3-Q4 2026 Forventet overtagelse er foreløpig og ikke bindende og utløser ikke dagmulkt.
Selger forbeholder seg retten til å kunne overlevere tidligere dersom fremdriften tillater det og dette synes hensiktsmessig. Selger tar for behold om at det oppnås nødvendige offentlige godkjenninger for prosjektet slik det er presentert og salg av tilstrekkelig antall enheter. (Se selgers forbehold om realisering).
Arbeidet skal utføres av selger med rimelig fremdrift og uten unødi ge avbrudd. Selger vil holde kjøper løpende underrettet om fremdrift når overtakelsestidspunkt nærmer seg. Selger innkaller kjøper til overtagelsesforretning med minst 1 ukes varsel. Den endelige datoen er bindende og dagmulktsutløsende, og skal ligge innenfor overtakelsesperioden. Denne datoen vil være å regne som frist ihht. Bustadoppføringslova.
Selger forbeholder seg retten til å levere boligen før fastsatt overtakelsesintervall
Selgers forbehold
Det tas forbehold om at det inntreffer forhold som medfører at Selger ikke finner det forsvarlig å iverksette byggearbeidene. Det tas forbehold om 3 forhåndssolgte boliger og igangsettelsestillatelse fra Oslo kommune. Selgers frist for å gjøre forbehold gjeldende er 1. november 2024
Viktig informasjon
jøpere plikter å gjøre seg kjent med prospektet og beskrivelse som følger av salgsoppgaven før endelig avtale inngås.
Frihåndstegninger, plantegninger og illustrasjoner i prospektet og annonser er av illustrativ og kunstnerisk karakter og angir nødvendigvis ikke korrekt gjengivelse av boligene og elementer i huset, terrenget, utomhusarealene, fasader mm.
Generelt leveres boligen ihht. teknisk forskrift TEK 17.
Prosjektet er pr. i dag ikke detaljprosjektert. Alle opplysninger er derfor gitt med forbehold om rett til å gjøre endringer i forhold til arkitekttegninger, situasjonskart, beskrivelse som er hensiktsmessige og nødvendige, uten å forringe den generelle standard.
Er det motsetninger mellom prospekttegninger og beskrivelser, gjelder beskrivelser foran tegninger. Prospektets beskrivelse og illustrasjoner gjelder foran eventuelle tegninger, skisser el. fra underleverandører. Det tas forbehold om justeringer og endringer av fasader og utomhusplanen.
Ventilasjonsføringer ol kan gi redusert takhøyde på enkelte steder. Sjaktstørrelser, vindusstørrelser, samt vindu- og dørplassering og type kan avvike noe fra de generelle planer, som følge av bl.a. bærekonstruksjoner og den arkitektoniske utformingen av bygget, eller som følge av tekniske krav.
Tekniske anlegg og fremføringer blir ikke inntegnet på tegninger som omfattes av kjøpekontrakt. Endelig plassering av disse bestemmes av selger i detaljprosjekteringsfasen ut det fra som er hensiktsmessig og nødvendig. Vertikale føringsveier, bjelker og søyler, sjakter kan bli noe endret/tilført i plassering og størrelse når endelige tekniske tegninger er klare. Føringer vil kunne ta areal av boligene.
Endringer som følge av tekniske løsninger eller offentlige pålegg må påregnes. I tilfelle behov for tekniske anlegg for boliger og tomt som pumpeanlegg el., vil det være kjøpers ansvar å overta anleggets drift inklusive fremtidige kostnader.
På tegningene er det vist et forslag til plassering av innredning, garderober, kjøkken, hvitevarer med mer som ikke er del av leveransen. Elementer vist med stiplede linjer er ikke en del av leveransen.
Bygningsmaterialer påvirkes av fuktighet og uttørking. Det kan oppstå sprekker på grunn av bevegelse i materialene uten at dette medfører rett til reklamasjon. Listverk vil ha synlige dykkerthoder. Listverk og trapper er behandlet på fabrikk og kjøper må påregne flekkmaling/sparkling og/eller toppstrøk.
Entreprenør tar forbehold om å endre produkter med produkter av tilsvarende kvalitet/utførelse hvis han måtte finne det formålstjenlig.
Boligene vil bli levert byggrengjort. Det vil si at boligen ryddes for avfall, gulv støvsuges og skap støvtørkes. Øvrig vask av overflater og vinduer må utføres av kjøper. Selger tar forbehold om at innsekter/smådyr som maur og skjeggkre kan forekomme i boligen, og tar ikke ansvaret for dette.
Når det gjelder utvendige tørrmurer, brolagte og singlete arealer etc, må man forvente at de kan sette seg noe over tid.
Det gjøres oppmerksom på at det kan bli plassert fellesinstallasjoner som kummer, stakeluker, koblingsbokser etc. på den enkeltes del av eiendommen uten at det kan gjøres krav som følge av dette.
Boligenes arealer er angitt så nøyaktig som mulig. Selger tar imidlertid forbehold om mindre avvik/endringer og slike avvik vil ikke være reklamasjonsgrunn. Summen av de oppgitte romstørrelser på plantegningene samsvarer ikke med boligens totale BRA som følge av at innvendige vegger og innkassing av ventilasjon ikke er medtatt i denne sammenheng. Selger har videre rett til, uten at kjøperen kan kreve endring i pris, å foreta mindre endringer i oppgitte spesifikasjoner, produkter og beskrivelser som ikke forringer prosjektets eller boligenes kvalitet og funksjon i vesentlig grad.
Kjøpekontrakten som ligger vedlagt salgsoppgaven er den som ligger til grunn for handelen.
Ved besøk på byggeplassen før overtagelse skal kjøper alltid være i følge med en representant fra selger. All annen ferdsel på byggeplassen er beheftet med stor grad av risiko og er forbudt.
Solgt ihht bustadoppføringsloven
Boligene selges i henhold til Bustadoppføringslova som regulerer kjøpers (forbrukers) rettigheter og plikter ved avtale om oppføring av bolig og kjøp av fast eiendom der bygningen ikke er fullført når avtalen inngås. Ved salg til aksjeselskap legges Avhendingslovens bestemmelser til grunn. For øvrig gjelder Lov om eierseksjoner for eierseksjonssameiet og driften av dette.
Garantier
Det stilles garantier i henhold til Bustadoppføringslovas bestemmelser. Garanti etter § 12 vil bli stilt i forbindelse med avtaleinngåelse. Garantien skal være pålydende 3% av kjøpesummen i byggetiden og 5% i 5 år etter overlevering av boligene til kjøper. Garanti etter § 47 forutsettes stilt om selger ønsker utbetalt forskudd/delinnbetaling/sluttoppgjør før hjemmelsovergang. Eventuelle påkrevde endringer av garantier ved eventuelle videresalg/transporter utføres ikke og bekostes ikke av selger.
Forsikring
Frem til overtagelse vil eiendommen være forsikret av selger. Etter overtagelse vil eiendommen forsikres gjennom sameiets fellesforsikring. Kjøper må selv besørge innboforsikring og forsikring av eventuelle særskilte påkostninger.
Budgiving
Boligene selges til fastpris.
Alle bud/kjøpetilbud på eiendommen skal være skriftlig og sendes meglerforetaket pr. fax, mail, sms eller via vår "gi bud"-knapp på våre nettsider. Knappen finner du også på Privatmeglerens hjemmeside for prosjektet, se på den enkelte bolig.
Bud/kjøpetilbud må ikke ha kortere akseptfrist enn til kl. 12.00 første virkedag etter siste annonserte visning. Lørdag regnes ikke som virkedag. Bud/kjøpetilbud med kortere frist enn dette kan ikke formidles av megler. Nærmere info om budgiving finner du på egen side sammen med kjøpetilbud/budskjema.
Som budgiver hos Privatmegleren kan du kreve budjournal fremlagt så snart handel er gjennomført.
Innhold i budjournal er lovregulert, og innebærer at budgivere må akseptere at opplysninger om budet kan bli fremlagt for selger, kjøper og øvrige budgivere. Budgiver som ikke blir kjøper, kan kreve kopi av anonymisert budjournal.
Lov om hvitvasking
Megler er underlagt lov om hvitvasking som innebærer plikt til å melde ifra til Økokrim om mistenkelige transaksjoner
Meglers vederlag og utlegg
Godtgjørelse oppgjør (Oppgjørskostnad) (Kr.8 687)
Innhenting kommunale opplysninger (Kr.4 000)
Tilrettelegging (Kr.16 500)
Provisjon (forutsatt salgssum: 20 700 000,-) (Kr.258 750)
Totalt kr. (Kr.287 937)
Dersom eiendommen ikke omsettes, faktureres selger kr 9.900,-
Nyttige lenker
Nærområdet
Privatmegleren Premium
Annonseinformasjon
| FINN-kode | 353300772 |
|---|---|
| Sist endret | 06. sep. 2025 02:17 |
| Referanse | 321240028 |
Annonsene kan være mangelfulle i forhold til lovpålagt opplysningsplikt. Før bindende avtale inngås oppfordres interessenter til å innhente komplett informasjon fra meglerforetaket, selger eller utleier.