Bildegalleri
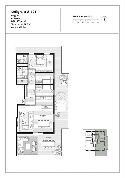
Plantegning G601
Steinan
Steinan Park Hus G
BYGG G
Prisantydning9 700 000 kr
Prosjektets status
Planlegging
2024
Salgsstart
Våren 2024
Byggestart
2024-2025
Overtakelse
2026-2027
Nøkkelinfo
- Boligtype
- Leilighet
- Etasje
- 6
- Soverom
- 3
- Rom
- 4
- Internt bruksareal
- 105 m² (BRA-i)
- Bruksareal
- 110 m²
- Eksternt bruksareal
- 5 m² (BRA-e)
- Balkong/Terrasse
- 82 m² (TBA)
Fasiliteter
Balkong/Terrasse
Bredbåndstilknytning
Garasje/P-plass
Heis
Kabel-TV
Utsikt
Vaktmester-/vektertjeneste
Turterreng
Visning
Vi har fast fellesvisning hver onsdag fra kl. 12 til 13. Velkommen innom! Hvis tidspunktet ikke passer, så ta gjerne kontakt for å avtale et eget tidspunkt.
VisningspåmeldingBeskrivelse
Ansvarlig megler
Petter Bang Møllersen
NB: Knappen for å vise hele beskrivelsen har kun en visuell effekt.
NB: Knappen for å vise hele beskrivelsen har kun en visuell effekt.
Nærområdet
Heimdal Eiendomsmegling avd. Rosten
Annonseinformasjon
| FINN-kode | 347741072 |
|---|---|
| Sist endret | 10. okt. 2025 09:57 |
| Referanse | 1-24-0133 |
Annonsene kan være mangelfulle i forhold til lovpålagt opplysningsplikt. Før bindende avtale inngås oppfordres interessenter til å innhente komplett informasjon fra meglerforetaket, selger eller utleier.

