Bildegalleri
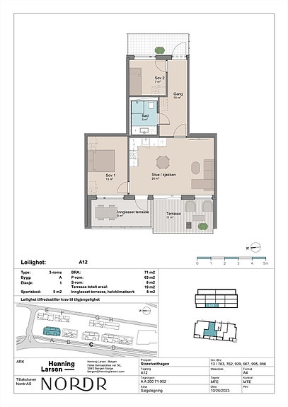
Plantegning ST3-A12
Solgt
STORETVEITHAGEN
Storetveithagen
Fantoft | Nytt boligprosjekt i grønne omgivelser like ved bybanen.
Prisantydning5 350 000 kr
Prosjektets status
Planlegging
Ferdig
Salgsstart
04.11.2022
Byggestart
Q2-2023
Overtakelse
Q2 2025 til Q2 2026
Nøkkelinfo
- Boligtype
- Leilighet
- Etasje
- 1
- Soverom
- 2
- Rom
- 3
- Internt bruksareal
- 63 m² (BRA-i)
- Bruksareal
- 76 m²
- Eksternt bruksareal
- 5 m² (BRA-e)
- Innglasset balkong
- 8 m² (BRA-b)
- Balkong/Terrasse
- 19 m² (TBA)
Beskrivelse
Ansvarlig megler
Markus Håland
NB: Knappen for å vise hele beskrivelsen har kun en visuell effekt.
NB: Knappen for å vise hele beskrivelsen har kun en visuell effekt.
Nærområdet
W Eiendomsmegling
Annonseinformasjon
| FINN-kode | 342908189 |
|---|---|
| Sist endret | 29. aug. 2025 08:05 |
| Referanse | WEB6.2443 |
Annonsene kan være mangelfulle i forhold til lovpålagt opplysningsplikt. Før bindende avtale inngås oppfordres interessenter til å innhente komplett informasjon fra meglerforetaket, selger eller utleier.

