Bildegalleri
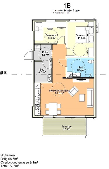
Plantegning - 3-roms leilighet på 69 kvm i 1. etasje.
Mjølkerampa - Trinn 3
3-roms leilighet på 69 kvm i 1. etasje.
Prosjektets status
Planlegging
Q4 - 2023
Salgsstart
Q1 - 2024
Byggestart
Q3 - 2024
Overtakelse
Q2/3 - 2025
Nøkkelinfo
- Boligtype
- Leilighet
- Etasje
- 1
- Soverom
- 2
- Rom
- 3
- Bruksareal
- 69 m²
Fasiliteter
Beskrivelse
Populære Mjølkerampa lanserer trinn 3 - Et moderne og attraktivt sameie med 8 selveierleiligheter. Leilighetene får en sentral beliggenhet med alt av sentrumsfasiliteter rett utenfor utgangsdøra. Pent opparbeidede fellesarealer med grønt areal, asfalterte internveier og felles anlegg med carport og boder.
Hvorfor kjøpe ny leilighet i sameiet?
- Ny leilighet med forutsigbart kostnadsbilde.
- Trappefri adkomst til 2. etasje via innvendig løfteplattform.
- Vannbåren gulvvarme og varmt vann fra Lena Fjernvarme.
- Energieffektive boliger. = Lavere strømutgifter.
- Balansert ventilasjon med varmegjenvinning = Behagelig og frisk luft.
- Carport og utvendig sportsbod.
- 5 års garanti etter overtagelse.
- Kjøp tidlig for mulighet til egne tilpasninger på farger, planløsning og materialer.
- Kun NYTT er NYTT - Lite behov for vedlikehold i lang tid.
Leilighetene på 69 kvm i 1. etasje har en åpen stue- og kjøkkenløsning for best utnyttelse av arealet. Videre får man en planløsning med 2 soverom, romslig bad og innvendig bod. Fra stuen har man adkomst til en solrik platting. Meld interesse tidlig for mer informasjon og mulighet for individuelle tilpasninger.
Overtakelse
Overtakelse skjer etter avtale med selger.
Før boligen overleveres kjøper, skal fullt oppgjør og omkostninger være mottatt på meglers klientkonto.
Hvitvaskingsregelverk
Eiendomsmeglere er underlagt lov om hvitvasking og tilhørende forskrift. Etter hvitvaskingsloven er eiendomsmegler pålagt å gjennomføre kundetiltak av både selger og kjøper.
Hvis kjøper ikke bidrar til at megler får gjennomført kundetiltak, og dette fører til at transaksjonen ikke kan gjennomføres eller blir forsinket, misligholder kjøper avtalen. Etter 30 dager anses misligholdet vesentlig, og selger har rett til å heve avtalen og gjennomføre dekningssalg for kjøpers regning. Dersom det er selger som ikke bidrar til at megler får gjennomført løpende kundetiltak underveis i oppdraget må eiendomsmegler stanse gjennomføringen av transaksjonen. Selger vil i et slikt tilfelle ha misligholdt sine forpliktelser, og kjøper vil kunne ha et krav mot selger etter avhendingsloven.
Hvis kundetiltak ikke lar seg gjennomføre, vil Nordvik Eiendomsmegling ikke kunne bistå med handelen eller foreta oppgjør.
Vedlegg til Salgsoppgaven
Vedleggene er en del av den komplette salgsoppgaven. Det er viktig at interessenter setter seg godt inn i vedleggene og kontakter megler med eventuelle spørsmål før bud inngis.
Nyttige lenker
Nærområdet
Nordvik Gjøvik
Annonseinformasjon
| FINN-kode | 336678461 |
|---|---|
| Sist endret | 06. nov. 2025 11:22 |
| Referanse | 71-0016/24 |
Annonsene kan være mangelfulle i forhold til lovpålagt opplysningsplikt. Før bindende avtale inngås oppfordres interessenter til å innhente komplett informasjon fra meglerforetaket, selger eller utleier.
