Bildegalleri

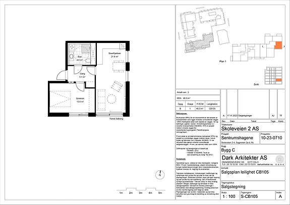
S-CB105 - Salgsplan leilighet CB105.jpg
Inaktiv
Sentrumshagene - Hus C
Sentrumshagene CB105
Prisantydning4 690 000 kr
Prosjektets status
Planlegging
Ferdig
Salgsstart
Januar 2024
Byggestart
3. kvartal 2024
Overtakelse
4. kvartal 2025
Nøkkelinfo
- Boligtype
- Leilighet
- Etasje
- 1
- Soverom
- 1
- Rom
- 2
- Internt bruksareal
- 48 m² (BRA-i)
- Bruksareal
- 51 m²
- Eksternt bruksareal
- 3 m² (BRA-e)
Fasiliteter
Balkong/Terrasse
Bredbåndstilknytning
Garasje/P-plass
Heis
Kabel-TV
Turterreng
Beskrivelse
Ansvarlig megler
Trygve Formo Hermansen
NB: Knappen for å vise hele beskrivelsen har kun en visuell effekt.
NB: Knappen for å vise hele beskrivelsen har kun en visuell effekt.
Nyttige lenker
Nærområdet
Sem & Johnsen
Annonseinformasjon
| FINN-kode | 336399274 |
|---|---|
| Sist endret | 15. jan. 2026 14:17 |
| Referanse | 21-23-1295 |
Annonsene kan være mangelfulle i forhold til lovpålagt opplysningsplikt. Før bindende avtale inngås oppfordres interessenter til å innhente komplett informasjon fra meglerforetaket, selger eller utleier.
