Bildegalleri
Varden Bygg A og B
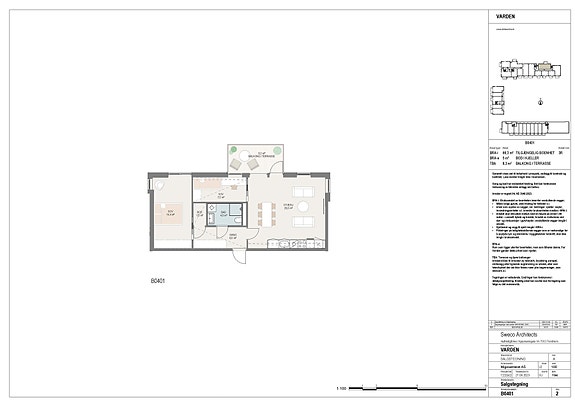
B0401
Prosjektets status
Planlegging
1. halvår 2023
Salgsstart
Desember 2023
Byggestart
Vinter 2025
Overtakelse
1. halvår 2027
Nøkkelinfo
- Boligtype
- Leilighet
- Etasje
- 4
- Soverom
- 2
- Internt bruksareal
- 66 m² (BRA-i)
- Bruksareal
- 71 m²
- Eksternt bruksareal
- 5 m² (BRA-e)
Visning
Beskrivelse
Standard
Denne boligen er innredet med lys grå fliser i 60x60, og 5x5 cm fliser i dusjsonen. Tilvalget av eikefarget servantskap gir et naturlig og stilrent preg.
Oppvarming
Fjernvarme
Beliggenhet
Prosjektet ligger flott til på Hallset på Byåsen. Her oppe får man flott utsikt, nærhet til de fleste servicefasiliteter man trenger i det daglige, og god forbindelse til sentrum.
Adkomst
Ut fra Trondheim sentrum følger man retning Ila / Byåsen. Følg så Byåseveien til du har passert Munkvoll gård og Byåsen skole på din venstre side. Når man kommer til rundkjøring med skilting Hallset så ta til venstre mot Hallset i rundkjøringen. Da er man inne i Arnt Smistad veg og følg denne som går over i Selsbakkvegen. Følg denne til du kommer til rundkjøringen. Ta til høyre og prosjektet ligger på venstre side.
Parkeringsforhold
1
Ferdigattest
Utbygger plikter å fremskaffe ferdigattest når eiendommen er ferdigstilt.
Hvitevarer / tilbehør
Hvitevarene og brunevarer medfølger ikke i handelen med mindre det tydelig fremgår av salgsoppgaven.
Fellesgjeld og lånebetingelser
Andel fellesgjeld
Gjeld kr 2 760 000,-
Ligningsverdi (formuesverdi)
Formuesverdi fastsettes av skatteetaten etter ferdigstillelse.
Nærområdet
EiendomsMegler 1 Nybygg
Annonseinformasjon
| FINN-kode | 333793775 |
|---|---|
| Sist endret | 20. jan. 2026 08:53 |
| Referanse | 492310545 |
Annonsene kan være mangelfulle i forhold til lovpålagt opplysningsplikt. Før bindende avtale inngås oppfordres interessenter til å innhente komplett informasjon fra meglerforetaket, selger eller utleier.

