Bildegalleri
Tintratunet - BB5 - Nyrefeltet
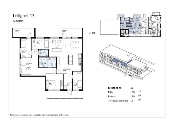
Tintratunet - Leilighet 13
Kort om prosjektet
Velkommen til Tintratunet! Lekre og moderne leiligheter med en attraktiv og sentral beliggenhet i vakre Nyrefeltet, sentralt på Voss. Fra Nyrefeltet er det kort gangavstand til Voss sentrum hvor man finner det meste av hverdagslige servicetilbud.
Prosjektets status
Planlegging
2022/2023
Salgsstart
Fra mars 2024
Byggestart
Q4 2024
Overtakelse
Antatt ferdig: Q2 2026
Nøkkelinfo
- Boligtype
- Leilighet
- Etasje
- 3
- Soverom
- 4
- Rom
- 6
- Primærrom
- 130 m²
- Bruksareal
- 130 m²
- Energimerking
- B
Fasiliteter
Visning
Ta kontakt for å avtale visning.Beskrivelse
Boligene vil være preget av gjennomgående høy standard.
Følgende innhold er delvis utdrag fra prosjektets leveransebeskrivelse. Hele leveransebeskrivelsen fra utbygger er tatt med i salgsoppgaven. Dersom det er motstridende informasjon mellom leveransebeskrivelsen og det som er omtalt her, eller i salgsoppgaven for øvrig, gjelder leveransebeskrivelsen foran.
Diverse:
- 1 stk egen sportsbod i parkeringskjeller eller annet sted i fellesområdet i bygningene.
- Kjellerbod, sportsbod og gangtilkomst (gang) etc. leveres med yttervegger i betong og inndeling i boder som tette vegger i treverk (synlig stenderverk) eller stålgitter. Dør i treverk eller stålgitter. Synlig betong/hulldekke i himling.
- 1 stk egen parkeringsplass i parkeringskjeller for leilighet nr. 1 til 13. Resterende leiligheter har rett til 1 stk utvendig overflate parkeringsplass. Overflatene i parkeringskjeller varierer, men er stort sett asfalt dekke og synlig ubehandlet betong/betong elementer på vegger og i tak.
- Balansert ventilasjonsanlegg.
- Felles anlegg/varmesentral for vannbåren varme og tappevann.
- Tekniske installasjoner blir plassert i himling i entre eller bad, i bod, i vaskerom og/eller synlig på bad. Dette bestemmes av prosjekterende. Unntak fra dette kan være sikringsskap/andre skap og tilkomst til utvendig spylekran, plassering av slik inspeksjonsluke blir direkte på innsiden av utvendig spylekran.
- Felles sprinklingsanlegg dersom brannprosjektering viser at det er behov for dette.
- Felles heis
- Boligen oppføres med vannboren varme, iht. krav i detaljreguleringsplanen for området.
Utvendig:
- Ferdig opparbeidet tomt med grus, jord og asfalt iht. utomhusplan. Sikret med nødvendige gjerder i henhold til gjeldende regelverk. Dersom overlevering skjer i en årstid som tillater det vil jord være isådd plenfrø (boligkjøper må regelmessig tilføre vatn i ettertid av overtakelse) og asfalt vil være lagt. Ved overlevering på vinter etc. overleveres kun jord og gruset utomhusområde. Når årstid tillater det vil utbygger asfaltere iht. utomhusplan. Men det vil derimot ikke bli isådd plenfrø i jord i etterkant av ferdigstillelse. Ferdigstillelse utomhusområde er derved avhengig av årstid.
- Bygget leveres med ferdigbehandlet kledning med synlige spikere, og evt. fasadeplater. Dette gjelder ikke evt. andre utvendige materialer som trappevanger, håndløpere etc., dersom slike produkt er synlig utvendig på bygget og blir levert i tre så kan de være ubehandlet.
- Alle vindu og dører i henhold til tegning og bestemt av utbygger.
- Ferdig lagt tak med snøsikring i henhold til gjeldende regelverk.
- Takrenner med takrennenedløp til drensrør lagt i grunnen.
- Terrasser leveres med overflategulv bestående av betong eller trelemmer, dette blir bestemt av utbygger ved sluttført detaljprosjektering.
Innvendig:
- Seksjonsskillevegger leveres med ferdig sparklet og hvitmalt betong/gips overflate.
- Generell malingsstandard innvendig er K2 standard.
- Etasjeskille utføres i betong/hulldekke.
- Kjøkken til en verdi i overkant av kr. 70.000,- inkl.mva. ferdig montert er inkludert.
- Hvitevarer bortsett fra ventilator er ikke inkludert.
- Tekniske skap ifm. sprinkler, vannboren varme, elektrisk osv. kan forekomme. Plassering av tekniske skap bestemmes av prosjekterende, og det kan forekomme kasser og påforinger for dette.
- Hvite slette lister med synlige spikerhull.
- Vannboren varme i gulv på bad og via konvektorer/radiatorer ellers i boligen i tråd med prosjektering og energi beregning.
- Dersom man ønsker mer gulvvarme i boligen kan det avtales i tilvalgsmøte dersom man er inne i prosjektet tidsnok.
Det vil være anledning til å gjennomføre en rekke endringer og tilvalg. Du kan få din bolig skreddersydd til dine ønsker og behov. Ta kontakt med megler for mer informasjon knytt til tilvalgsmuligheter og eventuelle endringer.
For mer informasjon knytt til hva som inngår i leveransen, vises det til vedlagt leveransebeskrivelse for prosjektet.
Oppvarming
Balansert ventilasjonsanlegg. Felles anlegg/varmesentral for vannbåren varme og tappevann. Vannboren varme i gulv på bad og via konvektorer/radiatorer ellers i boligen i tråd med prosjektering
Parkering
1 stk egen parkeringsplass i parkeringskjeller for leilighet nr. 1 til og med leil. 13.
Resterende leiligheter har rett til 1 stk. utvendig overflate parkeringsplass. Overflatene i parkeringskjeller varierer, men er stort sett asfalt dekke og synlig ubehandlet betong/betong elementer på vegger og i tak.
Nærområdet
Man finner det meste av hverdagslige servicetilbud i tilknytning til Voss sentrum, butikker, lege, politi, brannvesen, apotek, bibliotek, kulturhus, kommunesenter, barnehager, for å nevne noe.
Ellers ligger Voss sjukehus ca. 1,5 km i nordvestlig retning forbi sentrum. Ny gangbro over elva Vosso vil flettes sammen med eksisterende gangveisystem på vestsiden av elven, samt gangveisystemet ved Gjernesvegen. Det er lagt inn 7 nye nærleikeplasser i feltet, og det er opparbeidet ballplass i bakkant av eksisterende byggefelt. På Voss finner du et bredt spekter av
aktivitetstilbud. man kommer tett på naturen med nærhet til fjell med alpinanlegg og flotte turstier som bare er en kort kjøretur unna. I nærområdet finner du også blant anna golfbane, fjellklatring, rafting og vindtunnel. Det skjer noe på Voss heile året. Festivaler og arrangement retta mot barn, voksne og ungdom er det mange av.
Nærområdet
Annonsene kan være mangelfulle i forhold til lovpålagt opplysningsplikt. Før bindende avtale inngås oppfordres interessenter til å innhente komplett informasjon fra meglerforetaket, selger eller utleier.








