Bildegalleri
Kongens gate 2 A601
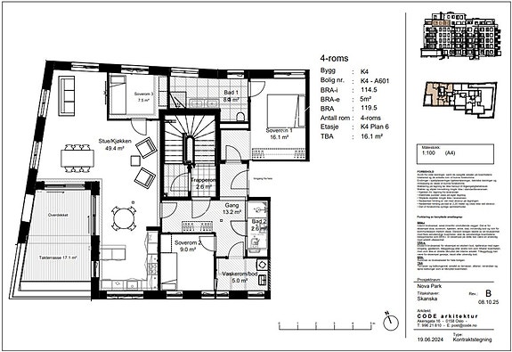
Nova Park
Selveierleilighet Kongens gate 2
Prosjektets status
Planlegging
-Omgående
Salgsstart
-Høst 2023
Byggestart
-Q4 2023
Overtakelse
-Q2 2026
Nøkkelinfo
- Boligtype
- Leilighet
- Etasje
- 6
- Soverom
- 2
- Rom
- 3
- Internt bruksareal
- 114 m² (BRA-i)
- Bruksareal
- 119 m²
- Eksternt bruksareal
- 5 m² (BRA-e)
- Balkong/Terrasse
- 16 m² (TBA)
Visning
Beskrivelse
Kampanje
Kjøper du bolig i Nova Park nå, så får de tre første kjøperne med et sentrumskort (gavekort) på hele kr. 100 000,-.
En perfekt start i nytt hjem, og et solid bidrag til møblering, interiør eller andre nødvendigheter.
Vilkår:
Gjelder de tre første kjøpere.
Gavekortet utstedes som sentrumskort i Kongsberg.
Kampanjen varer gjelder de første tre leilighetskjøpene i prosjektet, eller til og med 31.12.2025.
Kampanjen omfatter byggetrinn 1 og byggetrinn 2.
Avklaring av kampanjen skjer ved budgivning og kontraktsinngåelse.
Privatmegleren forbeholder seg retten til å endre eller avslutte kampanjen uten forvarsel.
Oppdragsansvarlig
Liavaag Eiendom AS / Morten Liavaag
Selger/Utbygger
Skanska bolig as
Betegnelse
Gnr. 7906 Bnr. 1 i Kongsberg kommune
Salget har startet
Sjekk ut ledige leiligheter og kontakt gjerne megler for gode råd eller visning.
For ytterligere informasjon, boligvelger, etc. besøk prosjektets hjemmeside: www.novapark.no
Prosjektet har åpent visningssenter i Nymoens Torg 20 i Kongsberg sentrum, kontakt megler for avtale om tidspunkt.
Presentasjon Nova Park
I Nova Park bor du i hjertet av Kongsberg, omgitt av det beste en av Norges mest allsidige byer har å by på. Her får Sølvbyen et boligtilbud som er nytt i alle betydninger, hvor begrepet «grønne omgivelser» er tatt til et helt annet nivå. Code arkitektur, kjent for sine moderne og nyskapende bygg, har skapt et boligkonsept hvor planter blir en del av fasaden. De aller fleste leilighetene får sin egen, store plantekasse, hvor de som bor der kan dyrke planter og vekster etter egne ønsker. Slik formes en levende, spennende og dynamisk fasade, ulikt alt annet. De frodige utearealene vil stå i stil, hvor gangstiene blir omkretset av busker, stauder og trær tilpasset klimaet.
Det allsidige eksteriøret reflekteres i leilighetsmiksen. Boligene blir fra 33 til 128 kvm, et spenn som gjør at alle kan finne et hjem som passer. Det blir totalt 80 leiligheter, hvor det i første byggetrinn blir 37. I tillegg til et nytt hjem i et spennende bygg får du også ta del i et rikt miljø - alle innganger er fra et felles gårdsrom, hvor en prat med naboen blir en naturlig del av dagen før du går inn til deg selv. Det blir også et felles sykkelverksted/smørebu, og grendehus/møtelokale for sosiale treff. Enten sammen med naboene, eller om du vil reservere det til egne sosiale treff.
Å skulle ramse opp avstanden til byens ulike tilbud vil bli en teknisk øvelse, det holder å si at avstanden til det aller meste byen kan by på måles i minutter eller antall skritt.
Barnehager, skole, butikker, treningssentre, offentlige tilbud, tog- og busstasjon - alt ligger like i nærheten. Kongsberg er liten nok til å slippe unna de sosiale problemene en storby kan ha, men samtidig store nok til å rikelig med fritids- og kulturtilbud. Idrett, skisenter, kor, musikk, utsilinger og konserter, byen kan tilby det meste.
Budgivning
Boligene selges til fastpris.
Alle bud/kjøpetilbud på eiendommen skal være skriftlig og sendes meglerforetaket pr. mail, sms eller via vår "gi bud"-knapp på våre nettsider. Knappen finner du også på Privatmeglerens hjemmeside for prosjektet, se på den enkelte bolig.
Nærmere info om budgiving finner du på egen side sammen med kjøpetilbud/budskjema.
Som budgiver hos Privatmegleren kan du kreve budjournal fremlagt så snart handel er gjennomført.
Innhold i budjournal er lovregulert, og innebærer at budgivere må akseptere at opplysninger om budet kan bli fremlagt for selger, kjøper og øvrige budgivere. Budgiver som ikke blir kjøper, kan kreve kopi av anonymisert budjournal.
Parkering
Det vil være mulighet for kjøp av garasjeplass i felles garasjeanlegg. Det vil opparbeides 31 parkeringsplass for trinn 1 i egen garasjekjeller. Alle plasser er tilrettelagt for installasjon av ladeboks for el-bil. Ladeboksen kjøpes av den enkelte kunde, og det må tegnes individuelt abonnement med leverandør av ladeboksen.
Kjøper kan bli belastet dokumentavgift ved overskjøting av garasjeplassen, oppad begrenset til 2,5% av andel tomteverdi.
Verdi ved skattefastsetting
Verdien ved skattefastsetting er p.t. ikke fastsatt. Verdien ved skattefastsetting fastsettes av Ligningskontoret etter beregningsmodell som tar hensyn til om boligen er en såkalt "primærbolig" (der boligeieren er folkeregistrert bosatt) eller "sekundærbolig" (alle boliger man eier, men ikke bor fast i). Interessenter oppfordres til å sjekke www.skatteetaten.no eller kontakte ansvarlig megler for nærmere informasjon om verdien ved skattefastsetting.
Beskrivelse av sameiet
En sameier eier en andel i eiendommen, med tilknyttet enerett til bruk av sin bruksenhet, jf. eierseksjonsloven § 25.
Ingen kan erverve mer enn to boligseksjoner i et sameie, jf. eierseksjonsloven § 23 første ledd. Dersom et erverv har funnet sted i strid med eierseksjonslovens regler kan Kartverket nekte overskjøting.
Dersom overskjøting blir nektet, er kjøper likevel forpliktet til å gjennomføre handelen med selger, og oppgjør til selger vil finne sted tross manglende overskjøting.
Interessenter oppfordres til å sette seg inn i utkast til vedtekter og budsjett som ligger vedlagt i salgsoppgaven.
Andre faste løpende kostnader
Estimerte fellesutgifter utgjør ca. 28 kr per kvm BRA per mnd. Videre estimeres grunnpakke tv/bredbånd ca. kr 419,- per mnd. per. seksjon. Felleskostnadene innbefatter, bygningsforsikring, strøm og oppvarming i fellesarealer, adgangskontroll, normale drifts- og vedlikeholds utgifter, vaktmester, trappevask, honorarer til styret, forretningsfører og revisor.
Det understrekes at dette er stipulerte anslag. Størrelsen påvirkes av hvilket servicenivå sameiet beslutter. Det bemerkes at Kongsberg Kommune fakturerer kommunale avgifter (vann/avløp og renovasjon) separat til hver og en seksjonseier og kommer i tillegg til stipulerte fellesutgifter.
De som kjøper garasjeplass vil få driftsutgifter (ca. kr 200,-/mnd. pr plass) i tillegg. Kjøper tegner eget strømabonnement. Skanska Eiendomsutvikling AS vil stå ansvarlig for fellesutgifter for ferdigstilte usolgte leiligheter.
Kongsberg kommune praktiserer eiendomsskatt p.t., for ytterligere informasjon besøk kommunens opplysningsside i vedlagt link: https://www.kongsberg.kommune.no/blokk/ce60a97a72bf-4412-bd47-3aecff860d7f
Finansiering
Kontakt megler for avklaring av finansielle forhold, herunder lån til kjøp av eiendom. Privatmegleren har avtale med Nordea om formidling av lån og andre finansielle tjenester. Privatmegleren mottar godtgjørelse for dette.
Sikkerhetsstillelse
Alle eiendomsmeglingsforetak har lovpålagt forsikring av klientmidler begrenset oppad til kr 45 mill. Enkeltsaker er forsikret inntil kr 15 mill. Dersom kjøpers låneinstitusjon krever tilleggsforsikring ved omsetning over 15 millioner, må kjøper selv eller dennes låneinstitusjon dekke utgiftene forbundet med dette.
Solgt ihht bustadoppføringsloven
Boligene selges i henhold til Bustadoppføringslova som regulerer kjøpers (forbrukers) rettigheter og plikter ved avtale om oppføring av bolig og kjøp av fast eiendom der bygningen ikke er fullført når avtalen inngås. Ved salg til aksjeselskap legges Avhendingslovens bestemmelser til grunn. For øvrig gjelder Lov om eierseksjoner for eierseksjonssameiet og driften av dette.
Garantier
Det stilles garantier i henhold til Bustadoppføringslovas bestemmelser. Garanti etter § 12 vil bli stilt i forbindelse med avtaleinngåelse. Garantien skal være pålydende 3% av kjøpesummen i byggetiden og 5% i 5 år etter overlevering av boligene til kjøper. Garanti etter § 47 forutsettes stilt om selger ønsker utbetalt forskudd/delinnbetaling/sluttoppgjør før hjemmelsovergang. Eventuelle påkrevde endringer av garantier ved eventuelle videresalg/transporter utføres ikke og bekostes ikke av selger.
Forsikring
Frem til overtagelse vil eiendommen være forsikret av selger. Etter overtagelse vil eiendommen forsikres gjennom sameiets fellesforsikring. Kjøper må selv besørge innboforsikring og forsikring av eventuelle særskilte påkostninger.
Lov om hvitvasking
Megler er underlagt lov om hvitvasking som innebærer plikt til å melde ifra til Økokrim om mistenkelige transaksjoner
Nyttige lenker
Nærområdet

PrivatMegleren Drammen
Skanska bolig as
Utbygger
Annonseinformasjon
| FINN-kode | 319797643 |
|---|---|
| Sist endret | 04. des. 2025 09:57 |
| Referanse | 83230297 |
Annonsene kan være mangelfulle i forhold til lovpålagt opplysningsplikt. Før bindende avtale inngås oppfordres interessenter til å innhente komplett informasjon fra meglerforetaket, selger eller utleier.