Bildegalleri
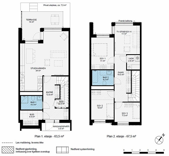
Plantegning rekkehusleilighet 1026
Nansenløkka K4 - Salgstrinn 2
Andelsleilighet: Nansenløkka Kvartal 4, salgstrinn 2, leil 1026
Prosjektets status
Planlegging
Gjennomført
Salgsstart
Gjennomført
Byggestart
Gjennomført
Overtakelse
-1-2 Kvartal 2026
Nøkkelinfo
- Boligtype
- Leilighet
- Etasje
- 1
- Soverom
- 4
- Rom
- 5
- Internt bruksareal
- 131 m² (BRA-i)
- Bruksareal
- 0 m²
Visning
Beskrivelse
Prisinformasjon
Ordinærpris
Totalpris: 15 238 380,-
Innskudd: 11 900 000,-
Fellesgjeld: 3 200 000,-
Omkostninger: 138 380,-
Fellesutgifter år 1-5: 16 762,-
Fellesutgifter etter år 6: 19 653,-
Adresse
Nansenløkka 19 - Nansenløkka kvartal 4 BRL, Salgstrinn 2, leilighet 1026
1364
Fornebu
Om prosjektet
Langs Forneburingen, midt mellom idylliske Nansenparken og Fornebu S, skal vi skape et helt spesielt bomiljø. Vi skal bygge Nansenløkka, et unikt boligprosjekt i overgangen mellom det urbane og det landlige. Her skal det være enkelt å slå rot og få venner for livet. Et sted å høre til.
Nansenløkka vil bestå av 600 boliger fordelt på seks kvartaler. Kvartal 4 ligger mellom Forneburingen og felleshagen, og vil bestå av ett sammenhengende bygg som omkranser et felles gårdsrom.
Andre salgstrinn vil bestå av 25 leiligheter og 8 rekkehusleiligheter. Leilighetene er fra 2-roms på 41,5m2 til 5-roms på 120,5m2. I tillegg er det 8 rekkehusleiligheter over to etasjer, hvor 4 av disse i tillegg har en flott takterrasse i 5. etg.
Alle leilighetene har egen balkong, og noen av leilighetene har markterrasser eller private takterrasser. I tillegg vil alle leilighetene ha tilgang til felles takterrasser med flotte solforhold.
Nansenløkka Kvartal 4 vil bli organisert som et borettslag. Dette er en fordel for deg om du skal bebo leiligheten selv.
Om området
Livet består av flest hverdager. På Fornebu kan du få en hverdag der et morgenbad før jobb er like naturlig som å treffe gode venner over en matbit når du kommer hjem igjen. Du har park og turstier rett utenfor døren, og samtidig kort vei til byliv med butikker, kafeer og levende møteplasser. Du blir en del av et urbant, framtidsrettet og bærekraftig nabolag i stadig utvikling. Strekningen fra Nansenparken og ned til populære Sjøflyhavna kro blir bundet sammen av butikker, serveringssteder, lekeplasser og hyggelig steder å slå seg ned. Området rundt kjøpesenteret Fornebu S skal bli et levende byrom med restauranter, kafeer og servicetilbudene du trenger i det daglige. Her kommer også T-banens endestasjon.
Fornebu S, verdens mest miljøvennlige kjøpesenter, er stort og moderne med hele 80 butikker og konsepter. Her finnes du velkjente kjedeaktører, unike motekonsepter, stor dagligvarebutikk, restauranter og servicetilbud. I dagligvaren får du for eksempel kjøpt honning fra biene som holder til på taket av senteret. Det blir ikke mer kortreist enn dette.
Med Nansenparken like i nærheten, har du kort vei til gang- og sykkelstier, vannkanal, en vakker dam, lekeplasser og treningsapparater - perfekt for deg som ønsker å bruke nærmiljøet til rekreasjon, trening og ulike aktiviteter. En rusle- eller sykkeltur unna ligger sandstranden på Storøyodden, med EUs høyeste sertifisering for rent vann. Her finner du også dusj, utegriller samt bordtennis- og sandvolleyballbaner. Svømmehall og tennisbaner finnes i nærområdet. Snarøya Sportsklubb legger til rette for en aktiv hverdag med tilbud innen fotball, håndball og bandy. Punkt er en møteplass for nabolaget med serveringssteder, butikker og pop-up-konsepter. Her finner du serveringstilbud, frukt og grønt, yoga- og dansestudio.
På Fornebu får du mye mer enn bare en leilighet. Du får sju kilometer strandlinje, to naturreservater, kyststi og park. Nansenparken tar opp i seg historien, med flere bevarte elementer fra tiden da Fornebu var flyplass. Friområdene på Fornebu er på til sammen 300.000 kvadratmeter, og gir uendelige muligheter for tur, trening eller avkobling.
Slik blir boligene
Nansenløkka består av seks ulike kvartaler omkring en felles hage. Kvartalene vil være av ulike boformer, fra leiligheter i kvartalsbebyggelse til rekkehus, rekkehusleiligheter og punkthus. Byggene løses gradvis opp i møte med Nansenparken. Kvartal 4 ligger mellom felleshagen og Forneburingen.
Hovedkonseptet er å skape en boligbebyggelse med urban karakter, med urbane kvaliteter og legge til rette for gode boliger med frodige og attraktive utearealer. Kvartalet deles opp i bygårder med ulik farge, høyde og detaljering for å sikre variasjon, mangfold og en skiftende opplevelse av bygget. Det vil være ulike høyder på husene, noe som gir lys og sikt for mange.
Miljøvennlige materialer
Det er lagt vekt på bruk av materialer med lang levetid og gode egenskaper. Ulike typer balkongløsninger gir også en spennende fasade. Vi har jobbet for å oppnå en bebyggelse som danner en rolig bakgrunn i byen, samtidig som det arkitektoniske uttrykket gir interessante rom å bevege seg i. Leiligheter i ulike størrelser sikrer et variert og stabilt bomiljø. Leilighetene har kvaliteter som gjør at du kan bo her over lang tid, men gjør det også mulig å flytte internt om behovene skulle endre seg. En stor andel av leilighetene er enten gjennomgående eller hjørneleiligheter, som gir god tilgang på dagslys.
Fellesarealer
Det har vært jobbet mye med fellesskapsløsninger på Nansenløkka. I kvartal 4 er det etablert et fellesrom som kan benyttes til kjøkken og selskapslokale. Dette er et fleksibelt rom som fremtidige beboere kan fylle med innhold. I tillegg er det to gjestehybler i nabo kvartalet som kan lånes til
overnattingsbesøk. Sosial bærekraft handler om å gi en følelse av tilhørighet, trygghet og identitet. Men det handler også om folkehelse og sunn livsstil. Gode møteplasser er viktig for mennesker som skal bo sammen. Vi har etablert en struktur med varierte og hyggelige gaterom, som legger til rette for aktivitet og lek tilpasset forskjellige aldersgrupper. Fra urbanstrøket og felleshagen i den ene enden, til de skjermede gårdsrommene i den andre. Alt for å skape samhold, gode samtaler og variert bruk. Planområdet vil i hovedsak være bilfritt, noe som skaper trygge rammer for både store og små.
Parkering
Det etableres et garasjeanlegg under bebyggelsen til benyttelse av beboere i Kvartal 4-6. Innkjøringen blir under den nordøstlige delen av Kvartal 4.
Leiligheter selges uten parkering. De større leiligheten kan kjøpe parkeringsplass i garasjeanlegget.
Parkeringsplassene selges på egne kontrakter og koster kr. 700.000,-. Parkeringsplassene skal fullfinansieres av kjøper, det vil si at det ikke er mulighet for å ha fellesgjeld på disse. Stipulerte driftskostnader for parkeringsplassene er kr. 175,- pr mnd.
Ta kontakt med prosjektselger for informasjon om hvilke leiligheter som kan kjøpe parkeringsplass.
Kvalitet, standard og tilvalg
Det er viktig for oss at du som skal bo på Nansenløkka skal føle deg hjemme. Uansett om du er førstegangskjøper, et par, en barnefamilie eller godt voksen. Derfor har interiørarkitekter fra Metropolis satt sammen tre ulike interiørkonsepter basert på våre standard- og tilvalgsprodukter. Disse tre er ment som inspirasjon og veiledning.
«Morgendis» er standardkonseptet, men enkelte boliger har konseptet «Skumring» eller «Sønnavind», som er satt sammen av tilvalgsprodukter. Leiligheten din vil uansett inneholde følgende:
Kjøkken fra HTH med integrerte hvitevarer
Store vinduer, som gir godt med lys
Privat uteplass
60x60 flis både i entre og på bad
Regndusj og moderne armaturer
Startpakke på smarthus
Enstavs eikeparkett
Ta gjerne turen innom vårt nye og flotte visningssenter på Fornebu. Her vil du finne alt av produkter til kjøkken og bad, fliser og parkett.
Kjøkken:
Innredning fra HTH, modell Stockholm matt melamin 16 mm. Skuffer og skap leveres med demping. Benkeplaten vil være i 20 mm laminat, med lys spettet overflate, med underlimt vask/kum i stål. Armatur er fra Tapwell eller tilsvarende, ettgreps med uttrekk i krom.
Kjøkken leveres med integrerte hvitevarer fra Siemens eller tilsvarende. Kjøkkenavtrekk vil være en Slimline kjøkkenhette med forkant i stål fra Røroshetta med integrert komfyrvakt eller tilsvarende over koketopp. Denne skal kunne kobles til system for balansert ventilasjon. I leiligheter der koketopp er levert på kjøkkenøy, leveres det integrert benkeventilator med kullfilter.
Baderom:
Badene leveres som prefabrikkerte våtromsmoduler (badekabin). Enkelte bad kan bli plassbygd. Badene leveres med fliser i størrelse ca. 60x60 cm på vegg og gulv. Farge på flis kan avvike fra illustrasjoner. Baderomsinnredning leveres med skuffer, med helstøpt servant. Ettgreps blandebatteri av typen Tapwell ARM071 krom eller lignende. På bad med heldekkende benkeplate leveres det rektangulært speil med LED lys striper. Der hvor det kun leveres servantskap vil speil ha lik bredde som servantskap. Det leveres i hovedsak rette innadslående dusjvegger i klart herdet glass av typen INR Angel eller tilsvarende. Regndusj leveres montert på vegg, av typen Tapwell EVO TVM7200 eller tilsvarene. Line sluk eller tilsvarene. Det leveres vegghengt toalett i hvitt porselen med to-trinns vannspyling og innebygd sisterne.
Diverse:
Generell takhøyde er ca. 2,60 m. Det blir nedforet himling på bad og i entré, i tillegg vil det bli lokale nedforinger/innkassinger
Terrasser, balkonger og takterrasser leveres med tremmegulv i impregnert treverk.
Boligene etableres med moderne fibernett tilsluttet OBOS OpenNet.
Tilvalgsmulighet:
Det er ikke lenger mulighet for å gjøre tilvalg.
Oppvarming
Oppvarming er basert på fjernvarme. Det leveres vannbåren gulvvarme i stue, kjøkken, soverom og entré/gang. Det blir termostatstyrt gulvvarme på baderom (vannbåren eller elektrisk, avhengig av myndighetskrav).
Innflytting
Selger tar sikte på å ferdigstille boligene 1. eller 2. kvartal 2026, men dette tidspunkt er foreløpig, ikke bindende og det utløser ikke krav på dagmulkt.
Fellesgjeld/lånevilkår
Fellesgjelden i dette prosjektet er et annuitetslån over 40 år med 5 års avdragsfrihet. Dette lånet løper med flytende rente som i dag har rentesats 4,89%. Boligens felleskostnader er derfor beregnet med driftskostnader og rentekostnader på fellesgjelden etter denne satsen. Når fellesgjelden nedbetales fra år 6 må felleskostnadene forventes å øke. Prislisten for prosjektet viser hva dette er beregnet til (kontakt prosjektselger for fullstendig prisliste). For øvrig må endringer i den flytende rentesatsen forventes å medføre endringer i felleskostnadene.
Et annuitetslån er et lån som nedbetales med like store terminbeløp, helt til lånet er innfridd. I begynnelsen er derfor avdragsdelen liten, mens rentedelen er stor. Etter hvert som lånet reduseres stiger avdragsandelen og renteandelen blir mindre.
Det er mulig å innfri fellesgjelden helt eller delvis, gjennom OBOS IN-ordning.
Nærområdet

OBOS Fornebulandet AS
Nansenløkka Utvikling K3-K6 AS
Utbygger
Annonseinformasjon
| FINN-kode | 315636761 |
|---|---|
| Sist endret | 14. feb. 2026 03:20 |
| Referanse | 835230078 |
Annonsene kan være mangelfulle i forhold til lovpålagt opplysningsplikt. Før bindende avtale inngås oppfordres interessenter til å innhente komplett informasjon fra meglerforetaket, selger eller utleier.