Bildegalleri

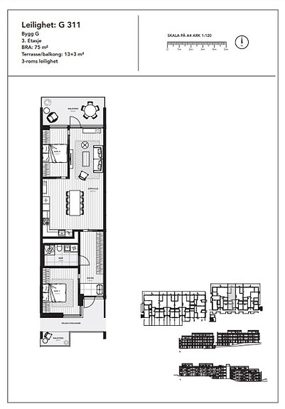
Plantegning leil 311
Kragerø Resort Fri
Hytte Kragerø Resort Fri
Prosjektets status
Planlegging
Detaljregulering pågår
Salgsstart
Mai 2023
Byggestart
Planlagt 2024
Overtakelse
Forventes 18-20 måneder etter byggestart
Nøkkelinfo
- Boligtype
- Andre
- Soverom
- 2
- Rom
- 3
- Primærrom
- 75 m²
- Bruksareal
- 75 m²
Visning
Beskrivelse
Oppdragsansvarlig
Liavaag Eiendom AS / Morten Liavaag
Selger/Utbygger
Kragerø Resort Eiendom 2 AS
Betegnelse
Gnr. 11 Bnr. 315 i Kragerø kommune
Presentasjon Kragerø Resort Fri
Kragerø Resort Fri er essensen av frihet og feriefølelse. Skreddersydde fritidsleiligheter tegnet av de prisvinnende arkitektene Lundhagem, med majestetisk beliggenhet, storslagen utsikt og sol til langt på kveld. Nyt den vakre skjærgården i panorama fra din egen terrasse, eller benytt fasilitetene på Kragerø Resort - et opplevelseshotell av de sjeldne. Med fritidsbolig på Kragerø Resort Fri er du sikret en fritid du kan nyte fullt ut.
Velkommen til et velfortjent friminutt fra hverdagen.
Ditt nye feriested
Gled deg til varme sommermorgener med en dupp i sjøen eller bassenget, før du nyter kaffe med fjordutsikt på egen terrasse. Etter frokost venter greenen, om du ikke heller vil ta golfbilen ned til nyrenoverte Beach Club Kragerø for et par timer på solsengene der.
I tillegg til å være et av landets beste velvære- og opplevelseshotell, er Kragerø Resort et landemerke med en unik posisjon i Kragerø. Med sitt rike tilbud av aktiviteter, opplevelser og fokus på mat og drikke er Kragerø Resort en destinasjon for kvalitetsbevisste reisende, som forventer det beste og som tiltrekkes av helhetlige opplevelser. Hotellet har syv ganger fått utmerkelsen «Norway's best Golf Hotel», og golfbanen ble i 2020 kåret til landets beste av «World Golf Awards».
På Kragerø Resort vil du få tilgang til et rikt aktivitetstilbud med blant annet golf, treningsrom, basseng, spa, tennis, padel, minigolf og kajakkpadling. Det ligger også en rekke sykkel- og turstier rett i nærheten, for ikke å snakke om den kjente skjærgården i Kragerø og alt den har å by på.
Beliggenhet
Kragerø sentrum ligger kun 15 minutter unna Kragerø Resort Fri med ferje eller egen båt og er en sjarmerende skjærgårdsperle med yrende folkeliv om sommeren. Her finner du et bredt utvalg butikker, kafeer og restauranter i de mange koselige smugene omkranset av klassiske, hvite trehus.
Fra Oslo tar turen 2,5 timer. Det gjør at du kan kjøre til fritidsboligen etter jobb på fredag og fortsatt ha god tid til å nyte sommerkvelden etter du har ankommet. Avstanden er fin hvis du ønsker en fritidsbolig du skal bruke ofte og
gjerne hver helg i tillegg til ferier. For der Kragerø by er et sommerparadis er Kragerø Resort et helårsparadis. Golfesesongen starter ofte allerede i april og varer til november. Kragerø Resort har fantastisk spa-avdeling og andre
helårsaktiviteter som gjør fritidsleiligheten i Kragerø Resort Fri til et sted for ferie, fri og fjordutsikt året rundt.
Kragerø Resort Club
Som medlem i Kragerø Resort Club følger det med en rekke fordeler og goder som gjør din fritid i Kragerø enda litt bedre. I medlemsfordelene* inngår blant annet fri inngang til Kragerø Resort Spa og rabatter på behandlinger. I tillegg kan du nyte godt av fordelaktige priser i både restauranten, proshopen og til diverse aktiviteter som minigolf og fotballgolf.
Gratis medlemskap første sesong Ved kjøp av leilighet på Kragerø Resort Fri følger det automatisk med gratis medlemskap første sesong i Kragerø Resort Club fra overtagelse av leiligheten. Medlemskapet kan forlenges etter gjeldende priser.
*Fullstendig oversikt over medlemsfordeler og vilkår fås ved overtagelse og mottagelse av medlemskort.
Fritid er til for å nytes
Norges beste golfopplevelse
Som eier av leilighet på Kragerø Resort Fri har du unik nærhet til en av Norges aller beste 18-hulls golfbaner.
Spa & behandlinger
Velkommen til en verden av vann, varme og velvære. Nyt utendørs eller innendørs jacuzzi, avspennende caldarium, steambad, aufguss, maskeritualer i caldarium, kaldkulp og badstue på Kragerø Resort. Her kan du også få deg en
klassisk massasje, skrubb, ansiktsbehandlinger, romantiske kurbad og syrepeel.
Båt- & badeliv
I Kragerø kan du bade nesten overalt - på øyer, holmer, strender og skjær. I umiddelbar nærhet til resorten finner du badeplasser og brygger, og saltvannsbasseng på Beach Club Kragerø. I byen kan du besøke Gunnarsholmen med sandstrand og saltvannsbasseng. Det er også mulig å kjøpe egen båtplass slik at du kan dra ut på oppdagelsesferd til Kragerøs 495 øyer, holmer og skjær.
Tennis & padel
På Kragerø Resort finnes to utebaner av høy kvalitet til tennis, samt en helt ny utendørs padelbane! Her kan du ta med familie, venner eller kjente for et aktivt og spennende avbrekk.
Beach Club Kragerø
I vannkanten, rett nedenfor Kragerø Resort, finner du nyrenoverte og populære Beach Club Kragerø. Her kan du tilbringe solfylte sommerdager på en av stedets deilige solsenger eller daybeds, og nyte smakfulle retter og drikker i stemningsfulle omgivelser. Gled deg til de mange konsertene og musikalske begivenhetene som arrangeres her i løpet av sommermånedene, men vær tidlig ute med å sikre deg billetter for her blir det rift om plassene. Beach Club Kragerø er også det perfekte stedet å ta med barna når late sommerdager trengs og krydres med litt fart og spenning. Her finnes nemlig egen badeplass med stupetårn, klatrevegg og saltvannsbasseng, samt diverse aktivitetstilbud
som strandvolleyball, kajakkutleie, bordtennis, isbar og lekeplass.
Finansiering
Kontakt megler for avklaring av finansielle forhold, herunder lån til kjøp av eiendom. Privatmegleren har avtale med Nordea om formidling av lån og andre finansielle tjenester. Privatmegleren mottar godtgjørelse for dette.
Sikkerhetsstillelse
Alle eiendomsmeglingsforetak har lovpålagt forsikring av klientmidler begrenset oppad til kr 45 mill. Enkeltsaker er forsikret inntil kr 15 mill. Dersom kjøpers låneinstitusjon krever tilleggsforsikring ved omsetning over 15 millioner, må kjøper selv eller dennes låneinstitusjon dekke utgiftene forbundet med dette.
Solgt ihht bustadoppføringsloven
Boligene selges i henhold til Bustadoppføringslova som regulerer kjøpers (forbrukers) rettigheter og plikter ved avtale om oppføring av bolig og kjøp av fast eiendom der bygningen ikke er fullført når avtalen inngås. Ved salg til aksjeselskap legges Avhendingslovens bestemmelser til grunn. For øvrig gjelder Lov om eierseksjoner for eierseksjonssameiet og driften av dette.
Garantier
Det stilles garantier i henhold til Bustadoppføringslovas bestemmelser. Garanti etter § 12 vil bli stilt i forbindelse med avtaleinngåelse. Garantien skal være pålydende 3% av kjøpesummen i byggetiden og 5% i 5 år etter overlevering av boligene til kjøper. Garanti etter § 47 forutsettes stilt om selger ønsker utbetalt forskudd/delinnbetaling/sluttoppgjør før hjemmelsovergang. Eventuelle påkrevde endringer av garantier ved eventuelle videresalg/transporter utføres ikke og bekostes ikke av selger.
Forsikring
Frem til overtagelse vil eiendommen være forsikret av selger. Etter overtagelse vil eiendommen forsikres gjennom sameiets fellesforsikring. Kjøper må selv besørge innboforsikring og forsikring av eventuelle særskilte påkostninger.
Lov om hvitvasking
Megler er underlagt lov om hvitvasking som innebærer plikt til å melde ifra til Økokrim om mistenkelige transaksjoner
Nyttige lenker
Nærområdet

PrivatMegleren Drammen
Annonseinformasjon
| FINN-kode | 304757566 |
|---|---|
| Sist endret | 25. mars 2024 12:22 |
| Referanse | 83230180 |
Annonsene kan være mangelfulle i forhold til lovpålagt opplysningsplikt. Før bindende avtale inngås oppfordres interessenter til å innhente komplett informasjon fra meglerforetaket, selger eller utleier.
