Bildegalleri

01Fasade_1.jpg

Skudeløken trinn 1

SKUDELØKEN - Den nye bydelen på Førde sentrum si solside! Finn leilegheita di og få vere med heilt frå starten.

Prisantydning11 800 000 kr
Totalpris
11 807 202 kr
Omkostninger
7 202 kr
Felleskost/mnd.
5 983 kr
  • Planlegging

    Planlegging

  • Salgsstart

    Salgsstart

  • Byggestart

    Byggestart

  • Overtakelse

    Overtakelse

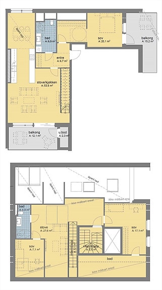
Nøkkelinfo

Boligtype
Leilighet
Etasje
4
Soverom
3
Rom
5
Internt bruksareal
156 m² (BRA-i)
Bruksareal
163 m²
Eksternt bruksareal
7 m² (BRA-e)
Balkong/Terrasse
28 m² (TBA)

Les mer om bruksareal her

Fasiliteter

Balkong/Terrasse
Bredbåndstilknytning
Garasje/P-plass
Heis

Visning

Ta kontakt for å avtale visning.Visningspåmelding

Beskrivelse

Ansvarlig megler

Tordis Russøy

Nærområdet

Annonseinformasjon

FINN-kode296882127
Sist endret20. des. 2025 09:49
Referanse2000240065

Rapporter annonse

Annonsene kan være mangelfulle i forhold til lovpålagt opplysningsplikt. Før bindende avtale inngås oppfordres interessenter til å innhente komplett informasjon fra meglerforetaket, selger eller utleier.