Bildegalleri

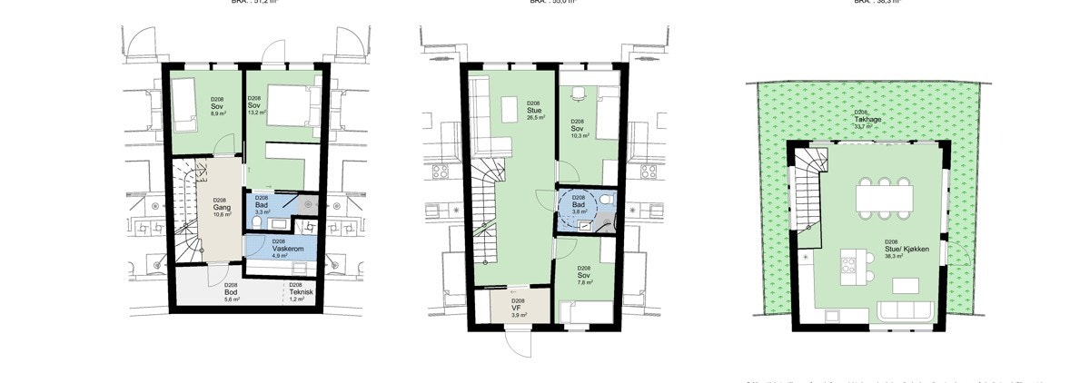
Plantegning - D 208
Heggedal Terrasse | Rekkehus på tre plan fra 113 kvm til 136 kvm. Garasjeplass. 90% solgt. Visning!
Heggedal Terrasse - Townhouse
Nøkkelinfo
- Boligtype
- Rekkehus
- Etasje
- 3
- Soverom
- 4
- Rom
- 6
- Primærrom
- 136 m²
- Internt bruksareal
- 0 m² (BRA-i)
- Bruksareal
- 144 m²
Visning
Beskrivelse
Eiendom
Harry Sønsterøds vei 34 - Townhouse D208, 1389 Heggedal, Etasje: 3
Matrikkel
Gnr. 79 Bnr. 87 Snr. 58 i Asker kommune
Boligtype
Rekkehus
Eierform
Eierseksjon
Ferdigstillelse
Ferdigstillelse
Areal
Primærrom: 136,80 kvm, Bruksareal: 144,50 kvm
Vedlagte plantegninger er ikke målbare. Arealene er hentet fra tilstandsrapport. Areal og rom er angitt og definert etter dagens faktiske bruk, uavhengig av hva som er godkjent fra bygningsmyndighetene.
Antall soverom
4
Priser fra - til
Priser fra 8 690 000 - til
Totalpris inkl. omkostninger
kr 8 690 000,- (Fastpris)
Omkostninger:
kr 200,- (Pantattest kjøper)
kr 585,- (Tingl.gebyr pantedokument)
kr 585,- (Tingl.gebyr skjøte)
kr 23 520,- (Dokumentavgift (avgiftsgrunnlag: 941 429,41,-))
--------------------------------------------------------
kr 24 890,- (Omkostninger totalt ved prisantydning)
--------------------------------------------------------
kr 8 714 890,- (Totalpris inkl omkostninger)
Fellesutgifter
Kr.4 664,- pr..
Tomt
Eiet tomt, kvm
Primærrom
Primærrom: 136,8 kvm
Følgende rom er inkludert i P-rom:
Bruksareal
Bruksareal: 144,5 kvm
Formuesverdi
Formuesverdi for denne eiendommen foreligger ikke ettersom boligen er nyoppført. Utgjør normalt 25% av boligens verdi for primærbolig, og 80% av boligens verdi for sekundærbolig (for ligningsåret 2016).
Reguleringsforhold / Offentlig godkjenning
Kopi av situasjonskart, målebrev, reguleringsplaner m/bestemmelser er vedlagt salgsoppgave. Vi oppfordrer interessenter til å gjøre seg kjent med disse.
Forpliktelser, rettigheter og servitutter
Kommunen har lovbestemt første prioritets pant (legalpant) i eiendommen for eventuelle ubetalte kommunale skatte- og avgiftskrav. De andre sameierne/sameiet har panterett i seksjonen for felleskostnader samt andre krav som følge av sameieforholdet. Pantekravet kan ikke overstige et beløp som for den enkelte bruksenhet overstiger 2 ganger folketrygdens grunnbeløp på det tidspunkt tvangsdekning besluttes gjennomført, jf. lov om eierseksjoner § 31 første ledd. Eiendommens servitutter følger av dens grunnboksblad. For servitutter eldre enn fradelingsdato og eventuelle arealoppføringer som kan ha betydning for denne matrikkelenhet henvises det til hovedbruket / avgivereiendommen. For festenummer gjelder henvisningen servitutter eldre enn festekontrakten. Ta kontakt med megler for mer informasjon.
Kjøper er gjort kjent med at ingen kan kjøpe eller på annen måte erverve flere enn 2 boligseksjoner i samme eierseksjonssameie, jf. lov om eierseksjoner § 23, første ledd
Prisantydning, omkostninger og evt. fellesgjeld
kr 8 690 000,- (Fastpris)
Omkostninger:
kr 200,- (Pantattest kjøper)
kr 585,- (Tingl.gebyr pantedokument)
kr 585,- (Tingl.gebyr skjøte)
kr 23 520,- (Dokumentavgift (avgiftsgrunnlag: 941 429,41,-))
--------------------------------------------------------
kr 24 890,- (Omkostninger totalt ved prisantydning)
--------------------------------------------------------
kr 8 714 890,- (Totalpris inkl omkostninger)
Betalingsbetingelser
Fullstendig kjøpesum samt omkostninger skal være disponibelt på meglers klientkonto innen dato for overtagelse. Kjøpesummen skal innbetales fra norsk finansinstitusjon og/eller kjøpers konto i norsk finansinstitusjon. Eventuell egenkapital skal innbetales i én samlet betaling fra kjøpers egen konto i norsk finansinstitusjon.
Vederlaget
Følgende er avtalt om meglers vederlag:
Prosjektmodul pr. enhet (Kr.1 250)
Eierskiftegebyr forretningsfører (Kr.6 215)
Oppgjør (Kr.7 500)
Provisjon (forutsatt salgssum: 8 690 000,-) (Kr.43 750)
Totalt kr. (Kr.58 715)
Dersom handelen ikke kommer i stand eller at oppdraget sies opp har megleren krav på dekning for påløpte timer, påløpte visninger, grunn og markedspakke samt utlegg.
Oppdragsnummer
39-21-0024
Hvitvasking
Eiendomsmegler er underlagt lov om hvitvasking og tilhørende forskrift. Hvitvaskingsloven pålegger megler å gjennomføre kundetiltak av både selger og kjøper. Dersom kjøper ikke bidrar til at megler får gjennomført kundetiltak, og dette medfører at transaksjonen ikke kan gjennomføres eller blir forsinket misligholder kjøper avtalen. Dette vil kunne gi selger rettigheter etter avhendingsloven, herunder rett til å heve kjøpet og gjennomføre dekningssalg for kjøpers regning dersom misligholdet er vesentlig. I tilfeller der det er selger som ikke bidrar til at megler får gjennomført løpende kundetiltak underveis i oppdraget må megler stanse gjennomføringen av transaksjonen. Selger vil i så fall ha misligholdt sine forpliktelser, og kjøper vil kunne ha krav mot selger etter avhendingslovens bestemmelser om mislighold og forsinkelse.
Dersom kundetiltak ikke lar seg gjennomføre vil EIE eiendomsmegling ikke kunne bistå med handelen eller foreta oppgjør.
Personvern
Som interessent, budgiver og kjøper vil dine personopplysninger bli registrert og lagret. Som eiendomsmeglingsforetak har vi plikt til å oppbevare kontrakter og dokumenter i minst 10 år, jf. eiendomsmeglingsforskriften § 3-7 (3). Dette innebærer at mulighetene for å få slettet personopplysninger er begrenset. Du kan lese om vår behandling av personopplysninger i vår personvernerklæring på https://eie.no/eiendom/personvernerklaering
Ansvarlig megler
Daglig leder / Eiendomsmegler MNEF Petter Mamen-Lund
Saksbehandlere
Petter Mamen-Lund
EIE Asker
Daglig leder / Eiendomsmegler MNEF
Mob: 91 61 47 22
Christian Thordén Salvesen
Eiendomsmegler / Partner / Fagansvarlig
Mob: 97 05 38 38
Nærområdet
Aktiv Asker
Annonseinformasjon
| FINN-kode | 296653538 |
|---|---|
| Sist endret | 08. feb. 2024 12:22 |
| Referanse | 39210024 |
Annonsene kan være mangelfulle i forhold til lovpålagt opplysningsplikt. Før bindende avtale inngås oppfordres interessenter til å innhente komplett informasjon fra meglerforetaket, selger eller utleier.


