Bildegalleri
Fusdal Torg Hus 1 og 2
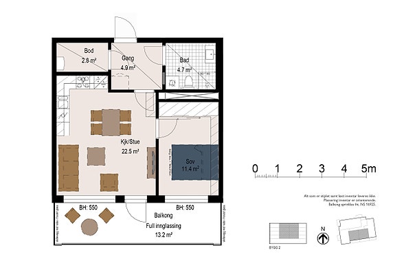
Stor 2-roms med flott planløsning og romslig sydvendt balkong.
Prisantydning5 450 000 kr
Prosjektets status
Planlegging
155330005
Salgsstart
1. kvartal 2022
Byggestart
3. kvartal 2022
Overtakelse
Determined 3. kvartal 2024
Nøkkelinfo
- Boligtype
- Leilighet
- Etasje
- 5
- Soverom
- 1
- Rom
- 2
- Internt bruksareal
- 49 m² (BRA-i)
- Bruksareal
- 68 m²
- Eksternt bruksareal
- 5 m² (BRA-e)
- Innglasset balkong
- 13 m² (BRA-b)
Fasiliteter
Balkong/Terrasse
Bredbåndstilknytning
Sentralt
Heis
Turterreng
Vaktmester-/vektertjeneste
Garasje/P-plass
Visning
tirsdag, 27. januar
15:00 – 17:00
Velkommen til visning i våre ferdigstilte leiligheter. Folabruveien 2 (Vis a vis Sats). Oppmøte i vår visningsleilighet 1-203, Vi organiserer visninger i spesifikk leilighet etter ønske.
søndag, 01. februar
13:00 – 14:30
Velkommen til visning i våre ferdigstilte leiligheter. Folabruveien 2 (Vis a vis Sats). Oppmøte i vår visningsleilighet 1-203, Vi organiserer visninger i spesifikk leilighet etter ønske.
Beskrivelse
• Stor og romslig 2-roms leilighet med god planløsning
• Sydvendt innglasset balkong på ca 13,7 kvm
• Vinkelkjøkken med integrerte hvitevarer
• God lagringsplass med bod i leiligheten og skyvedørsgarderobe på soverom
• Downlights på bad og i entre
NB: Knappen for å vise hele beskrivelsen har kun en visuell effekt.
NB: Knappen for å vise hele beskrivelsen har kun en visuell effekt.
Nyttige lenker
Nærområdet
JM Norge Oslo
En av Norges største boligutviklere

JM Norge AS
Utbygger
Annonsene kan være mangelfulle i forhold til lovpålagt opplysningsplikt. Før bindende avtale inngås oppfordres interessenter til å innhente komplett informasjon fra meglerforetaket, selger eller utleier.












