Bildegalleri

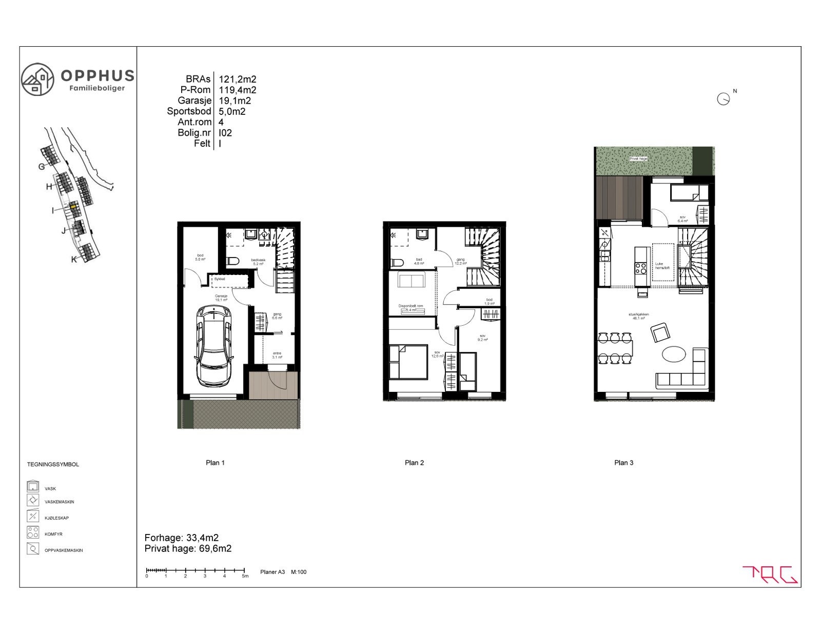
Plantegning I02
Skuiholtet
MODERNE OG STILFULLE REKKEHUS I BÆRUM M/ GOD BOKVALITET, I GRØNNE OG BARNEVENNLIGE OMGIVELSER - SALGSTRINN 1 ER I GANG
Prosjektets status
Planlegging
-
Salgsstart
-
Byggestart
-
Overtakelse
-
Nøkkelinfo
- Boligtype
- Rekkehus
- Soverom
- 3
- Rom
- 4
- Primærrom
- 119 m²
- Bruksareal
- 121 m²
Fasiliteter
Beskrivelse
Skuiholtet
Skuiholtet byr på det beste av to verdener. Her bor du tett på naturen, perfekt for nysgjerrige småbarn og for din daglige rusletur, samtidig som du bor sentralt med Sandvika som nærmeste hovedsentrum.
Salgstrinn 1 består av 20 rekkehus fordelt på hus i I, J, K og L. 9 er allerede solgt.
Boligene oppføres med spennende arkitektur, gjennomtenkte og funksjonelle løsninger tilpasset barnefamilier og gode bokvaliteter. Utbygger har også lagt vekt på å oppnå en stilren og moderne helhet både inne og ute.
Rekkehusene går over tre plan, med blant annet 3-4 soverom, 2 baderom, og åpen stue-/kjøkkenløsning. En god planløsning for familier der man kan være sammen i fellesområdene, og trekke seg tilbake til egne etasjer med soverom og bad. Rekkehusene får flotte uteplasser med forhager, og private hager eller terrasser. Noen av boligene har private takterrasser. Boligene får også integrert garasje og egen sportsbod.
Det blir også et felleshus på området, til glede for alle beboere - store som små. Her blir det smørebod og sykkelverskted i andre etasje og selskapsrom i første. Perfekt for barnebursdager, 17.mai-feiringer og andre festlige begivenheter. I sommerhalvåret kan festen også tas ut, til opparbeidede lekeplasser og uteområder med bord, sitteplasser og pergola." Uteområdene ellers får flotte lekeplasser og møblering som står i stil med naturen rundt.
Området ligger i tillegg høyt og fritt i terrenget med vid utsikt mot store deler av Kolsås, Rykkinn, Brennefeltet og nærområdet for øvrig. Her vil du fra stuevinduet ditt kunne glede deg over den mektige og flotte naturen som et levende maleri, året rundt.
Opplev litt mer av det gode, hver dag, året rundt!
Besøk vår prosjektside https://www.opphus.no/familieboliger/skuiholtet/ for boligvelger og komplett prospekt!
Hovedoppdragsnummer
36-22-0687
Eiendom
Det samlede utbyggingsområdet består av eiendommene gnr 65 bnr 225 og gnr 66 bnr 442 i Bærum kommune. I tillegg inngår en liten del av gnr 65 bnr 5 som utgjør veikryss og liten del av gnr 66 bnr 1 som utgjør gangsti. Utbyggingsområdet er planlagt sammenslått, grensejustert og fradelt og eiendomsgrensene og tomtearealet er ikke avklart på salgstidspunktet. Tomtearealet til gnr 65 bnr 225 og gnr 66 bnr 442 er ved salgsstart registrert i matrikkelen å være 45 419 m². Selger tar forbehold om det endelige tomtearealet. Eiendommen er planlagt å bestå av ett matrikkelnummer som vil bli seksjonert. Hver seksjon vil bestå av en sameieandel i henhold til tinglyst seksjonering. Selger forbeholder seg retten til å kunne velge å organisere prosjektet i flere eierseksjonssameier/boligselskap. Dersom det blir etablert flere boligselskap vil tingsrettslige sameier kunne bli opprettet for fellesarealer. Selger tar forbehold om antall selskap, antall boliger og endelig organisering av prosjektet. Endelige grenser og tomtestørrelse vil fremkomme etter kommunal oppmåling, fradeling og eventuell sammenslåing.
Matrikkel
Gnr. 66 Bnr. 442 og gnr. 65 bnr. 225 i Bærum kommune
Boligtype
Rekkehus
Eierform
Selveier
Ferdigstillelse
Ferdigstillelse og fremdriftsplan:
Boligen planlegges ferdigstilt 4. kvartal år 2024, under forutsetning om vedtak om igangsetting innen 31.12.2022. Dette gjelder ikke som en bindende frist for å ha boligen klar for overtagelse, herunder ikke grunnlag for å kreve dagmulkt.
Selger vil ved oppstart av tømmerarbeid varsle Kjøper skriftlig om overtagelsesdato, som vil være å regne som en frist iht. bustadoppføringslova.
Selger kan kreve overtagelse inntil fire måneder før den avtalte fristen til å ha boligen klar til overtagelse. Selger skal skriftlig varsle om dette minimum to måneder før det nye overtagelsestidspunktet. Det eksakte overtagelsestidspunktet skal gis med minst 14 kalenderdagers skriftlig varsel. Det beregnes dagmulkt fra det nye overtagelsestidspunktet.
Selger skal innen rimelig tid varsle forbruker dersom det oppstår forhold som vil medføre at han blir forsinket med sin utførelse.
Selger har rett til tilleggsfrist dersom vilkårene som nevnt i Bustadoppføringslova § 11 er oppfylt.
Påvirkes utførelsen av arbeid under kontrakten av Covid 19 (Koronaviruset) og/eller konsekvenser av krigen i Ukraina, som får betydning for fremdriften, må Kjøper være oppmerksom på at det vil være påregnelig at Selger vil ønske å kreve forlengelse av alle frister i kontrakten, herunder frist for ferdigstillelse av arbeidet. Dette gjelder for eksempel ved sykdom, karantene og/eller tiltak/begrensning innført eller anbefalt av offentlig myndighet, samt forsinket / forvansket tilgang på materialer. Dette gjelder også dersom utførelse eller leveranse fra underentreprenør eller annen leverandør påvirkes. Dersom Selger vil kreve fristforlengelse som følge av disse omstendighetene, skal Selger varsle Kjøper uten ugrunnet opphold etter at Selger ble klar over omstendigheten som begrunner kravet.
Ved besøk på byggeplass før overtagelse skal kunder alltid være i følge med en representant fra Selger. All annen ferdsel på byggeplassen i anleggsperioden er beheftet med høy grad av risiko og er forbudt.
Ansvarlig megler
Eiendomsmegler / Partner Edvard Chapsang
Selger/Utbygger
Opphus AS
Adresse: Megardsvegen 1, 7320 Fannrem
Org.nr.: 822 222 552
Hjemmelshaver
Gnr 66 bnr 442: JARENLIA NORD AS, Orgnr. 919780061
Gnr 65 bnr 225: MYCUBE SKUI AS, Orgnr. 912745554
Datterselskap av Selger/utbygger vil få rettigheter i eiendommen iht inngått kjøpekontrakt hvor de skal kjøpe alle aksjene i selskapet som p.t. har opsjonsrettigheter i eiendommene. Selger opplyser at de vil få grunnbokshjemmel til eiendommene alternativt generalfullmakt.
Endelig adresse foreligger ikke på salgstidspunktet, men vil bli fastsatt før overtagelse.
Priser fra - til
Priser fra 8 600 000 - til 8 900 000
Arealer
Arealer pr bolig fremkommer i vedlagte prisliste. Arealet er angitt hhv. som bruksareal(BRA) som er arealet innenfor boligens yttervegger inklusive evt. boder, samt P-ROM som er BRA fratrukket innvendig bod/sekundærrom. På tegningene kan det også være angitt et romareal som er nettoarealet innenfor omsluttende vegger. Det tas forbehold om mindre avvik for de oppgitte arealer, da beregningene er foretatt på tegninger.
Fellesutgifter
Felleskostnader vil avhenge av hvilke tjenester sameiet ønsker utført i felles regi, og fordeles iht. vedtektene. Månedlige felleskostnader er stipulert til kr 20,- per kvm BRA per måned for første driftsår, hvor man har lagt til grunn at bl.a. kommunale avgifter (for vann, avløp og renovasjon), forsikring av bygningsmassen, diverse drift- og vedlikeholdskostnader og forretningsførsel er inkludert. Tv/bredbånd er stipulert til kr 599,- per måned per bolig og er inkludert i oppgitte felleskostnader i prislisten. Endelig budsjett fastsettes på årsmøte. Innboforsikring og strøm til eget forbruk bekostes av den enkelte i tillegg.
Det tas forbehold om endringer i stipulerte felleskostnader, da dette er basert på erfaringstall. Fordelingsnøkkel for fordeling av kostnader reguleres i sameiets vedtekter, og bygger i utgangspunktet på sameierbrøk. Enkelte elementer i budsjettet kan i vedtektene fastsettes til fordeling likt på alle seksjoner, eller etter forbruk. Selger vil engasjere OBOS som forretningsfører for sameiet for første driftsår. Kostnader for dette er tatt inn i budsjett for felleskostnader.
Eiendomsskatt
Det er ikke eiendomsskatt per 2022, men selger tar forbehold om at kommunen kan innføre dette før overtagelsesdato.
Beskrivelse
Salgstrinn 1 består av 20 rekkehus fordelt på hus i I, J, K og L.
Boligene i K og I inneholder:
Plan 1: Entré, gang, bad/vaskerom, garasje med 5 kvm sportsbod.
Plan 2: Gang, 3 soverom og bad.
Plan 3: Stue / kjøkken og 1 soverom.
Boligene i J inneholder:
Plan 1: Entré, gang, bad, stor garderobe / bod, garasje med 5 kvm sportsbod.
Plan 2: Stue / kjøkken, 1 evt. 2 soverom (ene som tilvalg).
Plan 3: Gang, 2 soverom og bad.
Boligene i L inneholder:
Plan 1: Entré, stue / kjøkken, 1 soverom.
Plan U: Gang, 3 soverom, bad, bad/vaskerom og bod.
Plan 2: Bod, utgang til takterrasse.
Se vedlagt romskjema og leveransebeskrivelse i prospekt for standard og overflatebehandling.
Parkering og boder:
Hver bolig leveres med integrert garasje. I tillegg etableres det felles gjesteparkeringsplasser på eiendommen.
Det medfølger en sportsbod i tilknytning til garasjen og en innvendig bod iht. plantegning.
Mulighet for tilvalg, se eget avsnitt: Tilvalg og endringer.
Beliggenhet
Er du glad i naturen og ønsker å ha umiddelbar nærhet til noe av det beste Bærum har å by på er det flotte tur- og rekreasjonsmuligheter. Her vil du bo en kort oppvarmingstur unna Vestmarkas mange skiløyper samt slalåmbakker i Kirkerudbakken skisenter.
Nærområdet er perfekt for barnefamilier. Ved skolen finnes også lekeplass og idrettsanlegg som er et naturlig samlingspunkt for nabolaget.
Området ligger i tillegg høyt og fritt til med vid og mektig utsikt mot Kolsås, Rykkinn, Brennefeltet og nærområdet for øvrig.
Kort vei til Skui barneskole. Flere barnehager i området. Få minutters gange til bussholdeplass. Gode handlemuligheter på Vøyenenga senter, Rykkinn Nærsenter, Kolsås senter eller i Sandvika med blant annet Sandvika Storsenter. I Sandvika finnes også et stort utvalg av, restauranter, kafeer, gallerier og kino, samt badestrender på Kalvøya og Kadettangen.
Adkomst
Fra Sandvika: Kjør E-16 retning Sollihøgda/Hønefoss, etter Bjørnegårdtunnelen ta andre avkjøring mot Vøyenenga. Til venstre i rundkjøringen, "over" E16 ned til Ringeriksveien. Følge Ringeriksveien gjennom 3 rundkjøringer mot Skui. Ta til venstre inn Tunheimbakken og følg Tunheimbakken oppover. Ny adkomst til boligfeltet vil bli etablert inn fra Tunheimbakken.
Skole/barnehage
Ta kontakt med skolekontoret i kommunen for nærmere informasjon.
Leveransebeskrivelse
Byggebeskrivelsen/leveransebeskrivelsen skal angi hvilken teknisk standard prosjektet leveres med, samt foreløpig angi hva komplett leveranse etter kjøpekontrakten innebærer. Kjøper bes gjøre seg kjent med innholdet i leveransebeskrivelsen.
UTFORMING OG KVALITETER
Det understrekes at man legger NS 3420 til grunn for god faglig utførelse, og toleransekrav som fremkommer av denne legges til grunn for utførelse.
FASADER
Fasader er tilbudt med liggende dobbelfalset kledning - grunnet og malt 1 strøk fra fabrikk.
På vegger med spesielle krav mtp. brann el. vil det benyttes fasadeplater type Cemberit Frontex eller tilsvarende brannhemmende materialer.
YTTERTAK
Yttertak leveres med takstoler, og luftet loft og Skarpnes takstein dobbel krummet svart, terrasser leveres med utførelse iht. pkt. "Terrasser" under.
Renner og nedløp leveres i type grå eller tilsvarende.
VINDUER / BALKONGDØRER
Det leveres fabrikkmalte vinduer/balkongdører i tre. Farge ihht. NCS fargekart - lik farge inne og ute.
Hovedinngangsdør til boliger er tilbudt med malt overflate og rundt vindu Ø=40cm.
TERRASSER
Terrasser leveres med terrassebord i impregnert (grønn) utførelse.
Skillevegger mellom boenheter bygges med tilsvarende utførelse - Impregnert utførelse eller tilsvarende panel som fasade.
REKKVERK
På terrasser leveres det en kombinasjon av spilerekkverk med stolper i tre - malt utførelse.
GARASJEPORT
Leveres med automatisk åpner - 1 stk pr parkeringsplass.
KJØKKENLEVERANSE
Kjøkken leveres av anerkjent leverandør Sigdal. Det leveres kjøkken til en verdi av kr. 50.000 inkludert mva.
Hvitevarer inngår ikke i kjøkkenleveransen, men kan kjøpes som tilvalg.
GARDEROBER
Det leveres ingen skap i leveransen. Skyvedører/skap kan leveres som tilvalg.
BÆREKONSTRUKSJONER
Bærekonstruksjonen leveres kombinert med betong og trevirke.
INNVENDIGE KVALITETER
Parkett leveres som 3 stavs eikeparkett, type standard eik.
Innvendige dører leveres som slette hvite dører, type Swedoor Easy eller tilsvarende.
Listverk til dører / parkett leveres fabrikkmalt 12x58mm med synlige spikerhull. Farge på listverk som hvit (NCS S0502Y).
I overgang tak / vegg leveres listefritt, takfarge trekkes ned på vegg 10-15mm. Innvendige vegger leveres med skjøte sparklet og malt gipsplater - farge hvit (NCS S0502Y).
OPPVARMING
Baderom leveres med elektriske varmekabler.
Peis leveres ikke, men kan i enkelte boenheter tilbys som kundetilvalg. Ta kontakt med entreprenør ved interesse.
VENTILASJON
Det leveres luftbehandlingsaggregat av type Flexit Nordic eller tilsvarende med høyeffektiv roterende varmegjenvinner og lavenergivifter. Balansert ventilasjon med aggregat (Roterende gjenvinner). Aggregat er tiltenkt plassert i entre/gang eller i bod, men plassering kan endres i detaljprosjekteringen.
RØRLEGGER / SANITÆR
Det leveres følgende utstyr på hovedbad:
o 80 cm servantmøbel
o Speil med lys
o Vegghengt toalett
o Dusjvegger
o Batteri til vask og dusj
Det leveres følgende utstyr på bad 2:
o 60 cm servantmøbel
o Speil med lys
o Vegghengt toalett
o Dusjvegger
o Batteri til vask og dusj
Det leveres følgende utstyr på wc:
o Vask
o Speil
o Vegghengt toalett
o Batteri til vask
Det leveres i tillegg følgende utstyr på vaskerom:
o Opplegg for vaskemaskin og tørketrommel
o Varmtvannsbereder
o Skap for VVS
o Tilretteleging for vask/skyllekar mm, selve skyllekaret og batteriet som tilvalg
1 stk utekran
ELEKTRIKER
Det leveres utstyr / stikkontakter ihht. gjeldende NEK.
Det leveres varmekabler på bad.
Det leveres 3 spotter i tak på bad.
Det leveres lys i ventilator.
Det leveres ikke lamper i tak, men takpunkt.
Utvendig leveres totalt 2 stk lampe ved hovedinngang, og på terrasser.
Utvendig parkbelysning leveres i nødvendig grad iht. detaljprosjektering.
SENTRALSTØVSUGER
Kan tilbys som kundetilvalg.
ROMSKJEMA
Se vedlagt romskjema som beskriver leveransen.
TRAPPER
Innvendige trapper leveres som type Josefina CL fra Trappcompaniet AS eller tilsvarende. Leveres med åpne trinn, hvit utførelse, med trinn lakkert furu med eiketoning.
UTOMHUSANLEGG
Det blir lagt ut jord som blir tilsådd. Se utomhusplan.
Formuesverdi
Eiendommens formuesverdi fastsettes etter ferdigstillelse i forbindelse med første ligningsoppgjør. Formuesverdien fastsettes med utgangspunkt i en kvadratmeterpris som årlig beregnes av Statistisk Sentralbyrå. Formuesverdi for primærboliger (der boligeier er folkeregistrert bosatt) utgjør 25% av den beregnede kvadratmeterprisen multiplisert med boligens areal. Formuesverdien for sekundærboliger utgjør 90%. For nærmere info, se www.skatteetaten.no.
Vei / Vann / Kloakk
Offentlig vann og avløp. Offentlig vei til området / sameiets grunn. Eiendommen vil bli tilknyttet offentlig ledningsnett for vei, vann og avløp. Vann og avløp tilknyttes ledningsnettet via private stikkledninger som vedlikeholdes for eier/sameiets regning frem til påkoblingspunkt. Særskilt avtale/erklæring vil kunne bli tinglyst på eiendommen. Eiendommen har adkomst til offentlig vei via felles privat vei.
Odel / Konsesjon
Eiendommen er ikke konsesjonspliktig.
Reguleringsforhold / Offentlig godkjenning
Boligene oppføres i et område som er regulert til boligbebyggelse - konsentrert småhusbebyggelse og er omfattet av detaljreguleringsplan for Jarenlia, planid 2017010, vedtatt 02.09.2020. Det er utført geoteknisk vurdering av detaljreguleringsområdet med befaring og prøvetakning. Den geotekniske vurderingen konkluderer med at planområdet ligger utenfor fare for kvikkleireskred og flom. Videre gjelder kommuneplanens arealdel for perioden 2017-2035 og kommunedelplan Tanumplatået og Hornimarka. I kommuneplanens arealdel er eiendommen innenfor hensynssone H550 - Hensyn landskap. I kommunedelplanen og detaljreguleringsplanen er deler av utbyggingsområdet innenfor hensynsone H560 bevaring naturmiljø. Eiendomskart viser at det er registrert kulturminne på deler av eiendommen. Kulturminner, terreng og vegetasjon som skal bevares hensyntas i utbyggingen.
Rammetillatelse for prosjektet er søkt om, men er ikke mottatt ved salgsstart. Selger opplyser at det er søkt om dispensasjon fra to forhold: 1) Det er søkt om å oppføre et felleshus for beboerne, slik at deler av planens formål endres fra konsentrert småhusbebyggelse til felleshus, og 2) Det er søkt om dispensasjon fra punkt § 1.5 i reguleringsplanen, om at krav om matjordsplan ettersendes eller settes som vilkår ved igangsettingstillatelse. Det er søkt om rammetillatelse for flere bygg samlet, og ferdigattest vil derfor først utstedes etter at siste bygg er ferdigstilt. Overtagelser vil derfor kunne skje mot midlertidig brukstillatelse og kjøper har anledning til å kreve tilbakehold som sikkerhet for ferdigattest i tråd med bustadoppføringslovas bestemmelser.
Kopi av situasjonskart, målebrev, reguleringsplaner m/bestemmelser er vedlagt salgsoppgave. Vi oppfordrer interessenter til å gjøre seg kjent med disse.
Sameiet
Utbyggingsområdet er planlagt å bestå av ett boligselskap, men antallet boligselskap kan bli justert i forbindelse med utbyggingen. Sameiet er planlagt å bestå av totalt 58 boligseksjoner (antallet seksjoner kan ev. bli justert i forbindelse med utbyggingen). Den daglige driften vil bli organisert som seksjonssameie iht. lov av 16.06.2017, nr. 65, eierseksjonsloven. Hver seksjon vil utgjøre en sameieandel med tilknyttet enerett til bruk av en bruksenhet og rett til bruk av sameiets fellesarealer. Det er forbudt å erverve mer enn 2 boligseksjoner i samme sameie. Denne begrensningen gjelder også indirekte erverv, herunder kjøp via aksjer eller andeler i et selskap. Erverv er forbudt dersom det medfører at flere enn to av boligseksjonene eies av noen som har "tilknytning til hverandre". Dersom bestemmelsen brytes vil blant annet styret i sameiet uten forutgående varsling, kunne pålegge salg av seksjonene som er ervervet ulovlig. Videre vil man ikke kunne stemme på årsmøtet, og man vil ikke tas med i beregningsgrunnlaget for flertallsavgjørelser.
Sameiet er pliktig til å avholde årsmøter hvor regnskap og budsjett fremlegges. Sameiets styre har ansvaret for at eiendommen forvaltes etter retningslinjer og vedtekter som fastsettes av årsmøtet. Utleie av seksjoner skal meldes skriftlig til sameiets forretningsfører og styret med opplysning om hvem som er leietager.
Forsikring
Bygningsmassen vil være forsikret av utbygger frem til overtagelse. Fra overtagelsesdagen vil eiendommen forsikres gjennom sameiets fellesforsikring. Kjøper må selv tegne innbo- og løsøreforsikring.
Utleie
Boligen kan leies ut i henhold til bestemmelsene i eierseksjonsloven og eventuelt vedtektene, dvs. utleie med varighet på over 30 sammenhengende dager.
Kortidsutleie av hele boligseksjonen i mer enn 90 døgn er ikke tillatt. Med korttidsutleie menes utleie i inntil 30 døgn. Grensen på 90 døgn kan fravikes i vedtektene og kan i så fall settes til mellom 60 og 120 døgn. Slik beslutning krever et flertall på minst to tredjedeler av de avgitte stemmene på årsmøtet. Merk imidlertid at begrensningen ikke gjelder for sameier hvor alle bruksenhetene brukes som fritidsboliger.
Boligen har ingen egen utleieenhet.
Fordeler ved å kjøpe nybygg
Det er mange fordeler for den som kjøper ny bolig.
For mange er det fristende å starte med blanke ark i en helt ny bolig, og det kan være mange fordeler ved å kjøpe nybygg. En av disse er at du får god tid til salg av egen bolig og forberedelse av flytteprosessen.
Lavere omkostninger og høy trygghet
Kjøpere av nybygg har ekstra trygghet gjennom at salget reguleres av Bustadoppføringslova, der utsteder selger garantier som varer i 5 år etter overtakelse. Vanligvis er det lavere omkostninger ved kjøp av prosjekterte boliger, da man kun betaler dokumentavgift av andel tomteverdi.
Lavere driftskostnader/fellesutgifter
Ved kjøp av ny bolig er det gjerne mindre vedlikehold. Du sparer penger på oppussing og det er strenge krav til isolasjon og høy energieffektivitet. Boligene blir oppført etter de nyeste byggestandarder og tekniske krav både til inneklima, isolasjon og miljø.
Fast pris gir forutsigbarhet
Ofte er prisene faste og du vet på forhånd hva boligen koster. Forutsigbarhet i kjøpsprosessen er noe mange setter stor pris på.
Du bestemmer!
Vil du være med på utformingen av eiendommens kvaliteter? Bustadoppføringsloven gir kjøperen rett til å påvirke leveransen av løsninger ut fra gitte forutsetninger. Dette avklares sammen med entreprenør etter at byggestart er vedtatt..
Forpliktelser, rettigheter og servitutter
Eiendommens servitutter følger av dens grunnboksblad. For servitutter eldre enn fradelingsdato og eventuelle arealoppføringer som kan ha betydning for denne matrikkelenhet henvises det til hovedbruket / avgivereiendommen.Ta kontakt med megler for mer informasjon.
Grunnboksutskrifter er innhentet og kan fås ved henvendelse til megler. Boligene vil overtas fri for økonomiske heftelser med unntak av lovpålagt panterett til sameiet på 2G. Sameiets panterett sikrer innenfor pålydende den enkelte sameiers oppfyllelse av felles forpliktelser.
Kjøper må akseptere at det på eiendommen tinglyses ytterligere servitutter/erklæringer for å sikre privatrettslige eller offentligrettslige interesser. Slike servitutter/ erklæringer kan være erklæringer som regulerer drift og vedlikehold av fellesområder, drift og vedlikehold av energi/nettverk, vann- og avløpsnett e.l. Seksjonene overdras med de rettigheter og forpliktelser som grunnboken viser.
Kjøper kan ikke motsette seg eller kreve prisavslag/erstatning for tinglysninger av øvrige nødvendige erklæringer/ avtaler o.l. vedrørende sameie, naboforhold eller forhold pålagt av myndighetene knyttet til gjennomføringen av prosjektet innenfor reguleringsplanen for prosjektet.
Heftelser tinglyst i eiendommen gnr 65 bnr 225:
1999/3188-1/100 OBLIGASJON TINGLYST
09.02.1999
BELØP: NOK 300.000
PANTHAVER:Gjensidige Bank As
Lnr: 1014393
OVERFØRT FRA: 3024-65/222
Gjelder denne registerenheten med flere
2010/203576-1/200 BEST. OM ADKOMSTRETT TINGLYST
18.03.2010
Rettighetshaver: Knr:3024 Gnr:65 Bnr:27 (Tunheimsbakken 15), bnr 28 (Tunheimlsbakken 17 C) og bnr 47 (Tunheimsbakken 17 A og B), har varig rett til kjøre- og gangadkomst over eiendommen gnr 65 bnr 222 i Bærum kommune, i samsvar med kommunens tekniske norm for adkomstveier. Utbyggingseiendommen er utskilt fra gnr 65 bnr 222, slik at rettighetshaverne har veirett over den delen av veien på utbyggingseiendommen som rettighetshaverne må kjøre over, som vist på kart vedlagt dokumentet. Denne erklæringen kan ikke slettes uten samtykke fra rettighetshaverne og reguleringssjefen i Bærum kommune. Overført fra: Knr: 3024 Gnr: 65 Bnr: 222. Gjelder denne registerenheten med flere.
2013/478543-1/200 BEST. OM VANN/KLOAKKLEDN. TINGLYST
12.06.2013
2013/478543-2/200 BEST. OM ADKOMSTRETT TINGLYST
12.06.2013
Rettighetshaver: Knr:3024 Gnr:65 Bnr:224, fikk i 2013 følgende varige rettigheter på eiendommen gnr 65 bnr 222 i Bærum kommune: 1) Å ha sine private vann- og avløpsledninger over eiendommen, og 2) Gang- og kjøreadkomst i samsvar med kommunens tekniske norm for adkomstveier og med beliggenhet som vist på kart dokument 182600 oppbevart i Bærum kommune sitt arkiv. Denne erklæringen kan ikke slettes uten samtykke fra Bærum kommune. Overført fra: Knr: 3024 Gnr: 65 Bnr: 222. Gjelder denne registerenheten med flere.
2016/513061-1/200 BESTEMMELSE OM VEG TINGLYST
08.06.2016
Rettighetshaver: Knr:3024 Gnr:65 Bnr:223, har veirett over gnr 65 bnr 222 fra hensiktsmessig sted i grensen mellom gnr 65 bnr 223 og gnr 65 bnr 222, og frem til adkomst på gnr 65 bnr 44, som kommer fra krysset Horniveien og gml. Jarenvei. Overført fra: Knr: 3024 Gnr: 65 Bnr: 222. Gjelder denne registerenheten med flere.
2018/408326-1/200 BESTEMMELSE OM KLOAKKLEDNING TINGLYST
06.02.2018 21:00
Rettighetshaver: Knr:3024 Gnr:65 Bnr:223, har rett til å ha sine private vann- og avløpsledninger liggende over eiendommen gnr 65 bnr 222 i Bærum kommune. Videre har rettighetshaver rett til nødvendig vedlikehold/reparasjon og evt. Omlegging av ledningene. Denne erklæringen kan ikke slettes uten samtykke fra Bærum kommune, Org.nr: 935 478 715. Overført fra: Knr: 3024 Gnr: 65 Bnr: 222. Gjelder denne registerenheten med flere.
2019/1533823-1/200 OPSJONSAVTALE TINGLYST
20.12.2019 21:00
Rettighetshaver: MyCube Skui AS, Org.nr: 912 745 554, har opsjon på de deler av eiendommen gnr 65 bnr 222 i Bærum kommune som vist på kart vedlagt dokumentet. Opsjonen utløper senest 18.16.2029. Selger har inngått avtale om kjøp av selskapet som eier 100% av aksjene i MyCube Skui AS. Selger opplyser at de vil få grunnbokshjemmel og denne heftelsen vil bli slettet. Overført fra: Knr: 3024 Gnr: 66 Bnr: 435. Gjelder denne registerenheten med flere.
2022/26799-1/200 BESTEMMELSE OM VANN/KLOAKK TINGLYST
07.01.2022 21:00
Rettighetshaver: Bærum Kommune, har rett til å liggende vann- og avløpsledninger med kummer over eiendommene gnr 65 bnr 222 og 225 i Bærum kommune, som vist på tegning vedlagt dokumentet. Med flere bestemmelser om bl.a. vedlikehold av ledningene og forbud mot byggetiltak som kan utsette ledningsanlegget for skade. Denne erklæringen kan ikke slettes uten samtykke fra Bærum Kommune, Org.nr: 935 478 715. Gjelder denne registerenheten med flere.
2022/542675-1/200 BESTEMMELSE OM VANN/KLOAKK TINGLYST
20.05.2022 21:00
RETTIGHETSHAVER:BÆRUM KOMMUNE
Org.nr: 935478715
Adkomstrett for drift og vedlikehold av anlegg/ledninger/kabler
Bestemmelse om bebyggelse i nærhet av anlegg
2022/1239931-1/200 BESTEMMELSE OM VANN/KLOAKK TINGLYST
02.11.2022 21:00
:Knr:3024 Gnr:65 Bnr:1
:Knr:3024 Gnr:65 Bnr:222
:Knr:3024 Gnr:66 Bnr:14
:Knr:3024 Gnr:66 Bnr:435
Gjelder denne registerenheten med flere
2022/1239931-2/200 ERKLÆRING/AVTALE TINGLYST
02.11.2022 21:00
:Knr:3024 Gnr:65 Bnr:1
:Knr:3024 Gnr:65 Bnr:222
:Knr:3024 Gnr:66 Bnr:14
:Knr:3024 Gnr:66 Bnr:435
Rett til å føre teknisk infrastruktur
Gjelder denne registerenheten med flere
2022/1239964-1/200 BESTEMMELSE OM VEG TINGLYST
02.11.2022 21:00
:Knr:3024 Gnr:65 Bnr:1
:Knr:3024 Gnr:65 Bnr:222
:Knr:3024 Gnr:66 Bnr:14
:Knr:3024 Gnr:66 Bnr:252
:Knr:3024 Gnr:66 Bnr:435
Gjelder denne registerenheten med flere
Heftelser tinglyst i eiendommen gnr 66 bnr 442:
2019/1533800-1/200 OPSJONSAVTALE TINGLYST
20.12.2019 21:00
Rettighetshaver: MyCube Skui AS, Org.nr: 912 745 554, har opsjon på de deler av eiendommen gnr 65 bnr 222 i Bærum kommune som vist på kart vedlagt dokumentet. Opsjonen utløper senest 18.16.2029. Selger har inngått avtale om kjøp av selskapet som eier 100% av aksjene i MyCube Skui AS. Selger opplyser at de vil få grunnbokshjemmel og denne heftelsen vil bli slettet. Overført fra: Knr: 3024 Gnr: 66 Bnr: 435. Gjelder denne registerenheten med flere.
2022/543027-1/200 BESTEMMELSE OM VANN/KLOAKK TINGLYST
20.05.2022 21:00
Rettighetshaver: Bærum Kommune, har rett til å liggende vann- og avløpsledninger med kummer over eiendommen gnr 66 bnr 442 i Bærum kommune, som vist på tegning vedlagt dokumentet. Med flere bestemmelser om bl.a. vedlikehold av ledningene og forbud mot byggetiltak som kan utsette ledningsanlegget for skade. Denne erklæringen kan ikke slettes uten samtykke fra Bærum Kommune, Org.nr: 935 478 715. Gjelder denne registerenheten med flere.
Heftelser tinglyst på eiendommen gnr 65 bnr 5, som overføres til utbyggingseiendommen ved arealoverføring:
02.10.1907 - Dokumentnr: 900129 - Bestemmelse om veg Konferer megler for kopi av dokumentet.
02.10.1907 - Dokumentnr: 900130 - Bestemmelse om veg
Rettighetshaver: Knr: 3024 Gnr: 65 Bnr: 1 Konferer megler for kopi av dokumentet.
30.08.2004 - Dokumentnr: 24360 - Erklæring/Avtale
Areal fradelt til veigrunn til Ringeriksveien/E16 og tillagt gnr 200 bnr 7 i GAB. Gjelder denne registerenheten med flere.
Heftelser tinglyst på eiendommen gnr 66 bnr 1, som overføres til utbyggingseiendommen ved arealoverføring:
02.09.1938 - Dokumentnr: 3724 - Erklæring/avtale
Rettighetshaver: Knr:3024 Gnr:66 Bnr:51, 69 70 fikk i 1938 rett til å grave en brønn på eiendommen gnr 66 bnr 1, med flere bestemmelser om brønnretten.
05.10.1940 - Dokumentnr: 2933 - Erklæring/avtale
Rettighetshaver: Knr:3024 Gnr:66 Bnr:120 (gnr 66 bnr 121 iht. originaldokument), fikk i 1940 adkomstrett på hovedbølets grunn langs sti, med flere bestemmelser om gjerdeplikt, vannrett, og bebyggelse.
05.10.1940 - Dokumentnr: 2934 - Best. om adkomstrett
Rettighetshaver: Knr:3024 Gnr:66 Bnr:121, fikk i 1940 rett til adkomst på hovedbølets grunn langs sti, med flere bestemmelser om gjerdeplikt, vannrett og bebyggelse.
06.08.1969 - Dokumentnr: 6148 - Erklæring/avtale Midlertidig dispensasjon fra Bygningsloven vedr. hytte
13.08.1976 - Dokumentnr: 14302 - Best. om vann/kloakkledn. Eiendommen gnr 66 bnr 218 fikk i 1976 tillatelse til å legge vann- og kloakkledninger over offentlig veg.
16.07.1979 - Dokumentnr: 13643 - Best. om adkomstrett
Rettighetshaver: Knr:3024 Gnr:66 Bnr:338, har adkomstrett over eiendommene gnr 66 bnr 1 og 40.
08.06.1982 - Dokumentnr: 11596 - Erklæring/avtale Bestemmelse i kjøpekontrakt og skjøte, om personlig rett til livsvarig føderådsytelser.
06.01.1992 - Dokumentnr: 222 - Livsvarig borett Bestemmelse i skjøte. Rettighetshaver har en strengt personlig, ikke omsettelig borett på "Kleiva-hytta" for resten av sin levetid.
30.05.2007 - Dokumentnr: 431891 - Bestemmelse om veg
Rettighetshaver: Knr:3024 Gnr:66 Bnr:94, fikk i 2007 veirett til å kjøre fra krysset gml. Jarenvn/Persbråten fram til egen eiendom på den til enhver tid eksisterende vei som ligger på grunn tilhørende gnr 66 bnr 1.
20.10.2011 - Dokumentnr: 858382 - Jordskifte
Prisantydning, omkostninger og evt. fellesgjeld
8 600 000,- (Prisantydning)
Omkostninger
71 700,- (Dokumentavgift (avgiftsgrunnlag: 2 868 184,-))
200,- (Pantattest kjøper)
585,- (Tingl.gebyr pantedokument)
585,- (Tingl.gebyr skjøte)
--------------------------------------------------------
73 070,- (Omkostninger totalt)
--------------------------------------------------------
8 673 070,- (Totalpris inkl. omkostninger)
NB: Regnestykket forutsetter at det kun tinglyses ett pantedokument og at eiendommen selges til prisantydning.
I tillegg til total omkostnigene tilkommer oppstartskapital til sameiet tilsvarende 2x mnd felleskostnader.
Prisantydning ihht. prisliste.
- kr 7 700 000,- til kr 8 900 000,- + omkostninger.
Dokumentavgift/omkostninger:
Det skal i tillegg til kjøpesummen betales følgende:
Dokumentavgift 2,5 % av andel tomteverdi
Tinglysningsgebyr for skjøte kr 585,
Tinglysingsgebyr per panterettsdokument inkl. attestgebyr kr 757,
Oppstartskapital til sameiet tilsvarende 2x mnd felleskostnader
Kostnader for takstmann ved behov for fastsettelse av gjenstående arbeider på fellesarealer ved overtakelse belastes sameiet.
Dokumentavgiften utgjør 2,5 % av tomtens salgsverdi på tinglysingstidspunktet for den enkelte seksjon. P.t. er tomteverdien anta tt å være kr 23 704 per kvm BRA for boligen, hvilket gir en dokumentavgift på ca. kr 593, per kvm BRA.
Det tas forbehold om endring i tomteverdien og dokumentavgiften på tinglysingstidspunktet.
Det tas forbehold om endring av satsene for offentlige gebyrer og avgifter i tiden frem til hjemmelsovergang finner sted.
Betalingsplan
Kr 250 000,- av kjøpesummen forfaller ved utstedt garanti jf. bustadoppføringslova § 12. Beløpet må være fri kapital, dvs. at det ikke kan være knyttet vilkår til innbetalingen som medfører at selger ikke kan disponere over beløpet.
Renter på klientkonto tilfaller kjøper frem til § 47 garanti er stilt, eller skjøtet er tinglyst, forutsatt at de overstiger en 1/2 R.
Restkjøpesummen + omkostninger betales ved overtagelse.
Oppgjør og eventuelt deloppgjør vil kun skje mot tinglyst skjøte eller mot garanti for tilsvarende beløp jf. bustadoppføringslov a § 47.
Kjøpere er ansvarlig for å formidle avtalens forutsetninger som har betydning for overtagelse og oppgjør til sin bankforbindelse, og påse at banken tilrettelegger sine forutsetninger til Selger forbeholder seg retten til å endre priser på usolgte boliger.
Boligene selges til fastpris etter førstemann til mølla-prinsippet, se vedlagte prisliste. Ved salgsstart kan egne regler gjelde, kontakt megler for nærmere info.
Det gjøres oppmerksom på at papirutgaver av salgsoppgaven kan være redigert etter utskrift, og det oppfordres derfor til å alltid ta utgangspunkt i den digitale utgaven av både salgsoppgave og prisliste som finnes på eie.no og prosjektets hjemmeside.
Betalingsbetingelser
Restkjøpesummen + omkostninger betales ved overtagelse, kjøpesum samt omkostninger skal være disponibelt på meglers klientkonto innen dato for overtagelse. Kjøpesummen skal innbetales fra norsk finansinstitusjon og/eller kjøpers konto i norsk finansinstitusjon. Eventuell egenkapital skal innbetales i én samlet betaling fra kjøpers egen konto i norsk finansinstitusjon.
Vederlaget
Følgende er avtalt om meglers vederlag:
Provisjon (forutsatt salgssum: 8 600 000,-) (Kr.215 000)
Totalt kr. (Kr.215 000)
Selger dekker følgende utlegg til megler:
Innhenting av opplysninger fra kommune/offentlige instanser, ev.
forretningsfører mv.: ca. Kr. 9 000,-. Selgers tinglysingskostnader: Kr. 585,-. Grunnboksutskrift kr 172,- per utskrift og firmaattest kr 77,- per utskrift.
Dersom handelen ikke kommer i stand eller at oppdraget sies opp har megleren krav på dekning for påløpte timer, påløpte visninger, grunn og markedspakke samt utlegg.
Avbestilling
Kjøp etter bustadoppføringslova innebærer en avbestillingsrett for kjøper. Dersom denne retten benyttes vil kjøper bli holdt ansvarlig for selgers merkostnader og tap som følge av en eventuell avbestilling. For avbestillinger som skjer før vedtak om igangsetting er det avtalt et avbestillingsgebyr på 5 % av kjøpesummen.
Kontakt megler for nærmere informasjon dersom avbestilling vurderes. Bestilte endrings- og tilleggsarbeider kan bli en del av det selger krever dekket.
Garantier
Selgeren skal straks etter budaksept stille garanti eller tilsvarende fra finansinstitusjon for rett oppfyllelse av kontrakten iht. Bustadsoppføringsloven § 12. Entreprenør skal stille garanti før byggearbeidet igangsettes.
For perioden frem til overtagelse skal garantien være på minst 3% av vederlaget. fra overtakelse og frem til 5 år etter overtakelse skal garantien dekke en sum som svarer til 5% av vederlaget.
Dersom selger stiller § 47 garanti, vil deloppgjør utbetales til selger/byggelånsbank og godskriving av renter opphører.
Garantiene stilles direkte til kjøper med kopi til megler.
Selgers forbehold
Selger tar følgende forbehold om igangsetting og gjennomføring av avtalen:
igangsettingstillatelse for byggearbeidene i samsvar med søknad
at det inngås kjøpekontrakter tilsvarende minimum 55% av verdien av boligene i trinn 1 iht. prisliste ved salgsstart
at Selger har fått grunnbokshjemmel eller generalfullmakt til eiendommene
Selger er bundet av kontrakten dersom han ikke gjør forbehold for gjennomføring gjeldende senest innen 31.12.2022.
Dersom selger gjør forbeholdene gjeldende har Kjøper rett til å få innbetalt beløp samt opptjente renter på klientkonto tilbakebetalt. Utover dette har selger intet ansvar overfor kjøper.
Selger har rett til å gjøre mindre endringer i konstruksjon, tekniske installasjoner og materialvalg som ikke reduserer boligens kvalitet, uten at dette gir kjøper rett til endring av avtalt kjøpesum. Er det motsetninger mellom prospekttegninger og beskrivelser, gjelder beskrivelser foran tegninger. Det tas forbehold om justeringer og endringer av fasader og utomhusplanen.
Selger forbeholder seg retten til å foreta nødvendige endringer som følge av offentlige pålegg eller tilpasninger i forhold til tekniske løsninger. Videre forbeholder Selger seg rett til å bestemme endelig utforming av utomhusarealer, materialvalg og fargevalg samt innvendige og utvendige fellesarealer, uten at Kjøper har rett til å kreve endringer av avtalt pris. Dette gir ikke Selger rett til endringer som fraviker de beskrivelser og illustrasjonsmateriell som er vedlagt kontrakten på en slik måte at Boligens standard objektivt sett forringes eller som objektivt svekker dens bruksverdi. Selger skal så langt det er praktisk mulig informere Kjøper om slike endringer.
Det gjøres oppmerksom på at frihåndstegninger, perspektiver, utomhusplan, plantegninger og bilder i prospektet er av illustrativ karakter og inneholder derfor detaljer som farger, innredninger, møblering, beplantning og arkitektoniske detaljer m.v. som ikke inngår i leveransen. Stiplede løsninger/ innredninger leveres ikke. Plantegninger og illustrasjoner som viser ulike innredningsløsninger er ment som illustrasjoner for mulige løsninger. Disse løsningene inngår ikke i standardleveransen. Tegningene i prospektet bør ikke benyttes som grunnlag for nøyaktig møbelstilling, da målestokkavvik kan forekomme ved trykking/ kopiering. Det tas forbehold om at sjakter og føringsveier for VVS-installasjoner kan bli endret. Entreprenøren har ansvaret for oppfølging av gjeldende krav, lover og forskrifter.
Selger kan tinglyse erklæringer/bestemmelser og rettigheter som er nødvendig for gjennomføringen av prosjektet, herunder bestemmelser som vedrører sameiet, velforeningen, utbyggingseiendommen, naboforhold eller forhold pålagt av myndighetene. Kjøper kan ikke motsette seg eller kreve prisavslag/erstatning for dette.
Kjøper gjøres spesielt oppmerksom på at området er under utvikling og aksepterer de ulemper som dette vil kunne medføre. Byggearbeider, som blant annet bringer med seg støy, støv og redusert fremkommelighet, må påregnes i byggeperioden for den trinnvise utbyggingen.
Kjøper er kjent med at kjøpekontrakten ikke kan transporteres uten etter samtykke av selger. Videre forutsetter selger at skjøte tinglyses på den/de kjøper(e) som har fått aksept på sitt bud. Kjøper har anledning til å be om samtykke til transport eller direkteoverskjøting, men selger står helt fritt til å avslå eller akseptere en slik forespørsel. Et eventuelt samtykke vil medføre gebyr til selger etter nærmere avtale. Kjøpere som ikke regnes som forbrukere iht. loven vil ikke ha anledning til å transportere kontrakten, og vil kun ha anledning til å videreselge iht. bustadoppføringslova.
Prosjektet er planlagt å bestå av ett boligselskap/eierseksjonssameie, men selger tar forbehold om antall selskap, antall boliger og endelig organisering av prosjektet. Dersom det etableres flere boligsameier vil det kunne bli etablert ordninger for felles benyttelse, drift og vedlikehold av fellesarealer. Utbygger står fritt til å avgjøre hvilke arealer som skal vedlikeholdes i fellesskap, og hvordan dette vedlikeholdet nærmere skal organiseres, for eksempel som et realsameie eller ved opprettelse av en velforening.
Dersom det etableres flere boligsameier vil det kunne bli etablert ordninger for felles benyttelse, drift og vedlikehold av fellesarealer. Utbygger står fritt til å avgjøre hvilke arealer som skal vedlikeholdes i fellesskap, og hvordan dette vedlikeholdet nærmere skal organiseres, for eksempel som et realsameie eller ved opprettelse av en velforening.
Selger forbeholder seg rett til endring av prisliste uten varsel på usolgte boliger. Selger tar forbehold om antall seksjoner i sameiet. Selger forbeholder seg også retten til å foreta endringer ved prosjektet knyttet til en eventuell deling/sammenslåing av usolgte seksjoner. Disse endringene kan medføre mindre endringer av fasaden og plassering av balkonger.
Selger kan ikke garantere at det ikke er skjeggkre eller perlekre i boligen ved overlevering.
Viktig informasjon
Kjøp i prosjektet baseres på nærværende dokument, samt følgende:
1. Prisliste
2. Romskjema
3. Leveransebeskrivelse
4. Plantegning
5. Snitt- og fasadetegning
6. Utomhusplan/Landskapsplan
7. Utkast sameievedtekter
8. Utkast budsjett
9. Salgsprospekt
10. Standard kjøpekontrakt for prosjektet
11. Informasjonspakke innhentet fra kommunen
12. Matrikkelutskrift
13. Grunnboksutskrift og kopi av tinglyste heftelser
14. Informasjonsskriv vedrørende skjeggkre
15. For Bustadoppføringslova, se lovtekst på lovdata.no
Dokumentnummer 2-4 og 6 er vedlagt salgsprospektet. Øvrige dokumenter fås ved henvendelse til megler. Ved avvik mellom informasjon gjelder dokumentene i den rekkefølge som er nevnt over. Lovpålagte opplysninger om eiendommen er ufullstendig uten alle ovennevnte dokumenter/vedlegg.
Videresalg av kontraktsposisjon
Salg av kontraktsposisjoner er kun tillatt etter godkjenning fra selger. Selger kan uten nærmere begrunnelse nekte slik godkjenning og overskjøte eiendommen til opprinnelig kjøper.
Tilvalg
Prosjektet og dets priser er basert på at utbyggingen gjennomføres rasjonelt og med delvis serieproduksjon i form av systematisering av tekniske løsninger og valg av materialer. Dette gir begrensninger for hvilke tillegg og endringer som kjøper kan forvente å få gjennomført og innenfor hvilke tidsrom disse arbeidene kan bestilles.
Kjøper vil bli invitert av entreprenør til eget tilvalgsmøte. Det utarbeides en tilvalgsmeny som angir muligheter for endringer og tilleggsarbeider. Priser kan inneholde påslag til selger/entreprenør for merarbeid knyttet til administrering av tilvalg og endringer fra underleverandører.
Kjøper har ikke rett til å kreve endringer og tilleggsarbeider som ikke står i sammenheng med ytelser som er avtalt, og som i omfang eller karakter skiller seg vesentlig fra den avtale ytelsen og/eller er til hinder for rasjonell gjennomføring av byggearbeidene. Selger er heller ikke forpliktet til å utføre endringer eller tilleggsarbeider som vil føre til ulempe for selger som ikke står i forhold til kjøpers interesse i å kreve endringer eller tilleggsarbeider. Selger har rett til å ta seg betalt for utarbeidelse av pristilbud, tegninger m.v. jf. Bustadoppføringslova § 44.
Selger er uansett ikke forpliktet til å utføre endringer eller tilleggsarbeider som vil endre vederlaget med mer enn 15 % jf. Bustadoppføringslova § 9.
Etter igangsetting vil det gis frister for tilvalg og endringer. Inngås kjøpsavtale etter igangsetting er kjøper kjent med at frister for tilvalg og endringer kan være utgått. Kjøper er oppfordret til å ta forbehold i kjøpetilbudet dersom prosjektet er igangsatt, og kjøper har krav til tilvalg/endring som kjøper forutsetter skal være mulig å få levert av utbygger/selger.
Ferdigattest / midlertidig brukstillatelse
Ferdigattest eller midlertidig brukstillatelse skal foreligge skriftlig før overtagelse kan finne sted. I motsatt fall anbefaler megler at overtagelse utsettes og at kjøper ikke overtar.
Arealangivelser
Prislister er angitt i ca. bruksareal BRA (salgbart areal BRA-S) som er boligens mål innvendig, innbefattet innvendige boder, sjakter og innvendige vegger, men ikke medregnet yttervegger og vegger mot andre bruksenheter. I tillegg opplyses ca. P-rom i prislisten. Arealet for P-rom er inklusive innervegger men fratrukket areal for sjakter og boder. Selger tar forbehold om at mindre avvik kan forekomme.
Hvitvaskingsloven
Eiendomsmeglere ble fra 06.03.09 underlagt bestemmelsene i Hvitvaskingsloven. Dette innebærer blant annet at eiendomsmegleren har plikt til å melde fra til økokrim om eventuelle mistenkelige transaksjoner.
Budgivning
Boligene selges til faste priser. Innlevert kjøpstilbud er bindende for kjøper. Selger har rett til å akseptere eller forkaste ethvert bud. Megler vil meddele eventuell aksept skriftlig til kjøper. Selger har rett til å endre priser på usolgte boliger til enhver tid. Megler/ utbygger kan endre pris uten varsel.
Lovgrunnlag
Boligene selges etter bestemmelsene i Bustadoppførings- lova (lov av 13. juni 1997 nr. 43). Loven sikrer kjøper rettigheter som ikke kan innskrenkes i kjøpekontrakten, jfr.§3.
Bustadoppføringslova kommer ikke til anvendelse når kjøper er profesjonell/investor, eller etter at boligen er ferdigstilt. Boligen vil da selges etter bestemmelsene i Lov om avhending av fast eiendom av 3. juli 1992 nr. 93. Profesjonell kjøper/ investor vil i disse tilfellene måtte innbetale forskudd uten at dette blir sikret ved garanti. Selger står likevel fritt til å selge etter Bustadoppføringslova. Kjøpekontrakt vil bli inngått iht. standard kjøpekontrakt, som kan fås ved henvendelse til megler. Kjøper aksepterer denne ved inngivelse av bud.
Oppdragsnummer
36-22-0687
Hvitvasking
Lov om tiltak mot hvitvasking og terrorfinansiering(hvitvaskingsloven) pålegger eiendomsmegleren å gjennomføre legitimasjonskontroll og risikovurdering av alle kunder og/eller eventuelle reelle rettighetshavere. Dersom kundene ikke oppfyller lovens krav eller eiendomsmegler har mistanke om at transaksjoner har tilknytning til utbytte av straffbare handlinger eller forhold som rammes av straffeloven §§ 131 - 136 a, kan eiendomsmegleren stanse gjennomføring av handelen. Eiendomsmegleren kan ikke holdes ansvarlig for de konsekvenser dette vil kunne få for partene eller andre som har interesser i eiendomshandelen.
Dersom kundetiltak ikke lar seg gjennomføre vil EIE eiendomsmegling ikke kunne bistå med handelen eller foreta oppgjør.
Personvern
Som interessent, budgiver og kjøper vil dine personopplysninger bli registrert og lagret. Som eiendomsmeglingsforetak har vi plikt til å oppbevare kontrakter og dokumenter i minst 10 år, jf. eiendomsmeglingsforskriften § 3-7 (3). Dette innebærer at mulighetene for å få slettet personopplysninger er begrenset. Du kan lese om vår behandling av personopplysninger i vår personvernerklæring på https://eie.no/eiendom/personvernerklaering
Nærområdet
EIE eiendomsmegling Bærum
Opphus as
Utbygger
Annonseinformasjon
| FINN-kode | 285579763 |
|---|---|
| Sist endret | 08. feb. 2024 11:04 |
| Referanse | 36220687 |
Annonsene kan være mangelfulle i forhold til lovpålagt opplysningsplikt. Før bindende avtale inngås oppfordres interessenter til å innhente komplett informasjon fra meglerforetaket, selger eller utleier.


