Bildegalleri

Sarabakken 11 A-D

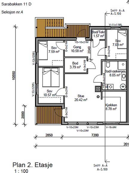
Sarabakken 11D

Prisantydning4 450 000 kr
Totalpris
4 468 842 kr
Omkostninger
18 842 kr
  • Planlegging

    2025

  • Salgsstart

    2025

  • Byggestart

    2025

  • Overtakelse

    2026

Nøkkelinfo

Boligtype
Leilighet
Soverom
3
Rom
4
Internt bruksareal
83 m² (BRA-i)
Bruksareal
83 m²

Les mer om bruksareal her

Visning

Ta kontakt for å avtale visning.Visningspåmelding

Beskrivelse

Velkommen til Sarabakken 11 på Silsand, her presentert av Tom Sivertsen v/ EiendomsMegler1 Finnsnes.

T kontakt for byggeplassvisning!

I Sarabakken 11 blir det totalt 4 stk. moderne leiligheter.
Leilighetene på bakkeplan er 3-roms leiligheter.(2 soverom)
I 2.etasje bygges 4-roms leiligheter.(3 soverom)

Super plassering, utsikt og nærhet til havet - sentralt på Silsand.

Leilighetene leveres nøkkelferdige - gjennomgående god standard- Mulighet for tilvalg.

Beskrivelse (type bolig)

Selveier

Betalingsbetingelser

Det betales ingen forskudd før overlevering av boligene. Kjøper må stille med finansieringsbevis maksimalt 10 dager etter kontraktsinngåelse.
Finansieringsbevis for utfylling av bankforbindelse fås av megler. Ved evt. forsinkelse av innbetaling gjelder lov om forsinkelsesrenter av 17.12.1976 nr. 100. Forsinkes finansieringsbeviset med mer enn 21 dager, har selger rett til å heve kjøpet og foreta dekningssalg. Selger vil holde kjøper ansvarlig for selgers eventuelle økonomiske tap som følge av kjøpers mislighold. Ved eventuell forsinket betaling gjelder lov om forsinkelsesrenter av 17.12.1976 nr. 100.

Overtakelse

Forutsatt tilstrekkelig salg og endelig kommunal godkjenning av boligene vil byggestart kunne skje 4. kvartal 2020 og vil kunne ferdigstilles 4. kvartal 2021. Utsettes igangsetting vil ferdigdato flyttes tilsvarende.

Utsettes igangsetting vil ferdigdato flyttes tilsvarende. Selger vil cirka fire måneder før forventet ferdigstillelse varsle kjøper om antatt overtakelsesperiode innenfor et tidsintervall på cirka to måneder. Tidsintervallene er kun av veiledende karakter, og utløser ikke krav om dagmulkt ved eventuell forsinkelse. Endelig tidspunkt for overtakelse (dato og klokkeslett) vil bli gitt med mini

Nærområdet

Annonseinformasjon

FINN-kode272320057
Sist endret10. nov. 2025 13:29
Referanse122210004

Rapporter annonse

Annonsene kan være mangelfulle i forhold til lovpålagt opplysningsplikt. Før bindende avtale inngås oppfordres interessenter til å innhente komplett informasjon fra meglerforetaket, selger eller utleier.