Bildegalleri

Inaktiv
Hyttefelt Nord-Vera
Hytte 3 - Veresvegen 1432
Prisantydning3 490 000 kr
Nøkkelinfo
- Boligtype
- Andre
- Soverom
- 3
- Rom
- 4
- Primærrom
- 0 m²
- Bruksareal
- 64 m²
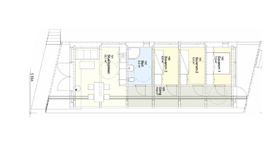
Beskrivelse
Hytten inneholder følgende rom: 3 soverom, gang, bad og stue/kjøkken.
I tillegg leveres det utvendig bod.
NB: Knappen for å vise hele beskrivelsen har kun en visuell effekt.
NB: Knappen for å vise hele beskrivelsen har kun en visuell effekt.
Nyttige lenker
Nærområdet
EiendomsMegler 1 Levanger
Vi loser deg trygt gjennom hele boligsalget
Annonseinformasjon
| FINN-kode | 261630382 |
|---|---|
| Sist endret | 08. feb. 2024 09:33 |
| Referanse | 512210004 |
Annonsene kan være mangelfulle i forhold til lovpålagt opplysningsplikt. Før bindende avtale inngås oppfordres interessenter til å innhente komplett informasjon fra meglerforetaket, selger eller utleier.



