Bildegalleri

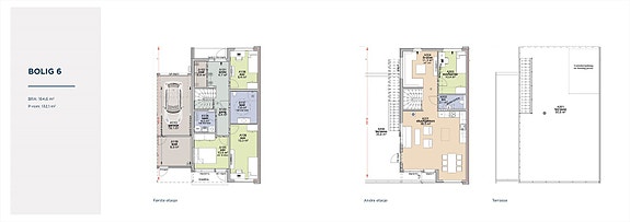
Bolig 6
Kvernodden Terrasse 7B
Kvernodden terrasse 13A
Prisantydning2 975 000 kr
Prosjektets status
Planlegging
Under kommunal saksbehandling
Salgsstart
17.03.2022
Byggestart
Byggetid ca. 15 måneder fra mottatt IG
Overtakelse
Innflyttingsklart!
Nøkkelinfo
- Boligtype
- Enebolig
- Etasje
- 2
- Soverom
- 4
- Rom
- 5
- Primærrom
- 132 m²
- Bruksareal
- 165 m²
Fasiliteter
Aircondition
Balkong/Terrasse
Bredbåndstilknytning
Garasje/P-plass
Kabel-TV
Peis/Ildsted
Utsikt
Turterreng
Visning
Ønsker du å delta på visning så ber vi om at du melder deg på slik at vi vet at du kommer. Visninger hvor det ikke er påmeldte på forhånd vil ikke bli avholdt.
VISNING AV DEN FERDIGSTILTE BOLIGEN ETTER AVTALE MED MEGLER, TLF 926 97 688.
VisningspåmeldingBeskrivelse
Mer informasjon kommer
NB: Knappen for å vise hele beskrivelsen har kun en visuell effekt.
NB: Knappen for å vise hele beskrivelsen har kun en visuell effekt.
Nærområdet
Eiendomsmegler 1 Midt-Telemark og Notodden
et foretak i SpareBank 1 Sør-Norge konsernet
Annonseinformasjon
| FINN-kode | 251639701 |
|---|---|
| Sist endret | 08. feb. 2024 09:10 |
| Referanse | 1414220020 |
Annonsene kan være mangelfulle i forhold til lovpålagt opplysningsplikt. Før bindende avtale inngås oppfordres interessenter til å innhente komplett informasjon fra meglerforetaket, selger eller utleier.

