Bildegalleri

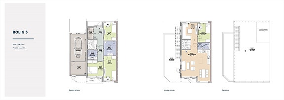
Bolig 5
Kvernodden Terrasse 7B
Kvernodden terrasse 13A
Prisantydning2 975 000 kr
Prosjektets status
Planlegging
Under kommunal saksbehandling
Salgsstart
17.03.2022
Byggestart
Byggetid ca. 15 måneder fra mottatt IG
Overtakelse
Innflyttingsklart!
Nøkkelinfo
- Boligtype
- Enebolig
- Etasje
- 2
- Soverom
- 4
- Rom
- 5
- Primærrom
- 132 m²
- Bruksareal
- 165 m²
Fasiliteter
Aircondition
Balkong/Terrasse
Bredbåndstilknytning
Garasje/P-plass
Kabel-TV
Peis/Ildsted
Utsikt
Turterreng
Beskrivelse
Mer informasjon kommer
NB: Knappen for å vise hele beskrivelsen har kun en visuell effekt.
NB: Knappen for å vise hele beskrivelsen har kun en visuell effekt.
Nærområdet
Eiendomsmegler 1 Midt-Telemark, Notodden og Nome
En del av Sparebank 1 Sør-Norge
Annonseinformasjon
| FINN-kode | 251639700 |
|---|---|
| Sist endret | 08. feb. 2024 09:10 |
| Referanse | 1414220019 |
Annonsene kan være mangelfulle i forhold til lovpålagt opplysningsplikt. Før bindende avtale inngås oppfordres interessenter til å innhente komplett informasjon fra meglerforetaket, selger eller utleier.
