Bildegalleri

Drag i Hamarøy

GRANITTVEIEN PÅ DRAG I HAMARØY

HUSBANKFINANSIERT LEILIGHET

Prisantydning3 350 000 kr
Totalpris
3 368 500 kr
Omkostninger
18 500 kr
Felleskost/mnd.
800 kr
Fellesgjeld
0 kr
  • Planlegging

    Alle planer er godkjent av kommunen

  • Salgsstart

    Planlagt november 2025

  • Byggestart

    Planlagt mai 2026

  • Overtakelse

    Planlagt mai 2027

Nøkkelinfo

Boligtype
Leilighet
Eieform
Eier (Selveier)
Soverom
2
Etasje
1
Energimerking
C
Internt bruksareal
66 m² (BRA-i)
Bruksareal
71 m²
Eksternt bruksareal
5 m² (BRA-e)
Balkong/Terrasse
9 m² (TBA)
Utendørsareal
1754 m²

Les mer om bruksareal her

Fasiliteter

Balansert ventilasjon
Balkong/Terrasse
Barnevennlig
Bredbåndstilknytning
Garasje/P-plass
Lademulighet
Offentlig vann/kloakk
Utsikt
Turterreng

Visning

Ta kontakt for å avtale visning.

Beskrivelse

Prosjekt og leilighetene i Granittveien

Området

Leilighetene ligger i et etablert område med nærhet til kultursenter Àrran og nytt omsorgssenter, fergeleie for overfart til Kjøpsvik og Narvik, dagligvarebutikk, drivstogg – og service stasjon, barn- og ungdomsskole, barnehage og andre. Det er også gode bussforbindelser på stedet.
I tillegg så finnes også en stor industribedrift på stedet med mange arbeidsplasser som produserer super ren kvarts for eksportmarkedet.

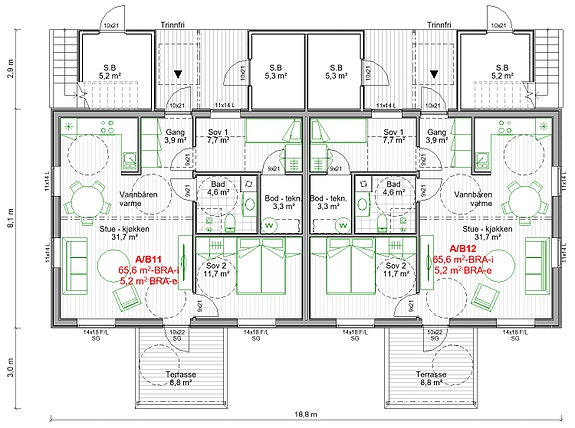
Leilighetene

Leilighetene realiserer i to bygg betegnet som hhv. A og B og er planlagt realisert slik at Bygg B bygges først og A deretter. Leilighetene leveres med åpen stue- og kjøkkenløsning, 2 soverom, bad/vaskerom, innvendig bod samt utvendig bod. Balkong og adkomstbalkong for leiligheter i 2.etg. lokalisert mot hhv. vest og øst. For leilighetene i 1.etg. er det tilsvarende, - men som terrasser.

Adkomst

Det opparbeides adkomst fra Granittveien inn på tomten.

Utvendig bygg

· Byggene oppføres på betongplate på mark og bindingsverk som bærekonstruksjoner sammen med selvbærende takstoler og limtredragere under etasjeskiller og i himlinger. Isolering av yttervegger iht. gjeldende forskrifter.
· Etasjeskiller og vertikale skiller mellom boenhetene med kvalitet som brann og lydskiller iht. gjeldende forskrifter.
· Saltak tekket med tekkes med røde takpanner enten av betong, tegl eller av metall.
· Vinduer er ferdig overflatebehandlet med hvit farge fra fabrikk og med isolasjonsevne iht. dagens forskrifter.
· Ytterdører er også ferdig overflatebehandlet fra fabrikk og i hvit farg og med isolasjonsevne iht. dagens forskrifter.
· Balkonger, utvendige trapper og terrasser leveres i impregnert utførelse uten overflatebehandling.

Innvendig leilighet

Kjøkken

· Innredning leveres av Møbelkjøkken fra Norema. Slette fronter i fargen beige eller lysegrå. Skuffer og skap m/demping. Benkeplate i laminat med nedfelt stålvask fra Franke. Integrerte hvitevarer fra Electrolux som stekeovn, platetopp, oppvaskmaskin og kjøl/frys. Ventilator i overskap av typen Crystal fra Røros.

Bad/Vaskerom

· Leveres med flis på gulv og våtroms plater på veggene. Det leveres 80 cm servantskap med skuffer fra Fossbad i hvit utførelse, og krom /stål håndtak, porselensservant og speil med ledlys. Det leveres toalett, - vegghengt eller gulvstående. Videre opplegg for vaskemaskin, dusjbatteri, dusjdører og gulvsluk.

Garderobe

· Leilighetene leveres med garderobeskap på 100 cm per sengeplass i hvit utførelse med heng og hyller. I gang leveres skyvedørsgarderobe av typen Langlo a 150 cm og høyde 240 cm i hvit utførelse.

Gulv

· Leilighetene leveres med laminat på stue/kjøkken, gang og soverom. Bad leveres med flis. Bod leveres med gulvbelegg.

Vegger/Himlinger

· Leveres av malte gipsplater i gang, stue/kjøkken og soverom. I bad /vaskerom blir himling levert tilsvarende og for vegger blir benyttet våtroms plater.

Dører

· Dører leveres ferdig malt fra fabrikk i hvit farge og med dempelist.

Oppvarming/Ventilasjon

· Leilighetene i 1.etg. blir utført med vannbåren gulvvarme i alle rom unntatt soverom, bad/vaskerom og bod. Bad/vaskerom får termostatregulerte elektriske varmekabler i gulv. Balansert ventilasjon med varmegjenvinning inngår. Det blir etabler elektrisk koplingspunkt for varmepumpe dersom boligkjøper ønsker å anskaffe dette i egen regi.

· Leilighetene i 2.etg blir utført med pipe og ovn for vedfyring. Balansert ventilasjon med varmegjenvinning inngår. Ellers blir alle rom unntatt bad/vaskerom samt bod utstyrt med elektriske panelovner. Bad/vaskerom får elektriske termostatstyrte varmekabler i gulv. Det blir etablert elektrisk koplingspunkt for varmegjenvinning i tilfelle boligkjøper ønsker å anskaffe dette i egen regi.

Elektriske installasjoner

· Leilighetene leveres med skjult elektriske anlegg i henhold til NEK-400-2010. Per dato er tilknytning av leveranser for internett og TV under avklaring, men kostnader for dette er estimert i budsjettet for prosjektet.

Belysning

· I entre/gang, bad og kjøkken samt i begge soverom leveres takplafonder.
· Led belysning over speil leveres av baderomsleverandøren men tilkopling utføres av el.installatør.
· I boder leveres også belysning i tak.

PARKERINGSPLASSER OG ANDRE UTENOMHUS ANLEGG

· Parkering: Det blir 16 parkeringsplasser hvor to plasser er reservert hver enkelt leilighet. Parkeringsplassen blir markert for hver enkelt leilighet. Parkeringsplassene får generell belysning samt mulighet for motor varmere el. til en bil. Om eier ønsker lademulighet for egen bil blir el. anlegget forberedt for det, men leilighetseier må selv bekoste og sørge for dette. Parkeringsplassen får også overvannsavrenning samt blir asfaltert.

· Interne veier: Fra Granittveien blir det opparbeidet vei for adkomst som blir anlagt over offentlig friområde og frem til Granittveien som er i tråd med tillatelse fra Hamarøy kommune.

· Grøntområder: Den del av tomten som ikke berøres av bygninger eller veier og plasser blir tilsådd som plen. Hvor det er mulig å ta vare på trær og busker vil disse bli beholdt som en del av grøntområde.

· Tilførsel av vann, avløp og strøm: Vann og avløp etableres i kommunalt anlegg i kum på sørsiden av Granittveien og ledningene legges i trase for adkomstvei. Det blir etabler nødvendige kummer og andre installasjoner for dette formålet. Når det gjelder tilførsel av strøm, internett ol. er Kystnett involvert i dette og har kommet med kostnadsestimat for denne tilførselen og som er medtatt i kostnadsbudsjettet for prosjektet.


FREMDRIFT/ LEVERINGSTIDSPUNKT

· Fysisk byggetid: Det regnes med en fysisks byggetid på 12 kalendermåneder.

· Byggestart: Så snart 3 av leilighetene i hvert bygg er solgt og kontraktsfestet.

Annen finansiering

Prosjektet er nå godkjent av Husbanken.

Godkjenningen av Husbanken innebærer at kjøper av leiligheten kan få innvilget et lån på inntil Kr. 3 015 000,-.

Vi vurdere å reduser prisen på hver enkelt leilighetene med
Kr. 100 000,-
dersom disse blir bindende forhåndsbestilt/reservert innen 15.12.2025 og at det da blir innbetalt et depositum på Kr. 20 000,- som vil inngå i kjøpesummen for leiligheten.
Dersom prosjektet ikke blir noe av pga. forhold som kan lasetes oss vil depositumet bli tilbakebetalt inkl. 5 % renter.

Nærområdet

Annonseinformasjon

FINN-kode434889088
Sist endret29. nov. 2025 10:29

Rapporter annonse

Annonsene kan være mangelfulle i forhold til lovpålagt opplysningsplikt. Før bindende avtale inngås oppfordres interessenter til å innhente komplett informasjon fra meglerforetaket, selger eller utleier.