Bildegalleri

Leiligheten har en meget effektiv planløsning, kommer høyt i bygget og har en meget fin intern beliggenhet

Ensjø / Malerhaugen / Fyrstikktorget

Grønvollkvartalet

Rålekker og moderne 2-roms selveier under oppføring! Tilbaketrukken beliggenhet! Sydøstvendt balkong på 6 kvm - Lave FK

Prisantydning5 500 000 kr
Totalpris
5 626 038 kr
Omkostninger
126 038 kr
Felleskost/mnd.
2 232 kr
  • Planlegging

    Høsten 2022

  • Salgsstart

    November 2022

  • Byggestart

    Q2 2024

  • Overtakelse

    Forventet fra 3. kvartal 2026

Nøkkelinfo

Boligtype
Leilighet
Eieform
Eier (Selveier)
Soverom
1
Rom
2
Etasje
5
Internt bruksareal
50 m² (BRA-i)
Bruksareal
50 m²
Balkong/Terrasse
6 m² (TBA)

Les mer om bruksareal her

Fasiliteter

Balkong/Terrasse
Kabel-TV
Heis
Offentlig vann/kloakk
Parkett
Vaktmester-/vektertjeneste
Sentralt
Bredbåndstilknytning
Moderne
Rolig
Balansert ventilasjon

Visning

Ta kontakt for å avtale visning.Visningspåmelding

Beskrivelse

Om eiendommen


Salg av kontraktsposisjon

Salget gjelder overdragelse av kontraktsposisjon med tilhørende rettigheter og forpliktelser til en bolig som ikke er fullført.  Det forutsettes at interessenter har satt seg grundig inn i den opprinnelige kjøpekontrakten med tilhørende vedlegg, før bud inngis. Kjøpekontrakt med vedlegg datert ligger vedlagt.


Prisantydningen som er oppgitt består av kjøpesum for boligen inkludert eventuelle tilvalg som kjøper 1 har bestilt hos utbygger (i hht. opprinnelig kontrakt), og kjøpesum for selve kontakten (merverdi). Merverdi til selger, kr kr 500 000, er prisantydning for kjøp av kontrakten, og det er denne som er utgangspunkt for budgivingen.


I tillegg kommer eventuelt transportgebyr og forskudd som første kjøper allerede har innbetalt til opprinnelig selger/utbygger.



Beskrivelse

Velkommen til Grønvollkvartalet - Her bygges en rålekker 2-roms selveierleilighet med meget sentral beliggenhet og kort vei til alt! Leiligheten ligger i et attraktivt område, skjermet fra trafikk og støy, men likevel bare en kort spasertur til alt du trenger.


Grønvollkvartalet blir et nyskapende nabolag plassert i krysningspunktet mellom stolte Oslo-tradisjoner og byens fremtid. Her finner du frodige uterom og lekre, energieffektive selveierleiligheter i en levende bydel. I Grønvollkvartalet får du Fyrstikktorget som nærmeste nabo og tilgang til hele Oslo med sykkel. Nabolaget har også ett av byens beste kollektivtilbud. Her kan du finne ditt hjem i et mangfoldig område som byr på både spillerom og hjerterom.


Leiligheten inneholder:
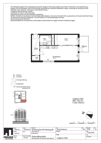
Romslig entré/gang, innvendig bod, bad, ett soverom, samt en lys stue med åpen kjøkkenløsning. Utgang fra stue til herlig sørøstvendt balkong på ca. 6 kvm.


Salgsobjektet er leilighet E504 i Grønvollkvartalet bygg E.


Planlagt overtagelse er Q3 2026.


Prosjektets hjemmeside: https://www.nordr.com/no/boliger-til-salgs/gronvollkvartalet/til-salgs


Øvrige kvaliteter:

  • Flott 2-roms selveierleilighet i 5. etasje
  • 5 års utbyggergaranti
  • Meget god og effektiv planløsning
  • 1-stavs eikeparkett på gulv
  • Bod i kjeller
  • Stort garasjeanlegg i prosjektet med mulighet for kjøp/leie av plass senere
  • Flotte utearealer og parkdrag
  • Høyhastighets fibernett
  • Felles takterrasse
  • Moderne kjøkkeninnredning fra Sigdal
  • Balansert ventilasjonsanlegg i alle rom


Leveransebeskrivelse

Prosjekteres og utføres iht. TEK17


GULV

  • Tørre rom får 1-stavs 145 mm lamellparkett i natur eik med en livlig fargevariasjon og trestruktur. Kviststørrelse på opptil 50 mm kan forekomme, likeledes kan små sparklede endesprekker  forekomme. Parketten har en børstet overflate som får frem treets naturlige struktur og den matte lakken gir et oljeaktig utseende.

  • Bad får en strukturert mellomgrå keramisk flis 30x30 cm. I dusjsonen blir flisformatet 5x5 cm.
  • På WC-rom/vaskerom leveres keramisk flis.

VEGGER

  • Tørre rom, inkludert WC sparkles og males i fargekode NCS S 1502-Y glans 05.
  • Bad får en strukturert mellomgrå keramisk flis 30x60 cm.

TAK

  • Himling i betongelementer med synlig elementskjøt malt i fargekode NCS S 0500-N glans 03. Ingen taklister.
  • Gang leveres med nedforede malte gipshimlinger med innfelte downlights.
  • I bod leveres malt gipshimling, eller nedforet systemhimling.
  • Prefabrikerte bad leveres med himling i hvitmalte metallplater med innfelte downlights med dimmer.

KJØKKEN

  • Kjøkkeninnredning fra Sigdal modell Uno i fargen Frø (5613-Y10R). Håndtak i antrasitt metall og benkeplate i laminat type Rusten Metall 20 mm med underlimt vask og ettgreps blandebatteri.
  • Kjøkkeninnredningen har høyde 228 cm, og det leveres foring og gipsinnkassing over hele innredningen mot tak. Gipsinnkassingen males i veggens farge.
  • Det leveres LED-spoter under overskap. Ventilator volumhette i stål og veggmontert komfyrvakt leveres.
  • Kjøkken leveres med integrerte hvitevarer fra Gorenje; kjøl/frys, platetopp, stekeovn og oppvaskmaskin.

BAD

  • Badene leveres som ferdige kabiner som produseres på fabrikk og fraktes til byggeplass. Badene leveres med fliser på vegger og gulv og himling i hvitlakkerte metallplater med integrerte downlights. I de fleste hovedbad leveres 80 cm skuffinnredning med eikemønstret front og heldekkende støpt servantplate som går fra vegg til vegg. Under servantplaten er det satt av plass, og lagt opp strøm, vann og avløp til vaskemaskin og tørketrommel på hver side av innredningen. Over innredningen leveres speil med integrert belysning. Dusjvegger i glass og klosett i hvitt

porselen. Noen bad i 2-romsleilighetene i Hus E får en annen utforming med 60cm innredningog avsatt plass for vask/tørk søyle.

  • Der hvor det er et ekstra bad leveres 60 cm. innredning med eikemønstret front, servanttopplate, og speil med belysning på vegg og dusjvegger i glass og klosett i hvitt porselen.

WC ROM/ VASKEROM

  • Gulv flislegges - det leveres ikke gulvvarme. Vegger sparkles og males. På WC leveres hvit porselensservant og speil med belysning på vegg, samt klosett i hvitt porselen. I vaskerom leveres skyllekum på vegg.

ROMHØYDE

  • Stue/kjøkken og de fleste soverom uten tekniske installasjoner i tak får en netto takhøyde på ca. 250 cm. På grunn av tekniske installasjoner i himling vil enkelte rom få nedforet himling eller innkassing langs tak/vegg. Typiske eksempler på dette er bad, WC, hall/gang og kjøkken.
  • Generell takhøyde ved nedforing er 220 cm.

DØRER OG VINDUER

  • Plassering og utforming av vinduer kan variere i samme leilighetstype, og vi oppfordrer kjøpere til å sette seg inn i hvordan vindusløsningen blir i den enkelte leilighet. Vinduer med fastfelt er markert med en F på plantegningene, men vi tar forbehold om endringer på dette i detaljprosjekteringen.
  • Innerdører leveres med slette lettdører i hvitmalt utførelse med dempekarm. Dør mellom gang og stue får glassfelt. Terskel i natur eik. Innvendige foringer og belistning (gerikter) rundt dører og vinduer i hvitmalt utførelse med synlig festestift.
  • Leilighetens inngangsdør leveres med FG-godkjent lås og kikkehull.
  • Vinduer leveres med fabrikkmalt hvit karm innvendig. Utvendig blir vinduene mantlet med lakkert aluminium som er en tilnærmet vedlikeholdsfri løsning.
  • Solskjerming i form av utvendige motoriserte screens leveres på solutsatte vinduer iht. krav, hovedsakelig mot vest og syd, men ikke alle vinduer i disse retninger får solskjerming.
  • Sprinklerhoder i henhold til myndighetskrav.

ELEKTRO

  • Elektro leveres i henhold til NEK 400.
  • Utvendig stikk og lysarmatur på balkong.
  • Hver leilighet får sikringsskap med automatsikringer.
  • Smarthus integrasjon med styring av lys og varme,

X-comfort bridge (styreenhet) og trådløse brytere som festes rett på veggen uten veggboks. Utvidelse


BALKONGER

  • Balkongdekke i tre. Avrenning fra balkong gjennom føringer. sluk og utvendig nedløp som kommer innenfor balkongens areal eller på fasade.
  • Rekkverk i glass og pulverlakkert metall.

INTERNETT OG TV

  • Prosjektet leveres med abonnement på en grunnpakke for bredbånd. Oppgradering av hastighet og bestilling av TV strømmetjenester bestilles av den enkelte etter ønske.

RINGEKLOKKE

  • Det leveres callinganlegg for porttelefon med video for bredbånd. Oppgradering av hastighet og bestilling av for fjernåpning fra hver leilighet. I tillegg leveres ringeknapp ved inngangsdør til hver leilighet.

VENTILASJON

  • Det blir balansert ventilasjon med varme- gjenvinner med felles ventilasjonsaggregat iht. tekniske forskrifter, med avtrekk fra kjøkken og bad. Alle ventilasjonskanaler legges skjult/innkasset.
  • Avtrekkshette i kjøkken har effektregulator for økt avtrekk ved matlaging.
  • Innvendige dører har spalte mot terskel av hensyn til luftgjennomstrømning.

VARMTVANN OG OPPVARMING

  • Prosjektet tilknyttes fjernvarme for tappevann og luftgjennomstrømning og oppvarming med termostatstyrte radiatorer og  vannbåren gulvvarme i bad. WC får ikke gulvvarme.

Plassering av radiatorer er vist på plantegningene med en R - vi må imidlertid ta uttrykkelig forbehold om at det kan bli justering av plassering under detalj- prosjekteringen. Forbruk av vann blir målt slik at man betaler kun for eget forbruk.



Arealer

Totalt bruksareal: 50,5 m²

  • BRA-i: 50,5 m²
  • BRA-e:  m²

I tillegg kommer TBA (terrasse-/balkongareal): 6,0 m²


Arealbeskrivelse

Leilighet beliggende i byggets 5. etasje. Adkomst via heis. Oppgangen har dørcalling med video.


Inneholder: Entré, bod, bad, soverom og stue med åpen kjøkkenløsning. Utgang fra stue til sydøstvendt balkong på 6 kvm.


Det medølger en bod i kjeller.


Oppvarming og energimerking

Prosjektet tilknyttes fjernvarme for tappevann og luftgjennomstrømning og oppvarming med termostatstyrte radiatorer og  vannbåren gulvvarme i bad. WC får ikke gulvvarme.


Plassering av radiatorer er vist på plantegningene med en R - vi må imidlertid ta uttrykkelig forbehold om at det kan bli justering av plassering under detalj- prosjekteringen. Forbruk av vann blir målt slik at man betaler kun for eget forbruk.


Energimerking gir relevant informasjon om hvor energieffektiv boligen er. Energiattester vil bli utarbeidet av selger etter at  detaljprosjekteringen er gjennomført, og utleveres ved overtakelse av boligen. Energiattesten skal dokumenter at man minst tilfredsstiller kategori C. Se www.energimerkeing.no for mer informasjon om

energimerking av boliger.


Dersom rom for varig opphold ikke har vegg- eller fastmonterte varmekilder ved visning følger dette heller ikke med.


Energiattest med energimerke  Ingen er vedlagt salgsoppgaven.


Tekniske installasjoner og VVS

For mer info, se prospekt fra utbygger som ligger vedlagt til salgsoppgaven.


Tomten

Prosjektet Grønvollkvartalet bygges på eiet tomt på ca. 15.000 kvm. Selger tar forbehold om tomten størrelse inntil inntil oppmålingsforretning er gjennomført.


Prosjektet vil bestå av ca. 400 leiligheter fordelt på 5 bygg, ca. 1.800 kvm næringsarealer, et nærmiljølokale på 300 bygg, ca. 1.800 kvm næringsarealer, et nærmiljølokale på 300 kvm. samt muligheter for at det etableres en 4 avdelingers kvm. I tillegg inneholder prosjektet en underjordisk kjelleretasje.

Første byggetrinn omfatter 109 leiligheter i Hus A (63 stk.)


Hvert bygg/blokk som inngår i prosjektet, vil få et tomteareal som ikke er mye større enn «fotavtrykket» til det enkelte sameies bygningsmasse.

Utomhusarealet som blir mellom bebyggelsen (mellom byggene/blokkene), heretter vil eies og disponeres i et tingsrettslig sameie av eierseksjonssameiene som inngår i/ utgjør prosjektet. De nærmere regler om disponering, kostnadsfordeling osv. knyttet til uteeiendommen vil bli regulert i vedtekter for Grønvollkvartalet Utomhussameie. Utkast til vedtekter vil bli utarbeidet. Selger tar forbehold om endringer.


Parkering

Det medfølger ikke garasjeplass med denne leiligheten.


Under deler av den nye bebyggelsen etableres det et garasjeanlegg med ca. 148 parkeringsplasser. Parkeringsplassene er planlagt organisert i en egen anleggseiendom. Anleggseiendommen eies med ideelle andeler av de som erverver p-plass i garasjeanlegget.


Parkeringskjeller kan kun benyttes til parkering av bil av dem som har ervervet slik rett. Parkeringsplass leveres med infrastruktur for lastestyrt ladepunkt for elbil. Fri kjørehøyde i garasjen skal være 215 cm i kjørebaner, for øvrig kan det forekomme områder med lavere høyde.

Det blir midlertidig kjøreadkomst via parkeringsanlegg i Grensesvingen 7 inntil permanent innkjøring til garasjeanlegg er ferdigstilt.


Det vil ikke bli etablert gjesteparkeringer.


Beliggenhet


Skole og barnehage

Dersom skole- og barnehagetilbud er av betydning for kjøpet, må interessenter selv sjekke dette med skolesjefens kontor. Se nabolagsprofilen i salgsoppgavens vedleggsdel, for oversikt over andre skoler og barnehager i nærheten.


Adkomst

Ved å trykke på kartet i annonsen får du enkelt tilgang til en spesifisert reiserute fra ønsket startdestinasjon til den aktuelle boligen. Det vil bli skiltet med EIE visningsskilt ved fellesvisninger.


Områdebeskrivelse

Urbant nærområde:

Grønvollkvartalet ligger nær både Helsfyr, Ensjøbyen, Valle og Etterstad. Fem minutter på sykkel fører deg til Vålerenga, Kampen og Jordal i én retning, og Hasle og LilleTøyen i en annen. Byggene i områdene rundt har blitt oppført fra 1800-tallet og fram til i dag.


Nærmeste naboer er Fyrstikkalleen skole, Grønvoll Gård, Fyrstikktorget og Grønvoll hageby. Liker du fotball kan det være fint å vite at det er bare noen minutter å gå til Intility Arena. Det blir også etablert et nytt park- og grøntområde mellom Grønvoll Gård og Grønvoll hageby, som du vil ha umiddelbar tilgang til.


Inne i selve Grønvollkvartalet vil man finne et nærmiljølokale og sykkelverksted. Det vil bli næringslokaler på gateplan i noen av byggene, og de vil vende ut mot en hyggelig ny gågate.


Kort vei til det meste:

Grønvollkvartalet ligger bare et par minutters gange fra ett av Oslos best betjente kollektivknutepunkt. På Helsfyr bussterminal har du blant annet tilgang til 37 og 21 bussen og T-banelinje 1, 2, 3, 4 og 5. Her kommer du deg enkelt til Oslo sentrum på kun 8 minutter.


Nye grøntområder:

Når Grønvollkvartalet er ferdig vil den store felleshagen og de grønne takene tilføre nabolaget nye store grøntområder som ikke har vært der tidligere. Den nye bebyggelsen frigjør 2.900 kvm. på bakkeplan, og prosjektet øker andelen grønt areal på tomten fra dagens 4% til hele 44%, inkludert grønne arealer på takterrassene.

Beplantingen blir et variert utvalg av trær, busker og stauder, med pryd og nytteverdi gjennom årstidene. Det blir plantet trær som skal bli høye, og trær med ulike farger på blader og blomster. I gårdsrommet blir det plass til felles frukttrær med både eple og pære. Det blir plantet en masse stauder i ulike former og fasonger.


De ulike staudene vil blomstre gjennom hele sesongen og være mat for bier og andre pollinatorer. På takhagene blir det både plantet store busker og stauder, og avsatt plass til urban dyrkning for beboerne på Grønvollkvartalet.



Økonomi


Eiendomsskatt

Det er eiendomsskatt i Oslo kommune.


Bunnfradraget i Oslo er i 2025 på inntil 4,7 millioner kroner for bolig og fritidsboliger. Skattesatsen er 2,35 promille av eiendomsskattegrunnlaget. For mer informasjon se: https://www.oslo.kommune.no/skatt-og-naring/skatt-og-avgift/eiendomsskatt/hvor-mye-skal-du-betale-i-eiendomsskatt/.


Faktura for eiendomsskatt sendes den som er registrert eier av eiendommen på faktureringstidspunktet. Ved eierskifte må kjøper og selger gjøre opp betalingen av eiendomsskatten seg i mellom.


Kommunale avgifter

Kommunale avgifter vil faktureres terminvis fra kommunen, etter den til enhver tid gjeldende takst. Utgifter til disse er inkludert i de månedlige felleskostnadene.


Fellesutgifter

Fellesutgiftene utgjør kr. 2 232,- pr. mnd. og inkluderer: 

Drift av sameiet, herunder lønn- og styrehonorarer, strøm og varme fellesarealer, noe avsetning til vedlikehold, forretningsførsel, revisjon, forsikring og internett basisabonnement.


Felleskostnader er stipulert basert på erfaring fra sammenlignbare prosjekter basert på budsjett utarbeidet av forretningsfører. Kostnader til drift og vedlikehold av sameiets fellesarealer påhviler sameierne i felleskap i henhold til de enkelte sameiebrøker. For enkelte utgifter kan fordelingen være lik mellom seksjonene uavhengig av eierbrøken. Eksempler på dette kan være kollektive

abonnementer, administrative kostnader, herunder arbeidsgiveravgift, og forretningsførerhonorarer.

Felleskostnadene vil avhenge av hvilke tjenester sameiet ønsker utført i felles regi.


Månedlige felleskostnader er ut fra dagens forutsetninger antatt å utgjøre kr. 42,- pr. kvm. BRA pr. måned + kr. 312,-/ mnd. i likedelte kostnader. I tillegg kommer abonnement for grunnpakke bredbånd med ca. 239-/mnd.


Estimerte fellesutgifter omfatter følgende poster med flere: Drift av sameiet, herunder lønn- og styrehonorarer, strøm og varme fellesarealer, noe avsetning til vedlikehold, forretningsførsel, revisjon, forsikring og internett basisabonnement.


Utbygger har estimert at seksjoner med garasjeplass betaler kr. 250,- i tillegg pr. garasjeplass per måned. Det legges opp til at sameiet inngår avtale om levering internettjenester med egnet leverandør. En slik avtale vil normalt ha bindingstid på 3-5 år og kan inngås av utbygger før sameiet er satt i drift. Det blir mulighet for den enkelte seksjonseier å utvide pakken for egen regning.


Varmtvann, oppvarming, og eiendomsskatt for den enkelte seksjon er ikke inkludert i fellesutgiftene.


Det vil bli innkrevd et månedlig á-konto beløp for fjernvarme. Det presiseres at ovennevnte summer er omtrentlige anslag og at endelige summer vil kunne avvike fra anslagene



Andre løpende kostnader

Ny eier må belage seg på bl.a. følgende løpende tilleggsutgifter:

Strømforbruk, forbruk av vv. og fyring - se info om felleskostnader.

Eiendommen vil ha forsikring i felleskostnader, mens innboforsikring må man dekke selv.

Det er kun basispakke med kabel-tv og internett, oppgraderinger av hastighet og tvpakker belastes enhver seksjonseier.


Formuesverdi

Formuesverdien er ikke fastsatt, men fastsettes av Skatteetaten etter en beregningsmodell som hensyntar om boligen er "primærbolig"; (der eier er bosatt iht. Folkeregisteret) eller "sekundærbolig"; (andre boliger man eier).


Formuesverdi for skatteåret 2024 var for primærbolig 25 % av markedsverdien opp til kr. 10 000 000 og deretter 70 % av den overskytende markedsverdien, og 100 % for sekundærboliger. Det gjøres oppmerksom på at kjøper selv må sende inn opplysninger om adresse, areal, boligtype og byggeår til skattemyndighetene.


Det tas forbehold om endring av satser, og henvises til Skatteetatens websider dersom ytterligere informasjon er ønskelig.


Sameiet

Sameiet er ikke opprettet. Dette vil bli opprettet av utbygger i forbindelse med overtakelse. Sameiets formål er å ivareta alle saker av felles interesse for sameierne, som å sørge for drift og vedlikehold av felles infrastruktur og installasjoner. Dette kan være vedlikehold av felles veier, adkomstarealer og andre fellesarealer. Videre å sørge for brøyting, renovasjon, strøm til fellesarealer, drift av fjernvarmeanlegg mv. samt sørge for tilstrekkelig forretningsførsel og at sameiets bygningsmasse er tilstrekkelig forsikret. Kostnader til dette, kommunale avgifter og andre relevante kostnader for fellesarealer, installasjoner og drift, vil fordeles på bakgrunn av eierbrøk, samt en fast sum pr. leilighet. Kostnader knyttet til den enkelte eierseksjon slik som f.eks. vedlikehold, strøm, varmtvann, oppvarming, og

eiendomsskatt, må dekkes av seksjonseier. Se for øvrig punktet "Felleskostnader.


Vedtekter for sameiet

Utkast til vedtekter for sameiet er utarbeidet. Utkast kan fås ved henvendelse til selger. Utbygger forbeholder seg retten til å foreta endringer i vedtektene. Gjennom årsmøte i sameie kan vedtektene endres om vilkårene for dette er oppfylt.


Vedtekter og ordensregler ligger vedlagt salgsoppgaven.


Prosjektet er tenkt oppdelt i flere eierseksjonssameier i samsvar med eierseksjonsloven. Kjøper får tinglyst skjøte til sin seksjon. Seksjonsnummer blir tildelt i forbindelse med seksjoneringen.


Som seksjonseier i et eierseksjonssameie vil kjøper bli sameier i en eiendom med tilhørende enerett til bruk av sin boenhet. Eventuelle privat uteområde/tilhørende hageparsell, balkong/terrasser er planlagt seksjonert som tilleggsdel til hver enkelt seksjon. Det er planlagt etablert et eget tingsrettslig sameie for næringsseksjonen som omfatter parkeringsanlegget.


Seksjonseiere som har ervervet parkeringsplass blir enten personlige sameiere i dette eller gjennom et realsameie hvor den eierandelen i sameiet knyttes opp mot boligseksjonen som tilbehør til denne jf. avhendingslovens § 3-4 annet ledd bokstav d. Det vil bli utarbeidet egne vedtekter for garasjesameiet. Disse vil regulere utleie og videresalg ved at garasjeplass kan, dersom den ikke skal følge boligseksjonen ved videresalg, kun overdras/selges til andre eiere av boligseksjoner i Sameiet. Den kan videre kun leies ut sammen med boligseksjonen eller til andre eiere av boligseksjoner i Sameiet.


Selger forbeholder seg imidlertid retten til å organisere slike eneretter annerledes enn det som er oppgitt ovenfor, eksempelvis ved bruksretter eller gjennom vedtektene. Seksjonseierne får felles bruksrett til sameiets øvrige fellesareal og installasjoner.


Sameiet ledes av et styre valgt av seksjonseierne. Styret vil bli valgt i forbindelse med et konstituerende sameiermøte som utbygger vil arrangere i forbindelse med ferdigstillelse.


Ingen kan direkte eller indirekte erverve mer enn to

boligseksjoner i et boligsameie jf. eierseksjonsloven §23.

Dersom et erverv har funnet sted i strid med

eierseksjonslovens regler kan Kartverket nekte

overskjøting. Dersom overskjøting blir nektet, er kjøper

likevel forpliktet til å gjennomføre handelen med selger,

og oppgjør til selger vil finne sted tross manglende

overskjøting.


Det gjøres oppmerksom på at ingen kan kjøpe eller på annen måte erverve flere enn 2 boligseksjoner i samme eierseksjonssameie, jf. lov om eierseksjoner.



Forsikring

Frem til overtakelsen vil eiendommen være forsikret av utbygger. Etter overtakelse vil eiendommen forsikres gjennom sameiets fellesforsikring. Forretningsfører vil etablere forsikring på vegne av eierseksjonssameiet.

Kjøper må selv besørge innboforsikring.



Offentlige forhold


Midlertidig brukstillatelse og ferdigattest

Ferdigattest eller midlertidig brukstillatelse skal foreligge før overtagelse kan finne sted. Selger vil sørge for at det foreligger brukstillatelse ved overtakelse. Av erfaring vil det normalt kun bli utstedt midlertidig brukstillatelse ved overtagelse. I et slikt tilfelle vil sameiets nye styre eller den enkelte kjøper holder tilbake deler av kjøpesummen for å sikre ferdigstillelse av eventuelle gjenstående arbeider og at ferdigattest blir utstedt. Det er selgers ansvar å sørge at ferdigattest blir utstedt.


I det tilfelle at ferdigattest eller midlertidig brukstillatelse ikke er dokumentert utstedt ved overtakelse, anbefales det at overtagelse utsettes og at kjøper ikke overtar. Velger kjøper likevel å overta er det ulovlig å bebo/ta boligen i bruk. Å bebo uten brukstillatelse kan medføre krav om utflytting og evt. bøter fra kommunen. Ved å velge å overta stopper evt. krav om dagbøter.



Regulering

Rammetillatelse er gitt.

Eiendommen er regulert til formål Bolig/forretning/

barnehage/annen offentlig eller privat tjenesteyting,

nærmiljølokale, helse, velvære, kultur, virksomheter med

allmennyttige formål, kontor/bevertning.


Det gjørs oppmerksom på at området er under utvikling og at det må forventes mye bygging i nærområdet i tiden fremover.



Vei, vann og kloakk

Eiendommen har adkomst via offentlig vei.Eiendommen er tilknyttet kommunalt ledningsnett via private stikkledninger. Eier er selv ansvarlig for private stikkledninger til bygningen.


Rettigheter og heftelser

Servitutter/heftelser /rettigheter/ forpliktelser

De servituttene som i dag er tinglyst på eiendommen,

følger med ved salg.


Grunnboksutskriftene for eiendommene viser følgende

tinglyste servitutter. Servitutter som ikke slettes følger

eiendommen.


Fra hovedbølet som eiendommen er fradelt fra, kan det

være tinglyst servitutter som erklæringer/avtaler som kan

få betydning for denne eiendommen.

Kjøper må akseptere at det på eiendommen tinglyses

ytterligere servitutter/heftelser dersom offentlig

myndighet krever det. Slike servitutter/heftelser kan være erklæringer som regulerer drift og vedlikehold av

fellesområder, drift og vedlikehold av energi/nettverk el.


Heftelser

Tinglyste panteheftelser vil bli slettet for utbyggers regning i forbindelse med overtakelse, dog slik at øvrige sameiere vil ha lovbestemt panterett i boligen for krav som følger av sameieforholdet for et beløp som svarer til to ganger olketrygdens grunnbeløp, jf. lov om eierseksjoner § 31.


Servitutter tinglyst i eiendommene per signering av en kjøpekontrakt vil ikke bli slettet. Utbygger forbeholder seg rett til å tinglyse de erklæringer som plan- og bygningsmyndighetene eller andre (inkludert utbygger) måtte ønske og som er nødvendige for hensiktsmessig å kunne gjennomføre utbyggingen av eiendommen. Herunder vil følgende rettigheter bli tinglyst til fordel for naboeiendommen, Grensesvingen 7:


14736-2/105 09.12.1958 Bestemmelse om vann/kloakkledning

15339-3/105 06.12.1960 Bestemmelse om bebyggelse

7762-1/105 23.06.1961 Bestemmelse om bebyggelse

1101053-2/200 28.11.2016 Diverse påtegning

2214-1/105 15.02.1967 Bestemmelse om vannledning

16911-1/105 30.11.1967 Bestemmelse om adkomstrett

9780-1/105 01.07.1968 Erklæring / avtale

Bestemmelse om trafostasjon kiosk

16660-1/105 09.10.1969 Erklæring / avtale

Byggeforbud på nærmere angitt avstand og rett for kommunen til å anlegge og

vedlikeholde ledninger.

59958-1/105 01.10.1985 Bestemmelse om vann/kloakkledning

64653-1/105 17.10.1997 Erklæring / avtale

Bestemmelse om fjernvarmerør

762806-2/200 24.08.2015 Bestemmelse om adkomstrett

747303-1/200 19.08.2016 Bestemmelse om veg

Plikt til fremtidig vederlagsfri avståelse av grunn til Oslo kommune.

1177932-1/200 19.12.2016 Erklæring / avtale

Rett til bruk av nødvendig grunn for reparasjon og vedlikehold av bebyggelse

48016-1/200 16.01.2017 Bestemmelse om veg

82463-1/200 01.07.2021 Bestemmelse om adkomstrett

261-1/105 09.01.1959 Bestemmelse om vann/kloakkledning

50250-1/105 28.07.1988 Bestemmelse om adkomstrett

8941-1/105 16.02.1988 Erklæring / avtale

Bestemmelse om anlegg og vedlikehold av fjernvarmerør

802463-1/200 01.07.2021 Bestemmelse om adkomstrett



Utleie

Eiendommen har ikke separat utleiedel, men normalt vil det være anledning til å leie ut hele eller deler av eiendommen, så sant utleiearealet er godkjent for varig opphold og har forsvarlige radonverdier.


Radon

Det gjøres oppmerksom på at det ved utleie er krav til å gjennomføre radonmåling, og at forsvarlige nivåer skal kunne dokumenteres. Kravet gjelder alle typer utleieboliger, inkludert leiligheter og hybler i tilknytning til egen bolig, såfremt det betales husleie.


Kjøpsvilkår


Totalpris inkl. omkostninger

Prisantydning kr 5 500 000,-


Som fordeler seg slik:

Opprinnelig kjøpesum kr 5 000 000,-

Merverdi kr 500 000,-


I tillegg til prisantydning påløper følgende omkostninger:

Dokumentavgift kr 20 200,00,-

Pantattest kjøper kr 260,00,-

Tingl.gebyr pantedokument kr 585,00,-

Tingl.gebyr skjøte kr 585,00,-

Startkapital nytt sameie kr 5 190,00,-

Transportgebyr kjøper kr 100 000,00,-


Totalpris inkl. omkostninger kr 5 626 820,-


Det ovenstående forutsetter at eiendommen selges til prisantydning og at det kun tinglyses ett pantedokument. Det tas forbehold om endringer i offentlige gebyr.


Totalpris inkl. omkostninger

Prisantydning kr 5 500 000,-


Prisantydningen fordeler seg slik:

Opprinnelig kjøpesum kr 5 000 000,-

Merverdi kr 500 000,-


I tillegg til prisantydning og ev. fellesgjeld påløper følgende omkostninger:

Dokumentavgift kr 20 200,00,-

Pantattest kjøper kr 260,00,-

Tingl.gebyr pantedokument kr 585,00,-

Tingl.gebyr skjøte kr 585,00,-

Startkapital nytt sameie kr 5 190,00,-

Transportgebyr kjøper kr 100 000,00,-


Totalpris inkl. omkostninger og ev. fellesgjeld kr 5 626 820,-


Det ovenstående forutsetter at eiendommen selges til prisantydning og at det kun tinglyses ett pantedokument. Av denne summen utgjør kr. ,- andel fellesgjeld som vil følge andelen, men som ikke skal innbetales med oppgjøret. Det tas forbehold om endringer i offentlige gebyr.


Kjøpekontrakt og overtakelse

Ved kjøp av en kontraktsposisjon trer kjøper inn i avtalen som selger (kjøper1) har gjort med utbygger/entreprenør om rett til fast eiendom med bolig under oppføring. Overtakelse av boligen reguleres av den kontrakten kjøper trer inn i.


Partene er forpliktet til å signere kjøpekontrakt utarbeidet av eiendomsmeglerforetaket rett etter aksept av bud. Kjøpekontrakten kan besiktiges hos eiendomsmegler før bud inngis. 


Garanti

Det er stilt entreprenørgaranti i tråd med bustadoppføringsloven § 12 beregnet av opprinnelig kjøpesum. Det blir ikke stilt ny garanti beregnet av merverdien. Frem til overtakelse skal garantien være på 3 % av vederlaget. Fra overtakelse og frem til 5 år etter overtakelse skal garantien dekke en sum som svarer til 5 % av vederlaget i opprinnelig kjøpekontrakt (kjøpekontrakt mellom utbygger og kjøper 1).


Utbygger har stilt garanti etter bustadoppføringsloven § 47 for forskudd.


Budgivning

Eiendomsmegler skal legge til rette for en forsvarlig avvikling av budrunden. Vi gjør oppmerksom på at det i forbrukerforhold ikke kan inngis bud med kortere akseptfrist enn kl. 12.00 første virkedag etter siste annonserte visning. Eiendomsmegler kan ikke formidle bud med kortere akseptfrist enn dette. Hos EIE stiller vi strengere krav til frister ved budgivning enn det som følger av Forbrukerinformasjon om budgivning, vedlagt i salgsoppgaven. Bud skal ikke ha en akseptfrist på mindre enn 30 minutter fra budet inngis. Bud med kortere akseptfrist enn 30 minutter kan bli avvist.


Eiendomsmegler har ikke ansvar for forsinkelser som skyldes tekniske feil. Akseptfristen er absolutt, det vil si at selger må akseptere budet og kjøper meddeles aksepten innen utløpet av akseptfristen. Dersom du utsetter inngivelse av bud til tett opp mot akseptfristen på et annet bud er det en reell fare for at eiendommen kan bli solgt før ditt bud kommer frem til megler og/eller megler rekker å bringe budet videre til selger. Husk alltid å ringe megler etter at du har sendt et bud eller budforhøyelse, for å forsikre deg om at budet er mottatt og kan formidles til selger. For øvrig vises det til vedlagte forbrukerinformasjon om budgivning.


Alle bud og budforhøyelser skal være skriftlig. I tillegg må legitimasjon være fremlagt, og budet skal signeres av budgiver. Eiendomsmegler kan ikke formidle bud før disse kravene er oppfylt. Vi oppfordrer til å inngi bud elektronisk, ved å trykke på "Gå til budgivning" på eiendommens hjemmeside på eie.no eller ved å trykke på knappen "Gi bud" i hjem/finn-annonsen. Ved å benytte denne tjenesten vil vilkårene om legitimasjon og signatur fra budgiver være oppfylt.


Eiendomsmegler kan ikke formidle bud med forbehold om at bud eller forhold i bud skal holdes skjult for andre budgivere og interessenter.


Eiendomsmegler skal kontrollere budgiverens finansiering før handel sluttes.


Som kjøper og selger hos EIE vil du få tilsendt budjournalen etter at handel er inngått. Dette innebærer at alle bud vil bli gjort kjent for partene i den endelige kjøpsavtalen. Øvrige budgivere kan be om å få en kopi av budjournalen i anonymisert form.


Det er viktig at du gjør deg kjent med all informasjon om boligen, og at du har spurt om det du eventuelt lurer på, før du legger inn et bud.


Prisantydningen som er oppgitt består av kjøpesum for boligen inkludert eventuelle tilvalg som kjøper 1 har bestilt hos utbygger (i hht. opprinnelig kontrakt), og kjøpesum for selve kontakten (merverdi). Merverdi til selger, kr kr 500 000, er prisantydning for kjøp av kontrakten, og det er denne som er utgangspunkt for budgivingen.


Lovanvendelse

Avtalen mellom kjøper 1 (selger av kontraktsposisjon) og kjøper 2 (ny kjøper), blir regulert av avhendings- og kjøpsloven. Den underliggende kontrakten som kjøper 2 trer inn i, blir regulert av bustadoppføringsloven.


Uautorisert kopiering eller gjenbruk av all tekst og alle bilder i denne annonse/salgsoppgave er ikke tillatt.


Personvern

Som interessent, budgiver og kjøper vil dine personopplysninger bli registrert og lagret for videre oppfølging. Som eiendomsmeglingsforetak har vi plikt til å oppbevare kontrakter og dokumenter i minst 10 år, jf. eiendomsmeglingsforskriften. Mulighetene for å få slettet personopplysninger er derfor begrenset. Les mer om EIE`s behandling av personopplysninger i vår personvernerklæring på eie.no/personvern


Hvitvasking

Eiendomsmeglere er underlagt lov om hvitvasking og tilhørende forskrift, som pålegger oss å gjennomføre kundekontroll av selger og kjøper, herunder fullmektiger. Slike kontrolltiltak vil i praksis gjøres ved å bekrefte våre kunders og reelle rettighetshaveres identitet, samt å innhente informasjon knyttet til handelens formål og tilsiktede art.


Dersom kjøper ikke bidrar til dette, og det medfører at transaksjonen ikke kan gjennomføres eller blir forsinket, misligholder kjøper avtalen. Dette vil kunne gi selger rettigheter etter avhendingsloven, herunder rett til å heve kjøpet og gjennomføre dekningssalg for kjøpers regning dersom misligholdet er vesentlig.


I tilfeller der det er selger som ikke bidrar til at megler får gjennomført løpende kontrolltiltak underveis i oppdraget må megler stanse gjennomføringen av transaksjonen. Selger vil i så fall ha misligholdt sine forpliktelser, og kjøper vil kunne ha krav mot selger etter avhendingslovens bestemmelser om mislighold og forsinkelse.


Dersom nødvendige kontrolltiltak ikke lar seg gjennomføre vil EIE eiendomsmegling ikke kunne bistå med handelen eller foreta oppgjør.


Meglers vederlag

Følgende er avtalt om meglers vederlag, og skal betales av selger:


Selger skal betale utlegg i samsvar med oppdragsavtalen. stipulert til ca. kr. 44 200.

Samlet skal selger betale ca. kr. 87.650,- for vederlag og utlegg ved salg til prisantydning.


Dersom handel ikke kommer i stand eller oppdraget sies opp, har oppdragstaker krav på rimelig vederlag for medgått tid/utført arbeid og avtalte utgifter (utgifter til påløpte visninger, innhenting av opplysninger, markedspakke og tilrettelegging), samt eventuelle utlegg. Ved beregning av vederlaget tas det utgangspunkt i timespris på oppdraget. Alle priser er inkl. mva.


Om oppdraget

Oppdr.nr: 91250220

Ansvarlig megler: Granit Zumberi


EIE Ensjø

Ensjø Eiendomsmegling AS

NO 921 542 690 MVA


Produkter eller tjenester som tilbys partene i forbindelse med oppdraget

Meglerforetaket og EIE-kjeden har flere samarbeidspartnere som tilbyr produkter eller tjenester i forbindelse med gjennomføring av megleroppdraget.


Dette gjelder følgende:

  • Gjensidige forsikring tilbyr boligselger- og boligkjøperforsikring samt forsikringsløsninger til selger og kjøper
  • Overo leverer oppgjørsskjema og overtakelsesprotokoll for EIE. Kunder tilbys ulike leverandører for strøm, alarm og bredbånd avhengig av tilbydere i kundens nærområde
  • EIE AS (morselskap for franchisegiver i EIE-kjeden) og enkelte meglerkontor i EIE-kjeden har indirekte eierinteresser i Bomega AS (Hjem.no) i ulike eierkonstellasjoner gjennom EIE Hjem AS
  • EIE eiendomsmegling samarbeider med ulike bankforbindelser om formidling av finansielle tjenester. Meglerforetaket kan motta godtgjørelse for dette
  • Finit Deleie tilbyr deleie på enkelte objekter
  • Secundo er en markedsplass for salg av bruktgjenstander

Les mer om våre samarbeid og investeringer her: eie.no/eiendom/eie-investerer


Nærområdet

Annonseinformasjon

FINN-kode426093799
Sist endret21. feb. 2026 09:43
Referanse91250220-Single

Rapporter annonse

Annonsene kan være mangelfulle i forhold til lovpålagt opplysningsplikt. Før bindende avtale inngås oppfordres interessenter til å innhente komplett informasjon fra meglerforetaket, selger eller utleier.