Bildegalleri

Mini Huset med Carport og bod
Ødegården Panorama
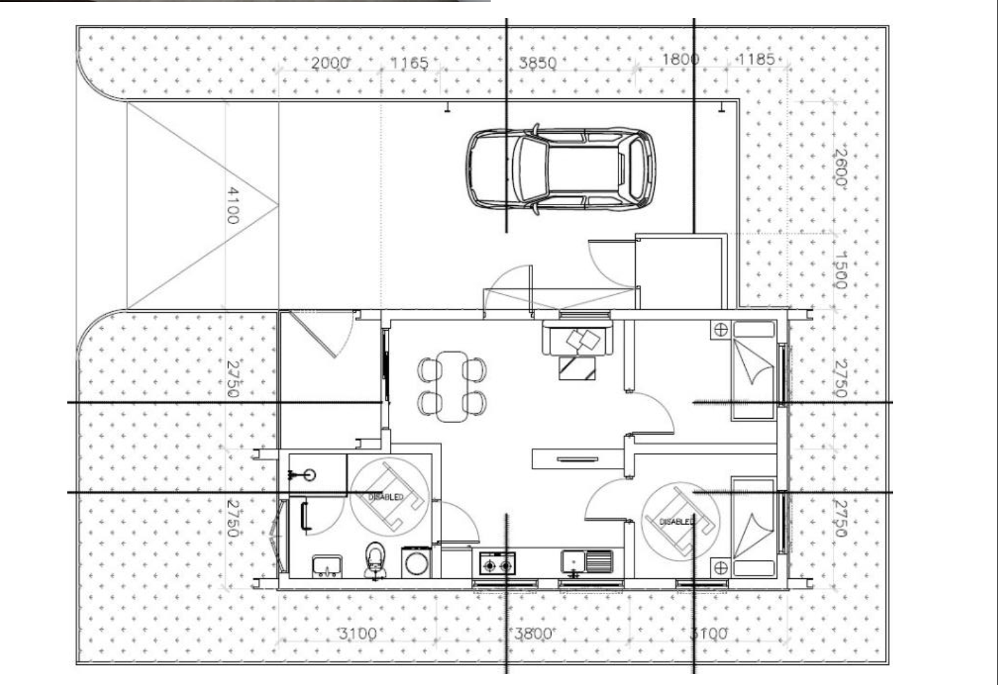
Nyhet Mini huset, Nøkkelferdig med eiet tomt, Carport og utvendig bod er inkludert i prisen.
Prosjektets status
Planlegging
Godkjent av kommunen
Salgsstart
2025
Byggestart
2025
Overtakelse
2025
Nøkkelinfo
- Boligtype
- Enebolig
- Eieform
- Eier (Selveier)
- Soverom
- 2
- Antall etasjer
- 1
- Bruksareal
- 55 m²
- Sikringsordning
- Ja
Fasiliteter
Visning
Ta kontakt for å avtale visning.Beskrivelse
Nyhet Mini huset, Nøkkelferdig med eiet tomt, Carport og utvendig bod er inkludert i prisen.
Nøkkelferdig Hus
· Ferdigbygget hus som vist i skisse og plantegning Tek 17.
· Vegger med stående kledning. Behandlet med grunning og et strøk
· Tak type Ruuki classic
· Hvitevarer og kjøkkeninnredning (inkl oppvaskmaskin, koketopp, stekeovn og kjøkkenvifte) i tråd med IKEA tegning
· Laminat på alle tørre gulv.
· Gulvvarme på bad
· Frakt og løft på fundament
· Reiser/møter/prosjektering ifm planlegging/befaring/tegning/bistand.
- Vegg fra gulv til tak, inkl lys og kontakter.
- Stort kjøleskap med frys
- Opplegg for varmepumpe på vegg i stue og på utsiden(avklare plassering)
- Flis lagt bad med 90x90 dusjvegg med dører som kan felles inn for å spare plass, vegg hengt wc. Varmekabler.
- Down Light i stue, gang, bad.
- NEK 400. El installasjon. Utvendig inn taks skap i tillegg til sikrings skap inne.
- Betong for striper mur elle punkter.
- Røropplegg med inredning. På kobling rørlegger.
Bygget leveres med 5 års garanti mot feil på alle komponentene, under forutsetning at produktene brukes riktig og med normal slitasje. Kjøper skal følge rutiner for vedlikehold overlevert i FDV og dokumentasjon som leveres ved overtakelse.
Om Dere ønsker vedlikeholdsfri kledning, kan vi tilby Thermowood eller Brent kledning mot tillegg på KUN kr 44.000,-
Opparbeidelse kommer i tillegg til annonsert pris. Avtales med Graver når tomt er valgt. Ca kr. 80 000,-
Gebyrer og avgifter
På kobling og bygge søk Kommunen Kr. 35 000,-
E verket på kobling Kr. 10 000,-
Byggesøk eksternt Kr. 12000,-
Sum totalt Kr. 57 000,-
Kommunale avgifter og eiendoms skatt Ca Kr. 20 000,- pr. År
Nærområdet
FLEKSIHUS AS
Annonsene kan være mangelfulle i forhold til lovpålagt opplysningsplikt. Før bindende avtale inngås oppfordres interessenter til å innhente komplett informasjon fra meglerforetaket, selger eller utleier.











