Bildegalleri

Husene vist på tomtene
Rekkevik - Gon - attraktivt område, ingen boplikt - kort vei til strand / sjø
Larvik : Moderne enebolig med veldig fin beliggenhet i attraktivt område ve Rekkevik / Gon, med 3 (4) sov og carport
Prosjektets status
Planlegging
Ferdig
Salgsstart
Juni - 25
Byggestart
Høsten - 25
Overtakelse
Etter avtale
Nøkkelinfo
- Boligtype
- Enebolig
- Eieform
- Eier (Selveier)
- Soverom
- 4
- Antall etasjer
- 2
- Bruksareal
- 156 m²
Fasiliteter
Visning
Ta kontakt for å avtale visning.Beskrivelse
Beskrivelse av prosjektet
Eiendommen ligger i et meget ettertraktet og barnevennlig boligområde på Rekkevik i Larvik kommune. Området har nærhet til skoler, barnehager, offentlig kommunikasjon, samt et rikt utvalg av fasiliteter og servicetilbud. Stedet kan skilte med vakker natur, fine turområder, samt mulighet for fisking og bading. Rekkeviksbukta er kjent som et av de beste badestedene langs østsiden av Larviksfjorden.
Det er også kort vei til idylliske Gonsbukta badeplass - en meget populær badeplass med flott sandstrand, stupebrett og glattskurte svaberg. Hummerberget ved Gon er et yndet turområde hvor du kan følge kyststien nesten helt til Kaupang. Oterøya er et annet herlig friluftsområde, med gangbro fra fastlandet. Det er kort vei til idylliske Hvittensand, som er en av Larviks vakreste strender, omkranset av fantastisk natur som innbyr til rekreasjon.
Huset vi skal bygge er den nye hus modellen Neptun, en moderne bolig som har alt en aktiv familie kan ønske seg.
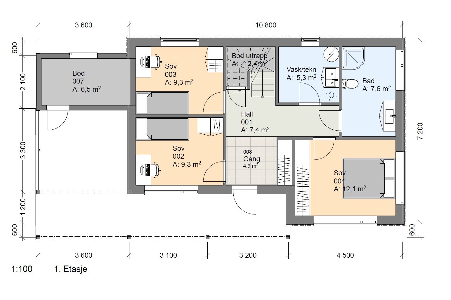
Denne boligen leveres med 3 soverom som standard, men det er mulig å endre planløsningen slik at man også får 4 soverom.
Huset leveres med veldig god standard, med alt som skal være i en ny moderne enebolig, med unntak av hvitevarer til kjøkkenet.
Kjøkken leveres her fra Designa, hvor Dere som kunde får anledning til å velge fra flere forskjellige fronter og benkeplater inkl i prisen.
Vi har også avtale med Sigdal, om Dere ønsker kjøkken fra Sigdal.
Innvendige vegger leveres isolert, her er det selvsagt mulig å velge farge. På våtrom leveres det fliser på vegger. Flisene er av høy kvalitet, og leveres fra Fagflis. Det kan velges fra 3 farger som vi kjører som standard, eller så kan man velge andre fliser, da mot tillegg.
Bad / wc leveres med innredning fra Vikingbad. Her er det også mulig å endre layout på produktene mot tillegg. Vegg hengte wc er standard.
Det leveres med 15 led downlights og varmekabler under fliser som standard.
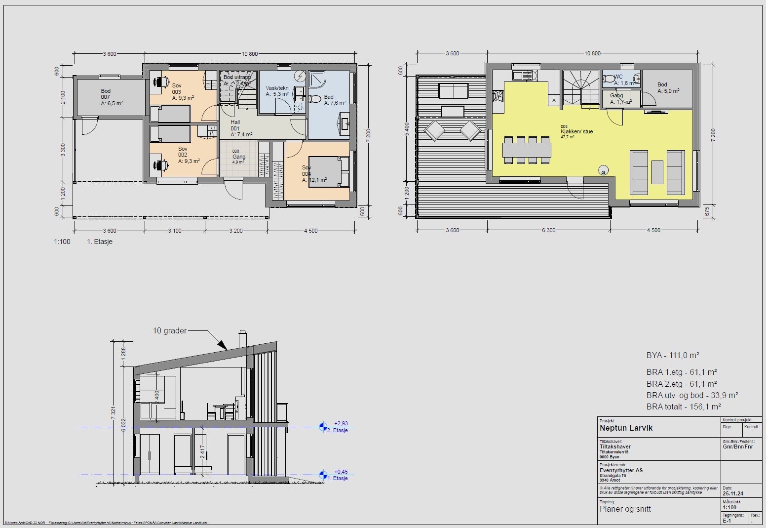
Boligen har et areal på ca 156m2 BRA, og tomten får et areal på ca 522m2.
Tomten fradeles nå i 2 selvstendige tomter, se situasjonskart
Noe vi her vil fremheve
- 3 med mulighet for 4 soverom
- Stort vaskerom
- Stor innvendig bod
- Stor hall med god plass til garderobe
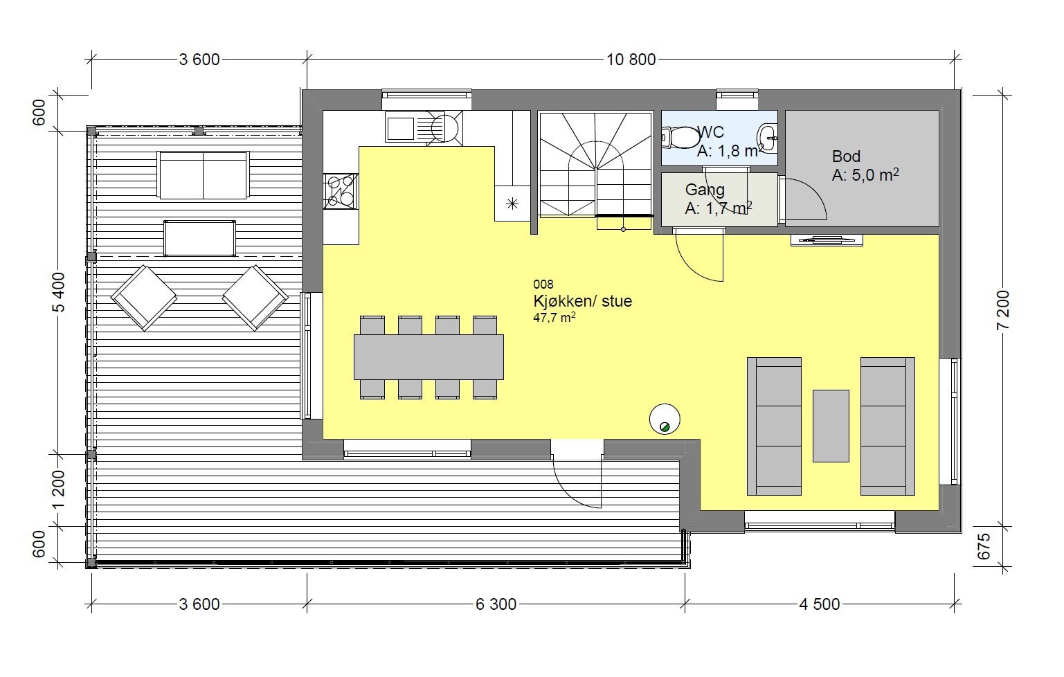
- Stue / kjøkken på hele 47m2, med store vinduer
- Stor terrasse mot syd og vest ut fra stuen i 2. etg
- Veldig barnevennlig beliggenhet
Norheimshus er en del av Eventyrhytter AS, og har gjennom mer enn 20 år bygget hus og hytter over store deler av Norge.
Norheimshus er ikke en del av en stor kjede, hos oss er hver kunde spesiell. Vi består av en gruppe lokale eiere og ansatte som elsker jobben vår, og jobber mot et felles mål om å ha fornøyde kunder hver gang.
Hos oss er det skikkelig håndverk og høy kvalitet som gjelder, og våre hus er 100% norskproduserte på vår fabrikk i Modum. Her foregår alt; salg, tegning, søknad, produksjon og oppfølging helt fram til alt er klart. Alt på ett sted.
Vi tilbyr hus for enhver smak, enten du liker herskapelige, moderne eller tradisjonelle. Vår nye serie Økosmart passer for deg som er opptatt av smarte løsninger og at hjemmet skal være økonomisk og enkelt å drifte.
Ta kontakt med oss, så kan vi sammen se på mulighetene for å skape Deres nye drømme hjem på på denne fine tomten, vi kan selvfølgelig tegne om og tilpasse huset, slik at det blir akkurat som Dere ønsker.
Finansiering kan vi også hjelpe Dere med, vi har samarbeid med banker som finansierer våre kunder.
Utvendige arbeider, som opparbeidelse av plen, hekker osv er ikke med i vår pris, men kan selvsagt leveres mot tillegg gjennom våre underleverandører.
Tomten leveres ferdig planert, og innkjøring / parkering / gangsti leveres ferdig gruset.
Omkostninger er stipulert, og skal dekke :
- Dokumentavgift på tomten til staten
- Påkoblings avgift på vann og avløp
- Tilkoblings avgift for elektrisitet
Med forbehold om feil i annonsen.
Nærområdet
Annonsene kan være mangelfulle i forhold til lovpålagt opplysningsplikt. Før bindende avtale inngås oppfordres interessenter til å innhente komplett informasjon fra meglerforetaket, selger eller utleier.


























