Bildegalleri

Illustrasjon
Firemannsbustad sentralt på Fedje
Bustad på Fedje - Fire einingar ledige
Prosjektets status
Planlegging
2024
Salgsstart
Sep.24
Byggestart
Planlagt oktober 2025
Overtakelse
Planlagt august 2026
Nøkkelinfo
- Boligtype
- Leilighet
- Eieform
- Eier (Selveier)
- Soverom
- 2
- Rom
- 3
- Primærrom
- 72 m²
- Bruksareal
- 84 m²
Fasiliteter
Visning
Ta kontakt for å avtale visning.Beskrivelse
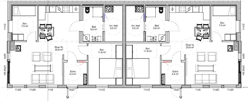
Ny bustad på Fedje
Velkommen til Kopper på Fedje, og ein planlagt firemannsbustad. Her får du ein nøkkelferdig bustad med høg standard.
Kvar eining er på 72-75m² P-areal, og har to soverom.
Her kan du få eit sentralt plassert husvære med kort veg til butikk, skule, kyrkje, ferjekai, legekontor og komm. Alle einingane har parkering på eige plan, trinnfri tilkomst og er utforma etter husbanken sine krav for livsløpsstandard.
Kvar eining får skyvedør frå stova til eigen uteplass.
Bustaden vert oppført etter krav frå husbanken, og søknad blir behandla i 2025. Dette vil leggje til rette for gunstige lånevilkår.
Dei praktiske planløysingane på begge plan, med store vindusflater gjev ein moderne, lys og triveleg bustad.
Beskrivelse
Tak med einsidig fall, utvendige takrenner. Impregnert liggande kledning utvendig.
Bustaden blir bygd etter dagens regelverk som betyr at det blir godt isolert både for varme og lyd. Det blir balansert ventilasjon med varmegjenvinning i kvar eining.
Kjøkken frå Sigdal med integrerte kvitevarer.
Kvar eining har to soverom og open løysing mellom kjøkken og stove.
Uisolert sportsbod på 5-6,2m², samt innvendig bod på 5m².
Einingar
To einingar i 1. Etasje 1A/1B
72m² P-rom, NOK 2 990 000,-
Parkering på same plan, trinnfri tilkomst.
Varmekabler i oppholdsrom, og vedovn i stova.
To einingar i 2. etasje 2A/2B
75m² P-rom, NOK 3 290 000,-
Høgare takhøgde i kjøkken/stove, store vindu for lys og utsikt.
Her blir det varmepumpe til oppvarming, og vedovn i stova.
Her blir det også parkering på same plan, og trinnfri tilkomst. Sørvendt platting med utgang frå stova.
Kontakt oss
Ta gjerne kontakt for meir informasjon
Nærområdet
SAMNØY MASKIN AS

Kopper Bustad AS
Utbygger
Annonsene kan være mangelfulle i forhold til lovpålagt opplysningsplikt. Før bindende avtale inngås oppfordres interessenter til å innhente komplett informasjon fra meglerforetaket, selger eller utleier.










