Bildegalleri

Velkommen til Tyrihansveien 15A
Tyrihansveien 15A
Ekslusiv enebolig o/ 3 plan under oppføring - 4 sov, 2 bad og toalettrom - Mulighet for praktikantdel -Innflytting q2 26
Prosjektets status
Planlegging
August 2022
Salgsstart
Desember 2024
Byggestart
Juni 2024
Overtakelse
Juni 2026
Nøkkelinfo
- Boligtype
- Enebolig
- Eieform
- Eier (Selveier)
- Soverom
- 4
- Rom
- 5
- Internt bruksareal
- 200 m² (BRA-i)
- Bruksareal
- 200 m²
Fasiliteter
Beskrivelse
Generell informasjon om prosjektet
________________________________________________________________________
Beskrivelse av prosjektet
Velkommen til Tyrihansveien 15A, presentert av eiendomsmegler Morten Lindberg ved Eiendomsmeglerne.
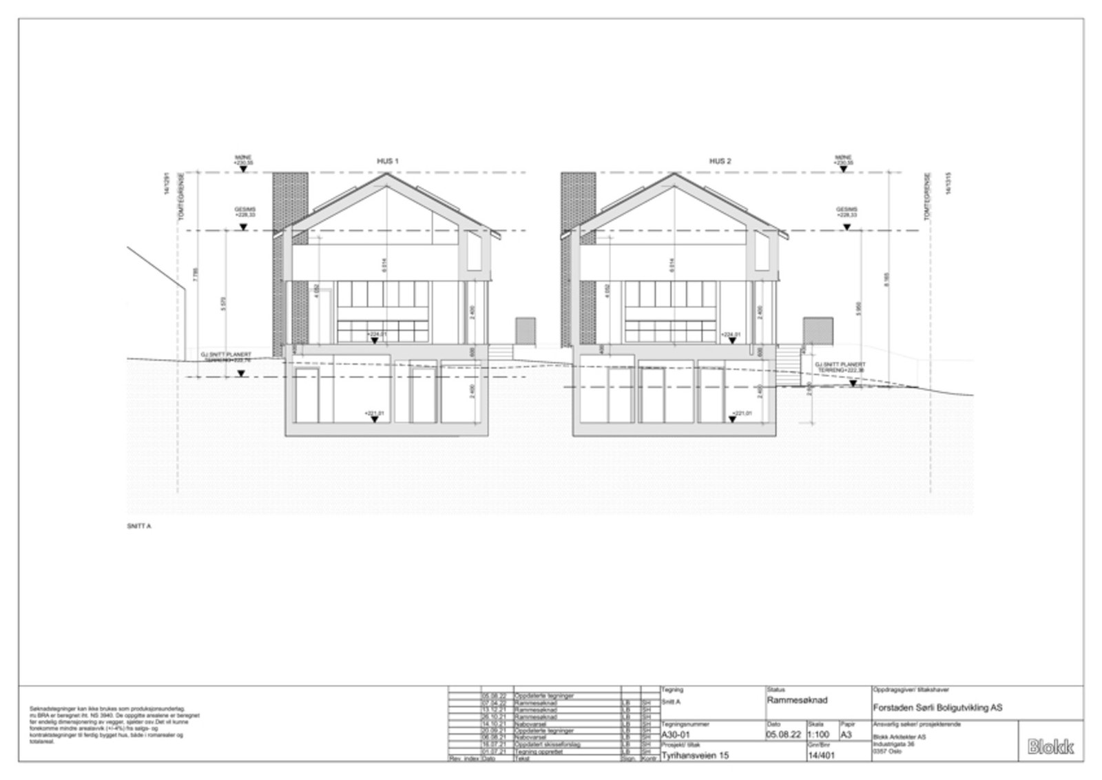
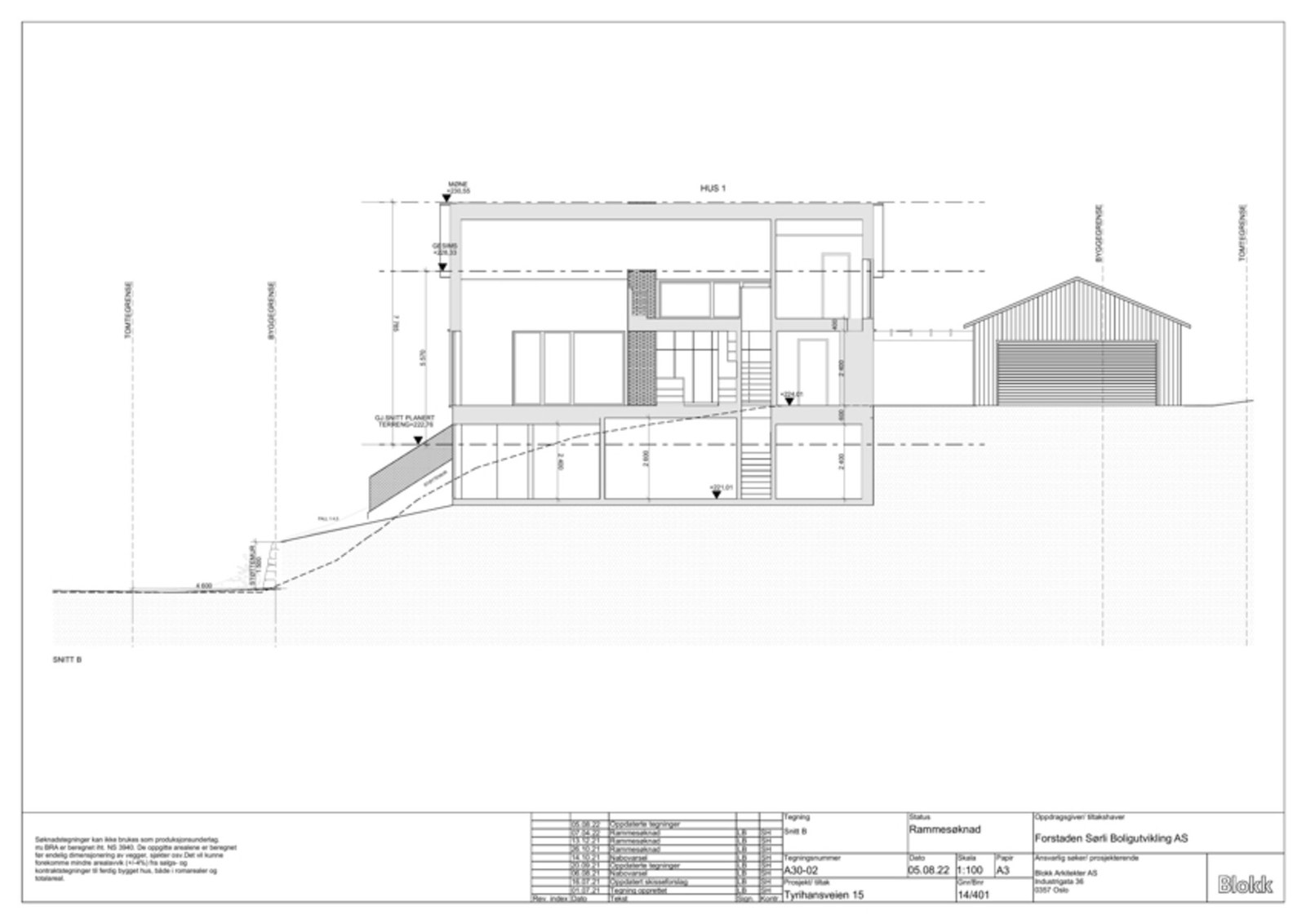
1 av 2 spennende eneboliger under oppføring. Byggingen er igangsatt. Boligene bygges med en unik arkitektur der husenes utforming er tilpasset tomtene på en svært god måte. Boligene har gjennomtenkte planløsninger, svært gode lysforhold og god kontakt mellom uteområder og inne. Boligene holder høy standard med bl.a. en stavs parkett, romslig kjøkkeninnredning fra Norema og delikate flislagte bad med høy standard. Boligene oppføres med spennende arkitektur, gjennomtenkte løsninger og gode kvaliteter. Husene er tegnet av Blokk arkitekter AS.
Tyrihansveien 15A vil bestå av en romslig, flislagt entré med 60x60 fliser, stor og luftig stue med svært god takhøyde og store vinduer som sørger for masse lysinnslipp og en god atmosfære. Fra hovedstuen vil du ha utgang til en solrik overbygget veranda med god plass til sittegruppe, grill og annet utemøblement. Fra 2. etg. har du en separat TV-stue/Hems med utsyn over stuen. Det vil bli satt inn en moderne kjøkkenløsning i åpen løsning mot hovedstue med innredning fra Norema, 2 delikate bad med 60x60 fliser, separat toalettrom, 4 soverom hvorav hovedsoverommet har tilgang til det ene badet som et an suite bad. Fra 2. etg. har du en separat TV-stue/Hems med utsyn over stuen. Hele boligen vil bli utført med 1 stavs parkett.
Dersom ønskelig er det mulig å gjøre om deler av underetasjen til en praktikant/utleiedel bestående av entré, åpen stue/kjøkkenløsning, bad og soverom. Se vedlagt alternativ planløsning for utforming.
KORT OM BOLIGEN:
- BOLIG UNDER OPPFØRING
- BYGGING IGANGSATT
- MULIGHET FOR TILVALG
- MULIGHET FOR PRAKTIKANTDEL
- SENTRAL BELIGGENHET
- NATURSKJØNNE OMGIVELSER
- NÆRHET TIL SKOLE/BARNEHAGE
- HØY STANDARD
- FLOTTE UTEOMRÅDER
- 4 SOVEROM AVHENGIG AV LØSNING
- 2 BAD OG SEPARAT TOALETTROM
- DOBBEL GARASJE
- MASSE BODPLASS
- BALANSERT VENTILASJON
- PEIS
- FIBER
Boligen vil ha følgende planfordeling:
1.etg.: Romslig entré, stor stue med åpen kjøkkenløsning, praktisk toalettrom, samt bod.
2.etg.: Soverom med an suite bad og hems/TV-stue.
U.etg.: Gang, 3 sov, 2 bad og bod.
Alternativ planløsning U. etg.
U. etg. Hoveddel: Gang, soverom, bad og bod.
U. etg. Praktikantdel: Gang, åpen stue/kjøkkenløsning, soverom og bad.
Beliggenhet
Tyrihansveien 15A ligger i et meget attraktivt boligområde på Sørli på Rotnes, i Nittedal kommune. Bebyggelsen i området består for det meste av eneboliger. Det er meget barnevennlige og rolige omgivelser. Barnehage, barne-, ungdoms- og videregående skole ligger i gangavstand. Nærmeste barneskole er Sørli som ligger ca. 9 minutters gange unna eiendommen.
Det finnes utallige turmuligheter sommer som vinter, lysløype, sykkelstier og koselige badevann. Eiendommen har Store- og Lille Vassøytjern som en av sine nærmeste naboer. Både innover i Nordmarka og på Romeriksåsene. Bademuligheter i Ørfiske eller i Høldippelen med gressplen og svaberg. Det er Ikke langt til Varingskollen alpinsenter, kun 13 minutter med bil eller 2 holdeplasser med toget. For de golfinteresserte er både banen på Hauger og Aas Gaard golfpark populære.
Mosenteret er nærmeste senter. Her er et variert utvalg av butikker, bank, apotek, vinmonopol og servicefunksjoner. Ved Nittedal stasjon er det en Bunnprisbutikk som ble utbygget og fornyet for ikke lenge siden. På Mo ligger også Kulturhuset og biblioteket, her er det mange arrangement og forestillinger. Biblioteket har publikumsvennlige åpningstider fra tidlig morgen til sen kveld.
Nittedal har et rikt og variert idretts- og kulturmiljø med korps, teatergrupper, velfungerende kulturskole, flere kor og idrettsklubber. Her vil nok de fleste finne en fin fritidsaktivitet de liker.
Det er god offentlig kommunikasjon med tog fra Nittedal stasjon, det tar ikke mange minuttene å gå bort til stasjonen hvor togturen går gjennom Nordmarka og sørger for en god start på dagen på vei til jobb i Oslo. Toget tar ca. 15 min til Nydalen og ca. 30 min til Oslo S. På riksvei 4 går det buss til både Oslo og Lørenskog. Lokalbuss går i området på hverdager, og bussholdeplassen ligger ca. 3 minutters gange fra boligen. Det er ca. 25 km til Oslo S og ca. 47 km til Gardermoen.
Standard
Det er lagt til grunn en leveranse av god kvalitet og med arealeffektive planløsninger, moderne arkitektonisk uttrykk og funksjonelle løsninger.
INNVENDIG OVERFLATEBEHANDLING
Sparkling + grunning + 2 strøk maling
Himling: Standard farge er klassisk hvit
Vegger: Standard farge er klassisk hvit
KJØKKEN
Kjøkken leveres fra Norema eller tilsvarende iht. til kjøkkentegninger. Det presiseres spesielt at plantegninger og tegninger i salgsoppgaven ikke gir et riktig bilde av kjøkkeninnredningen som leveres som standard innredningen. Egen kjøkkentegning for omfang og eksakt leveranse vil bli utarbeidet senere i samarbeid med utførende entreprenør. Standard hvitevare pakke inngår i leveransen. Kjøper vil sammen med kjøkkenleverandøren kunne tilpasse løsninger der dette er aktuelt.
PEIS OG PIPE
Det leveres enkeltløpet stålpipe over tak med nødvendige beslag. Det leveres peisovn av type Curve 100 eller tilsvarende.
BAD
Baderomsinnredning leveres i standard farge hvit fra Alterna eller tilsvarende.
Sanitærutstyr (f.eks. servant, toalettskål og badekar) leveres i standard farge hvit. Toaletter leveres veggmontert.
Sanitærarmatur (f.eks. kjøkkenbatterier, servantbatteri, dusjbatteri)
For nærmere tekniske detaljer og beskrivelse, se vedlagte leveransebeskrivelse i salgsoppgaven.
Parkering
Parkering i garasje med plass til 2 biler, samt god plass til parkering i oppkjørsel.
Nyttige lenker
Nærområdet
Eiendomsmeglerne AS
Annonseinformasjon
| FINN-kode | 384530110 |
|---|---|
| Sist endret | 08. okt. 2025 11:52 |
| Referanse | 202240108-Single |
Annonsene kan være mangelfulle i forhold til lovpålagt opplysningsplikt. Før bindende avtale inngås oppfordres interessenter til å innhente komplett informasjon fra meglerforetaket, selger eller utleier.


























