Bildegalleri

Huset vist på tomten
Moss / Vang - Prosjektert bolig på stor og fin tomt, utsikt mot Oslofjorden
Moderne enebolig nær skole, med 5 soverom, vestvendt
Prosjektets status
Planlegging
Ferdigstilles
Salgsstart
Nå
Byggestart
Etter kontrakt
Overtakelse
6 til 7 måneder etter signert kontrakt
Nøkkelinfo
- Boligtype
- Enebolig
- Eieform
- Selveier
- Soverom
- 5
- Antall etasjer
- 2
- Bruksareal
- 157 m²
Fasiliteter
Visning
Ta kontakt for å avtale visning.Beskrivelse
Beskrivelse av boligen
Vesteråsveien 61 har en meget solrik og landlig beliggenhet på Vang (mellom Rygge og Larkollen). Her omgis du av de vakre landbruksområdene Rygge er kjent for, med store friområder.
Tomtene skråner vestover. Vidt utsyn, og Oslofjorden kan skimtes i det fjerne fra bakkenivå.
Beliggende i en blindvei. Svært lite trafikk, og tilbaketrukket fra Larkollveien.
Kort og sikker gangavstand til Vang skole.
Få minutter kjøring til Høyda handelsområde med er rikt utvalg av butikker, kjøpesenter, vinmonopol osv.
De fredelige omgivelsene og tomten fremstår attraktivt for småbarnsfamilier.
Litt om husene vi skal bygge her :
Huset vi skal bygge er den nye hus modellen Astro, en moderne bolig som har alt en aktiv familie kan ønske seg.
( Det er mulig
Denne boligen leveres med 5 soverom som standard, men det er mulig mot tillegg å endre planløsningen slik at man også får en utleiedel. Da vil hoved delen ha 4 soverom, pluss utleiedel.
Huset leveres med veldig god standard, med alt som skal være i en ny moderne enebolig, med unntak av hvitevarer til kjøkkenet.
Kjøkken leveres her fra Designa, hvor Dere som kunde får anledning til å velge fra flere forskjellige fronter og benkeplater inkl i prisen.
Innvendige vegger leveres med malt gips, her er det selvsagt mulig å velge farge. På våtrom leveres det fliser på vegger. Flisene er av høy kvalitet, og leveres fra Fagflis. Det kan velges fra 3 farger som vi kjører som standard, eller så kan man velge andre fliser, da mot tillegg.
Bad / wc leveres med innredning fra Vikingbad. Her er det også mulig å endre layout på produktene mot tillegg. Vegg hengte wc er standard.
Det leveres med 15 led downlights og varmekabler under fliser som standard.
Astro er et stilig hus med et moderne uttrykk.
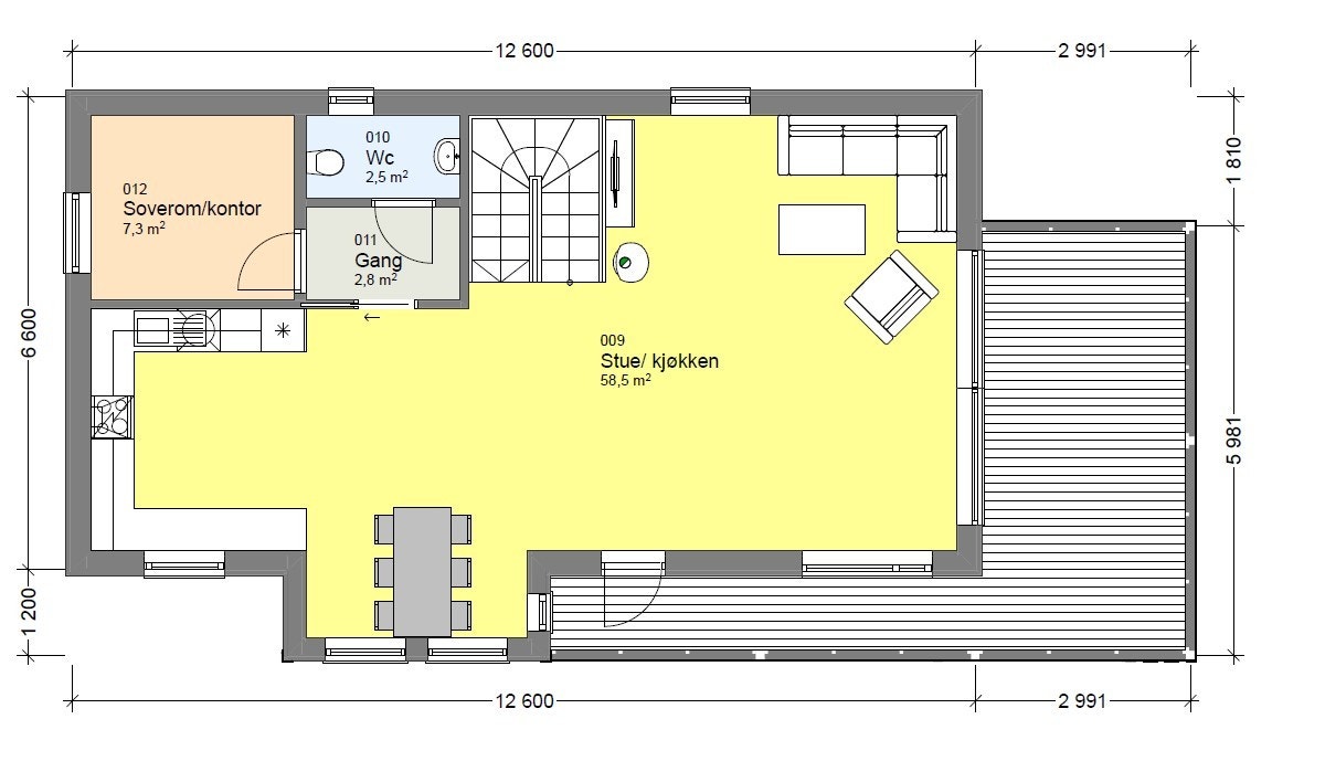
Huset er innholdsrikt med fire soverom i første etasje. i tillegg til romslig hall, bad, stor bod og teknisk rom. I andre etasje er det vaskerom og wc, og et stort og flott stue- og kjøkken område som gir en åpen og luftig romfølelse. Det er også et soverom i andre etasje, så dette huset har totalt 5 soverom !
Huset leveres nøkkelferdig fra oss, men uten hvitevarer.
Boligen har et areal på ca 157m2, og tomten(e) ca 730m2.
Tomten(e) er selveiet.
Her er noe vi vil trekke frem som vi tror er viktig for en aktiv familie :
- 5 soverom
- Vaskerom med egen inngang
- Flislagte våtrom
- Malt gips på vegger i oppholdsrom / soverom.
- Bad / toalett med vegg hengte toaletter
- Utvidet elektro pakke med 15 led downlights
- Bod under trapp kan velges som tillegg.
- Stor hall
- Stue / kjøkken på hele 58m2, med store vinduer mot syd
- Stor terrasse mot syd
- Plass til å bygge dobbel garasje på tomten
- Her kan Dere velge kjøkken fra Sigdal eller Designa
- Veldig barnevennlig beliggenhet
Norheimshus er en del av Eventyrhytter AS, og har gjennom mer enn 20 år bygget hus og hytter over store deler av Norge. Norheimshus er ikke en del av en stor kjede, hos oss er hver kunde spesiell. Vi består av en gruppe lokale eiere og ansatte som elsker jobben vår, og jobber mot et felles mål om å ha fornøyde kunder hver gang. Hos oss er det skikkelig håndverk og høy kvalitet som gjelder, og våre hus er 100% norskproduserte på vår fabrikk i Modum. Her foregår alt; salg, tegning, søknad, produksjon og oppfølging helt fram til alt er klart. Alt på ett sted.
Vi tilbyr hus for enhver smak, enten du liker herskapelige, moderne eller tradisjonelle. Vår nye serie Økosmart passer for deg som er opptatt av smarte løsninger og at hjemmet skal være økonomisk og enkelt å drifte.
Ta kontakt med oss, så kan vi sammen se på mulighetene for å skape Deres nye drømme hjem, vi kan selvfølgelig tegne om og tilpasse huset, slik at det blir akkurat som Dere ønsker.
Finansiering kan vi også hjelpe Dere med, vi har samarbeid med banker som finansierer våre kunder.
Tomten leveres ferdig planert, og innkjøring / parkering / gangsti leveres ferdig gruset.
Med forbehold om feil i annonsen.
Nærområdet
Annonsene kan være mangelfulle i forhold til lovpålagt opplysningsplikt. Før bindende avtale inngås oppfordres interessenter til å innhente komplett informasjon fra meglerforetaket, selger eller utleier.






















